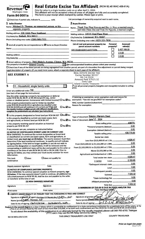
Property
Account |
| Property ID: | 759584 | Abbreviated Legal Description: | PARKSIDE TRACT C DRAINAGE DETENTION FACILITY VALUED WITH PARCELS SERVED |
| Geographic ID: | S7662-00-0000C-0 | Agent Code: | |
| Type: | Real | | |
| Tax Area: | 100 - APPRAISER-OH Schl Dist, in OH | Land Use Code | 99 |
| Open Space: | N | DFL | N |
| Historic Property: | N | Remodel Property: | N |
| Multi-Family Redevelopment: | N | | |
| Township: | | Section: | |
| Range: | |
Location |
| Address: | NE RIKSEN WAY OAK HARBOR, WA 98277 | Mapsco: | |
| Neighborhood: | Cycle 1 | Map ID: | 262 |
| Neighborhood CD: | 1 |
Owner |
| Name: | PARKSIDE HOWNRS ASSN | Owner ID: | 108136 |
| Mailing Address: | LEE PICULELL, PRESIDENT 1709 N 122ND ST SEATTLE, WA 98133-7714 | % Ownership: | 100.0000000000% |
| | | Exemptions: | EX |
Taxes and Assessment Details
Values
| (+) Improvement Homesite Value: | + | $0 | |
| (+) Improvement Non-Homesite Value: | + | $0 | |
| (+) Land Homesite Value: | + | $0 | |
| (+) Land Non-Homesite Value: | + | $80,000 | |
| (+) Curr Use (HS): | + | $0 | $0 |
| (+) Curr Use (NHS): | + | $0 | $0 |
| | | -------------------------- | |
| (=) Market Value: | = | $80,000 | |
| (–) Productivity Loss: | – | $0 | |
| | | -------------------------- | |
| (=) Subtotal: | = | $80,000 | |
| (+) Senior Appraised Value: | + | $0 | |
| (+) Non-Senior Appraised Value: | + | $80,000 | |
| | | -------------------------- | |
| (=) Total Appraised Value: | = | $80,000 | |
| (–) Senior Exemption Loss: | – | $0 | |
| (–) Exemption Loss: | – | $80,000 | |
| | | -------------------------- | |
| (=) Taxable Value: | = | $0 | |
Taxing Jurisdiction
| Owner: | PARKSIDE HOWNRS ASSN | | |
| % Ownership: | 100.0000000000% | | |
| Total Value: | $80,000 | | |
| Tax Area: | 100 - APPRAISER-OH Schl Dist, in OH |
| CF | Conservation Futures | 0.0316035091 | $80,000 | $0 | $0.00 | | |
| CEM1 | Cemetery #1 | 0.0040320932 | $80,000 | $0 | $0.00 | | |
| COH | City of Oak Harbor | 2.3001546061 | $80,000 | $0 | $0.00 | | |
| OAKBOND | City of Oak Harbor BOND | 0.1926904192 | $80,000 | $0 | $0.00 | | |
| HOBOND | Hospital BOND | 0.1910887512 | $80,000 | $0 | $0.00 | | |
| HOGEN | Hospital GEN | 0.3902502903 | $80,000 | $0 | $0.00 | | |
| CE | County Current Expense | 0.3708482477 | $80,000 | $0 | $0.00 | | |
| ISLANDEMS | Hospital GEN (EMS) | 0.5000000000 | $80,000 | $0 | $0.00 | | |
| LIB | Library Sno-Isle GEN | 0.3153421757 | $80,000 | $0 | $0.00 | | |
| NWHIDPRMT | P & R N Whidbey GEN | 0.2004466701 | $80,000 | $0 | $0.00 | | |
| SCH201MO | School 201 Enrichment | 1.8559231640 | $80,000 | $0 | $0.00 | | |
| ST | State School | 1.3035497053 | $80,000 | $0 | $0.00 | | |
| ST2 | State School Part 2 | 0.8169543533 | $80,000 | $0 | $0.00 | | |
| | Total Tax Rate: | 8.4728839852 | | | | | |
| | | | | Taxes w/Current Exemptions: | $0.00 | | |
| | | | | Taxes w/o Exemptions: | $677.84 | | |
Improvement / Building
Sketch
| No sketches available for this property. |
Property Image
Land
| 1 | 13 | SQ (06001-08000) | 0.0000 | 0.00 | 0.00 | 0.00 | 1.00 | $80,000 | $0 |
Roll Value History
| 2026 | N/A | N/A | N/A | N/A | N/A |
| 2025 | $0 | $80,000 | $0 | $80,000 | $0 |
| 2024 | $0 | $80,000 | $0 | $80,000 | $0 |
| 2023 | $0 | $80,000 | $0 | $80,000 | $0 |
| 2022 | $0 | $80,000 | $0 | $80,000 | $0 |
| 2021 | $0 | $70,000 | $0 | $70,000 | $0 |
| 2020 | $0 | $65,000 | $0 | $65,000 | $0 |
| 2019 | $0 | $75,000 | $0 | $75,000 | $0 |
| 2018 | $0 | $65,000 | $0 | $65,000 | $0 |
| 2017 | $0 | $60,000 | $0 | $60,000 | $0 |
| 2016 | $0 | $70,000 | $0 | $70,000 | $0 |
| 2015 | $0 | $80,000 | $0 | $80,000 | $0 |
| 2014 | $0 | $80,000 | $0 | $80,000 | $0 |
| 2013 | $0 | $80,000 | $0 | $80,000 | $0 |
| 2012 | $0 | $70,000 | $0 | $70,000 | $0 |
| 2011 | $0 | $0 | $0 | $0 | $0 |
| 2010 | $0 | $0 | $0 | $0 | $0 |
| 2009 | $0 | $0 | $0 | $0 | $0 |
| 2008 | $0 | $0 | $0 | $0 | $0 |
| 2007 | $0 | $0 | $0 | $0 | $0 |
Deed and Sales History
| 1 | 04/28/1998 | QCD | Quit Claim Deed | PARKSIDE, HOMEOWNERS A | ASS'N, PARKSIDE HOMEOWNERS | | | $0.00 | 81530 | 98008328 |
| 2 | 01/01/1900 | OTHER | Other - Misc. Documents | Unknown | PARKSIDE, | | | $0.00 | 70152 | 97000587 |
| 3 | 01/01/1900 | OTHER | Other - Misc. Documents | PARKSIDE, | PARKSIDE, HOMEOWNERS A | | | $0.00 | 81530 | 98008328 |
Payout Agreement
| No payout information available.. |