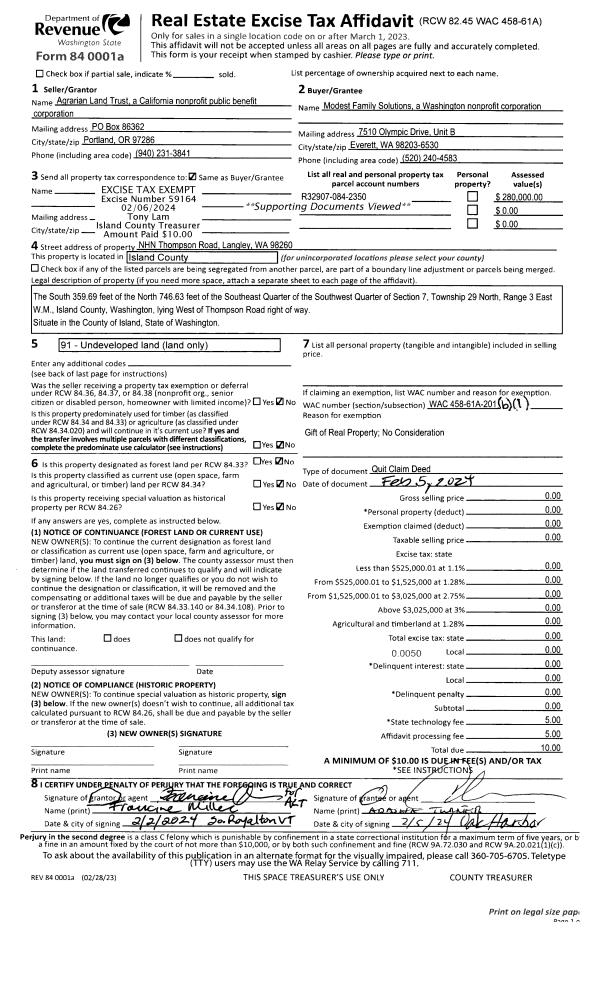
Property
Account |
| Property ID: | 759655 | Abbreviated Legal Description: | SWANTOWN RIDGE #1 LOT 18 |
| Geographic ID: | S8287-00-00018-0 | Agent Code: | |
| Type: | Real | | |
| Tax Area: | 100 - APPRAISER-OH Schl Dist, in OH | Land Use Code | 11 |
| Open Space: | N | DFL | N |
| Historic Property: | N | Remodel Property: | N |
| Multi-Family Redevelopment: | N | | |
| Township: | | Section: | |
| Range: | |
Location |
| Address: | 2176 SW SUNNYSIDE AVE OAK HARBOR, WA 98277 | Mapsco: | |
| Neighborhood: | Cycle 1 | Map ID: | 97 |
| Neighborhood CD: | 1 |
Owner |
| Name: | THOMPSON, GABRIEL | Owner ID: | 310832 |
| Mailing Address: | ELISA THOMPSON 2176 SW SUNNYSIDE AVE OAK HARBOR, WA 98277 | % Ownership: | 100.0000000000% |
| | | Exemptions: | |
Taxes and Assessment Details
Values
| (+) Improvement Homesite Value: | + | $0 | |
| (+) Improvement Non-Homesite Value: | + | $295,912 | |
| (+) Land Homesite Value: | + | $0 | |
| (+) Land Non-Homesite Value: | + | $200,000 | |
| (+) Curr Use (HS): | + | $0 | $0 |
| (+) Curr Use (NHS): | + | $0 | $0 |
| | | -------------------------- | |
| (=) Market Value: | = | $495,912 | |
| (–) Productivity Loss: | – | $0 | |
| | | -------------------------- | |
| (=) Subtotal: | = | $495,912 | |
| (+) Senior Appraised Value: | + | $0 | |
| (+) Non-Senior Appraised Value: | + | $495,912 | |
| | | -------------------------- | |
| (=) Total Appraised Value: | = | $495,912 | |
| (–) Senior Exemption Loss: | – | $0 | |
| (–) Exemption Loss: | – | $0 | |
| | | -------------------------- | |
| (=) Taxable Value: | = | $495,912 | |
Taxing Jurisdiction
| Owner: | THOMPSON, GABRIEL | | |
| % Ownership: | 100.0000000000% | | |
| Total Value: | $495,912 | | |
| Tax Area: | 100 - APPRAISER-OH Schl Dist, in OH |
| CF | Conservation Futures | 0.0316035091 | $495,912 | $495,912 | $15.67 | | |
| CEM1 | Cemetery #1 | 0.0040320932 | $495,912 | $495,912 | $2.00 | | |
| COH | City of Oak Harbor | 2.3001546061 | $495,912 | $495,912 | $1,140.67 | | |
| OAKBOND | City of Oak Harbor BOND | 0.1926904192 | $495,912 | $495,912 | $95.56 | | |
| HOBOND | Hospital BOND | 0.1910887512 | $495,912 | $495,912 | $94.76 | | |
| HOGEN | Hospital GEN | 0.3902502903 | $495,912 | $495,912 | $193.53 | | |
| CE | County Current Expense | 0.3708482477 | $495,912 | $495,912 | $183.91 | | |
| ISLANDEMS | Hospital GEN (EMS) | 0.5000000000 | $495,912 | $495,912 | $247.96 | | |
| LIB | Library Sno-Isle GEN | 0.3153421757 | $495,912 | $495,912 | $156.38 | | |
| NWHIDPRMT | P & R N Whidbey GEN | 0.2004466701 | $495,912 | $495,912 | $99.40 | | |
| SCH201MO | School 201 Enrichment | 1.8559231640 | $495,912 | $495,912 | $920.37 | | |
| ST | State School | 1.3035497053 | $495,912 | $495,912 | $646.45 | | |
| ST2 | State School Part 2 | 0.8169543533 | $495,912 | $495,912 | $405.14 | | |
| | Total Tax Rate: | 8.4728839852 | | | | | |
| | | | | Taxes w/Current Exemptions: | $4,201.80 | | |
| | | | | Taxes w/o Exemptions: | $4,201.80 | | |
Improvement / Building
| Improvement #1: | RESIDENTIAL | State Code: | Y | 1853.3 sqft | Value: | $295,912 |
| Bathrooms: | 2.5 | Bedrooms: | 4 | | Ceiling: | DRYWALL PAINTED | Exterior Wall/Cover: | CEMENT FIBER | | Floor Covering: | CARPET/VINYL 60-40 | Floor Structure: | WOOD W/SUBFLOOR | | Foundation: | CONCRETE | Heating: | FHA GAS | | Interior Finish: | DRYWALL PAINT | Plumbing Fixture Cnt: | 11 | | Roof Slope: | 6" IN 12" | Roof Structure/Cover: | CJ ASPHALT |
|
| | Type | Description | Class CD | Sub Class CD | Year Built | Area |
| | BAS | BASE/MAIN FLOOR | 3 | 0 | 2000 | 1244.3 |
| | AGR | ATTACHED GARAGE | 3 | 0 | 2000 | 400.0 |
| | UPS | UPPER STORY | 3 | 0 | 2000 | 609.0 |
| | OWC | OPEN WOOD PORCH W/STEPS/ROOF/C | 3 | 0 | 2000 | 101.5 |
Sketch
Property Image
Land
| 1 | 13 | SQ (06001-08000) | 0.0000 | 0.00 | 0.00 | 0.00 | 1.00 | $200,000 | $0 |
Roll Value History
| 2026 | N/A | N/A | N/A | N/A | N/A |
| 2025 | $295,912 | $200,000 | $0 | $495,912 | $495,912 |
| 2024 | $299,466 | $190,000 | $0 | $489,466 | $489,466 |
| 2023 | $286,996 | $190,000 | $0 | $476,996 | $476,996 |
| 2022 | $263,077 | $190,000 | $0 | $453,077 | $453,077 |
| 2021 | $231,537 | $125,000 | $0 | $356,537 | $356,537 |
| 2020 | $225,631 | $120,000 | $0 | $345,631 | $345,631 |
| 2019 | $168,059 | $140,000 | $0 | $308,059 | $308,059 |
| 2018 | $168,552 | $130,000 | $0 | $298,552 | $298,552 |
| 2017 | $152,616 | $120,000 | $0 | $272,616 | $272,616 |
| 2016 | $154,477 | $90,000 | $0 | $244,477 | $244,477 |
| 2015 | $156,337 | $65,000 | $0 | $221,337 | $221,337 |
| 2014 | $158,198 | $55,000 | $0 | $213,198 | $213,198 |
| 2013 | $160,060 | $55,000 | $0 | $215,060 | $215,060 |
| 2012 | $161,921 | $50,000 | $0 | $211,921 | $211,921 |
| 2011 | $168,487 | $50,000 | $0 | $218,487 | $218,487 |
| 2010 | $176,030 | $50,000 | $0 | $226,030 | $226,030 |
| 2009 | $183,481 | $75,000 | $0 | $258,481 | $258,481 |
| 2008 | $185,606 | $90,000 | $0 | $275,606 | $275,606 |
| 2007 | $185,797 | $90,000 | $0 | $275,797 | $275,797 |
Deed and Sales History
| 1 | 11/14/2023 | WD | Warranty Deed | DELK, RICHARD R | THOMPSON, GABRIEL | | | $517,000.00 | 58668 | 4567265 |
| 2 | 01/16/2019 | WD | Warranty Deed | TUCKERMAN, WILLIAM B | DELK, RICHARD R | | | $312,500.00 | 37361 | 4458193 |
| 3 | 10/21/2004 | WD | Warranty Deed | NGUYEN, KHANAH K | TUCKERMAN, WILLIAM B | | | $210,000.00 | 45088 | 4116785 |
| 4 | 11/01/2000 | WD | Warranty Deed | HOMESTEAD, NW D | NGUYEN, KHANAH K | | | $172,002.00 | 4232 | 20019365 |
| 5 | 01/01/1900 | OTHER | Other - Misc. Documents | Unknown | HOMESTEAD, NW D | | | $0.00 | 72467 | 97011618 |
Payout Agreement
| No payout information available.. |