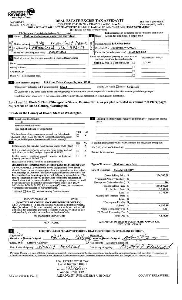
Property
Account |
| Property ID: | 759691 | Abbreviated Legal Description: | SWANTOWN RIDGE #1 LOT 22 |
| Geographic ID: | S8287-00-00022-0 | Agent Code: | |
| Type: | Real | | |
| Tax Area: | 100 - APPRAISER-OH Schl Dist, in OH | Land Use Code | 11 |
| Open Space: | N | DFL | N |
| Historic Property: | N | Remodel Property: | N |
| Multi-Family Redevelopment: | N | | |
| Township: | | Section: | |
| Range: | |
Location |
| Address: | 1154 SW THORNBERRY DR OAK HARBOR, WA 98277 | Mapsco: | |
| Neighborhood: | Cycle 1 | Map ID: | 97 |
| Neighborhood CD: | 1 |
Owner |
| Name: | WILLIAMS, DOMINIKQUE O | Owner ID: | 293761 |
| Mailing Address: | 5000 K AVE APT 2716 PLANO, TX 75074-3048 | % Ownership: | 100.0000000000% |
| | | Exemptions: | |
Taxes and Assessment Details
Values
| (+) Improvement Homesite Value: | + | $0 | |
| (+) Improvement Non-Homesite Value: | + | $192,875 | |
| (+) Land Homesite Value: | + | $0 | |
| (+) Land Non-Homesite Value: | + | $200,000 | |
| (+) Curr Use (HS): | + | $0 | $0 |
| (+) Curr Use (NHS): | + | $0 | $0 |
| | | -------------------------- | |
| (=) Market Value: | = | $392,875 | |
| (–) Productivity Loss: | – | $0 | |
| | | -------------------------- | |
| (=) Subtotal: | = | $392,875 | |
| (+) Senior Appraised Value: | + | $0 | |
| (+) Non-Senior Appraised Value: | + | $392,875 | |
| | | -------------------------- | |
| (=) Total Appraised Value: | = | $392,875 | |
| (–) Senior Exemption Loss: | – | $0 | |
| (–) Exemption Loss: | – | $0 | |
| | | -------------------------- | |
| (=) Taxable Value: | = | $392,875 | |
Taxing Jurisdiction
| Owner: | WILLIAMS, DOMINIKQUE O | | |
| % Ownership: | 100.0000000000% | | |
| Total Value: | $392,875 | | |
| Tax Area: | 100 - APPRAISER-OH Schl Dist, in OH |
| CF | Conservation Futures | 0.0316035091 | $392,875 | $392,875 | $12.42 | | |
| CEM1 | Cemetery #1 | 0.0040320932 | $392,875 | $392,875 | $1.58 | | |
| COH | City of Oak Harbor | 2.3001546061 | $392,875 | $392,875 | $903.67 | | |
| OAKBOND | City of Oak Harbor BOND | 0.1926904192 | $392,875 | $392,875 | $75.70 | | |
| HOBOND | Hospital BOND | 0.1910887512 | $392,875 | $392,875 | $75.07 | | |
| HOGEN | Hospital GEN | 0.3902502903 | $392,875 | $392,875 | $153.32 | | |
| CE | County Current Expense | 0.3708482477 | $392,875 | $392,875 | $145.70 | | |
| ISLANDEMS | Hospital GEN (EMS) | 0.5000000000 | $392,875 | $392,875 | $196.44 | | |
| LIB | Library Sno-Isle GEN | 0.3153421757 | $392,875 | $392,875 | $123.89 | | |
| NWHIDPRMT | P & R N Whidbey GEN | 0.2004466701 | $392,875 | $392,875 | $78.75 | | |
| SCH201MO | School 201 Enrichment | 1.8559231640 | $392,875 | $392,875 | $729.15 | | |
| ST | State School | 1.3035497053 | $392,875 | $392,875 | $512.13 | | |
| ST2 | State School Part 2 | 0.8169543533 | $392,875 | $392,875 | $320.96 | | |
| | Total Tax Rate: | 8.4728839852 | | | | | |
| | | | | Taxes w/Current Exemptions: | $3,328.78 | | |
| | | | | Taxes w/o Exemptions: | $3,328.78 | | |
Improvement / Building
| Improvement #1: | RESIDENTIAL | State Code: | Y | 954.8 sqft | Value: | $192,875 |
| Bathrooms: | 1 | Bedrooms: | 2 | | Ceiling: | DRYWALL PAINTED | Exterior Wall/Cover: | PLY/HARDBOARD T-111 | | Floor Covering: | CARPET/VINYL 80-20 | Floor Structure: | WOOD W/SUBFLOOR | | Foundation: | CONCRETE | Heating: | FHA GAS | | Interior Finish: | DRYWALL PAINT | Plumbing Fixture Cnt: | 6 | | Roof Slope: | 6" IN 12" | Roof Structure/Cover: | CJ ASPHALT |
|
| | Type | Description | Class CD | Sub Class CD | Year Built | Area |
| | BAS | BASE/MAIN FLOOR | 3 | 0 | 1998 | 954.8 |
| | AGR | ATTACHED GARAGE | 3 | 0 | 1998 | 400.0 |
| | OWC | OPEN WOOD PORCH W/STEPS/ROOF/C | 3 | 0 | 1998 | 95.0 |
Sketch
Property Image
Land
| 1 | 13 | SQ (06001-08000) | 0.0000 | 0.00 | 0.00 | 0.00 | 1.00 | $200,000 | $0 |
Roll Value History
| 2026 | N/A | N/A | N/A | N/A | N/A |
| 2025 | $192,875 | $200,000 | $0 | $392,875 | $392,875 |
| 2024 | $195,219 | $190,000 | $0 | $385,219 | $385,219 |
| 2023 | $190,530 | $190,000 | $0 | $380,530 | $380,530 |
| 2022 | $174,654 | $190,000 | $0 | $364,654 | $364,654 |
| 2021 | $153,718 | $125,000 | $0 | $278,718 | $278,718 |
| 2020 | $149,702 | $120,000 | $0 | $269,702 | $269,702 |
| 2019 | $107,107 | $140,000 | $0 | $247,107 | $247,107 |
| 2018 | $107,420 | $130,000 | $0 | $237,420 | $237,420 |
| 2017 | $95,331 | $120,000 | $0 | $215,331 | $215,331 |
| 2016 | $96,523 | $90,000 | $0 | $186,523 | $182,714 |
| 2015 | $97,714 | $85,000 | $0 | $182,714 | $182,714 |
| 2014 | $98,905 | $85,000 | $0 | $183,905 | $183,905 |
| 2013 | $100,098 | $85,000 | $0 | $185,098 | $185,098 |
| 2012 | $101,289 | $85,000 | $0 | $186,289 | $186,289 |
| 2011 | $104,212 | $85,000 | $0 | $189,212 | $189,212 |
| 2010 | $107,575 | $85,000 | $0 | $192,575 | $192,575 |
| 2009 | $112,212 | $100,000 | $0 | $212,212 | $212,212 |
| 2008 | $113,607 | $90,000 | $0 | $203,607 | $203,607 |
| 2007 | $114,991 | $90,000 | $0 | $204,991 | $204,991 |
Deed and Sales History
| 1 | 03/10/2020 | WD | Warranty Deed | CASTLEMAN JR, CONNELY OGWIN | WILLIAMS, DOMINIKQUE O | | | $300,000.00 | 42403 | 4483148 |
| 2 | 08/28/2019 | WD | Warranty Deed | MATTSON, DEBORAH | CASTLEMAN JR, CONNELY OGWIN | | | $275,000.00 | 40183 | 4471052 |
| 3 | 09/21/1998 | WD | Warranty Deed | HOMESTEAD, NW D | MATTSON, DEBORAH | | | $123,595.00 | 83794 | 98020494 |
| 4 | 01/01/1900 | OTHER | Other - Misc. Documents | Unknown | HOMESTEAD, NW D | | | $0.00 | 72467 | 97011618 |
Payout Agreement
| No payout information available.. |