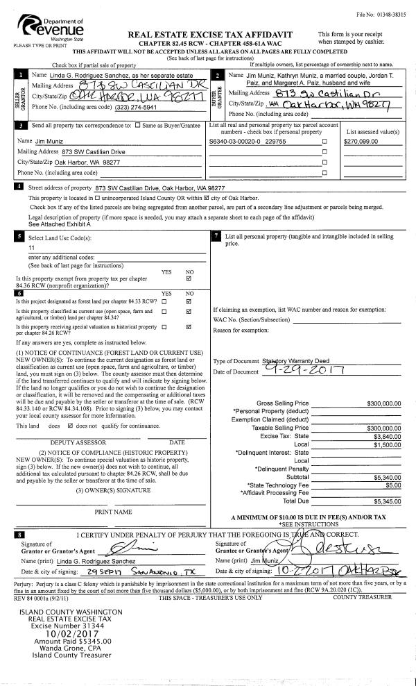
Property
Account |
| Property ID: | 759986 | Abbreviated Legal Description: | SWANTOWN RIDGE #1 LOT 51 |
| Geographic ID: | S8287-00-00051-0 | Agent Code: | |
| Type: | Real | | |
| Tax Area: | 100 - APPRAISER-OH Schl Dist, in OH | Land Use Code | 11 |
| Open Space: | N | DFL | N |
| Historic Property: | N | Remodel Property: | N |
| Multi-Family Redevelopment: | N | | |
| Township: | | Section: | |
| Range: | |
Location |
| Address: | 874 SW THORNBERRY DR OAK HARBOR, WA 98277 | Mapsco: | |
| Neighborhood: | Cycle 1 | Map ID: | 97 |
| Neighborhood CD: | 1 |
Owner |
| Name: | BAUER, DUANE A | Owner ID: | 178725 |
| Mailing Address: | MARSHA A BAUER 874 SW THORNBERRY DR OAK HARBOR, WA 98277-7244 | % Ownership: | 100.0000000000% |
| | | Exemptions: | |
Taxes and Assessment Details
Values
| (+) Improvement Homesite Value: | + | $0 | |
| (+) Improvement Non-Homesite Value: | + | $279,402 | |
| (+) Land Homesite Value: | + | $0 | |
| (+) Land Non-Homesite Value: | + | $200,000 | |
| (+) Curr Use (HS): | + | $0 | $0 |
| (+) Curr Use (NHS): | + | $0 | $0 |
| | | -------------------------- | |
| (=) Market Value: | = | $479,402 | |
| (–) Productivity Loss: | – | $0 | |
| | | -------------------------- | |
| (=) Subtotal: | = | $479,402 | |
| (+) Senior Appraised Value: | + | $0 | |
| (+) Non-Senior Appraised Value: | + | $479,402 | |
| | | -------------------------- | |
| (=) Total Appraised Value: | = | $479,402 | |
| (–) Senior Exemption Loss: | – | $0 | |
| (–) Exemption Loss: | – | $0 | |
| | | -------------------------- | |
| (=) Taxable Value: | = | $479,402 | |
Taxing Jurisdiction
| Owner: | BAUER, DUANE A | | |
| % Ownership: | 100.0000000000% | | |
| Total Value: | $479,402 | | |
| Tax Area: | 100 - APPRAISER-OH Schl Dist, in OH |
| CF | Conservation Futures | 0.0316035091 | $479,402 | $479,402 | $15.15 | | |
| CEM1 | Cemetery #1 | 0.0040320932 | $479,402 | $479,402 | $1.93 | | |
| COH | City of Oak Harbor | 2.3001546061 | $479,402 | $479,402 | $1,102.70 | | |
| OAKBOND | City of Oak Harbor BOND | 0.1926904192 | $479,402 | $479,402 | $92.38 | | |
| HOBOND | Hospital BOND | 0.1910887512 | $479,402 | $479,402 | $91.61 | | |
| HOGEN | Hospital GEN | 0.3902502903 | $479,402 | $479,402 | $187.09 | | |
| CE | County Current Expense | 0.3708482477 | $479,402 | $479,402 | $177.79 | | |
| ISLANDEMS | Hospital GEN (EMS) | 0.5000000000 | $479,402 | $479,402 | $239.70 | | |
| LIB | Library Sno-Isle GEN | 0.3153421757 | $479,402 | $479,402 | $151.18 | | |
| NWHIDPRMT | P & R N Whidbey GEN | 0.2004466701 | $479,402 | $479,402 | $96.09 | | |
| SCH201MO | School 201 Enrichment | 1.8559231640 | $479,402 | $479,402 | $889.73 | | |
| ST | State School | 1.3035497053 | $479,402 | $479,402 | $624.92 | | |
| ST2 | State School Part 2 | 0.8169543533 | $479,402 | $479,402 | $391.65 | | |
| | Total Tax Rate: | 8.4728839852 | | | | | |
| | | | | Taxes w/Current Exemptions: | $4,061.92 | | |
| | | | | Taxes w/o Exemptions: | $4,061.92 | | |
Improvement / Building
| Improvement #1: | RESIDENTIAL | State Code: | Y | 1680.0 sqft | Value: | $279,402 |
| Bathrooms: | 2.5 | Bedrooms: | 3 | | Ceiling: | DRYWALL PAINTED | Exterior Wall/Cover: | VINYL | | Floor Covering: | HARDWOOD/CARP 60-40 | Floor Structure: | WOOD W/SUBFLOOR | | Foundation: | CONCRETE | Heating: | FHA GAS | | Interior Finish: | DRYWALL PAINT | Plumbing Fixture Cnt: | 11 | | Roof Slope: | 6" IN 12" | Roof Structure/Cover: | CJ ASPHALT |
|
| | Type | Description | Class CD | Sub Class CD | Year Built | Area |
| | BAS | BASE/MAIN FLOOR | 3 | 0 | 1998 | 840.0 |
| | AGR | ATTACHED GARAGE | 3 | 0 | 1998 | 400.0 |
| | UPS | UPPER STORY | 3 | 0 | 1998 | 840.0 |
| | OWC | OPEN WOOD PORCH W/STEPS/ROOF/C | 3 | 0 | 1998 | 150.0 |
Sketch
Property Image
Land
| 1 | 13 | SQ (06001-08000) | 0.0000 | 0.00 | 0.00 | 0.00 | 1.00 | $200,000 | $0 |
Roll Value History
| 2026 | N/A | N/A | N/A | N/A | N/A |
| 2025 | $279,402 | $200,000 | $0 | $479,402 | $479,402 |
| 2024 | $282,927 | $190,000 | $0 | $472,927 | $472,927 |
| 2023 | $279,402 | $190,000 | $0 | $469,402 | $469,402 |
| 2022 | $256,196 | $190,000 | $0 | $446,196 | $446,196 |
| 2021 | $225,556 | $125,000 | $0 | $350,556 | $350,556 |
| 2020 | $219,805 | $120,000 | $0 | $339,805 | $339,805 |
| 2019 | $160,644 | $140,000 | $0 | $300,644 | $300,644 |
| 2018 | $161,127 | $130,000 | $0 | $291,127 | $291,127 |
| 2017 | $139,749 | $120,000 | $0 | $259,749 | $259,749 |
| 2016 | $141,496 | $90,000 | $0 | $231,496 | $231,496 |
| 2015 | $143,243 | $65,000 | $0 | $208,243 | $208,243 |
| 2014 | $144,990 | $55,000 | $0 | $199,990 | $199,990 |
| 2013 | $146,737 | $55,000 | $0 | $201,737 | $201,737 |
| 2012 | $148,484 | $50,000 | $0 | $198,484 | $198,484 |
| 2011 | $161,043 | $50,000 | $0 | $211,043 | $211,043 |
| 2010 | $168,555 | $50,000 | $0 | $218,555 | $218,555 |
| 2009 | $176,028 | $75,000 | $0 | $251,028 | $251,028 |
| 2008 | $178,513 | $90,000 | $0 | $268,513 | $268,513 |
| 2007 | $181,014 | $90,000 | $0 | $271,014 | $271,014 |
Deed and Sales History
| 1 | 11/25/2003 | WD | Warranty Deed | HOGAN, SCOTT M | BAUER, DUANE A | | | $200,000.00 | 35404 | 4084706 |
| 2 | 11/14/1998 | WD | Warranty Deed | HOMESTEAD, NW D | HOGAN, SCOTT M | | | $173,700.00 | 84593 | 98025033 |
| 3 | 01/01/1900 | OTHER | Other - Misc. Documents | Unknown | HOMESTEAD, NW D | | | $0.00 | 72467 | 97011618 |
Payout Agreement
| No payout information available.. |