Property
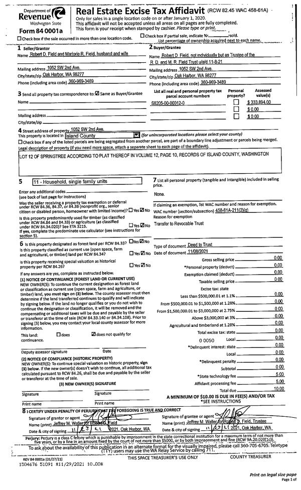
Account |
| Property ID: | 760019 | Abbreviated Legal Description: | SWANTOWN RIDGE #1 LOT 54 |
| Geographic ID: | S8287-00-00054-0 | Agent Code: | |
| Type: | Real | | |
| Tax Area: | 100 - APPRAISER-OH Schl Dist, in OH | Land Use Code | 11 |
| Open Space: | N | DFL | N |
| Historic Property: | N | Remodel Property: | N |
| Multi-Family Redevelopment: | N | | |
| Township: | | Section: | |
| Range: | |
Location |
| Address: | 950 SW UPLAND CT OAK HARBOR, WA 98277 | Mapsco: | |
| Neighborhood: | Cycle 1 | Map ID: | 97 |
| Neighborhood CD: | 1 |
Owner |
| Name: | STONEHAM, JACQUELYN D | Owner ID: | 299329 |
| Mailing Address: | 950 SW UPLAND CT OAK HARBOR, WA 98277 | % Ownership: | 100.0000000000% |
| | | Exemptions: | |
Taxes and Assessment Details
Values
| (+) Improvement Homesite Value: | + | $0 | |
| (+) Improvement Non-Homesite Value: | + | $328,415 | |
| (+) Land Homesite Value: | + | $0 | |
| (+) Land Non-Homesite Value: | + | $200,000 | |
| (+) Curr Use (HS): | + | $0 | $0 |
| (+) Curr Use (NHS): | + | $0 | $0 |
| | | -------------------------- | |
| (=) Market Value: | = | $528,415 | |
| (–) Productivity Loss: | – | $0 | |
| | | -------------------------- | |
| (=) Subtotal: | = | $528,415 | |
| (+) Senior Appraised Value: | + | $0 | |
| (+) Non-Senior Appraised Value: | + | $528,415 | |
| | | -------------------------- | |
| (=) Total Appraised Value: | = | $528,415 | |
| (–) Senior Exemption Loss: | – | $0 | |
| (–) Exemption Loss: | – | $0 | |
| | | -------------------------- | |
| (=) Taxable Value: | = | $528,415 | |
Taxing Jurisdiction
| Owner: | STONEHAM, JACQUELYN D | | |
| % Ownership: | 100.0000000000% | | |
| Total Value: | $528,415 | | |
| Tax Area: | 100 - APPRAISER-OH Schl Dist, in OH |
| CF | Conservation Futures | 0.0316035091 | $528,415 | $528,415 | $16.70 | | |
| CEM1 | Cemetery #1 | 0.0040320932 | $528,415 | $528,415 | $2.13 | | |
| COH | City of Oak Harbor | 2.3001546061 | $528,415 | $528,415 | $1,215.44 | | |
| OAKBOND | City of Oak Harbor BOND | 0.1926904192 | $528,415 | $528,415 | $101.82 | | |
| HOBOND | Hospital BOND | 0.1910887512 | $528,415 | $528,415 | $100.97 | | |
| HOGEN | Hospital GEN | 0.3902502903 | $528,415 | $528,415 | $206.21 | | |
| CE | County Current Expense | 0.3708482477 | $528,415 | $528,415 | $195.96 | | |
| ISLANDEMS | Hospital GEN (EMS) | 0.5000000000 | $528,415 | $528,415 | $264.21 | | |
| LIB | Library Sno-Isle GEN | 0.3153421757 | $528,415 | $528,415 | $166.63 | | |
| NWHIDPRMT | P & R N Whidbey GEN | 0.2004466701 | $528,415 | $528,415 | $105.92 | | |
| SCH201MO | School 201 Enrichment | 1.8559231640 | $528,415 | $528,415 | $980.70 | | |
| ST | State School | 1.3035497053 | $528,415 | $528,415 | $688.82 | | |
| ST2 | State School Part 2 | 0.8169543533 | $528,415 | $528,415 | $431.69 | | |
| | Total Tax Rate: | 8.4728839852 | | | | | |
| | | | | Taxes w/Current Exemptions: | $4,477.20 | | |
| | | | | Taxes w/o Exemptions: | $4,477.20 | | |
Improvement / Building
| Improvement #1: | RESIDENTIAL | State Code: | Y | 2319.3 sqft | Value: | $328,415 |
| Bathrooms: | 2.5 | Bedrooms: | 4 | | Ceiling: | DRYWALL PAINTED | Exterior Wall/Cover: | PLY/HARDBOARD T-111 | | Floor Covering: | CARPET/VINYL 80-20 | Floor Structure: | WOOD W/SUBFLOOR | | Foundation: | CONCRETE | Heating: | FHA GAS | | Interior Finish: | DRYWALL PAINT | Plumbing Fixture Cnt: | 11 | | Roof Slope: | 6" IN 12" | Roof Structure/Cover: | CJ ASPHALT |
|
| | Type | Description | Class CD | Sub Class CD | Year Built | Area |
| | BAS | BASE/MAIN FLOOR | 3 | 0 | 1998 | 1175.3 |
| | AGR | ATTACHED GARAGE | 3 | 0 | 1998 | 460.0 |
| | OP3 | OPEN PORCH W/ROOF | 3 | 0 | 1998 | 240.0 |
| | UPS | UPPER STORY | 3 | 0 | 1998 | 1144.0 |
| | OWC | OPEN WOOD PORCH W/STEPS/ROOF/C | 3 | 0 | 1998 | 152.5 |
Sketch
Property Image
Land
| 1 | 13 | SQ (06001-08000) | 0.0000 | 0.00 | 0.00 | 0.00 | 1.00 | $200,000 | $0 |
Roll Value History
| 2026 | N/A | N/A | N/A | N/A | N/A |
| 2025 | $328,415 | $200,000 | $0 | $528,415 | $528,415 |
| 2024 | $332,509 | $190,000 | $0 | $522,509 | $522,509 |
| 2023 | $324,322 | $190,000 | $0 | $514,322 | $514,322 |
| 2022 | $297,375 | $190,000 | $0 | $487,375 | $487,375 |
| 2021 | $261,806 | $125,000 | $0 | $386,806 | $386,806 |
| 2020 | $255,547 | $120,000 | $0 | $375,547 | $375,547 |
| 2019 | $197,211 | $140,000 | $0 | $337,211 | $337,211 |
| 2018 | $197,805 | $130,000 | $0 | $327,805 | $327,805 |
| 2017 | $176,276 | $120,000 | $0 | $296,276 | $296,276 |
| 2016 | $178,477 | $90,000 | $0 | $268,477 | $268,477 |
| 2015 | $180,680 | $65,000 | $0 | $245,680 | $245,680 |
| 2014 | $182,884 | $55,000 | $0 | $237,884 | $237,884 |
| 2013 | $185,088 | $55,000 | $0 | $240,088 | $240,088 |
| 2012 | $187,291 | $50,000 | $0 | $237,291 | $237,291 |
| 2011 | $195,697 | $50,000 | $0 | $245,697 | $245,697 |
| 2010 | $198,651 | $50,000 | $0 | $248,651 | $248,651 |
| 2009 | $207,248 | $75,000 | $0 | $282,248 | $282,248 |
| 2008 | $209,867 | $90,000 | $0 | $299,867 | $299,867 |
| 2007 | $212,470 | $90,000 | $0 | $302,470 | $302,470 |
Deed and Sales History
| 1 | 05/05/2021 | QCD | Quit Claim Deed | STONEHAM, THOMAS E | STONEHAM, JACQUELYN D | | | $0.00 | 48205 | 4519014 |
| 2 | 08/31/1998 | WD | Warranty Deed | STONEHAM, THOMAS E | STONEHAM, THOMAS E | | | $169,186.00 | 83482 | 98018148 |
| 3 | 01/01/1900 | OTHER | Other - Misc. Documents | Unknown | HOMESTEAD, NW D | | | $0.00 | 72467 | 97011618 |
| 4 | 01/01/1900 | OTHER | Other - Misc. Documents | HOMESTEAD, NW D | STONEHAM, THOMAS E | | | $0.00 | 83482 | 98018148 |
Payout Agreement
| No payout information available.. |