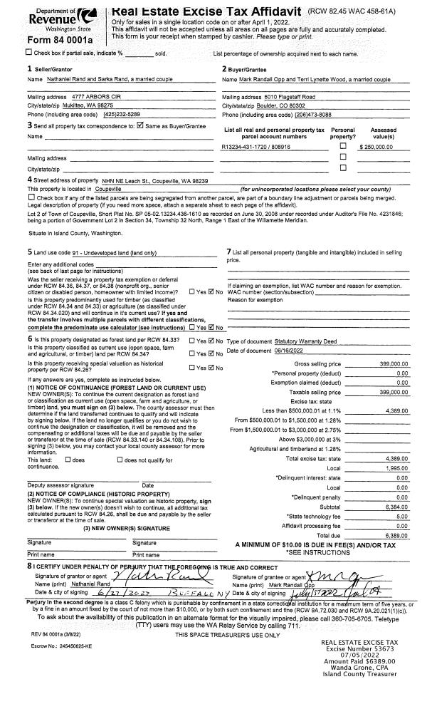
Property
Account |
| Property ID: | 76018 | Abbreviated Legal Description: | 70 - NE NE NW SW EX W30'TO IS CO AF#204441 |
| Geographic ID: | R23111-255-1210 | Agent Code: | |
| Type: | Real | | |
| Tax Area: | 512 - APPRAISER-Stan/Cam Schl Dist, improved, greater than 1 acre | Land Use Code | 11 |
| Open Space: | N | DFL | N |
| Historic Property: | N | Remodel Property: | N |
| Multi-Family Redevelopment: | N | | |
| Township: | 31 | Section: | 11 |
| Range: | R2 |
Location |
| Address: | 623 COMFORT CT CAMANO ISLAND, WA 98282 | Mapsco: | |
| Neighborhood: | Cycle 5 | Map ID: | 469 |
| Neighborhood CD: | 5 |
Owner |
| Name: | WILCOX CO TRUSTEE, CLIFFORD WAYNE | Owner ID: | 267285 |
| Mailing Address: | ELIZABETH MARY METCALFE CO TRUSTEE 623 COMFORT COURT CAMANO ISLAND, WA 98282 | % Ownership: | 100.0000000000% |
| | | Exemptions: | SNR/DSBL |
Taxes and Assessment Details
Values
| (+) Improvement Homesite Value: | + | $299,063 | |
| (+) Improvement Non-Homesite Value: | + | $0 | |
| (+) Land Homesite Value: | + | $300,000 | |
| (+) Land Non-Homesite Value: | + | $0 | |
| (+) Curr Use (HS): | + | $0 | $0 |
| (+) Curr Use (NHS): | + | $0 | $0 |
| | | -------------------------- | |
| (=) Market Value: | = | $599,063 | |
| (–) Productivity Loss: | – | $0 | |
| | | -------------------------- | |
| (=) Subtotal: | = | $599,063 | |
| (+) Senior Appraised Value: | + | $582,838 | |
| (+) Non-Senior Appraised Value: | + | $0 | |
| | | -------------------------- | |
| (=) Total Appraised Value: | = | $582,838 | |
| (–) Senior Exemption Loss: | – | $0 | |
| (–) Exemption Loss: | – | $0 | |
| | | -------------------------- | |
| (=) Taxable Value: | = | $582,838 | |
Taxing Jurisdiction
| Owner: | WILCOX CO TRUSTEE, CLIFFORD WAYNE | | |
| % Ownership: | 100.0000000000% | | |
| Total Value: | $599,063 | | |
| Tax Area: | 512 - APPRAISER-Stan/Cam Schl Dist, improved, greater than 1 acre |
| CF | Conservation Futures | 0.0316035091 | $599,063 | $582,838 | $18.42 | | |
| EMS1 | Fire & Rescue Dist #1 Camano GEN (EMS) | 0.3677864386 | $599,063 | $582,838 | $214.36 | | |
| FIRE1 | Fire & Rescue Dist #1 Camano GEN | 1.2502910536 | $599,063 | $582,838 | $728.72 | | |
| FIRE1BOND | Fire & Rescue Dist #1 Camano BOND | 0.0000000000 | $599,063 | $0 | $0.00 | | |
| CE | County Current Expense | 0.3708482477 | $599,063 | $582,838 | $216.14 | | |
| CR | County Roads | 0.4584763726 | $599,063 | $582,838 | $267.22 | | |
| LCIB | Library Sno-Isle BOND (Camano Island) | 0.0000000000 | $599,063 | $0 | $0.00 | | |
| LIB | Library Sno-Isle GEN | 0.3153421757 | $599,063 | $582,838 | $183.79 | | |
| SCH205_401 | School 205-401 Enrichment | 0.0000000000 | $599,063 | $0 | $0.00 | | |
| SCH205BOND | School 205-401 BOND | 0.0000000000 | $599,063 | $0 | $0.00 | | |
| ST | State School | 1.3035497053 | $599,063 | $582,838 | $759.76 | | |
| ST2 | State School Part 2 | 0.0000000000 | $599,063 | $0 | $0.00 | | |
| | Total Tax Rate: | 4.0978975026 | | | | | |
| | | | | Taxes w/Current Exemptions: | $2,388.41 | | |
| | | | | Taxes w/o Exemptions: | $4,385.73 | | |
Improvement / Building
| Improvement #1: | RESIDENTIAL | State Code: | Y | 2424.0 sqft | Value: | $299,063 |
| Bathrooms: | 3 | Bedrooms: | 3 | | Ceiling: | DRYWALL PAINTED | Exterior Wall/Cover: | PLY/HARDBOARD T-111 | | Floor Covering: | CARPET/VINYL 80-20 | Floor Structure: | WOOD W/SUBFLOOR | | Foundation: | CONCRETE | Heating: | WALL HEAT ELECTRIC | | Interior Finish: | DRYWALL PAINT | Plumbing Fixture Cnt: | 12 | | Roof Slope: | 4" IN 12" | Roof Structure/Cover: | CJ ASPHALT |
|
| | Type | Description | Class CD | Sub Class CD | Year Built | Area |
| | BAS | BASE/MAIN FLOOR | 3 | 0 | 1995 | 1490.0 |
| | BIG | BUILT IN GARAGE | 3 | 0 | 1995 | 506.0 |
| | OWP | OPEN WOOD PORCH W/STEPS | 3 | 0 | 1995 | 66.0 |
| | OWP | OPEN WOOD PORCH W/STEPS | 3 | 0 | 1995 | 120.0 |
| | DWN | DOWNSTAIRS LIVING AREA | 3 | 0 | 1995 | 934.0 |
| | CPD | OPEN CARPORT DIRT FLOOR | 3 | 0 | 1995 | 312.0 |
Sketch
Property Image
Land
| 1 | 18 | AC (02.01-03.00) | 2.2700 | 98881.20 | 0.00 | 0.00 | 1.00 | $300,000 | $0 |
Roll Value History
| 2026 | N/A | N/A | N/A | N/A | N/A |
| 2025 | $299,063 | $300,000 | $0 | $599,063 | $582,838 |
| 2024 | $302,838 | $280,000 | $0 | $582,838 | $582,838 |
| 2023 | $306,611 | $270,000 | $0 | $576,611 | $576,611 |
| 2022 | $281,057 | $260,000 | $0 | $541,057 | $541,057 |
| 2021 | $241,419 | $180,000 | $0 | $421,419 | $421,419 |
| 2020 | $232,764 | $150,000 | $0 | $382,764 | $382,764 |
| 2019 | $179,519 | $200,000 | $0 | $379,519 | $379,519 |
| 2018 | $180,059 | $150,000 | $0 | $330,059 | $330,059 |
| 2017 | $181,136 | $135,000 | $0 | $316,136 | $316,136 |
| 2016 | $183,293 | $140,000 | $0 | $323,293 | $323,293 |
| 2015 | $177,444 | $63,200 | $0 | $240,644 | $240,644 |
| 2014 | $179,647 | $63,200 | $0 | $242,847 | $242,847 |
| 2013 | $181,850 | $63,200 | $0 | $245,050 | $245,050 |
| 2012 | $184,054 | $63,200 | $0 | $247,254 | $247,254 |
| 2011 | $186,257 | $79,000 | $0 | $265,257 | $265,257 |
| 2010 | $192,623 | $79,000 | $0 | $271,623 | $271,623 |
| 2009 | $199,091 | $130,000 | $0 | $329,091 | $329,091 |
| 2008 | $201,547 | $125,235 | $0 | $326,782 | $326,782 |
| 2007 | $204,044 | $125,235 | $0 | $329,279 | $329,279 |
Deed and Sales History
| 1 | 07/10/2014 | WD | Warranty Deed | METCALFE, ELIZABETH M | WILCOX CO TRUSTEE, CLIFFORD WAYNE | | | $0.00 | 16145 | 4362864 |
| 2 | 10/09/2011 | ESTSEPPROP | Establish Separate Property | METCALFE, ELIZABETH | METCALFE, ELIZABETH M | | | $0.00 | 6130 | 4304806 |
| 3 | 07/13/2003 | DECREE | Divorce Decree/Legal Separation | METCALFE, ELIZABETH M | METCALFE, ELIZABETH | | | $0.00 | 33026 | 4066682 |
| 4 | 05/01/1996 | WD | Warranty Deed | GRANGER, DANIEL L | METCALFE, ELIZABETH M | | | $155,000.00 | 61548 | 96007656 |
| 5 | 10/01/1995 | WD | Warranty Deed | GRANGER, DANIEL L | GRANGER, DANIEL L | | | $32,500.00 | 53589 | 95016454 |
| 6 | 10/01/1995 | OTHER | Other - Misc. Documents | SPAETHE, MARTHA E | GRANGER, DANIEL L | | | $0.00 | 66682 | 204441 |
| 7 | 06/01/1982 | OTHER | Other - Misc. Documents | GIFFORD, MARTHA E | SPAETHE, MARTHA E | | | $1.00 | 59484 | 0 |
| 8 | 01/01/1900 | OTHER | Other - Misc. Documents | Unknown | GIFFORD, MARTHA E | | | $0.00 | 0 | 0 |
Payout Agreement
| No payout information available.. |