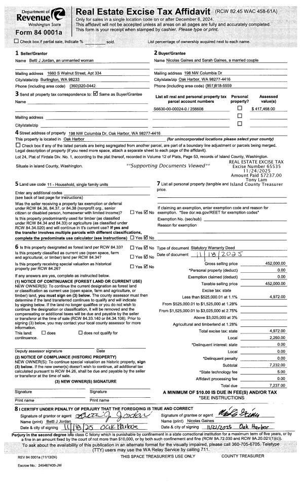
Property
Account |
| Property ID: | 760215 | Abbreviated Legal Description: | KATHWOOD - PRD LOT 15 |
| Geographic ID: | S7262-00-00015-0 | Agent Code: | |
| Type: | Real | | |
| Tax Area: | 110 - APPRAISER-OH Schl Dist, outside OH, improved & 1 acre or less | Land Use Code | 11 |
| Open Space: | N | DFL | N |
| Historic Property: | N | Remodel Property: | N |
| Multi-Family Redevelopment: | N | | |
| Township: | | Section: | |
| Range: | |
Location |
| Address: | 1390 JORDAN CT OAK HARBOR, WA 98277 | Mapsco: | |
| Neighborhood: | Cycle 1 | Map ID: | 137 |
| Neighborhood CD: | 1 |
Owner |
| Name: | WILSON, ERICA M | Owner ID: | 301085 |
| Mailing Address: | 1390 JORDAN CT OAK HARBOR, WA 98277 | % Ownership: | 100.0000000000% |
| | | Exemptions: | |
Taxes and Assessment Details
Values
| (+) Improvement Homesite Value: | + | $0 | |
| (+) Improvement Non-Homesite Value: | + | $243,722 | |
| (+) Land Homesite Value: | + | $0 | |
| (+) Land Non-Homesite Value: | + | $180,000 | |
| (+) Curr Use (HS): | + | $0 | $0 |
| (+) Curr Use (NHS): | + | $0 | $0 |
| | | -------------------------- | |
| (=) Market Value: | = | $423,722 | |
| (–) Productivity Loss: | – | $0 | |
| | | -------------------------- | |
| (=) Subtotal: | = | $423,722 | |
| (+) Senior Appraised Value: | + | $0 | |
| (+) Non-Senior Appraised Value: | + | $423,722 | |
| | | -------------------------- | |
| (=) Total Appraised Value: | = | $423,722 | |
| (–) Senior Exemption Loss: | – | $0 | |
| (–) Exemption Loss: | – | $0 | |
| | | -------------------------- | |
| (=) Taxable Value: | = | $423,722 | |
Taxing Jurisdiction
| Owner: | WILSON, ERICA M | | |
| % Ownership: | 100.0000000000% | | |
| Total Value: | $423,722 | | |
| Tax Area: | 110 - APPRAISER-OH Schl Dist, outside OH, improved & 1 acre or less |
| CF | Conservation Futures | 0.0316035091 | $423,722 | $423,722 | $13.39 | | |
| CEM1 | Cemetery #1 | 0.0040320932 | $423,722 | $423,722 | $1.71 | | |
| FIRE2 | Fire & Rescue Dist #2 N Whidbey GEN | 0.5475949600 | $423,722 | $423,722 | $232.03 | | |
| HOBOND | Hospital BOND | 0.1910887512 | $423,722 | $423,722 | $80.97 | | |
| HOGEN | Hospital GEN | 0.3902502903 | $423,722 | $423,722 | $165.36 | | |
| CE | County Current Expense | 0.3708482477 | $423,722 | $423,722 | $157.14 | | |
| CR | County Roads | 0.4584763726 | $423,722 | $423,722 | $194.27 | | |
| ISLANDEMS | Hospital GEN (EMS) | 0.5000000000 | $423,722 | $423,722 | $211.86 | | |
| LIB | Library Sno-Isle GEN | 0.3153421757 | $423,722 | $423,722 | $133.62 | | |
| NWHIDPRMT | P & R N Whidbey GEN | 0.2004466701 | $423,722 | $423,722 | $84.93 | | |
| SCH201MO | School 201 Enrichment | 1.8559231640 | $423,722 | $423,722 | $786.40 | | |
| ST | State School | 1.3035497053 | $423,722 | $423,722 | $552.34 | | |
| ST2 | State School Part 2 | 0.8169543533 | $423,722 | $423,722 | $346.16 | | |
| | Total Tax Rate: | 6.9861102925 | | | | | |
| | | | | Taxes w/Current Exemptions: | $2,960.18 | | |
| | | | | Taxes w/o Exemptions: | $2,960.18 | | |
Improvement / Building
| Improvement #1: | RESIDENTIAL | State Code: | Y | 1260.0 sqft | Value: | $243,722 |
| Bathrooms: | 2 | Bedrooms: | 3 | | Ceiling: | DRYWALL PAINTED | Exterior Wall/Cover: | VINYL | | Floor Covering: | CARPET/VINYL 80-20 | Floor Structure: | WOOD W/SUBFLOOR | | Foundation: | CONCRETE | Heating: | FHA GAS | | Interior Finish: | DRYWALL PAINT | Plumbing Fixture Cnt: | 9 | | Roof Slope: | 6" IN 12" | Roof Structure/Cover: | CJ ASPHALT |
|
| | Type | Description | Class CD | Sub Class CD | Year Built | Area |
| | BAS | BASE/MAIN FLOOR | 3 | 0 | 2000 | 1260.0 |
| | AGR | ATTACHED GARAGE | 3 | 0 | 2000 | 360.0 |
| | OWP | OPEN WOOD PORCH W/STEPS | 3 | 0 | 2000 | 311.9 |
| | OWR | OPEN WOOD PORCH W/STEPS/ROOF | 3 | 0 | 2000 | 60.0 |
Sketch
Property Image
Land
| 1 | 14 | SQ (08001-12000) | 0.0000 | 0.00 | 0.00 | 0.00 | 1.00 | $180,000 | $0 |
Roll Value History
| 2026 | N/A | N/A | N/A | N/A | N/A |
| 2025 | $243,722 | $180,000 | $0 | $423,722 | $423,722 |
| 2024 | $246,722 | $180,000 | $0 | $426,722 | $426,722 |
| 2023 | $253,811 | $190,000 | $0 | $443,811 | $443,811 |
| 2022 | $232,594 | $190,000 | $0 | $422,594 | $422,594 |
| 2021 | $188,755 | $120,000 | $0 | $308,755 | $308,755 |
| 2020 | $183,749 | $100,000 | $0 | $283,749 | $283,749 |
| 2019 | $131,270 | $150,000 | $0 | $281,270 | $281,270 |
| 2018 | $131,663 | $130,000 | $0 | $261,663 | $261,663 |
| 2017 | $119,686 | $110,000 | $0 | $229,686 | $229,686 |
| 2016 | $121,145 | $100,000 | $0 | $221,145 | $221,145 |
| 2015 | $122,605 | $55,000 | $0 | $177,605 | $177,605 |
| 2014 | $124,065 | $55,000 | $0 | $179,065 | $179,065 |
| 2013 | $125,524 | $55,000 | $0 | $180,524 | $180,524 |
| 2012 | $126,983 | $63,750 | $0 | $190,733 | $190,733 |
| 2011 | $133,281 | $75,000 | $0 | $208,281 | $208,281 |
| 2010 | $137,712 | $75,000 | $0 | $212,712 | $212,712 |
| 2009 | $143,702 | $80,000 | $0 | $223,702 | $223,702 |
| 2008 | $145,590 | $85,000 | $0 | $230,590 | $230,590 |
| 2007 | $145,923 | $85,650 | $0 | $231,573 | $231,573 |
Deed and Sales History
| 1 | 09/08/2021 | WD | Warranty Deed | CLAYTON, KRYSTAL | WILSON, ERICA M | | | $430,500.00 | 49980 | 4528807 |
| 2 | 08/07/2017 | WD | Warranty Deed | LAESSIG, MICHAEL | CLAYTON, KRYSTAL | | | $270,000.00 | 30577 | 4427899 |
| 3 | 04/09/2015 | ESTSEPPROP | Establish Separate Property | LAESSIG, MICHAEL | LAESSIG, MICHAEL | | | $0.00 | 19490 | 4378054 |
| 4 | 05/05/2015 | WD | Warranty Deed | STRASSBURG, GARY A | LAESSIG, MICHAEL | | | $233,000.00 | 19489 | 4378053 |
| 5 | 05/20/2013 | ESTSEPPROP | Establish Separate Property | STRASSBURG, GARY A | STRASSBURG, GARY A | | | $0.00 | 11396 | 4340414 |
| 6 | 08/10/2009 | WD | Warranty Deed | HOSSFELD, KAREN | STRASSBURG, GARY A | | | $224,000.00 | 92056 | 4259376 |
| 7 | 04/29/1999 | WD | Warranty Deed | SELF HELP HOUSING, | HOSSFELD, KAREN | | | $47,600.00 | 91604 | 99010313 |
| 8 | 06/15/1998 | WD | Warranty Deed | SELF-HELP, HOUSING | SELF HELP HOUSING, | | | $465,000.00 | 82377 | 98012272 |
| 9 | 01/01/1900 | OTHER | Other - Misc. Documents | Unknown | KATHWOOD, INC | | | $0.00 | 71897 | 97008706 |
Payout Agreement
| No payout information available.. |