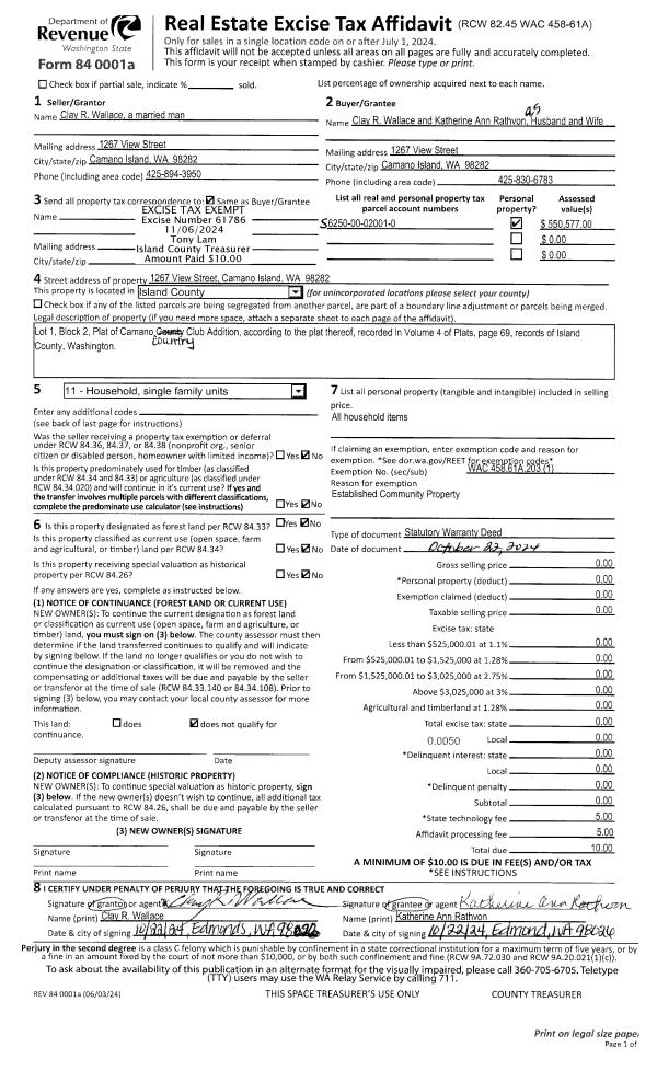
Property
Account |
| Property ID: | 760304 | Abbreviated Legal Description: | KATHWOOD - PRD LOT 24 |
| Geographic ID: | S7262-00-00024-0 | Agent Code: | |
| Type: | Real | | |
| Tax Area: | 110 - APPRAISER-OH Schl Dist, outside OH, improved & 1 acre or less | Land Use Code | 11 |
| Open Space: | N | DFL | N |
| Historic Property: | N | Remodel Property: | N |
| Multi-Family Redevelopment: | N | | |
| Township: | | Section: | |
| Range: | |
Location |
| Address: | 2227 WILLIAMS RD OAK HARBOR, WA 98277 | Mapsco: | |
| Neighborhood: | Cycle 1 | Map ID: | 137 |
| Neighborhood CD: | 1 |
Owner |
| Name: | SEXTON, DANIEL B | Owner ID: | 183292 |
| Mailing Address: | IRIS L SEXTON 2227 WILLIAMS RD OAK HARBOR, WA 98277-8558 | % Ownership: | 100.0000000000% |
| | | Exemptions: | |
Taxes and Assessment Details
Values
| (+) Improvement Homesite Value: | + | $0 | |
| (+) Improvement Non-Homesite Value: | + | $235,102 | |
| (+) Land Homesite Value: | + | $0 | |
| (+) Land Non-Homesite Value: | + | $180,000 | |
| (+) Curr Use (HS): | + | $0 | $0 |
| (+) Curr Use (NHS): | + | $0 | $0 |
| | | -------------------------- | |
| (=) Market Value: | = | $415,102 | |
| (–) Productivity Loss: | – | $0 | |
| | | -------------------------- | |
| (=) Subtotal: | = | $415,102 | |
| (+) Senior Appraised Value: | + | $0 | |
| (+) Non-Senior Appraised Value: | + | $415,102 | |
| | | -------------------------- | |
| (=) Total Appraised Value: | = | $415,102 | |
| (–) Senior Exemption Loss: | – | $0 | |
| (–) Exemption Loss: | – | $0 | |
| | | -------------------------- | |
| (=) Taxable Value: | = | $415,102 | |
Taxing Jurisdiction
| Owner: | SEXTON, DANIEL B | | |
| % Ownership: | 100.0000000000% | | |
| Total Value: | $415,102 | | |
| Tax Area: | 110 - APPRAISER-OH Schl Dist, outside OH, improved & 1 acre or less |
| CF | Conservation Futures | 0.0316035091 | $415,102 | $415,102 | $13.12 | | |
| CEM1 | Cemetery #1 | 0.0040320932 | $415,102 | $415,102 | $1.67 | | |
| FIRE2 | Fire & Rescue Dist #2 N Whidbey GEN | 0.5475949600 | $415,102 | $415,102 | $227.31 | | |
| HOBOND | Hospital BOND | 0.1910887512 | $415,102 | $415,102 | $79.32 | | |
| HOGEN | Hospital GEN | 0.3902502903 | $415,102 | $415,102 | $161.99 | | |
| CE | County Current Expense | 0.3708482477 | $415,102 | $415,102 | $153.94 | | |
| CR | County Roads | 0.4584763726 | $415,102 | $415,102 | $190.31 | | |
| ISLANDEMS | Hospital GEN (EMS) | 0.5000000000 | $415,102 | $415,102 | $207.55 | | |
| LIB | Library Sno-Isle GEN | 0.3153421757 | $415,102 | $415,102 | $130.90 | | |
| NWHIDPRMT | P & R N Whidbey GEN | 0.2004466701 | $415,102 | $415,102 | $83.21 | | |
| SCH201MO | School 201 Enrichment | 1.8559231640 | $415,102 | $415,102 | $770.40 | | |
| ST | State School | 1.3035497053 | $415,102 | $415,102 | $541.11 | | |
| ST2 | State School Part 2 | 0.8169543533 | $415,102 | $415,102 | $339.12 | | |
| | Total Tax Rate: | 6.9861102925 | | | | | |
| | | | | Taxes w/Current Exemptions: | $2,899.95 | | |
| | | | | Taxes w/o Exemptions: | $2,899.95 | | |
Improvement / Building
| Improvement #1: | RESIDENTIAL | State Code: | Y | 1275.0 sqft | Value: | $235,102 |
| Bathrooms: | 2 | Bedrooms: | 3 | | Ceiling: | DRYWALL PAINTED | Exterior Wall/Cover: | VINYL | | Floor Covering: | VINYL 100% | Floor Structure: | WOOD W/SUBFLOOR | | Foundation: | CONCRETE | Heating: | FHA GAS | | Interior Finish: | DRYWALL PAINT | Plumbing Fixture Cnt: | 6 | | Roof Slope: | 6" IN 12" | Roof Structure/Cover: | CJ ASPHALT |
|
| | Type | Description | Class CD | Sub Class CD | Year Built | Area |
| | BAS | BASE/MAIN FLOOR | 3 | 0 | 2001 | 1275.0 |
| | AGR | ATTACHED GARAGE | 3 | 0 | 2001 | 369.0 |
| | OWP | OPEN WOOD PORCH W/STEPS | 3 | 0 | 2001 | 112.0 |
| | OWC | OPEN WOOD PORCH W/STEPS/ROOF/C | 3 | 0 | 2001 | 88.0 |
Sketch
Property Image
Land
| 1 | 14 | SQ (08001-12000) | 0.0000 | 0.00 | 0.00 | 0.00 | 1.00 | $180,000 | $0 |
Roll Value History
| 2026 | N/A | N/A | N/A | N/A | N/A |
| 2025 | $235,102 | $180,000 | $0 | $415,102 | $415,102 |
| 2024 | $237,996 | $180,000 | $0 | $417,996 | $417,996 |
| 2023 | $233,286 | $190,000 | $0 | $423,286 | $423,286 |
| 2022 | $213,815 | $190,000 | $0 | $403,815 | $403,815 |
| 2021 | $188,158 | $120,000 | $0 | $308,158 | $308,158 |
| 2020 | $183,622 | $100,000 | $0 | $283,622 | $283,622 |
| 2019 | $133,705 | $150,000 | $0 | $283,705 | $283,705 |
| 2018 | $134,091 | $130,000 | $0 | $264,091 | $264,091 |
| 2017 | $117,853 | $110,000 | $0 | $227,853 | $227,853 |
| 2016 | $119,275 | $100,000 | $0 | $219,275 | $219,275 |
| 2015 | $120,695 | $55,000 | $0 | $175,695 | $175,695 |
| 2014 | $122,114 | $55,000 | $0 | $177,114 | $177,114 |
| 2013 | $123,535 | $55,000 | $0 | $178,535 | $178,535 |
| 2012 | $124,955 | $63,750 | $0 | $188,705 | $188,705 |
| 2011 | $129,507 | $75,000 | $0 | $204,507 | $204,507 |
| 2010 | $134,493 | $75,000 | $0 | $209,493 | $209,493 |
| 2009 | $140,224 | $80,000 | $0 | $220,224 | $220,224 |
| 2008 | $140,492 | $85,000 | $0 | $225,492 | $225,492 |
| 2007 | $142,186 | $85,650 | $0 | $227,836 | $227,836 |
Deed and Sales History
| 1 | 05/12/2000 | WD | Warranty Deed | SELF HELP HOUSING INC, | SEXTON, DANIEL B | | | $53,000.00 | 1748 | 20008347 |
| 2 | 02/01/1999 | WD | Warranty Deed | KATHWOOD, INC | SELF HELP HOUSING INC, | | | $47,542.00 | 90529 | 99003626 |
| 3 | 01/01/1900 | OTHER | Other - Misc. Documents | Unknown | KATHWOOD, INC | | | $0.00 | 71897 | 97008706 |
Payout Agreement
| No payout information available.. |