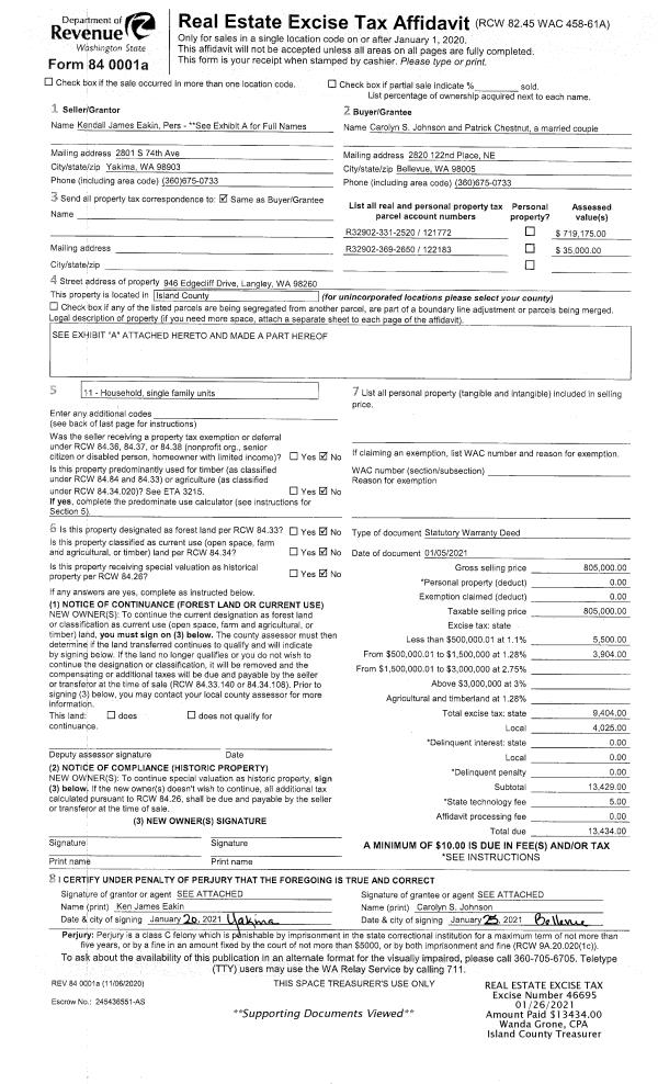
Property
Account |
| Property ID: | 760395 | Abbreviated Legal Description: | LOT 2 SP 181-96.32909.307-4450 V3 SP P194-5 AF#98003581 |
| Geographic ID: | R32909-290-4450 | Agent Code: | |
| Type: | Real | | |
| Tax Area: | 712 - APPRAISER-S Whid Schl Dist, outside Langley, improved, greater than 1 acre | Land Use Code | 11 |
| Open Space: | N | DFL | N |
| Historic Property: | N | Remodel Property: | N |
| Multi-Family Redevelopment: | N | | |
| Township: | 29 | Section: | 09 |
| Range: | R3 |
Location |
| Address: | | Mapsco: | |
| Neighborhood: | Cycle 4 | Map ID: | 753 |
| Neighborhood CD: | 4 |
Owner |
| Name: | SCHWARTZ, STEPHAN | Owner ID: | 260616 |
| Mailing Address: | RONLYN SCHWARTZ BOX 905 LANGLEY, WA 98260-0905 | % Ownership: | 100.0000000000% |
| | | Exemptions: | |
Taxes and Assessment Details
Values
| (+) Improvement Homesite Value: | + | $0 | |
| (+) Improvement Non-Homesite Value: | + | $449,152 | |
| (+) Land Homesite Value: | + | $0 | |
| (+) Land Non-Homesite Value: | + | $380,000 | |
| (+) Curr Use (HS): | + | $0 | $0 |
| (+) Curr Use (NHS): | + | $0 | $0 |
| | | -------------------------- | |
| (=) Market Value: | = | $829,152 | |
| (–) Productivity Loss: | – | $0 | |
| | | -------------------------- | |
| (=) Subtotal: | = | $829,152 | |
| (+) Senior Appraised Value: | + | $0 | |
| (+) Non-Senior Appraised Value: | + | $829,152 | |
| | | -------------------------- | |
| (=) Total Appraised Value: | = | $829,152 | |
| (–) Senior Exemption Loss: | – | $0 | |
| (–) Exemption Loss: | – | $0 | |
| | | -------------------------- | |
| (=) Taxable Value: | = | $829,152 | |
Taxing Jurisdiction
| Owner: | SCHWARTZ, STEPHAN | | |
| % Ownership: | 100.0000000000% | | |
| Total Value: | $829,152 | | |
| Tax Area: | 712 - APPRAISER-S Whid Schl Dist, outside Langley, improved, greater than 1 acre |
| CF | Conservation Futures | 0.0316035091 | $829,152 | $829,152 | $26.20 | | |
| FIRE3 | Fire & Rescue Dist #3 S Whidbey GEN | 1.2004855531 | $829,152 | $829,152 | $995.38 | | |
| HOBOND | Hospital BOND | 0.1910887512 | $829,152 | $829,152 | $158.44 | | |
| HOGEN | Hospital GEN | 0.3902502903 | $829,152 | $829,152 | $323.58 | | |
| CE | County Current Expense | 0.3708482477 | $829,152 | $829,152 | $307.49 | | |
| CR | County Roads | 0.4584763726 | $829,152 | $829,152 | $380.15 | | |
| ISLANDEMS | Hospital GEN (EMS) | 0.5000000000 | $829,152 | $829,152 | $414.58 | | |
| LIB | Library Sno-Isle GEN | 0.3153421757 | $829,152 | $829,152 | $261.47 | | |
| PORTWHID | Port of S Whidbey GEN | 0.1094540357 | $829,152 | $829,152 | $90.75 | | |
| SCH206BOND | School 206 BOND | 0.3161759235 | $829,152 | $829,152 | $262.16 | | |
| SCH206MO | School 206 Enrichment | 0.4547169547 | $829,152 | $829,152 | $377.03 | | |
| ST | State School | 1.3035497053 | $829,152 | $829,152 | $1,080.84 | | |
| ST2 | State School Part 2 | 0.8169543533 | $829,152 | $829,152 | $677.38 | | |
| SWHIDPRBD | P & R S Whidbey BOND | 0.0152817568 | $829,152 | $829,152 | $12.67 | | |
| SWHIDPRBD2 | P & R S Whidbey BOND2 | 0.0138911264 | $829,152 | $829,152 | $11.52 | | |
| SWHIDPRMT | P & R S Whidbey GEN | 0.2053334452 | $829,152 | $829,152 | $170.25 | | |
| | Total Tax Rate: | 6.6934522006 | | | | | |
| | | | | Taxes w/Current Exemptions: | $5,549.89 | | |
| | | | | Taxes w/o Exemptions: | $5,549.89 | | |
Improvement / Building
| Improvement #1: | RESIDENTIAL | State Code: | Y | 2611.7 sqft | Value: | $449,152 |
| Bathrooms: | 3 | Bedrooms: | 4 | | Ceiling: | DRYWALL PAINTED | Exterior Wall/Cover: | WOOD SIDING | | Floor Covering: | HARDWOOD/CARP 20-80 | Floor Structure: | WOOD W/SUBFLOOR | | Foundation: | CONCRETE | Heating: | FHA GAS | | Interior Finish: | DRYWALL PAINT | Plumbing Fixture Cnt: | 14 | | Roof Slope: | 8" IN 12" | Roof Structure/Cover: | CJ ASPHALT |
|
| | Type | Description | Class CD | Sub Class CD | Year Built | Area |
| | BAS | BASE/MAIN FLOOR | 3 | 0 | 1996 | 1396.0 |
| | AGR | ATTACHED GARAGE | 3 | 0 | 1996 | 500.6 |
| | UTY | STORAGE/UTILITY | 3 | 0 | 1996 | 180.0 |
| | UPS | UPPER STORY | 3 | 0 | 1996 | 1215.7 |
| | OWC | OPEN WOOD PORCH W/STEPS/ROOF/C | 3 | 0 | 1996 | 1170.5 |
| | DGR | DETACHED GARAGE | 3 | 0 | 1996 | 0.0 |
| | UTY | STORAGE/UTILITY | 3 | 0 | 1996 | 180.0 |
Sketch
Property Image
Land
| 1 | 32 | AC (03.01-09.99) | 4.5800 | 0.00 | 0.00 | 0.00 | 1.00 | $380,000 | $0 |
Roll Value History
| 2026 | N/A | N/A | N/A | N/A | N/A |
| 2025 | $449,152 | $380,000 | $0 | $829,152 | $829,152 |
| 2024 | $454,566 | $350,000 | $0 | $804,566 | $804,566 |
| 2023 | $459,982 | $330,000 | $0 | $789,982 | $789,982 |
| 2022 | $423,310 | $290,000 | $0 | $713,310 | $713,310 |
| 2021 | $374,955 | $230,000 | $0 | $604,955 | $604,955 |
| 2020 | $391,051 | $190,000 | $0 | $581,051 | $581,051 |
| 2019 | $298,294 | $250,000 | $0 | $548,294 | $548,294 |
| 2018 | $299,150 | $210,000 | $0 | $509,150 | $509,150 |
| 2017 | $300,805 | $190,000 | $0 | $490,805 | $490,805 |
| 2016 | $304,230 | $135,000 | $0 | $439,230 | $439,230 |
| 2015 | $307,653 | $135,000 | $0 | $442,653 | $442,653 |
| 2014 | $312,097 | $123,660 | $0 | $435,757 | $435,757 |
| 2013 | $268,022 | $146,560 | $0 | $414,582 | $414,582 |
| 2012 | $271,039 | $146,560 | $0 | $417,599 | $417,599 |
| 2011 | $274,060 | $146,560 | $0 | $420,620 | $420,620 |
| 2010 | $277,104 | $146,560 | $0 | $423,664 | $423,664 |
| 2009 | $288,686 | $201,520 | $0 | $490,206 | $490,206 |
| 2008 | $300,669 | $196,940 | $0 | $497,609 | $497,609 |
| 2007 | $304,470 | $196,940 | $0 | $501,410 | $501,410 |
Deed and Sales History
| 1 | 01/07/2013 | QCD | Quit Claim Deed | SCHWARTZ, STEPHAN A | SCHWARTZ, STEPHAN | | | $0.00 | 10161 | 4331622 |
| 2 | 02/25/2009 | WD | Warranty Deed | MCCULLOCH, KELLY | SCHWARTZ, STEPHAN A | | | $500,000.00 | 90465 | 4245754 |
| 3 | 01/14/2000 | WD | Warranty Deed | SHOREY II, DARLENE/MATTHEW | MCCULLOCH, KELLY | | | $290,000.00 | 215 | 20001125 |
| 4 | 05/14/1998 | ESTSEPPROP | Establish Separate Property | SHOREY, DARLENE A | SHOREY II, DARLENE/MATTHEW | | | $0.00 | 82142 | 98011131 |
| 5 | 01/01/1900 | OTHER | Other - Misc. Documents | Unknown | SHOREY, DARLENE E | | | $0.00 | 43070 | 94016597 |
| 6 | 01/01/1900 | OTHER | Other - Misc. Documents | SHOREY, DARLENE E | SHOREY, DARLENE A | | | $0.00 | 82142 | 98011131 |
Payout Agreement
| No payout information available.. |