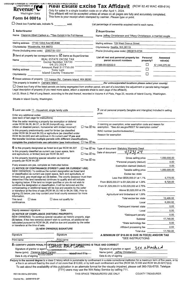
Property
Account |
| Property ID: | 760527 | Abbreviated Legal Description: | QUIET WOODS LOT 7 |
| Geographic ID: | S7795-00-00007-0 | Agent Code: | |
| Type: | Real | | |
| Tax Area: | 100 - APPRAISER-OH Schl Dist, in OH | Land Use Code | 11 |
| Open Space: | N | DFL | N |
| Historic Property: | N | Remodel Property: | N |
| Multi-Family Redevelopment: | N | | |
| Township: | | Section: | |
| Range: | |
Location |
| Address: | 710 W WHIDBEY AVE OAK HARBOR, WA 98277 | Mapsco: | |
| Neighborhood: | Cycle 1 | Map ID: | 253 |
| Neighborhood CD: | 1 |
Owner |
| Name: | CLEAVELAND, CRAIG A | Owner ID: | 184410 |
| Mailing Address: | SUKYONG CLEAVELAND 710 W WHIDBEY AVE OAK HARBOR, WA 98277-5657 | % Ownership: | 100.0000000000% |
| | | Exemptions: | |
Taxes and Assessment Details
Values
| (+) Improvement Homesite Value: | + | $0 | |
| (+) Improvement Non-Homesite Value: | + | $274,205 | |
| (+) Land Homesite Value: | + | $0 | |
| (+) Land Non-Homesite Value: | + | $190,000 | |
| (+) Curr Use (HS): | + | $0 | $0 |
| (+) Curr Use (NHS): | + | $0 | $0 |
| | | -------------------------- | |
| (=) Market Value: | = | $464,205 | |
| (–) Productivity Loss: | – | $0 | |
| | | -------------------------- | |
| (=) Subtotal: | = | $464,205 | |
| (+) Senior Appraised Value: | + | $0 | |
| (+) Non-Senior Appraised Value: | + | $464,205 | |
| | | -------------------------- | |
| (=) Total Appraised Value: | = | $464,205 | |
| (–) Senior Exemption Loss: | – | $0 | |
| (–) Exemption Loss: | – | $0 | |
| | | -------------------------- | |
| (=) Taxable Value: | = | $464,205 | |
Taxing Jurisdiction
| Owner: | CLEAVELAND, CRAIG A | | |
| % Ownership: | 100.0000000000% | | |
| Total Value: | $464,205 | | |
| Tax Area: | 100 - APPRAISER-OH Schl Dist, in OH |
| CF | Conservation Futures | 0.0316035091 | $464,205 | $464,205 | $14.67 | | |
| CEM1 | Cemetery #1 | 0.0040320932 | $464,205 | $464,205 | $1.87 | | |
| COH | City of Oak Harbor | 2.3001546061 | $464,205 | $464,205 | $1,067.74 | | |
| OAKBOND | City of Oak Harbor BOND | 0.1926904192 | $464,205 | $464,205 | $89.45 | | |
| HOBOND | Hospital BOND | 0.1910887512 | $464,205 | $464,205 | $88.70 | | |
| HOGEN | Hospital GEN | 0.3902502903 | $464,205 | $464,205 | $181.16 | | |
| CE | County Current Expense | 0.3708482477 | $464,205 | $464,205 | $172.15 | | |
| ISLANDEMS | Hospital GEN (EMS) | 0.5000000000 | $464,205 | $464,205 | $232.10 | | |
| LIB | Library Sno-Isle GEN | 0.3153421757 | $464,205 | $464,205 | $146.38 | | |
| NWHIDPRMT | P & R N Whidbey GEN | 0.2004466701 | $464,205 | $464,205 | $93.05 | | |
| SCH201MO | School 201 Enrichment | 1.8559231640 | $464,205 | $464,205 | $861.53 | | |
| ST | State School | 1.3035497053 | $464,205 | $464,205 | $605.11 | | |
| ST2 | State School Part 2 | 0.8169543533 | $464,205 | $464,205 | $379.23 | | |
| | Total Tax Rate: | 8.4728839852 | | | | | |
| | | | | Taxes w/Current Exemptions: | $3,933.14 | | |
| | | | | Taxes w/o Exemptions: | $3,933.14 | | |
Improvement / Building
| Improvement #1: | RESIDENTIAL | State Code: | Y | 1397.5 sqft | Value: | $274,205 |
| Bathrooms: | 2 | Bedrooms: | 3 | | Ceiling: | DRYWALL PAINTED | Exterior Wall/Cover: | CEMENT FIBER | | Floor Covering: | CARPET/VINYL 20-80 | Floor Structure: | WOOD W/SUBFLOOR | | Foundation: | CONCRETE | Heating: | FHA GAS | | Interior Finish: | DRYWALL PAINT | Plumbing Fixture Cnt: | 10 | | Roof Slope: | 6" IN 12" | Roof Structure/Cover: | CJ ASPHALT |
|
| | Type | Description | Class CD | Sub Class CD | Year Built | Area |
| | BAS | BASE/MAIN FLOOR | 3 | 0 | 2000 | 913.9 |
| | AGR | ATTACHED GARAGE | 3 | 0 | 2000 | 492.8 |
| | UPS | UPPER STORY | 3 | 0 | 2000 | 483.6 |
| | OWP | OPEN WOOD PORCH W/STEPS | 3 | 0 | 2000 | 7.2 |
| | OWP | OPEN WOOD PORCH W/STEPS | 3 | 0 | 2000 | 160.0 |
| | OWC | OPEN WOOD PORCH W/STEPS/ROOF/C | 3 | 0 | 2000 | 109.2 |
Sketch
Property Image
Land
| 1 | 14 | SQ (08001-12000) | 0.0000 | 0.00 | 0.00 | 0.00 | 1.00 | $190,000 | $0 |
Roll Value History
| 2026 | N/A | N/A | N/A | N/A | N/A |
| 2025 | $274,205 | $190,000 | $0 | $464,205 | $464,205 |
| 2024 | $277,421 | $180,000 | $0 | $457,421 | $457,421 |
| 2023 | $267,714 | $190,000 | $0 | $457,714 | $457,714 |
| 2022 | $245,283 | $180,000 | $0 | $425,283 | $425,283 |
| 2021 | $215,801 | $120,000 | $0 | $335,801 | $335,801 |
| 2020 | $209,883 | $100,000 | $0 | $309,883 | $309,883 |
| 2019 | $150,586 | $150,000 | $0 | $300,586 | $300,586 |
| 2018 | $151,012 | $130,000 | $0 | $281,012 | $281,012 |
| 2017 | $149,823 | $110,000 | $0 | $259,823 | $259,823 |
| 2016 | $151,565 | $90,000 | $0 | $241,565 | $241,565 |
| 2015 | $153,306 | $70,000 | $0 | $223,306 | $223,306 |
| 2014 | $155,048 | $55,000 | $0 | $210,048 | $210,048 |
| 2013 | $156,792 | $55,000 | $0 | $211,792 | $211,792 |
| 2012 | $158,533 | $65,000 | $0 | $223,533 | $223,533 |
| 2011 | $161,760 | $50,700 | $0 | $212,460 | $212,460 |
| 2010 | $170,650 | $50,700 | $0 | $221,350 | $221,350 |
| 2009 | $178,055 | $57,150 | $0 | $235,205 | $235,205 |
| 2008 | $178,594 | $75,000 | $0 | $253,594 | $253,594 |
| 2007 | $180,906 | $75,000 | $0 | $255,906 | $255,906 |
Deed and Sales History
| 1 | 02/23/2006 | WD | Warranty Deed | GROFF, STEVEN E | CLEAVELAND, CRAIG A | | | $260,000.00 | 60871 | 4163508 |
| 2 | 11/09/2000 | WD | Warranty Deed | EAST BAY CONST. INC, | GROFF, STEVEN E | | | $148,000.00 | 4507 | 20020770 |
| 3 | 12/03/1999 | WD | Warranty Deed | PICULELL, ARTHUR C JR & DEE | EAST BAY CONST. INC, | | | $37,000.00 | 95126 | 99028591 |
| 4 | 01/01/1900 | OTHER | Other - Misc. Documents | Unknown | PICULELL, ARTHUR C | | | $0.00 | 70350 | 97001481 |
| 5 | 01/01/1900 | OTHER | Other - Misc. Documents | PICULELL, ARTHUR C | PICULELL, ARTHUR C JR & DEE | | | $0.00 | 0 | 0 |
Payout Agreement
| No payout information available.. |