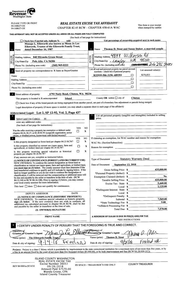
Property
Account |
| Property ID: | 760787 | Abbreviated Legal Description: | BRENTWOOD #1 - PRD LOT 19 |
| Geographic ID: | S6164-00-00019-0 | Agent Code: | |
| Type: | Real | | |
| Tax Area: | 510 - APPRAISER-Stan/Cam Schl Dist, improved & 1 acre or less | Land Use Code | 11 |
| Open Space: | N | DFL | N |
| Historic Property: | N | Remodel Property: | N |
| Multi-Family Redevelopment: | N | | |
| Township: | | Section: | |
| Range: | |
Location |
| Address: | 1059 MALVERN HILLS DR CAMANO ISLAND, WA 98282 | Mapsco: | |
| Neighborhood: | North Camano | Map ID: | 557 |
| Neighborhood CD: | 06-C |
Owner |
| Name: | MENESES, JORGE | Owner ID: | 286114 |
| Mailing Address: | MARIA MENESES 1059 MALVERN HILLS DR CAMANO ISLAND, WA 98282 | % Ownership: | 100.0000000000% |
| | | Exemptions: | |
Taxes and Assessment Details
Values
| (+) Improvement Homesite Value: | + | $0 | |
| (+) Improvement Non-Homesite Value: | + | $669,427 | |
| (+) Land Homesite Value: | + | $0 | |
| (+) Land Non-Homesite Value: | + | $250,000 | |
| (+) Curr Use (HS): | + | $0 | $0 |
| (+) Curr Use (NHS): | + | $0 | $0 |
| | | -------------------------- | |
| (=) Market Value: | = | $919,427 | |
| (–) Productivity Loss: | – | $0 | |
| | | -------------------------- | |
| (=) Subtotal: | = | $919,427 | |
| (+) Senior Appraised Value: | + | $0 | |
| (+) Non-Senior Appraised Value: | + | $919,427 | |
| | | -------------------------- | |
| (=) Total Appraised Value: | = | $919,427 | |
| (–) Senior Exemption Loss: | – | $0 | |
| (–) Exemption Loss: | – | $0 | |
| | | -------------------------- | |
| (=) Taxable Value: | = | $919,427 | |
Taxing Jurisdiction
| Owner: | MENESES, JORGE | | |
| % Ownership: | 100.0000000000% | | |
| Total Value: | $919,427 | | |
| Tax Area: | 510 - APPRAISER-Stan/Cam Schl Dist, improved & 1 acre or less |
| CF | Conservation Futures | 0.0316035091 | $919,427 | $919,427 | $29.06 | | |
| EMS1 | Fire & Rescue Dist #1 Camano GEN (EMS) | 0.3677864386 | $919,427 | $919,427 | $338.15 | | |
| FIRE1 | Fire & Rescue Dist #1 Camano GEN | 1.2502910536 | $919,427 | $919,427 | $1,149.55 | | |
| FIRE1BOND | Fire & Rescue Dist #1 Camano BOND | 0.1570001679 | $919,427 | $919,427 | $144.35 | | |
| CE | County Current Expense | 0.3708482477 | $919,427 | $919,427 | $340.97 | | |
| CR | County Roads | 0.4584763726 | $919,427 | $919,427 | $421.54 | | |
| LCIB | Library Sno-Isle BOND (Camano Island) | 0.0396325772 | $919,427 | $919,427 | $36.44 | | |
| LIB | Library Sno-Isle GEN | 0.3153421757 | $919,427 | $919,427 | $289.93 | | |
| SCH205_401 | School 205-401 Enrichment | 1.2698420524 | $919,427 | $919,427 | $1,167.53 | | |
| SCH205BOND | School 205-401 BOND | 0.9396497583 | $919,427 | $919,427 | $863.94 | | |
| ST | State School | 1.3035497053 | $919,427 | $919,427 | $1,198.52 | | |
| ST2 | State School Part 2 | 0.8169543533 | $919,427 | $919,427 | $751.13 | | |
| | Total Tax Rate: | 7.3209764117 | | | | | |
| | | | | Taxes w/Current Exemptions: | $6,731.11 | | |
| | | | | Taxes w/o Exemptions: | $6,731.11 | | |
Improvement / Building
| Improvement #1: | RESIDENTIAL | State Code: | Y | 2486.3 sqft | Value: | $669,427 |
| Bathrooms: | 2.5 | Bedrooms: | 3 | | Ceiling: | DRYWALL PAINTED | Cooling: | HEAT PUMP/CONV/V | | Exterior Wall/Cover: | CEMENT FIBER | Floor Covering: | CERAMIC TILE/CPT 40-60 | | Floor Structure: | WOOD W/SUBFLOOR | Foundation: | CONCRETE | | Interior Finish: | DRYWALL PAINT | Plumbing Fixture Cnt: | 16 | | Roof Slope: | 8" IN 12" | Roof Structure/Cover: | CJ ASPHALT |
|
| | Type | Description | Class CD | Sub Class CD | Year Built | Area |
| | BAS | BASE/MAIN FLOOR | 5 | 0 | 2007 | 1766.3 |
| | OWP | OPEN WOOD PORCH W/STEPS | 5 | 0 | 2007 | 229.0 |
| | DGR | DETACHED GARAGE | 5 | 0 | 2007 | 950.0 |
| | UPS | UPPER STORY | 5 | 0 | 2007 | 720.0 |
| | OP4 | OPEN PORCH W/CEILING-ROOF | 5 | 0 | 2007 | 48.0 |
Sketch
Property Image
Land
| 1 | 16 | AC (00.51-01.00) | 0.0000 | 0.00 | 0.00 | 0.00 | 1.00 | $250,000 | $0 |
Roll Value History
| 2026 | N/A | N/A | N/A | N/A | N/A |
| 2025 | $669,427 | $250,000 | $0 | $919,427 | $919,427 |
| 2024 | $677,013 | $250,000 | $0 | $927,013 | $927,013 |
| 2023 | $682,701 | $250,000 | $0 | $932,701 | $932,701 |
| 2022 | $592,439 | $210,000 | $0 | $802,439 | $802,439 |
| 2021 | $521,127 | $140,000 | $0 | $661,127 | $661,127 |
| 2020 | $506,507 | $130,000 | $0 | $636,507 | $636,507 |
| 2019 | $392,987 | $200,000 | $0 | $592,987 | $592,987 |
| 2018 | $394,088 | $150,000 | $0 | $544,088 | $544,088 |
| 2017 | $396,290 | $120,000 | $0 | $516,290 | $516,290 |
| 2016 | $361,778 | $150,000 | $0 | $511,778 | $511,778 |
| 2015 | $365,796 | $150,000 | $0 | $515,796 | $515,796 |
| 2014 | $369,817 | $150,000 | $0 | $519,817 | $519,817 |
| 2013 | $373,837 | $150,000 | $0 | $523,837 | $523,837 |
| 2012 | $377,857 | $160,000 | $0 | $537,857 | $215,143 |
| 2011 | $381,877 | $200,000 | $0 | $581,877 | $232,751 |
| 2010 | $391,083 | $200,000 | $0 | $591,083 | $236,433 |
| 2009 | $393,826 | $250,000 | $0 | $643,826 | $257,530 |
| 2008 | $407,404 | $250,000 | $0 | $657,404 | $657,404 |
| 2007 | $87,826 | $249,968 | $0 | $337,794 | $337,794 |
Deed and Sales History
| 1 | 07/17/2018 | WD | Warranty Deed | GRIGGS, WENDELL R. | MENESES, JORGE | | | $570,000.00 | 35110 | 4448434 |
| 2 | 12/05/2016 | WD | Warranty Deed | KATCHER, DAVID A | GRIGGS, WENDELL R. | | | $515,000.00 | 27365 | 4413408 |
| 3 | 04/07/2004 | WD | Warranty Deed | CREC, 401(K) P | KATCHER, DAVID A | | | $105,000.00 | 41625 | 4098014 |
| 4 | 01/01/1900 | OTHER | Other - Misc. Documents | Unknown | CREC, 401(K) P | | | $0.00 | 52982 | 97018034 |
Payout Agreement
| No payout information available.. |