Property
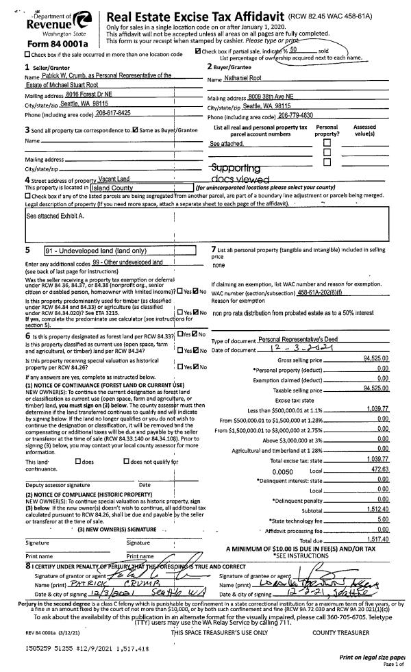
Account |
| Property ID: | 76081 | Abbreviated Legal Description: | 39 - S330' OF N990' OF E/2 SE NE EX E30' SUB EZ |
| Geographic ID: | R23111-322-5030 | Agent Code: | |
| Type: | Real | | |
| Tax Area: | 512 - APPRAISER-Stan/Cam Schl Dist, improved, greater than 1 acre | Land Use Code | 11 |
| Open Space: | N | DFL | N |
| Historic Property: | N | Remodel Property: | N |
| Multi-Family Redevelopment: | N | | |
| Township: | 31 | Section: | 11 |
| Range: | R2 |
Location |
| Address: | 560 S CAMANO RIDGE RD CAMANO ISLAND, WA 98282 | Mapsco: | |
| Neighborhood: | Cycle 5 | Map ID: | 472 |
| Neighborhood CD: | 5 |
Owner |
| Name: | JOHNS, KORY E | Owner ID: | 300080 |
| Mailing Address: | 6301 208TH ST NE ARLINGTON, WA 98223 | % Ownership: | 100.0000000000% |
| | | Exemptions: | |
Taxes and Assessment Details
Values
| (+) Improvement Homesite Value: | + | $0 | |
| (+) Improvement Non-Homesite Value: | + | $126,031 | |
| (+) Land Homesite Value: | + | $0 | |
| (+) Land Non-Homesite Value: | + | $330,000 | |
| (+) Curr Use (HS): | + | $0 | $0 |
| (+) Curr Use (NHS): | + | $0 | $0 |
| | | -------------------------- | |
| (=) Market Value: | = | $456,031 | |
| (–) Productivity Loss: | – | $0 | |
| | | -------------------------- | |
| (=) Subtotal: | = | $456,031 | |
| (+) Senior Appraised Value: | + | $0 | |
| (+) Non-Senior Appraised Value: | + | $456,031 | |
| | | -------------------------- | |
| (=) Total Appraised Value: | = | $456,031 | |
| (–) Senior Exemption Loss: | – | $0 | |
| (–) Exemption Loss: | – | $0 | |
| | | -------------------------- | |
| (=) Taxable Value: | = | $456,031 | |
Taxing Jurisdiction
| Owner: | JOHNS, KORY E | | |
| % Ownership: | 100.0000000000% | | |
| Total Value: | $456,031 | | |
| Tax Area: | 512 - APPRAISER-Stan/Cam Schl Dist, improved, greater than 1 acre |
| CF | Conservation Futures | 0.0316035091 | $456,031 | $456,031 | $14.41 | | |
| EMS1 | Fire & Rescue Dist #1 Camano GEN (EMS) | 0.3677864386 | $456,031 | $456,031 | $167.72 | | |
| FIRE1 | Fire & Rescue Dist #1 Camano GEN | 1.2502910536 | $456,031 | $456,031 | $570.17 | | |
| FIRE1BOND | Fire & Rescue Dist #1 Camano BOND | 0.1570001679 | $456,031 | $456,031 | $71.60 | | |
| CE | County Current Expense | 0.3708482477 | $456,031 | $456,031 | $169.12 | | |
| CR | County Roads | 0.4584763726 | $456,031 | $456,031 | $209.08 | | |
| LCIB | Library Sno-Isle BOND (Camano Island) | 0.0396325772 | $456,031 | $456,031 | $18.07 | | |
| LIB | Library Sno-Isle GEN | 0.3153421757 | $456,031 | $456,031 | $143.81 | | |
| SCH205_401 | School 205-401 Enrichment | 1.2698420524 | $456,031 | $456,031 | $579.09 | | |
| SCH205BOND | School 205-401 BOND | 0.9396497583 | $456,031 | $456,031 | $428.51 | | |
| ST | State School | 1.3035497053 | $456,031 | $456,031 | $594.46 | | |
| ST2 | State School Part 2 | 0.8169543533 | $456,031 | $456,031 | $372.56 | | |
| | Total Tax Rate: | 7.3209764117 | | | | | |
| | | | | Taxes w/Current Exemptions: | $3,338.60 | | |
| | | | | Taxes w/o Exemptions: | $3,338.60 | | |
Improvement / Building
| Improvement #1: | MANUFACTURED HOME | State Code: | Y | 1114.0 sqft | Value: | $126,031 |
| Bathrooms: | 0 | Bedrooms: | 0 | | Ceiling: | PLASTER PAINTED | Cooling: | EVAP NO DUCT | | Exterior Wall/Cover: | VINYL | Floor Covering: | CARPET 100% | | Floor Structure: | SLAB ON GRADE | Foundation: | SLAB | | Heating: | FHA ELECTRIC | Interior Finish: | PLASTER | | Plumbing Fixture Cnt: | 1 | Roof Slope: | FLAT | | Roof Structure/Cover: | CJ ALUMINIUM HEAVY |   |   |
|
| | Type | Description | Class CD | Sub Class CD | Year Built | Area |
| | BAS | BASE/MAIN FLOOR | 4 | 0 | 1977 | 1114.0 |
| | OWP | OPEN WOOD PORCH W/STEPS | 4 | 0 | 1977 | 360.0 |
| | UTY | STORAGE/UTILITY | 4 | 0 | 1977 | 480.0 |
| | CPD | OPEN CARPORT DIRT FLOOR | 4 | 0 | 1977 | 800.0 |
Sketch
Property Image
Land
| 1 | 32 | AC (03.01-09.99) | 4.7800 | 0.00 | 0.00 | 0.00 | 1.00 | $330,000 | $0 |
Roll Value History
| 2026 | N/A | N/A | N/A | N/A | N/A |
| 2025 | $126,031 | $330,000 | $0 | $456,031 | $456,031 |
| 2024 | $127,780 | $300,000 | $0 | $427,780 | $427,780 |
| 2023 | $114,160 | $290,000 | $0 | $404,160 | $404,160 |
| 2022 | $106,127 | $290,000 | $0 | $396,127 | $396,127 |
| 2021 | $76,090 | $190,000 | $0 | $266,090 | $266,090 |
| 2020 | $74,905 | $160,000 | $0 | $234,905 | $234,905 |
| 2019 | $60,619 | $230,000 | $0 | $290,619 | $290,619 |
| 2018 | $62,235 | $175,000 | $0 | $237,235 | $237,235 |
| 2017 | $63,851 | $150,000 | $0 | $213,851 | $213,851 |
| 2016 | $65,468 | $150,000 | $0 | $215,468 | $215,468 |
| 2015 | $45,416 | $107,072 | $0 | $152,488 | $99,117 |
| 2014 | $46,435 | $107,072 | $0 | $153,507 | $153,507 |
| 2013 | $47,454 | $107,072 | $0 | $154,526 | $154,526 |
| 2012 | $48,983 | $107,072 | $0 | $156,055 | $156,055 |
| 2011 | $50,003 | $133,840 | $0 | $183,843 | $119,498 |
| 2010 | $54,430 | $133,840 | $0 | $188,270 | $122,375 |
| 2009 | $32,681 | $152,960 | $0 | $185,641 | $185,641 |
| 2008 | $33,310 | $134,438 | $0 | $167,748 | $167,748 |
| 2007 | $32,405 | $134,438 | $0 | $166,843 | $166,843 |
Deed and Sales History
| 1 | 04/27/2021 | MANHOME | Manufactured Home | JOHNS, KEVIN C | JOHNS, KORY E | | | $0.00 | 49009 | |
| 2 | 04/27/2021 | QCD | Quit Claim Deed | JOHNS, KEVIN C | JOHNS, KORY E | | | $0.00 | 49008 | 4523536 |
| 3 | 07/16/1998 | OTHER | Other - Misc. Documents | JOHNS, KEVIN C | JOHNS FAMILY PARTNERSHIP, | | | $2.00 | 83095 | 0 |
| 4 | 07/16/1998 | QCD | Quit Claim Deed | JOHNS FAMILY PARTNERSHIP, | JOHNS, KEVIN C | | | $0.00 | 82892 | 98015205 |
| 5 | 07/15/1998 | ESTSEPPROP | Establish Separate Property | JOHNS, FAMILY P | JOHNS, KEVIN C | | | $0.00 | 83146 | 98016470 |
| 6 | 11/01/1994 | QCD | Quit Claim Deed | JOHNS, FAMILY P | JOHNS, FAMILY P | | | $0.00 | 44824 | 94024602 |
| 7 | 11/01/1994 | QCD | Quit Claim Deed | JOHNS, FAMILY P | JOHNS, FAMILY P | | | $0.00 | 44825 | 94024603 |
| 8 | 11/01/1994 | QCD | Quit Claim Deed | JOHNS, FAMILY P | JOHNS, FAMILY P | | | $0.00 | 44826 | 94024604 |
| 9 | 09/01/1994 | OTHER | Other - Misc. Documents | JOHNS, GEORGE E | JOHNS, FAMILY P | | | $0.00 | 43895 | 0 |
| 10 | 09/01/1994 | QCD | Quit Claim Deed | JOHNS, FAMILY P | JOHNS, GEORGE E | | | $0.00 | 43629 | 94019119 |
| 11 | 09/01/1994 | QCD | Quit Claim Deed | JOHNS, ROBERT P | JOHNS, FAMILY P | | | $0.00 | 43628 | 94019118 |
| 12 | 05/01/1989 | QCD | Quit Claim Deed | JOHNS, KEVIN C | JOHNS, ROBERT P | | | $0.00 | 20106 | 92000457 |
| 13 | 01/01/1900 | OTHER | Other - Misc. Documents | JOHNS, GEORGE | JOHNS, GEORGE E | | | $15,500.00 | 0 | 0 |
| 14 | 01/01/1900 | OTHER | Other - Misc. Documents | JOHNS, KEVIN C | JOHNS, KEVIN C | | | $0.00 | 82892 | 98015205 |
| 15 | 01/01/1900 | OTHER | Other - Misc. Documents | JOHNS, GEORGE E | JOHNS, KEVIN C | | | $0.00 | 83146 | 98016470 |
| 16 | 01/01/1900 | OTHER | Other - Misc. Documents | Unknown | JOHNS, GEORGE | | | $0.00 | 0 | 0 |
Payout Agreement
| No payout information available.. |