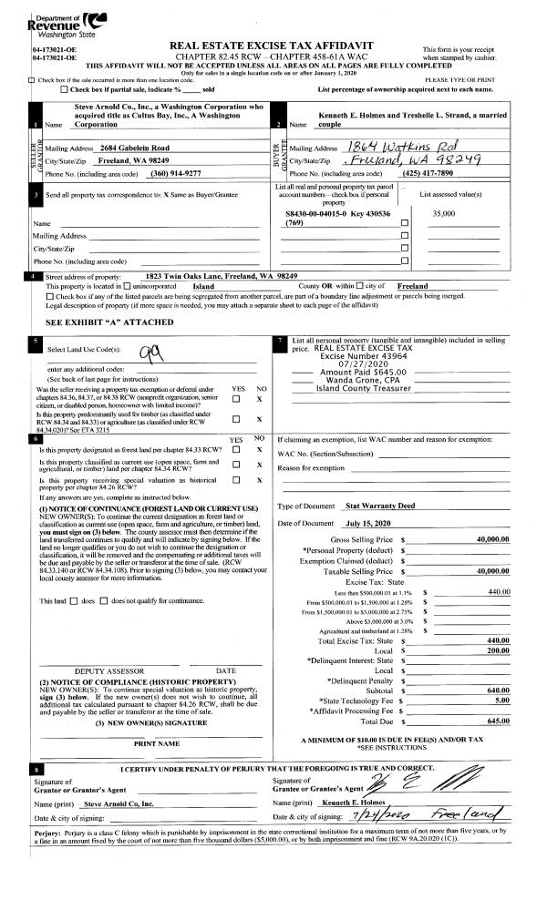
Property
Account |
| Property ID: | 760938 | Abbreviated Legal Description: | NOT ASSESSED BY STATE TCNO 15-86 IN SW SW: BG NLN HWY N712 .17' & E548.90' FR SWCR SD SUBD S87*W178.35' N316.69' N87*E178.31' S316.69' TPB TGW: BG INTER HWY & E HARBOR RD E178.35' TPB N316 .69' TO SLN HAWTHORN HTS N87*E44' S316.69' TO NLN HWY W ALG NLN 4 |
| Geographic ID: | R22911-085-0480 | Agent Code: | |
| Type: | Real | | |
| Tax Area: | 762 - APPRAISER-S Whid Schl Dist, Special District, improved, greater than 1 acre | Land Use Code | 59 |
| Open Space: | N | DFL | N |
| Historic Property: | N | Remodel Property: | N |
| Multi-Family Redevelopment: | N | | |
| Township: | 29 | Section: | 11 |
| Range: | R2 |
Location |
| Address: | 1635 E MAIN ST FREELAND, WA 98249 | Mapsco: | |
| Neighborhood: | 34cFR-main st 1 | Map ID: | 313 |
| Neighborhood CD: | 34cFRmain1 |
Owner |
| Name: | FREELAND COMMERCIAL CORNER, LLC | Owner ID: | 293034 |
| Mailing Address: | 14888 SR525 LANGLEY, WA 98260 | % Ownership: | 100.0000000000% |
| | | Exemptions: | |
Taxes and Assessment Details
Values
| (+) Improvement Homesite Value: | + | $0 | |
| (+) Improvement Non-Homesite Value: | + | $362,403 | |
| (+) Land Homesite Value: | + | $0 | |
| (+) Land Non-Homesite Value: | + | $705,672 | |
| (+) Curr Use (HS): | + | $0 | $0 |
| (+) Curr Use (NHS): | + | $0 | $0 |
| | | -------------------------- | |
| (=) Market Value: | = | $1,068,075 | |
| (–) Productivity Loss: | – | $0 | |
| | | -------------------------- | |
| (=) Subtotal: | = | $1,068,075 | |
| (+) Senior Appraised Value: | + | $0 | |
| (+) Non-Senior Appraised Value: | + | $1,068,075 | |
| | | -------------------------- | |
| (=) Total Appraised Value: | = | $1,068,075 | |
| (–) Senior Exemption Loss: | – | $0 | |
| (–) Exemption Loss: | – | $0 | |
| | | -------------------------- | |
| (=) Taxable Value: | = | $1,068,075 | |
Taxing Jurisdiction
| Owner: | FREELAND COMMERCIAL CORNER, LLC | | |
| % Ownership: | 100.0000000000% | | |
| Total Value: | $1,068,075 | | |
| Tax Area: | 762 - APPRAISER-S Whid Schl Dist, Special District, improved, greater than 1 acre |
| CF | Conservation Futures | 0.0316035091 | $1,068,075 | $1,068,075 | $33.75 | | |
| FIRE3 | Fire & Rescue Dist #3 S Whidbey GEN | 1.2004855531 | $1,068,075 | $1,068,075 | $1,282.21 | | |
| HOBOND | Hospital BOND | 0.1910887512 | $1,068,075 | $1,068,075 | $204.10 | | |
| HOGEN | Hospital GEN | 0.3902502903 | $1,068,075 | $1,068,075 | $416.82 | | |
| CE | County Current Expense | 0.3708482477 | $1,068,075 | $1,068,075 | $396.09 | | |
| CR | County Roads | 0.4584763726 | $1,068,075 | $1,068,075 | $489.69 | | |
| ISLANDEMS | Hospital GEN (EMS) | 0.5000000000 | $1,068,075 | $1,068,075 | $534.04 | | |
| LIB | Library Sno-Isle GEN | 0.3153421757 | $1,068,075 | $1,068,075 | $336.81 | | |
| PORTWHID | Port of S Whidbey GEN | 0.1094540357 | $1,068,075 | $1,068,075 | $116.91 | | |
| SCH206BOND | School 206 BOND | 0.3161759235 | $1,068,075 | $1,068,075 | $337.70 | | |
| SCH206MO | School 206 Enrichment | 0.4547169547 | $1,068,075 | $1,068,075 | $485.67 | | |
| ST | State School | 1.3035497053 | $1,068,075 | $1,068,075 | $1,392.29 | | |
| ST2 | State School Part 2 | 0.8169543533 | $1,068,075 | $1,068,075 | $872.57 | | |
| SWHIDPRBD | P & R S Whidbey BOND | 0.0152817568 | $1,068,075 | $1,068,075 | $16.32 | | |
| SWHIDPRBD2 | P & R S Whidbey BOND2 | 0.0138911264 | $1,068,075 | $1,068,075 | $14.84 | | |
| SWHIDPRMT | P & R S Whidbey GEN | 0.2053334452 | $1,068,075 | $1,068,075 | $219.31 | | |
| | Total Tax Rate: | 6.6934522006 | | | | | |
| | | | | Taxes w/Current Exemptions: | $7,149.12 | | |
| | | | | Taxes w/o Exemptions: | $7,149.12 | | |
Improvement / Building
| Improvement #1: | COMMERCIAL | State Code: | F1 | 12317.0 sqft | Value: | $362,403 |
| Bathrooms: | 0 | Bedrooms: | 0 | | Ceiling: | DRY WALL SPRAYED | Exterior Wall/Cover: | WD/WD OR STEEL STUDS | | Floor Covering: | VINYL TILE | Floor Structure: | CONCRETE ON GROUND | | Foundation: | CONCRETE | Heating: | FHA ELECTRIC | | Interior Finish: | SHOPPING CENTER | Plumbing Fixture Cnt: | 1 | | Roof Structure/Cover: | BEAM BUILT-UP ROCK |   |   |
|
| | Type | Description | Class CD | Sub Class CD | Year Built | Area |
| | BAS | BASE/MAIN FLOOR | 3 | 0 | 1930 | 11597.0 |
| | OP1 | OPEN PORCH SLAB | 3 | 0 | 1930 | 200.0 |
| | OP1 | OPEN PORCH SLAB | 3 | 0 | 1930 | 840.0 |
| | OP2 | OPEN PORCH W/STEPS | 3 | 0 | 1930 | 60.0 |
| | OP2 | OPEN PORCH W/STEPS | 3 | 0 | 1930 | 52.0 |
| | OP4 | OPEN PORCH W/CEILING-ROOF | 3 | 0 | 1930 | 96.0 |
| | OWP | OPEN WOOD PORCH W/STEPS | 3 | 0 | 1930 | 180.0 |
| | OWR | OPEN WOOD PORCH W/STEPS/ROOF | 3 | 0 | 1930 | 96.0 |
| | UPS | UPPER STORY | 3 | 0 | 1930 | 720.0 |
| | UB8 | BASEMENT UNFINISHED 8" | 3 | 0 | 1930 | 840.0 |
| | UTY | STORAGE/UTILITY | 3 | 0 | 1930 | 392.0 |
| | oPV2 | PV/ASPH 3" | 3 | 0 | 1930 | 3920.0 |
Sketch
Property Image
Land
| 1 | 68 | COMMERCIAL RETAIL | 0.8295 | 70567.20 | 0.00 | 0.00 | 1.00 | $705,672 | $0 |
Roll Value History
| 2026 | N/A | N/A | N/A | N/A | N/A |
| 2025 | $362,403 | $705,672 | $0 | $1,068,075 | $1,068,075 |
| 2024 | $362,817 | $705,672 | $0 | $1,068,489 | $1,068,489 |
| 2023 | $363,233 | $705,672 | $0 | $1,068,905 | $1,068,905 |
| 2022 | $272,261 | $705,672 | $0 | $977,933 | $977,933 |
| 2021 | $269,244 | $705,672 | $0 | $974,916 | $974,916 |
| 2020 | $268,910 | $705,672 | $0 | $974,582 | $974,582 |
| 2019 | $223,836 | $705,672 | $0 | $929,508 | $929,508 |
| 2018 | $223,864 | $635,105 | $0 | $858,969 | $858,969 |
| 2017 | $223,920 | $357,083 | $0 | $581,003 | $581,003 |
| 2016 | $224,029 | $357,083 | $0 | $581,112 | $581,112 |
| 2015 | $224,142 | $357,083 | $0 | $581,225 | $581,225 |
| 2014 | $218,332 | $357,083 | $0 | $575,415 | $575,415 |
| 2013 | $192,712 | $330,058 | $0 | $522,770 | $522,770 |
| 2012 | $334,608 | $330,058 | $0 | $664,666 | $664,666 |
| 2011 | $334,608 | $330,058 | $0 | $664,666 | $664,666 |
| 2010 | $348,734 | $330,058 | $0 | $678,792 | $678,792 |
| 2009 | $356,007 | $330,059 | $0 | $686,066 | $686,066 |
| 2008 | $370,553 | $330,059 | $0 | $700,612 | $700,612 |
| 2007 | $406,918 | $330,059 | $0 | $736,977 | $736,977 |
Deed and Sales History
| 1 | 12/24/2019 | QCD | Quit Claim Deed | WHIDBEY TELEPHONE COMPANY | FREELAND COMMERCIAL CORNER, LLC | | | $0.00 | 41625 | 4478294 |
| 2 | 11/03/2011 | WD | Warranty Deed | DRUMHELLER, GLENN W | WHIDBEY TELEPHONE COMPANY | | | $700,000.00 | 6045 | 4304188 |
| 3 | 03/01/1998 | BLA | DNU - Boundary Line Adjustment | DRUMHELLER, GLENN W | DRUMHELLER, GLENN W | | | $0.00 | 67844 | 98004458 |
| 4 | 10/01/1996 | WD | Warranty Deed | Unknown | DRUMHELLER, GLENN W | | | $260,000.00 | 64079 | 96019907 |
Payout Agreement
| No payout information available.. |