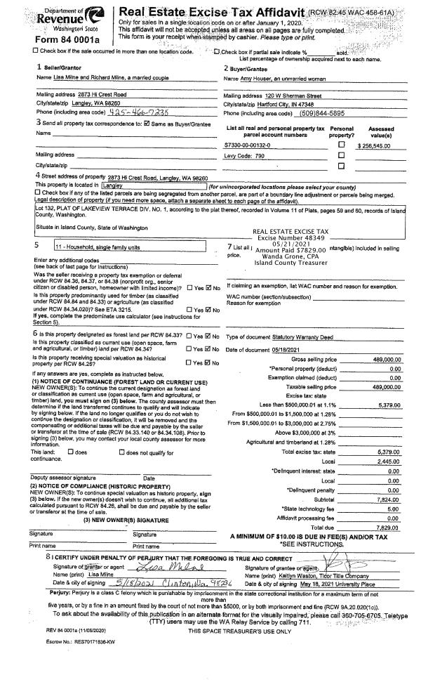
Property
Account |
| Property ID: | 760992 | Abbreviated Legal Description: | PT OF FOLL DESC LY N OF EWING RD: LOT 3 SP 25-91.32920.069-4150 V2 SP P391 AF#92024687 FR PT 033-3960 |
| Geographic ID: | R32920-044-3960 | Agent Code: | |
| Type: | Real | | |
| Tax Area: | 712 - APPRAISER-S Whid Schl Dist, outside Langley, improved, greater than 1 acre | Land Use Code | 11 |
| Open Space: | N | DFL | N |
| Historic Property: | N | Remodel Property: | N |
| Multi-Family Redevelopment: | N | | |
| Township: | 29 | Section: | 20 |
| Range: | R3 |
Location |
| Address: | 6376 GREENBOWER LN CLINTON, WA 98236 | Mapsco: | |
| Neighborhood: | Cycle 4 | Map ID: | 792 |
| Neighborhood CD: | 4 |
Owner |
| Name: | MATTERN, YVONNE | Owner ID: | 309188 |
| Mailing Address: | 6376 GREENBOWER LN CLINTON, WA 98236 | % Ownership: | 100.0000000000% |
| | | Exemptions: | |
Taxes and Assessment Details
Values
| (+) Improvement Homesite Value: | + | $0 | |
| (+) Improvement Non-Homesite Value: | + | $247,994 | |
| (+) Land Homesite Value: | + | $0 | |
| (+) Land Non-Homesite Value: | + | $380,000 | |
| (+) Curr Use (HS): | + | $0 | $0 |
| (+) Curr Use (NHS): | + | $0 | $0 |
| | | -------------------------- | |
| (=) Market Value: | = | $627,994 | |
| (–) Productivity Loss: | – | $0 | |
| | | -------------------------- | |
| (=) Subtotal: | = | $627,994 | |
| (+) Senior Appraised Value: | + | $0 | |
| (+) Non-Senior Appraised Value: | + | $627,994 | |
| | | -------------------------- | |
| (=) Total Appraised Value: | = | $627,994 | |
| (–) Senior Exemption Loss: | – | $0 | |
| (–) Exemption Loss: | – | $0 | |
| | | -------------------------- | |
| (=) Taxable Value: | = | $627,994 | |
Taxing Jurisdiction
| Owner: | MATTERN, YVONNE | | |
| % Ownership: | 100.0000000000% | | |
| Total Value: | $627,994 | | |
| Tax Area: | 712 - APPRAISER-S Whid Schl Dist, outside Langley, improved, greater than 1 acre |
| CF | Conservation Futures | 0.0316035091 | $627,994 | $627,994 | $19.85 | | |
| FIRE3 | Fire & Rescue Dist #3 S Whidbey GEN | 1.2004855531 | $627,994 | $627,994 | $753.90 | | |
| HOBOND | Hospital BOND | 0.1910887512 | $627,994 | $627,994 | $120.00 | | |
| HOGEN | Hospital GEN | 0.3902502903 | $627,994 | $627,994 | $245.07 | | |
| CE | County Current Expense | 0.3708482477 | $627,994 | $627,994 | $232.89 | | |
| CR | County Roads | 0.4584763726 | $627,994 | $627,994 | $287.92 | | |
| ISLANDEMS | Hospital GEN (EMS) | 0.5000000000 | $627,994 | $627,994 | $314.00 | | |
| LIB | Library Sno-Isle GEN | 0.3153421757 | $627,994 | $627,994 | $198.03 | | |
| PORTWHID | Port of S Whidbey GEN | 0.1094540357 | $627,994 | $627,994 | $68.74 | | |
| SCH206BOND | School 206 BOND | 0.3161759235 | $627,994 | $627,994 | $198.56 | | |
| SCH206MO | School 206 Enrichment | 0.4547169547 | $627,994 | $627,994 | $285.56 | | |
| ST | State School | 1.3035497053 | $627,994 | $627,994 | $818.62 | | |
| ST2 | State School Part 2 | 0.8169543533 | $627,994 | $627,994 | $513.04 | | |
| SWHIDPRBD | P & R S Whidbey BOND | 0.0152817568 | $627,994 | $627,994 | $9.60 | | |
| SWHIDPRBD2 | P & R S Whidbey BOND2 | 0.0138911264 | $627,994 | $627,994 | $8.72 | | |
| SWHIDPRMT | P & R S Whidbey GEN | 0.2053334452 | $627,994 | $627,994 | $128.95 | | |
| | Total Tax Rate: | 6.6934522006 | | | | | |
| | | | | Taxes w/Current Exemptions: | $4,203.45 | | |
| | | | | Taxes w/o Exemptions: | $4,203.45 | | |
Improvement / Building
| Improvement #1: | RESIDENTIAL | State Code: | Y | 2076.0 sqft | Value: | $247,994 |
| Bathrooms: | 2 | Bedrooms: | 3 | | Ceiling: | DRYWALL PAINTED | Exterior Wall/Cover: | PLY/HARDBOARD T-111 | | Floor Covering: | CARPET/VINYL 80-20 | Floor Structure: | SLAB ON GRADE | | Foundation: | SLAB | Heating: | WALL HEAT ELECTRIC | | Interior Finish: | DRYWALL PAINT | Plumbing Fixture Cnt: | 9 | | Roof Slope: | 4" IN 12" | Roof Structure/Cover: | CJ ASPHALT |
|
| | Type | Description | Class CD | Sub Class CD | Year Built | Area |
| | BAS | BASE/MAIN FLOOR | 3 | 0 | 1995 | 2076.0 |
| | OP3 | OPEN PORCH W/ROOF | 3 | 0 | 1995 | 65.0 |
| | UTY | STORAGE/UTILITY | 3 | 0 | 1995 | 112.0 |
| | UTY | STORAGE/UTILITY | 3 | 0 | 1995 | 484.0 |
Sketch
Property Image
Land
| 1 | 32 | AC (03.01-09.99) | 3.6600 | 0.00 | 0.00 | 0.00 | 1.00 | $380,000 | $0 |
Roll Value History
| 2026 | N/A | N/A | N/A | N/A | N/A |
| 2025 | $247,994 | $380,000 | $0 | $627,994 | $627,994 |
| 2024 | $251,084 | $350,000 | $0 | $601,084 | $601,084 |
| 2023 | $254,173 | $330,000 | $0 | $584,173 | $584,173 |
| 2022 | $232,966 | $290,000 | $0 | $522,966 | $522,966 |
| 2021 | $205,007 | $230,000 | $0 | $435,007 | $435,007 |
| 2020 | $188,183 | $190,000 | $0 | $378,183 | $378,183 |
| 2019 | $142,466 | $250,000 | $0 | $392,466 | $392,466 |
| 2018 | $142,904 | $210,000 | $0 | $352,904 | $352,904 |
| 2017 | $142,666 | $190,000 | $0 | $332,666 | $332,666 |
| 2016 | $144,407 | $135,000 | $0 | $279,407 | $279,407 |
| 2015 | $146,147 | $135,000 | $0 | $281,147 | $281,147 |
| 2014 | $148,412 | $91,500 | $0 | $239,912 | $239,912 |
| 2013 | $150,061 | $124,440 | $0 | $274,501 | $274,501 |
| 2012 | $151,708 | $124,440 | $0 | $276,148 | $276,148 |
| 2011 | $153,358 | $124,440 | $0 | $277,798 | $277,798 |
| 2010 | $158,178 | $124,440 | $0 | $282,618 | $282,618 |
| 2009 | $165,015 | $161,040 | $0 | $326,055 | $326,055 |
| 2008 | $155,165 | $183,000 | $0 | $338,165 | $338,165 |
| 2007 | $157,455 | $140,910 | $0 | $298,365 | $298,365 |
Deed and Sales History
| 1 | 06/26/2023 | QCD | Quit Claim Deed | MATTERN, ANDREW | MATTERN, YVONNE | | | $0.00 | 57201 | 4561844 |
| 2 | 12/21/2001 | TRUSTEED | Trustee's Deed | CHASE MANHATTAN BANK, | MATTERN, ANDREW | | | $137,066.00 | 20264 | 4009033 |
| 3 | 07/26/2001 | TRUSTEED | Trustee's Deed | KASHA, JEFFREY A | CHASE MANHATTAN BANK, | | | $124,191.00 | 12819 | 20038237 |
| 4 | 03/01/1998 | SEG | DNU - Segregation | KASHA, JEFFREY A | KASHA, JEFFREY A | | | $0.00 | 67851 | 0 |
| 5 | 01/01/1900 | OTHER | Other - Misc. Documents | Unknown | KASHA, JEFFREY A | | | $0.00 | 32424 | 93012445 |
Payout Agreement
| No payout information available.. |