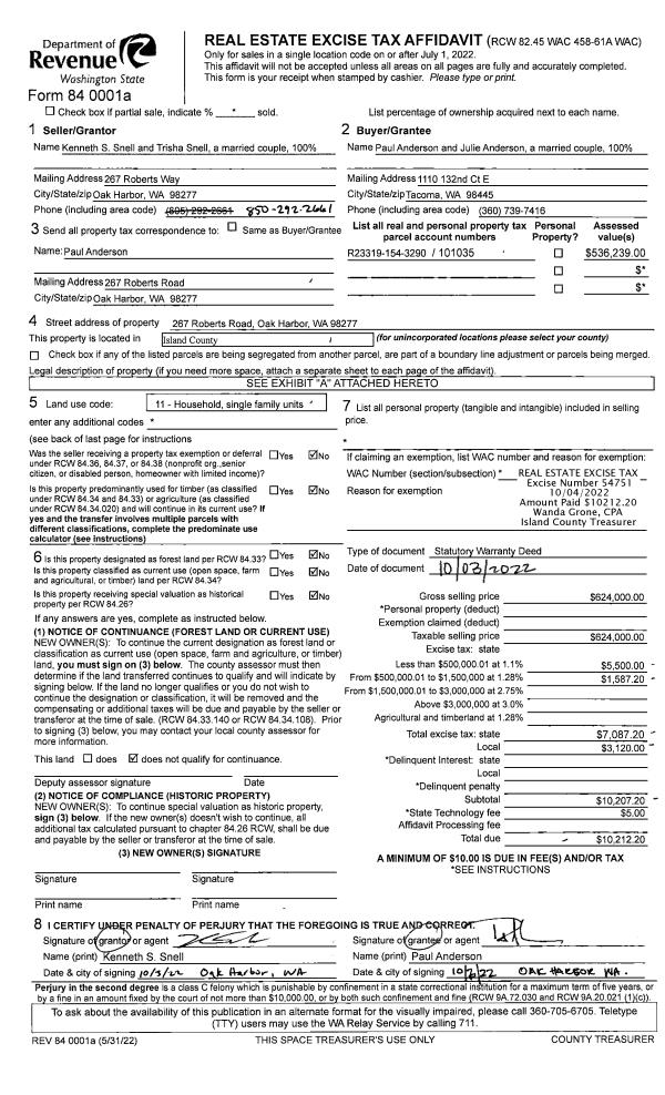
Property
Account |
| Property ID: | 76152 | Abbreviated Legal Description: | 64 - SW NE SW NW SUBJ TO EZ N30' |
| Geographic ID: | R23111-355-0890 | Agent Code: | |
| Type: | Real | | |
| Tax Area: | 512 - APPRAISER-Stan/Cam Schl Dist, improved, greater than 1 acre | Land Use Code | 11 |
| Open Space: | N | DFL | N |
| Historic Property: | N | Remodel Property: | N |
| Multi-Family Redevelopment: | N | | |
| Township: | 31 | Section: | 11 |
| Range: | R2 |
Location |
| Address: | 739 DOUGLAS LN CAMANO ISLAND, WA 98282 | Mapsco: | |
| Neighborhood: | Cycle 5 | Map ID: | 471 |
| Neighborhood CD: | 5 |
Owner |
| Name: | ANDERSON, TIMOTHY D | Owner ID: | 267165 |
| Mailing Address: | JUDY L ANDERSON 739 DOUGLAS LN CAMANO ISLAND, WA 98282 | % Ownership: | 100.0000000000% |
| | | Exemptions: | |
Taxes and Assessment Details
Values
| (+) Improvement Homesite Value: | + | $0 | |
| (+) Improvement Non-Homesite Value: | + | $176,030 | |
| (+) Land Homesite Value: | + | $0 | |
| (+) Land Non-Homesite Value: | + | $300,000 | |
| (+) Curr Use (HS): | + | $0 | $0 |
| (+) Curr Use (NHS): | + | $0 | $0 |
| | | -------------------------- | |
| (=) Market Value: | = | $476,030 | |
| (–) Productivity Loss: | – | $0 | |
| | | -------------------------- | |
| (=) Subtotal: | = | $476,030 | |
| (+) Senior Appraised Value: | + | $0 | |
| (+) Non-Senior Appraised Value: | + | $476,030 | |
| | | -------------------------- | |
| (=) Total Appraised Value: | = | $476,030 | |
| (–) Senior Exemption Loss: | – | $0 | |
| (–) Exemption Loss: | – | $0 | |
| | | -------------------------- | |
| (=) Taxable Value: | = | $476,030 | |
Taxing Jurisdiction
| Owner: | ANDERSON, TIMOTHY D | | |
| % Ownership: | 100.0000000000% | | |
| Total Value: | $476,030 | | |
| Tax Area: | 512 - APPRAISER-Stan/Cam Schl Dist, improved, greater than 1 acre |
| CF | Conservation Futures | 0.0316035091 | $476,030 | $476,030 | $15.04 | | |
| EMS1 | Fire & Rescue Dist #1 Camano GEN (EMS) | 0.3677864386 | $476,030 | $476,030 | $175.08 | | |
| FIRE1 | Fire & Rescue Dist #1 Camano GEN | 1.2502910536 | $476,030 | $476,030 | $595.18 | | |
| FIRE1BOND | Fire & Rescue Dist #1 Camano BOND | 0.1570001679 | $476,030 | $476,030 | $74.74 | | |
| CE | County Current Expense | 0.3708482477 | $476,030 | $476,030 | $176.53 | | |
| CR | County Roads | 0.4584763726 | $476,030 | $476,030 | $218.25 | | |
| LCIB | Library Sno-Isle BOND (Camano Island) | 0.0396325772 | $476,030 | $476,030 | $18.87 | | |
| LIB | Library Sno-Isle GEN | 0.3153421757 | $476,030 | $476,030 | $150.11 | | |
| SCH205_401 | School 205-401 Enrichment | 1.2698420524 | $476,030 | $476,030 | $604.48 | | |
| SCH205BOND | School 205-401 BOND | 0.9396497583 | $476,030 | $476,030 | $447.30 | | |
| ST | State School | 1.3035497053 | $476,030 | $476,030 | $620.53 | | |
| ST2 | State School Part 2 | 0.8169543533 | $476,030 | $476,030 | $388.89 | | |
| | Total Tax Rate: | 7.3209764117 | | | | | |
| | | | | Taxes w/Current Exemptions: | $3,485.00 | | |
| | | | | Taxes w/o Exemptions: | $3,485.00 | | |
Improvement / Building
| Improvement #1: | MANUFACTURED HOME | State Code: | Y | 1782.0 sqft | Value: | $176,030 |
| Bathrooms: | 0 | Bedrooms: | 0 | | Ceiling: | PLASTER PAINTED | Cooling: | EVAP NO DUCT | | Exterior Wall/Cover: | VINYL | Floor Covering: | CARPET 100% | | Floor Structure: | SLAB ON GRADE | Foundation: | SLAB | | Heating: | FHA ELECTRIC | Interior Finish: | PLASTER | | Plumbing Fixture Cnt: | 1 | Roof Slope: | FLAT | | Roof Structure/Cover: | CJ ALUMINIUM HEAVY |   |   |
|
| | Type | Description | Class CD | Sub Class CD | Year Built | Area |
| | BAS | BASE/MAIN FLOOR | 4 | 0 | 2000 | 1782.0 |
| | DGR | DETACHED GARAGE | 4 | 0 | 2000 | 1624.0 |
| | OWP | OPEN WOOD PORCH W/STEPS | 4 | 0 | 2000 | 96.0 |
| | UTY | STORAGE/UTILITY | 4 | 0 | 2000 | 120.0 |
Sketch
Property Image
Land
| 1 | 18 | AC (02.01-03.00) | 2.5000 | 108900.00 | 0.00 | 0.00 | 1.00 | $300,000 | $0 |
Roll Value History
| 2026 | N/A | N/A | N/A | N/A | N/A |
| 2025 | $176,030 | $300,000 | $0 | $476,030 | $476,030 |
| 2024 | $181,206 | $280,000 | $0 | $461,206 | $461,206 |
| 2023 | $162,073 | $270,000 | $0 | $432,073 | $432,073 |
| 2022 | $148,802 | $260,000 | $0 | $408,802 | $408,802 |
| 2021 | $125,068 | $180,000 | $0 | $305,068 | $305,068 |
| 2020 | $123,081 | $150,000 | $0 | $273,081 | $273,081 |
| 2019 | $99,627 | $200,000 | $0 | $299,627 | $299,627 |
| 2018 | $102,283 | $150,000 | $0 | $252,283 | $252,283 |
| 2017 | $104,940 | $135,000 | $0 | $239,940 | $239,940 |
| 2016 | $107,597 | $140,000 | $0 | $247,597 | $247,597 |
| 2015 | $116,165 | $63,200 | $0 | $179,365 | $179,365 |
| 2014 | $117,979 | $63,200 | $0 | $181,179 | $181,179 |
| 2013 | $119,792 | $63,200 | $0 | $182,992 | $182,992 |
| 2012 | $121,606 | $63,200 | $0 | $184,806 | $184,806 |
| 2011 | $122,513 | $79,000 | $0 | $201,513 | $201,513 |
| 2010 | $117,371 | $79,000 | $0 | $196,371 | $196,371 |
| 2009 | $119,292 | $130,000 | $0 | $249,292 | $249,292 |
| 2008 | $122,224 | $125,235 | $0 | $247,459 | $247,459 |
| 2007 | $125,499 | $125,235 | $0 | $250,734 | $250,734 |
Deed and Sales History
| 1 | 07/15/2014 | SPLTDWARDE | Special Limited Warranty Deed | FEDERAL NATIONAL MORTGAGE ASSOCIATION | ANDERSON, TIMOTHY D | | | $175,900.00 | 16067 | 4362519 |
| 2 | 12/19/2013 | TRUSTEED | Trustee's Deed | WILLIAMS, DARREN L | FEDERAL NATIONAL MORTGAGE ASSOCIATION | | | $129,331.00 | 13929 | 4353440 |
| 3 | 07/13/1999 | WD | Warranty Deed | PORT GARDNER TIMBER CO INC, | WILLIAMS, DARREN L | | | $36,000.00 | 92863 | 99016975 |
| 4 | 06/01/1998 | WD | Warranty Deed | LAFIELD, CLARENCE L | PORT GARDNER TIMBER CO INC, | | | $34,500.00 | 82221 | 98011541 |
| 5 | 03/01/1981 | EXECUTORD | Executor Deed | ELDRIDGE, SEYMOUR S | LAFIELD, CLARENCE L | | | $18,500.00 | 11005 | 381441 |
| 6 | 12/01/1980 | TRUSTEED | Trustee's Deed | ROE, VIRGIL V | ELDRIDGE, SEYMOUR S | | | $12,000.00 | 4238 | 377719 |
Payout Agreement
| No payout information available.. |