Property
Account |
| Property ID: | 76161 | Abbreviated Legal Description: | 11 - S/2 E/2 NE SW NW SUBJ TO EZ |
| Geographic ID: | R23111-356-1230 | Agent Code: | |
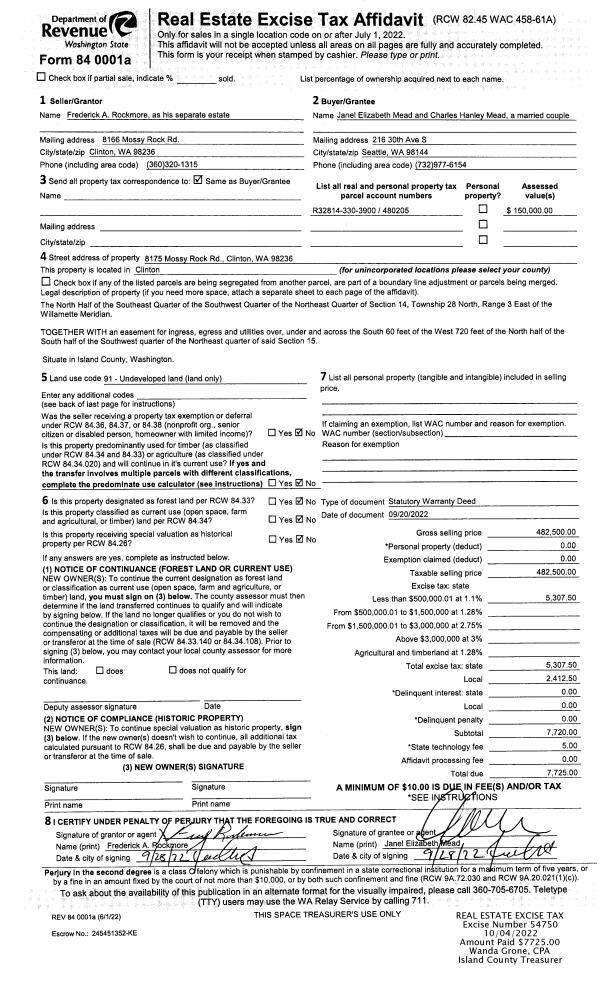
| Type: | Real | | |
| Tax Area: | 512 - APPRAISER-Stan/Cam Schl Dist, improved, greater than 1 acre | Land Use Code | 11 |
| Open Space: | N | DFL | N |
| Historic Property: | N | Remodel Property: | N |
| Multi-Family Redevelopment: | N | | |
| Township: | 31 | Section: | 11 |
| Range: | R2 |
Location |
| Address: | 723 DOUGLAS LN CAMANO ISLAND, WA 98282 | Mapsco: | |
| Neighborhood: | Cycle 5 | Map ID: | 471 |
| Neighborhood CD: | 5 |
Owner |
| Name: | YOUNG, GERALD A | Owner ID: | 3430 |
| Mailing Address: | 723 DOUGLAS LN CAMANO ISLAND, WA 98282-6520 | % Ownership: | 100.0000000000% |
| | | Exemptions: | |
Taxes and Assessment Details
Values
| (+) Improvement Homesite Value: | + | $0 | |
| (+) Improvement Non-Homesite Value: | + | $376,322 | |
| (+) Land Homesite Value: | + | $0 | |
| (+) Land Non-Homesite Value: | + | $300,000 | |
| (+) Curr Use (HS): | + | $0 | $0 |
| (+) Curr Use (NHS): | + | $0 | $0 |
| | | -------------------------- | |
| (=) Market Value: | = | $676,322 | |
| (–) Productivity Loss: | – | $0 | |
| | | -------------------------- | |
| (=) Subtotal: | = | $676,322 | |
| (+) Senior Appraised Value: | + | $0 | |
| (+) Non-Senior Appraised Value: | + | $676,322 | |
| | | -------------------------- | |
| (=) Total Appraised Value: | = | $676,322 | |
| (–) Senior Exemption Loss: | – | $0 | |
| (–) Exemption Loss: | – | $0 | |
| | | -------------------------- | |
| (=) Taxable Value: | = | $676,322 | |
Taxing Jurisdiction
| Owner: | YOUNG, GERALD A | | |
| % Ownership: | 100.0000000000% | | |
| Total Value: | $676,322 | | |
| Tax Area: | 512 - APPRAISER-Stan/Cam Schl Dist, improved, greater than 1 acre |
| CF | Conservation Futures | 0.0316035091 | $676,322 | $676,322 | $21.37 | | |
| EMS1 | Fire & Rescue Dist #1 Camano GEN (EMS) | 0.3677864386 | $676,322 | $676,322 | $248.74 | | |
| FIRE1 | Fire & Rescue Dist #1 Camano GEN | 1.2502910536 | $676,322 | $676,322 | $845.60 | | |
| FIRE1BOND | Fire & Rescue Dist #1 Camano BOND | 0.1570001679 | $676,322 | $676,322 | $106.18 | | |
| CE | County Current Expense | 0.3708482477 | $676,322 | $676,322 | $250.81 | | |
| CR | County Roads | 0.4584763726 | $676,322 | $676,322 | $310.08 | | |
| LCIB | Library Sno-Isle BOND (Camano Island) | 0.0396325772 | $676,322 | $676,322 | $26.80 | | |
| LIB | Library Sno-Isle GEN | 0.3153421757 | $676,322 | $676,322 | $213.27 | | |
| SCH205_401 | School 205-401 Enrichment | 1.2698420524 | $676,322 | $676,322 | $858.82 | | |
| SCH205BOND | School 205-401 BOND | 0.9396497583 | $676,322 | $676,322 | $635.51 | | |
| ST | State School | 1.3035497053 | $676,322 | $676,322 | $881.62 | | |
| ST2 | State School Part 2 | 0.8169543533 | $676,322 | $676,322 | $552.52 | | |
| | Total Tax Rate: | 7.3209764117 | | | | | |
| | | | | Taxes w/Current Exemptions: | $4,951.32 | | |
| | | | | Taxes w/o Exemptions: | $4,951.32 | | |
Improvement / Building
| Improvement #1: | RESIDENTIAL | State Code: | Y | 3123.0 sqft | Value: | $376,322 |
| Bathrooms: | 4.25 | Bedrooms: | 4 | | Ceiling: | DRYWALL PAINTED | Exterior Wall/Cover: | WOOD SIDING | | Floor Covering: | HARDWOOD/CARP 60-40 | Floor Structure: | WOOD W/SUBFLOOR | | Foundation: | CONCRETE | Heating: | FHA ELECTRIC | | Interior Finish: | DRYWALL PAINT | Plumbing Fixture Cnt: | 17 | | Roof Slope: | 4" IN 12" | Roof Structure/Cover: | CJ ASPHALT |
|
| | Type | Description | Class CD | Sub Class CD | Year Built | Area |
| | BAS | BASE/MAIN FLOOR | 3 | 0 | 1989 | 1559.0 |
| | OCP | OPEN CARPORT | 3 | 0 | 1989 | 476.0 |
| | UPS | UPPER STORY | 3 | 0 | 1989 | 1564.0 |
| | BAW | BALCONY WOOD RAIL | 3 | 0 | 1989 | 182.0 |
| | OWR | OPEN WOOD PORCH W/STEPS/ROOF | 3 | 0 | 1989 | 481.0 |
| | OWP | OPEN WOOD PORCH W/STEPS | 3 | 0 | 1989 | 358.0 |
Sketch
Property Image
Land
| 1 | 18 | AC (02.01-03.00) | 2.5000 | 108900.00 | 0.00 | 0.00 | 1.00 | $300,000 | $0 |
Roll Value History
| 2026 | N/A | N/A | N/A | N/A | N/A |
| 2025 | $376,322 | $300,000 | $0 | $676,322 | $676,322 |
| 2024 | $381,458 | $280,000 | $0 | $661,458 | $661,458 |
| 2023 | $386,596 | $270,000 | $0 | $656,596 | $656,596 |
| 2022 | $354,714 | $260,000 | $0 | $614,714 | $614,714 |
| 2021 | $304,408 | $180,000 | $0 | $484,408 | $484,408 |
| 2020 | $297,277 | $150,000 | $0 | $447,277 | $447,277 |
| 2019 | $237,722 | $200,000 | $0 | $437,722 | $437,722 |
| 2018 | $238,491 | $150,000 | $0 | $388,491 | $388,491 |
| 2017 | $240,028 | $135,000 | $0 | $375,028 | $375,028 |
| 2016 | $243,107 | $140,000 | $0 | $383,107 | $383,107 |
| 2015 | $223,591 | $63,200 | $0 | $286,791 | $286,791 |
| 2014 | $226,631 | $63,200 | $0 | $289,831 | $289,831 |
| 2013 | $229,677 | $63,200 | $0 | $292,877 | $292,877 |
| 2012 | $232,717 | $63,200 | $0 | $295,917 | $295,917 |
| 2011 | $235,760 | $79,000 | $0 | $314,760 | $314,760 |
| 2010 | $246,323 | $79,000 | $0 | $325,323 | $325,323 |
| 2009 | $267,305 | $130,000 | $0 | $397,305 | $397,305 |
| 2008 | $270,638 | $101,640 | $0 | $372,278 | $372,278 |
| 2007 | $273,960 | $101,640 | $0 | $375,600 | $375,600 |
Deed and Sales History
| 1 | 06/01/1990 | WD | Warranty Deed | PALMER, JEFFERY A | YOUNG, GERALD A | | | $165,000.00 | 3591 | 90011629 |
| 2 | 09/01/1988 | REC | Real Estate Contract | BELL, DUANE A | PALMER, JEFFERY A | | | $17,500.00 | 83034 | 88011311 |
| 3 | 07/01/1985 | WD | Warranty Deed | GEBHARDT, GEORGE G | BELL, DUANE A | | | $11,500.00 | 52008 | 85007892 |
| 4 | 08/01/1978 | OTHER | Other - Misc. Documents | Unknown | GEBHARDT, GEORGE G | | | $6,950.00 | 84050 | 338491 |
Payout Agreement
| No payout information available.. |