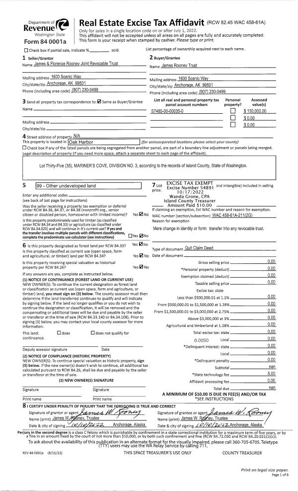
Property
Account |
| Property ID: | 761982 | Abbreviated Legal Description: | 1997 FLEETWOOD 25X38 VIN# ORFLV4851434HH13 TPO &104824 |
| Geographic ID: | M906500000050 | Agent Code: | |
| Type: | Mobile Home | | |
| Tax Area: | 510 - APPRAISER-Stan/Cam Schl Dist, improved & 1 acre or less | Land Use Code | 11 |
| Open Space: | N | DFL | N |
| Historic Property: | N | Remodel Property: | N |
| Multi-Family Redevelopment: | N | | |
| Township: | | Section: | |
| Range: | |
Location |
| Address: | 74 WREN LN CAMANO ISLAND, WA 98282 | Mapsco: | |
| Neighborhood: | Cycle 5 | Map ID: | |
| Neighborhood CD: | 5 |
Owner |
| Name: | FISCHER, BONNIE J | Owner ID: | 316725 |
| Mailing Address: | 74 WREN LANE CAMANO ISLAND, WA 98282 | % Ownership: | 100.0000000000% |
| | | Exemptions: | |
Taxes and Assessment Details
Values
| (+) Improvement Homesite Value: | + | $0 | |
| (+) Improvement Non-Homesite Value: | + | $126,177 | |
| (+) Land Homesite Value: | + | $0 | |
| (+) Land Non-Homesite Value: | + | $0 | |
| (+) Curr Use (HS): | + | $0 | $0 |
| (+) Curr Use (NHS): | + | $0 | $0 |
| | | -------------------------- | |
| (=) Market Value: | = | $126,177 | |
| (–) Productivity Loss: | – | $0 | |
| | | -------------------------- | |
| (=) Subtotal: | = | $126,177 | |
| (+) Senior Appraised Value: | + | $0 | |
| (+) Non-Senior Appraised Value: | + | $126,177 | |
| | | -------------------------- | |
| (=) Total Appraised Value: | = | $126,177 | |
| (–) Senior Exemption Loss: | – | $0 | |
| (–) Exemption Loss: | – | $0 | |
| | | -------------------------- | |
| (=) Taxable Value: | = | $126,177 | |
Taxing Jurisdiction
| Owner: | FISCHER, BONNIE J | | |
| % Ownership: | 100.0000000000% | | |
| Total Value: | $126,177 | | |
| Tax Area: | 510 - APPRAISER-Stan/Cam Schl Dist, improved & 1 acre or less |
| CF | Conservation Futures | 0.0316035091 | $126,177 | $126,177 | $3.99 | | |
| EMS1 | Fire & Rescue Dist #1 Camano GEN (EMS) | 0.3677864386 | $126,177 | $126,177 | $46.41 | | |
| FIRE1 | Fire & Rescue Dist #1 Camano GEN | 1.2502910536 | $126,177 | $126,177 | $157.76 | | |
| FIRE1BOND | Fire & Rescue Dist #1 Camano BOND | 0.1570001679 | $126,177 | $126,177 | $19.81 | | |
| CE | County Current Expense | 0.3708482477 | $126,177 | $126,177 | $46.79 | | |
| CR | County Roads | 0.4584763726 | $126,177 | $126,177 | $57.85 | | |
| LCIB | Library Sno-Isle BOND (Camano Island) | 0.0396325772 | $126,177 | $126,177 | $5.00 | | |
| LIB | Library Sno-Isle GEN | 0.3153421757 | $126,177 | $126,177 | $39.79 | | |
| SCH205_401 | School 205-401 Enrichment | 1.2698420524 | $126,177 | $126,177 | $160.22 | | |
| SCH205BOND | School 205-401 BOND | 0.9396497583 | $126,177 | $126,177 | $118.56 | | |
| ST | State School | 1.3035497053 | $126,177 | $126,177 | $164.48 | | |
| ST2 | State School Part 2 | 0.8169543533 | $126,177 | $126,177 | $103.08 | | |
| | Total Tax Rate: | 7.3209764117 | | | | | |
| | | | | Taxes w/Current Exemptions: | $923.74 | | |
| | | | | Taxes w/o Exemptions: | $923.74 | | |
Improvement / Building
| Improvement #1: | MANUFACTURED HOME | State Code: | Y | 950.0 sqft | Value: | $126,177 |
| Bathrooms: | 2 | Bedrooms: | 1 | | Ceiling: | PLASTER PAINTED | Exterior Wall/Cover: | VINYL | | Floor Covering: | CARPET 100% | Floor Structure: | SLAB ON GRADE | | Foundation: | SLAB | Heating: | FHA ELECTRIC | | Interior Finish: | PLASTER | Plumbing Fixture Cnt: | 1 | | Roof Slope: | FLAT | Roof Structure/Cover: | CJ ALUMINIUM HEAVY |
|
| | Type | Description | Class CD | Sub Class CD | Year Built | Area |
| | BAS | BASE/MAIN FLOOR | 4 | 0 | 1997 | 950.0 |
| | OWR | OPEN WOOD PORCH W/STEPS/ROOF | 4 | 0 | 1997 | 422.0 |
| | UTY | STORAGE/UTILITY | 4 | 0 | 1997 | 120.0 |
| | OP3 | OPEN PORCH W/ROOF | 4 | 0 | 1997 | 200.0 |
| | UB8 | BASEMENT UNFINISHED 8" | 4 | 0 | 1997 | 300.0 |
| | OP3 | OPEN PORCH W/ROOF | 4 | 0 | 1997 | 120.0 |
| | UB8 | BASEMENT UNFINISHED 8" | 4 | 0 | 1997 | 144.0 |
Sketch
Property Image
Land
No land segments exist for this property.
Roll Value History
| 2026 | N/A | N/A | N/A | N/A | N/A |
| 2025 | $126,177 | $0 | $0 | $126,177 | $126,177 |
| 2024 | $127,930 | $0 | $0 | $127,930 | $20,195 |
| 2023 | $114,293 | $0 | $0 | $114,293 | $20,195 |
| 2022 | $106,250 | $0 | $0 | $106,250 | $20,195 |
| 2021 | $89,988 | $0 | $0 | $89,988 | $20,195 |
| 2020 | $89,701 | $0 | $0 | $89,701 | $20,195 |
| 2019 | $72,492 | $0 | $0 | $72,492 | $12,492 |
| 2018 | $74,328 | $0 | $0 | $74,328 | $14,328 |
| 2017 | $76,162 | $0 | $0 | $76,162 | $16,162 |
| 2016 | $77,997 | $0 | $0 | $77,997 | $17,997 |
| 2015 | $80,195 | $0 | $0 | $80,195 | $80,195 |
| 2014 | $97,261 | $0 | $0 | $97,261 | $97,261 |
| 2013 | $98,210 | $0 | $0 | $98,210 | $98,210 |
| 2012 | $99,159 | $0 | $0 | $99,159 | $99,159 |
| 2011 | $100,107 | $0 | $0 | $100,107 | $100,107 |
| 2010 | $100,931 | $0 | $0 | $100,931 | $100,931 |
| 2009 | $41,551 | $0 | $0 | $41,551 | $41,551 |
| 2008 | $42,644 | $0 | $0 | $42,644 | $42,644 |
| 2007 | $43,191 | $0 | $0 | $43,191 | $43,191 |
Deed and Sales History
| 1 | 05/15/2025 | MANHOME | Manufactured Home | MOFFIT, CAROL E | FISCHER, BONNIE J | | | $180,000.00 | 63706 | |
| 2 | 05/15/2025 | MANHOME | Manufactured Home | MOFFIT, ARTHUR G | MOFFIT, CAROL E | | | $0.00 | 63702 | |
| 3 | 07/30/2015 | OTHER | Other - Misc. Documents | AVENA, JOHN | MOFFIT, ARTHUR G | | | $75,000.00 | 20687 | |
| 4 | 08/01/1997 | OTHER | Other - Misc. Documents | Unknown | AVENA, JOHN / | | | $0.00 | 11111111 | 0 |
Payout Agreement
| No payout information available.. |