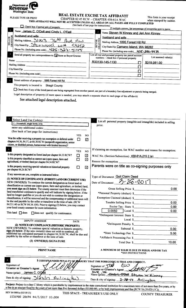
Property
Account |
| Property ID: | 762981 | Abbreviated Legal Description: | 1998 MODULINE 27X51 VIN# 117729 TPO &120380 |
| Geographic ID: | M905000001700 | Agent Code: | |
| Type: | Mobile Home | | |
| Tax Area: | 100 - APPRAISER-OH Schl Dist, in OH | Land Use Code | 11 |
| Open Space: | N | DFL | N |
| Historic Property: | N | Remodel Property: | N |
| Multi-Family Redevelopment: | N | | |
| Township: | | Section: | |
| Range: | |
Location |
| Address: | 1320 N OAK HARBOR ST # 170 OAK HARBOR, WA 98277 | Mapsco: | |
| Neighborhood: | Cycle 1 | Map ID: | |
| Neighborhood CD: | 1 |
Owner |
| Name: | MCINTIRE, MELODEE LYNN | Owner ID: | 287720 |
| Mailing Address: | 1320 N OAK HARBOR ST TRLR 170 OAK HARBOR, WA 98277 | % Ownership: | 100.0000000000% |
| | | Exemptions: | |
Taxes and Assessment Details
Values
| (+) Improvement Homesite Value: | + | $0 | |
| (+) Improvement Non-Homesite Value: | + | $42,409 | |
| (+) Land Homesite Value: | + | $0 | |
| (+) Land Non-Homesite Value: | + | $0 | |
| (+) Curr Use (HS): | + | $0 | $0 |
| (+) Curr Use (NHS): | + | $0 | $0 |
| | | -------------------------- | |
| (=) Market Value: | = | $42,409 | |
| (–) Productivity Loss: | – | $0 | |
| | | -------------------------- | |
| (=) Subtotal: | = | $42,409 | |
| (+) Senior Appraised Value: | + | $0 | |
| (+) Non-Senior Appraised Value: | + | $42,409 | |
| | | -------------------------- | |
| (=) Total Appraised Value: | = | $42,409 | |
| (–) Senior Exemption Loss: | – | $0 | |
| (–) Exemption Loss: | – | $0 | |
| | | -------------------------- | |
| (=) Taxable Value: | = | $42,409 | |
Taxing Jurisdiction
| Owner: | MCINTIRE, MELODEE LYNN | | |
| % Ownership: | 100.0000000000% | | |
| Total Value: | $42,409 | | |
| Tax Area: | 100 - APPRAISER-OH Schl Dist, in OH |
| CF | Conservation Futures | 0.0316035091 | $42,409 | $42,409 | $1.34 | | |
| CEM1 | Cemetery #1 | 0.0040320932 | $42,409 | $42,409 | $0.17 | | |
| COH | City of Oak Harbor | 2.3001546061 | $42,409 | $42,409 | $97.55 | | |
| OAKBOND | City of Oak Harbor BOND | 0.1926904192 | $42,409 | $42,409 | $8.17 | | |
| HOBOND | Hospital BOND | 0.1910887512 | $42,409 | $42,409 | $8.10 | | |
| HOGEN | Hospital GEN | 0.3902502903 | $42,409 | $42,409 | $16.55 | | |
| CE | County Current Expense | 0.3708482477 | $42,409 | $42,409 | $15.73 | | |
| ISLANDEMS | Hospital GEN (EMS) | 0.5000000000 | $42,409 | $42,409 | $21.20 | | |
| LIB | Library Sno-Isle GEN | 0.3153421757 | $42,409 | $42,409 | $13.37 | | |
| NWHIDPRMT | P & R N Whidbey GEN | 0.2004466701 | $42,409 | $42,409 | $8.50 | | |
| SCH201MO | School 201 Enrichment | 1.8559231640 | $42,409 | $42,409 | $78.71 | | |
| ST | State School | 1.3035497053 | $42,409 | $42,409 | $55.28 | | |
| ST2 | State School Part 2 | 0.8169543533 | $42,409 | $42,409 | $34.65 | | |
| | Total Tax Rate: | 8.4728839852 | | | | | |
| | | | | Taxes w/Current Exemptions: | $359.32 | | |
| | | | | Taxes w/o Exemptions: | $359.32 | | |
Improvement / Building
| Improvement #1: | MANUFACTURED HOME | State Code: | Y | 1387.2 sqft | Value: | $42,409 |
| Bathrooms: | 0 | Bedrooms: | 0 | | Ceiling: | PLASTER PAINTED | Exterior Wall/Cover: | VINYL | | Floor Covering: | CARPET 100% | Floor Structure: | SLAB ON GRADE | | Foundation: | SLAB | Heating: | FHA ELECTRIC | | Interior Finish: | PLASTER | Plumbing Fixture Cnt: | 1 | | Roof Slope: | FLAT | Roof Structure/Cover: | CJ ALUMINIUM HEAVY |
|
Sketch
Property Image
Land
No land segments exist for this property.
Roll Value History
| 2026 | N/A | N/A | N/A | N/A | N/A |
| 2025 | $42,409 | $0 | $0 | $42,409 | $42,409 |
| 2024 | $26,371 | $0 | $0 | $26,371 | $26,371 |
| 2023 | $24,642 | $0 | $0 | $24,642 | $24,642 |
| 2022 | $23,055 | $0 | $0 | $23,055 | $23,055 |
| 2021 | $20,695 | $0 | $0 | $20,695 | $20,695 |
| 2020 | $20,720 | $0 | $0 | $20,720 | $20,720 |
| 2019 | $16,815 | $0 | $0 | $16,815 | $16,815 |
| 2018 | $17,309 | $0 | $0 | $17,309 | $17,309 |
| 2017 | $17,801 | $0 | $0 | $17,801 | $17,801 |
| 2016 | $18,049 | $0 | $0 | $18,049 | $18,049 |
| 2015 | $18,543 | $0 | $0 | $18,543 | $18,543 |
| 2014 | $19,037 | $0 | $0 | $19,037 | $19,037 |
| 2013 | $19,532 | $0 | $0 | $19,532 | $19,532 |
| 2012 | $20,026 | $0 | $0 | $20,026 | $20,026 |
| 2011 | $31,244 | $0 | $0 | $31,244 | $31,244 |
| 2010 | $32,100 | $0 | $0 | $32,100 | $32,100 |
| 2009 | $33,980 | $0 | $0 | $33,980 | $33,980 |
| 2008 | $34,459 | $0 | $0 | $34,459 | $34,459 |
| 2007 | $35,365 | $0 | $0 | $35,365 | $35,365 |
Deed and Sales History
| 1 | 10/30/2018 | MANHOME | Manufactured Home | INTINI, ANTHONY | MCINTIRE, MELODEE LYNN | | | $55,000.00 | 36469 | |
| 2 | 04/21/2017 | MANHOME | Manufactured Home | KESTREL LLC | INTINI, ANTHONY | | | $25,000.00 | 29184 | |
| 3 | 04/29/2015 | OTHER | Other - Misc. Documents | HOLCOMB, JOHN | KESTREL LLC | | | $12,000.00 | 19353 | |
| 4 | 01/10/2008 | OTHER | Other - Misc. Documents | SZOT, STEVEN | HOLCOMB, JOHN | | | $27,000.00 | 80074 | 0 |
| 5 | 01/11/2007 | OTHER | Other - Misc. Documents | KESTREL LLC, | SZOT, STEVEN | | | $0.00 | 10108 | 0 |
| 6 | 12/07/2005 | OTHER | Other - Misc. Documents | OAK HOLLOW MHP LLC, | KESTREL LLC, | | | $14,200.00 | 56357 | 0 |
| 7 | 10/06/2004 | OTHER | Other - Misc. Documents | ASSOCIATES HOUSING FINANCE LLC | OAK HOLLOW MHP LLC, | | | $20,000.00 | 52633 | 0 |
| 8 | 09/21/2004 | OTHER | Other - Misc. Documents | ERICKSON, JOHN | ASSOCIATES HOUSING FINANCE LLC | | | $0.00 | 52632 | 0 |
| 9 | 05/01/1998 | OTHER | Other - Misc. Documents | Unknown | ERICKSON, JOHN | | | $0.00 | 11111111 | 0 |
Payout Agreement
| No payout information available.. |