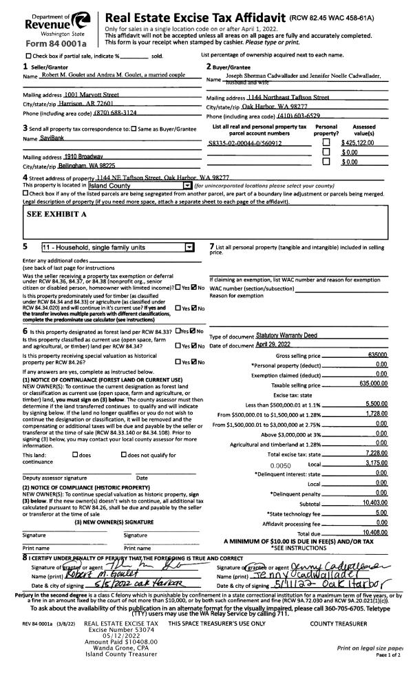
Property
Account |
| Property ID: | 76303 | Abbreviated Legal Description: | 32 - SE NW NW & S30'OF SW NW NW |
| Geographic ID: | R23111-439-1070 | Agent Code: | |
| Type: | Real | | |
| Tax Area: | 512 - APPRAISER-Stan/Cam Schl Dist, improved, greater than 1 acre | Land Use Code | 74 |
| Open Space: | N | DFL | N |
| Historic Property: | N | Remodel Property: | N |
| Multi-Family Redevelopment: | N | | |
| Township: | 31 | Section: | 11 |
| Range: | R2 |
Location |
| Address: | 499 S WEST CAMANO DR CAMANO ISLAND, WA 98282 | Mapsco: | |
| Neighborhood: | 54cRR-swcamano rd | Map ID: | 471 |
| Neighborhood CD: | 54cRRswcam |
Owner |
| Name: | UNIVERSITY LIONS FOUNDATION | Owner ID: | 198961 |
| Mailing Address: | C/O JAMES S LUDWIG 308 NORTH 188TH ST SHORELINE, WA 98133 | % Ownership: | 100.0000000000% |
| | | Exemptions: | EX |
Taxes and Assessment Details
Values
| (+) Improvement Homesite Value: | + | $0 | |
| (+) Improvement Non-Homesite Value: | + | $110,678 | |
| (+) Land Homesite Value: | + | $0 | |
| (+) Land Non-Homesite Value: | + | $370,000 | |
| (+) Curr Use (HS): | + | $0 | $0 |
| (+) Curr Use (NHS): | + | $0 | $0 |
| | | -------------------------- | |
| (=) Market Value: | = | $480,678 | |
| (–) Productivity Loss: | – | $0 | |
| | | -------------------------- | |
| (=) Subtotal: | = | $480,678 | |
| (+) Senior Appraised Value: | + | $0 | |
| (+) Non-Senior Appraised Value: | + | $480,678 | |
| | | -------------------------- | |
| (=) Total Appraised Value: | = | $480,678 | |
| (–) Senior Exemption Loss: | – | $0 | |
| (–) Exemption Loss: | – | $480,678 | |
| | | -------------------------- | |
| (=) Taxable Value: | = | $0 | |
Taxing Jurisdiction
| Owner: | UNIVERSITY LIONS FOUNDATION | | |
| % Ownership: | 100.0000000000% | | |
| Total Value: | $480,678 | | |
| Tax Area: | 512 - APPRAISER-Stan/Cam Schl Dist, improved, greater than 1 acre |
| CF | Conservation Futures | 0.0316035091 | $480,678 | $0 | $0.00 | | |
| EMS1 | Fire & Rescue Dist #1 Camano GEN (EMS) | 0.3677864386 | $480,678 | $0 | $0.00 | | |
| FIRE1 | Fire & Rescue Dist #1 Camano GEN | 1.2502910536 | $480,678 | $0 | $0.00 | | |
| FIRE1BOND | Fire & Rescue Dist #1 Camano BOND | 0.1570001679 | $480,678 | $0 | $0.00 | | |
| CE | County Current Expense | 0.3708482477 | $480,678 | $0 | $0.00 | | |
| CR | County Roads | 0.4584763726 | $480,678 | $0 | $0.00 | | |
| LCIB | Library Sno-Isle BOND (Camano Island) | 0.0396325772 | $480,678 | $0 | $0.00 | | |
| LIB | Library Sno-Isle GEN | 0.3153421757 | $480,678 | $0 | $0.00 | | |
| SCH205_401 | School 205-401 Enrichment | 1.2698420524 | $480,678 | $0 | $0.00 | | |
| SCH205BOND | School 205-401 BOND | 0.9396497583 | $480,678 | $0 | $0.00 | | |
| ST | State School | 1.3035497053 | $480,678 | $0 | $0.00 | | |
| ST2 | State School Part 2 | 0.8169543533 | $480,678 | $0 | $0.00 | | |
| | Total Tax Rate: | 7.3209764117 | | | | | |
| | | | | Taxes w/Current Exemptions: | $0.00 | | |
| | | | | Taxes w/o Exemptions: | $3,519.05 | | |
Improvement / Building
| Improvement #1: | MANUFACTURED HOME | State Code: | Y | 924.0 sqft | Value: | $34,421 |
| Bathrooms: | 1 | Bedrooms: | 2 | | Ceiling: | PLASTER PAINTED | Cooling: | EVAP NO DUCT | | Exterior Wall/Cover: | VINYL | Floor Covering: | CARPET 100% | | Floor Structure: | SLAB ON GRADE | Foundation: | SLAB | | Heating: | FHA ELECTRIC | Interior Finish: | PLASTER | | Plumbing Fixture Cnt: | 1 | Roof Slope: | FLAT | | Roof Structure/Cover: | CJ ALUMINIUM HEAVY |   |   |
|
| | Type | Description | Class CD | Sub Class CD | Year Built | Area |
| | BAS | BASE/MAIN FLOOR | 3 | 0 | 1996 | 924.0 |
| | OCP | OPEN CARPORT | 3 | 0 | 1996 | 520.0 |
| | OWR | OPEN WOOD PORCH W/STEPS/ROOF | 3 | 0 | 1996 | 136.5 |
| | OWR | OPEN WOOD PORCH W/STEPS/ROOF | 3 | 0 | 1996 | 160.0 |
| | OWP | OPEN WOOD PORCH W/STEPS | 3 | 0 | 1996 | 160.0 |
| Improvement #2: | COMMERCIAL | State Code: | Y | 1150.0 sqft | Value: | $44,257 |
| Bathrooms: | 2 | Ceiling: | PLYWOOD PAINTED | | Exterior Wall/Cover: | 6" CON BLK/BEAR WALL | Floor Covering: | CONCRETE SEALER | | Floor Structure: | SLAB ON GRADE | Foundation: | SLAB | | Heating: | SPACE HEATERS | Interior Finish: | FRATERNAL | | Plumbing Fixture Cnt: | 9 | Roof Slope: | 4" IN 12" | | Roof Structure/Cover: | CJ ASPHALT |   |   |
|
| Improvement #3: | COMMERCIAL | State Code: | Y | 0.0 sqft | Value: | $32,000 |
| | Type | Description | Class CD | Sub Class CD | Year Built | Area |
| | oCB1 | CABIN UNFI | 2 | 0 | 1900 | 440.0 |
| | oCB1 | CABIN UNFI | 2 | 0 | 1900 | 440.0 |
| | UTY | STORAGE/UTILITY | 2 | 0 | 1900 | 128.0 |
| | CPD | OPEN CARPORT DIRT FLOOR | 2 | 0 | 1900 | 400.0 |
| | OP1 | OPEN PORCH SLAB | 2 | 0 | 1900 | 2000.0 |
| | oOP3 | SLAB/ROOF | 2 | 0 | 1900 | 140.0 |
Sketch
Property Image
Land
| 1 | 35 | AC (10.00-30.99) | 10.2300 | 445618.80 | 0.00 | 0.00 | 1.00 | $370,000 | $0 |
Roll Value History
| 2026 | N/A | N/A | N/A | N/A | N/A |
| 2025 | $110,678 | $370,000 | $0 | $480,678 | $0 |
| 2024 | $115,376 | $310,000 | $0 | $425,376 | $0 |
| 2023 | $118,233 | $300,000 | $0 | $418,233 | $0 |
| 2022 | $103,694 | $270,000 | $0 | $373,694 | $0 |
| 2021 | $85,732 | $260,000 | $0 | $345,732 | $0 |
| 2020 | $85,814 | $260,000 | $0 | $345,814 | $0 |
| 2019 | $83,295 | $260,000 | $0 | $343,295 | $0 |
| 2018 | $83,960 | $270,000 | $0 | $353,960 | $0 |
| 2017 | $84,626 | $153,450 | $0 | $238,076 | $0 |
| 2016 | $85,292 | $153,450 | $0 | $238,742 | $0 |
| 2015 | $82,414 | $120,000 | $0 | $202,414 | $0 |
| 2014 | $82,671 | $118,218 | $0 | $200,889 | $0 |
| 2013 | $83,184 | $118,218 | $0 | $201,402 | $0 |
| 2012 | $83,697 | $118,218 | $0 | $201,915 | $0 |
| 2011 | $84,210 | $147,772 | $0 | $231,982 | $0 |
| 2010 | $85,053 | $147,772 | $0 | $232,825 | $0 |
| 2009 | $87,441 | $147,772 | $0 | $235,213 | $0 |
| 2008 | $88,959 | $147,772 | $0 | $236,731 | $0 |
Deed and Sales History
Payout Agreement
| No payout information available.. |