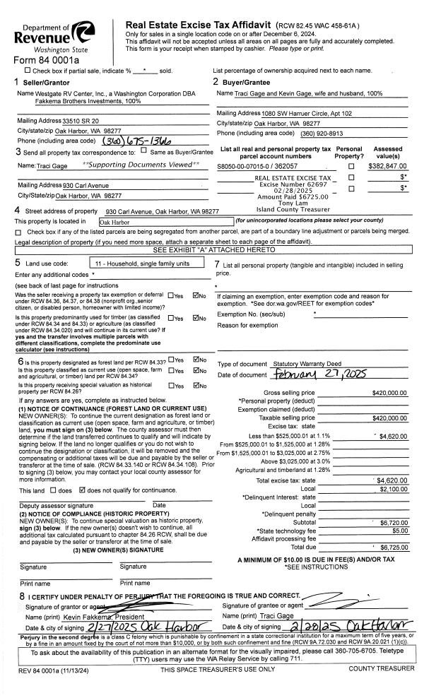
Property
Account |
| Property ID: | 7637 | Abbreviated Legal Description: | 54 - NE SW SW SE TGW & SUB EZ |
| Geographic ID: | R13111-050-3140 | Agent Code: | |
| Type: | Real | | |
| Tax Area: | 312 - APPRAISER-Cpvl Schl Dist, outside Cpvl, improved, greater than 1 acre | Land Use Code | 11 |
| Open Space: | N | DFL | N |
| Historic Property: | N | Remodel Property: | N |
| Multi-Family Redevelopment: | N | | |
| Township: | 31 | Section: | 11 |
| Range: | R1 |
Location |
| Address: | 720 HAZZLE CT COUPEVILLE, WA 98239 | Mapsco: | |
| Neighborhood: | Cycle 2 | Map ID: | 51 |
| Neighborhood CD: | 2 |
Owner |
| Name: | JOB, PATRICIA A | Owner ID: | 281653 |
| Mailing Address: | 720 HAZZLE CT COUPEVILLE, WA 98239 | % Ownership: | 100.0000000000% |
| | | Exemptions: | |
Taxes and Assessment Details
Values
| (+) Improvement Homesite Value: | + | $0 | |
| (+) Improvement Non-Homesite Value: | + | $150,185 | |
| (+) Land Homesite Value: | + | $0 | |
| (+) Land Non-Homesite Value: | + | $126,666 | |
| (+) Curr Use (HS): | + | $0 | $0 |
| (+) Curr Use (NHS): | + | $0 | $0 |
| | | -------------------------- | |
| (=) Market Value: | = | $276,851 | |
| (–) Productivity Loss: | – | $0 | |
| | | -------------------------- | |
| (=) Subtotal: | = | $276,851 | |
| (+) Senior Appraised Value: | + | $0 | |
| (+) Non-Senior Appraised Value: | + | $276,851 | |
| | | -------------------------- | |
| (=) Total Appraised Value: | = | $276,851 | |
| (–) Senior Exemption Loss: | – | $0 | |
| (–) Exemption Loss: | – | $0 | |
| | | -------------------------- | |
| (=) Taxable Value: | = | $276,851 | |
Taxing Jurisdiction
| Owner: | JOB, PATRICIA A | | |
| % Ownership: | 100.0000000000% | | |
| Total Value: | $276,851 | | |
| Tax Area: | 312 - APPRAISER-Cpvl Schl Dist, outside Cpvl, improved, greater than 1 acre |
| CF | Conservation Futures | 0.0316035091 | $276,851 | $276,851 | $8.75 | | |
| CEM2 | Cemetery #2 | 0.0095056933 | $276,851 | $276,851 | $2.63 | | |
| FIRE5 | Fire & Rescue Dist #5 C Whidbey GEN | 1.2008080668 | $276,851 | $276,851 | $332.44 | | |
| FIRE5BOND | Fire & Rescue Dist #5 C Whidbey BOND | 0.1400090713 | $276,851 | $276,851 | $38.76 | | |
| HOBOND | Hospital BOND | 0.1910887512 | $276,851 | $276,851 | $52.90 | | |
| HOGEN | Hospital GEN | 0.3902502903 | $276,851 | $276,851 | $108.04 | | |
| CE | County Current Expense | 0.3708482477 | $276,851 | $276,851 | $102.67 | | |
| CR | County Roads | 0.4584763726 | $276,851 | $276,851 | $126.93 | | |
| ISLANDEMS | Hospital GEN (EMS) | 0.5000000000 | $276,851 | $276,851 | $138.43 | | |
| LIB | Library Sno-Isle GEN | 0.3153421757 | $276,851 | $276,851 | $87.30 | | |
| LIBCAP | Library Sno-Isle BOND (Cap Fac Imp Area) | 0.0543427938 | $276,851 | $276,851 | $15.04 | | |
| POCOUP | Port of Coupeville GEN | 0.1093371703 | $276,851 | $276,851 | $30.27 | | |
| POCOUPIDD | Port of Coupeville IDD | 0.3409740022 | $276,851 | $276,851 | $94.40 | | |
| COUPSDTECH | School 204 CP (TECH) | 0.7545480007 | $276,851 | $276,851 | $208.90 | | |
| SCH204MO | School 204 Enrichment | 0.6716186034 | $276,851 | $276,851 | $185.94 | | |
| ST | State School | 1.3035497053 | $276,851 | $276,851 | $360.89 | | |
| ST2 | State School Part 2 | 0.8169543533 | $276,851 | $276,851 | $226.17 | | |
| | Total Tax Rate: | 7.6592568070 | | | | | |
| | | | | Taxes w/Current Exemptions: | $2,120.46 | | |
| | | | | Taxes w/o Exemptions: | $2,120.46 | | |
Improvement / Building
| Improvement #1: | MANUFACTURED HOME | State Code: | Y | 1512.0 sqft | Value: | $150,185 |
| Bathrooms: | 1 | Bedrooms: | 2 | | Ceiling: | PLASTER PAINTED | Cooling: | EVAP NO DUCT | | Exterior Wall/Cover: | VINYL | Floor Covering: | CARPET 100% | | Floor Structure: | SLAB ON GRADE | Foundation: | SLAB | | Heating: | FHA ELECTRIC | Interior Finish: | PLASTER | | Plumbing Fixture Cnt: | 1 | Roof Slope: | FLAT | | Roof Structure/Cover: | CJ ALUMINIUM HEAVY |   |   |
|
Sketch
Property Image
Land
| 1 | 91 | UNDEVELOPED LAND-METES AND BOUNDS | 2.5000 | 108900.00 | 0.00 | 0.00 | 1.00 | $126,666 | $0 |
Roll Value History
| 2026 | N/A | N/A | N/A | N/A | N/A |
| 2025 | $150,185 | $126,666 | $0 | $276,851 | $276,851 |
| 2024 | $150,185 | $130,000 | $0 | $280,185 | $280,185 |
| 2023 | $0 | $120,000 | $0 | $120,000 | $120,000 |
| 2022 | $0 | $110,000 | $0 | $110,000 | $110,000 |
| 2021 | $0 | $100,000 | $0 | $100,000 | $100,000 |
| 2020 | $0 | $100,000 | $0 | $100,000 | $100,000 |
| 2019 | $0 | $100,000 | $0 | $100,000 | $100,000 |
| 2018 | $0 | $100,000 | $0 | $100,000 | $100,000 |
| 2017 | $0 | $100,000 | $0 | $100,000 | $100,000 |
| 2016 | $0 | $100,000 | $0 | $100,000 | $100,000 |
| 2015 | $0 | $95,000 | $0 | $95,000 | $95,000 |
| 2014 | $0 | $95,000 | $0 | $95,000 | $95,000 |
| 2013 | $0 | $95,000 | $0 | $95,000 | $95,000 |
| 2012 | $0 | $95,000 | $0 | $95,000 | $95,000 |
| 2011 | $0 | $95,000 | $0 | $95,000 | $95,000 |
| 2010 | $0 | $95,000 | $0 | $95,000 | $95,000 |
| 2009 | $0 | $125,000 | $0 | $125,000 | $125,000 |
| 2008 | $0 | $125,000 | $0 | $125,000 | $125,000 |
| 2007 | $0 | $69,000 | $0 | $69,000 | $69,000 |
Deed and Sales History
| 1 | 07/26/2017 | WD | Warranty Deed | EGGERMAN, MARGARET E | JOB, PATRICIA A | | | $77,000.00 | 30853 | 4429099 |
| 2 | 03/27/2008 | PRD | Personal Representatives Deed | EGGERMAN, R L | EGGERMAN, MARGARET E | | | $0.00 | 80825 | 4225460 |
| 3 | 01/01/1900 | OTHER | Other - Misc. Documents | Unknown | EGGERMAN, R L | | | $0.00 | 0 | 0 |
Payout Agreement
| No payout information available.. |