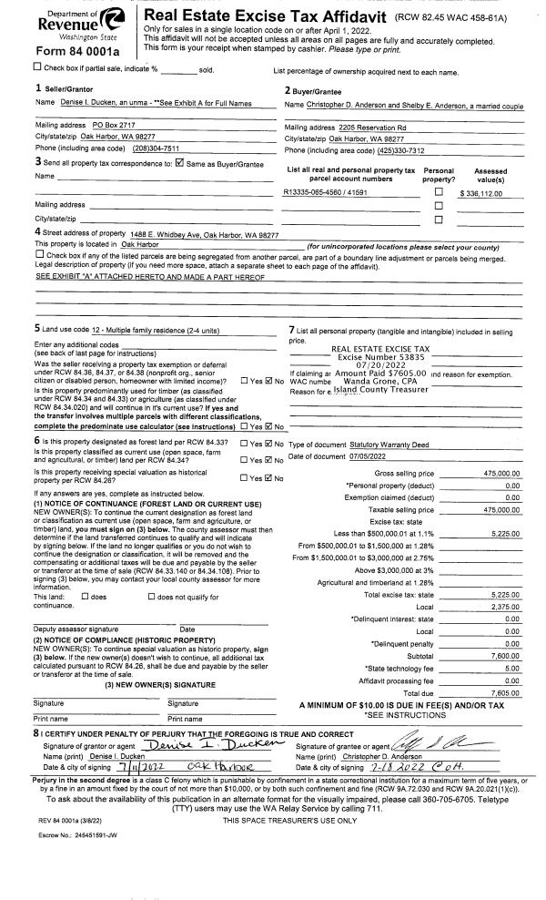
Property
Account |
| Property ID: | 76517 | Abbreviated Legal Description: | 12-4 - LOT 12 BLK 4 OF CAMANO SUNRISE #2 V3 SUR P89 AF#300276 TGW EZ |
| Geographic ID: | R23112-015-3730 | Agent Code: | |
| Type: | Real | | |
| Tax Area: | 512 - APPRAISER-Stan/Cam Schl Dist, improved, greater than 1 acre | Land Use Code | 11 |
| Open Space: | N | DFL | N |
| Historic Property: | N | Remodel Property: | N |
| Multi-Family Redevelopment: | N | | |
| Township: | 31 | Section: | 12 |
| Range: | R2 |
Location |
| Address: | 798 MICHAEL WAY CAMANO ISLAND, WA 98282 | Mapsco: | |
| Neighborhood: | Cycle 5 | Map ID: | 474 |
| Neighborhood CD: | 5 |
Owner |
| Name: | RUSH, TONI G | Owner ID: | 272311 |
| Mailing Address: | 798 MICHAEL WAY CAMANO ISLAND, WA 98282 | % Ownership: | 100.0000000000% |
| | | Exemptions: | SNR/DSBL |
Taxes and Assessment Details
Values
| (+) Improvement Homesite Value: | + | $236,926 | |
| (+) Improvement Non-Homesite Value: | + | $162,275 | |
| (+) Land Homesite Value: | + | $368,705 | |
| (+) Land Non-Homesite Value: | + | $41,295 | |
| (+) Curr Use (HS): | + | $0 | $0 |
| (+) Curr Use (NHS): | + | $0 | $0 |
| | | -------------------------- | |
| (=) Market Value: | = | $809,201 | |
| (–) Productivity Loss: | – | $0 | |
| | | -------------------------- | |
| (=) Subtotal: | = | $809,201 | |
| (+) Senior Appraised Value: | + | $584,484 | |
| (+) Non-Senior Appraised Value: | + | $203,570 | |
| | | -------------------------- | |
| (=) Total Appraised Value: | = | $788,054 | |
| (–) Senior Exemption Loss: | – | $70,000 | |
| (–) Exemption Loss: | – | $0 | |
| | | -------------------------- | |
| (=) Taxable Value: | = | $718,054 | |
Taxing Jurisdiction
| Owner: | RUSH, TONI G | | |
| % Ownership: | 100.0000000000% | | |
| Total Value: | $809,201 | | |
| Tax Area: | 512 - APPRAISER-Stan/Cam Schl Dist, improved, greater than 1 acre |
| CF | Conservation Futures | 0.0316035091 | $809,201 | $718,054 | $22.69 | | |
| EMS1 | Fire & Rescue Dist #1 Camano GEN (EMS) | 0.3677864386 | $809,201 | $718,054 | $264.09 | | |
| FIRE1 | Fire & Rescue Dist #1 Camano GEN | 1.2502910536 | $809,201 | $718,054 | $897.78 | | |
| FIRE1BOND | Fire & Rescue Dist #1 Camano BOND | 0.0000000000 | $809,201 | $203,570 | $31.96 | | |
| CE | County Current Expense | 0.3708482477 | $809,201 | $718,054 | $266.29 | | |
| CR | County Roads | 0.4584763726 | $809,201 | $718,054 | $329.21 | | |
| LCIB | Library Sno-Isle BOND (Camano Island) | 0.0000000000 | $809,201 | $203,570 | $8.07 | | |
| LIB | Library Sno-Isle GEN | 0.3153421757 | $809,201 | $718,054 | $226.43 | | |
| SCH205_401 | School 205-401 Enrichment | 0.0000000000 | $809,201 | $203,570 | $258.50 | | |
| SCH205BOND | School 205-401 BOND | 0.0000000000 | $809,201 | $203,570 | $191.28 | | |
| ST | State School | 1.3035497053 | $809,201 | $718,054 | $936.02 | | |
| ST2 | State School Part 2 | 0.0000000000 | $809,201 | $203,570 | $166.31 | | |
| | Total Tax Rate: | 4.0978975026 | | | | | |
| | | | | Taxes w/Current Exemptions: | $3,598.63 | | |
| | | | | Taxes w/o Exemptions: | $5,924.14 | | |
Improvement / Building
| Improvement #1: | RESIDENTIAL | State Code: | Y | 2460.0 sqft | Value: | $399,201 |
| Bathrooms: | 3 | Bedrooms: | 4 | | Ceiling: | DRY WALL SPRAYED | Cooling: | HEAT PUMP/CONV/V | | Exterior Wall/Cover: | WOOD SIDING | Floor Covering: | SOFTWOOD 100% | | Floor Structure: | WOOD W/SUBFLOOR | Foundation: | CONCRETE | | Interior Finish: | DRYWALL PAINT | Plumbing Fixture Cnt: | 15 | | Roof Slope: | 4" IN 12" | Roof Structure/Cover: | CJ ASPHALT |
|
| | Type | Description | Class CD | Sub Class CD | Year Built | Area |
| | BAS | BASE/MAIN FLOOR | 3 | 0 | 1979 | 1230.0 |
| | OP1 | OPEN PORCH SLAB | 3 | 0 | 1979 | 210.0 |
| | OP1 | OPEN PORCH SLAB | 3 | 0 | 1979 | 515.5 |
| | AGR | ATTACHED GARAGE | 3 | 0 | 1979 | 616.0 |
| | OWP | OPEN WOOD PORCH W/STEPS | 3 | 0 | 1979 | 210.0 |
| | OWP | OPEN WOOD PORCH W/STEPS | 3 | 0 | 1979 | 126.8 |
| | DWN | DOWNSTAIRS LIVING AREA | 3 | 0 | 1979 | 1230.0 |
| | DGR | DETACHED GARAGE | 3 | 0 | 1979 | 672.0 |
| | CPD | OPEN CARPORT DIRT FLOOR | 3 | 0 | 1979 | 400.0 |
| | OCP | OPEN CARPORT | 3 | 0 | 1979 | 336.0 |
Sketch
Property Image
Land
| 1 | 32 | AC (03.01-09.99) | 5.5600 | 0.00 | 0.00 | 0.00 | 1.00 | $410,000 | $0 |
Roll Value History
| 2026 | N/A | N/A | N/A | N/A | N/A |
| 2025 | $399,201 | $410,000 | $0 | $809,201 | $718,054 |
| 2024 | $404,113 | $390,000 | $0 | $794,113 | $718,039 |
| 2023 | $409,029 | $380,000 | $0 | $789,029 | $719,029 |
| 2022 | $374,820 | $350,000 | $0 | $724,820 | $724,820 |
| 2021 | $298,810 | $210,000 | $0 | $508,810 | $508,810 |
| 2020 | $291,139 | $200,000 | $0 | $491,139 | $491,139 |
| 2019 | $223,056 | $250,000 | $0 | $473,056 | $473,056 |
| 2018 | $223,727 | $220,000 | $0 | $443,727 | $443,727 |
| 2017 | $225,058 | $170,000 | $0 | $395,058 | $395,058 |
| 2016 | $227,737 | $150,000 | $0 | $377,737 | $377,737 |
| 2015 | $156,070 | $222,400 | $0 | $378,470 | $378,470 |
| 2014 | $158,308 | $222,400 | $0 | $380,708 | $380,708 |
| 2013 | $160,544 | $166,800 | $0 | $327,344 | $327,344 |
| 2012 | $162,782 | $222,400 | $0 | $385,182 | $385,182 |
| 2011 | $165,018 | $278,000 | $0 | $443,018 | $443,018 |
| 2010 | $176,770 | $278,000 | $0 | $454,770 | $454,770 |
| 2009 | $184,143 | $333,600 | $0 | $517,743 | $517,743 |
| 2008 | $187,033 | $436,460 | $0 | $623,493 | $623,493 |
| 2007 | $189,924 | $212,987 | $0 | $402,911 | $402,911 |
Deed and Sales History
| 1 | 09/24/2015 | WD | Warranty Deed | AUSTIN, TRENT W | RUSH, TONI G | | | $405,000.00 | 21568 | 4386930 |
| 2 | 11/01/2011 | WD | Warranty Deed | CHASE, ARTHUR G | AUSTIN, TRENT W | | | $315,000.00 | 6074 | 4304491 |
| 3 | 05/27/2005 | 5 | DNU - Marriage License/Name Change | CHASE, ARTHUR G | CHASE, ARTHUR G | | | $0.00 | 70550 | 0 |
| 4 | 04/01/1987 | WD | Warranty Deed | HESS, E R | CHASE, ARTHUR G | | | $121,000.00 | 70884 | 87004576 |
| 5 | 01/01/1979 | OTHER | Other - Misc. Documents | Unknown | HESS, E R | | | $26,000.00 | 90595 | 347204 |
Payout Agreement
| No payout information available.. |