Property
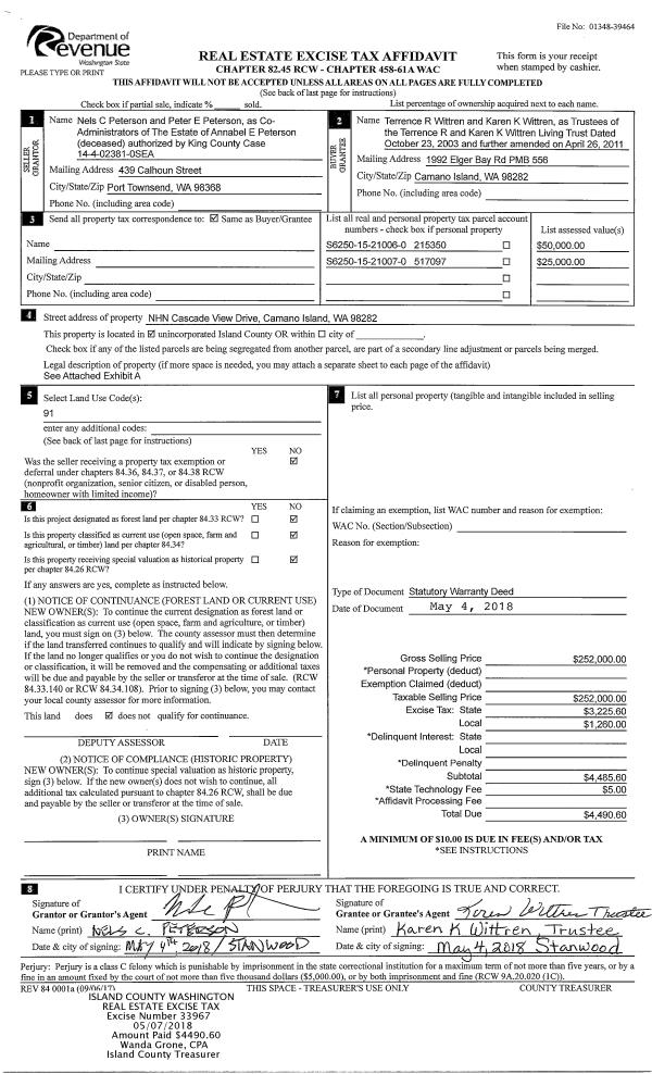
Account |
| Property ID: | 7664 | Abbreviated Legal Description: | 23 - BG SW CR SEC 11 N1* W523.02' TPB N1*E142.53' E208.1' S1*E142.53' W208.1 TPB EX W30' RD |
| Geographic ID: | R13111-060-0100 | Agent Code: | |
| Type: | Real | | |
| Tax Area: | 310 - APPRAISER-Cpvl Schl Dist, outside Cpvl, improved & 1 acre or less | Land Use Code | 11 |
| Open Space: | N | DFL | N |
| Historic Property: | N | Remodel Property: | N |
| Multi-Family Redevelopment: | N | | |
| Township: | 31 | Section: | 11 |
| Range: | R1 |
Location |
| Address: | 757 EGGERMAN RD COUPEVILLE, WA 98239 | Mapsco: | |
| Neighborhood: | Cycle 2 | Map ID: | 50 |
| Neighborhood CD: | 2 |
Owner |
| Name: | EGGERMAN, THOMAS | Owner ID: | 285417 |
| Mailing Address: | IRENE EGGERMAN 11233 SE 313TH PL AUBURN, WA 98002 | % Ownership: | 100.0000000000% |
| | | Exemptions: | |
Taxes and Assessment Details
Values
| (+) Improvement Homesite Value: | + | $0 | |
| (+) Improvement Non-Homesite Value: | + | $316,630 | |
| (+) Land Homesite Value: | + | $0 | |
| (+) Land Non-Homesite Value: | + | $340,000 | |
| (+) Curr Use (HS): | + | $0 | $0 |
| (+) Curr Use (NHS): | + | $0 | $0 |
| | | -------------------------- | |
| (=) Market Value: | = | $656,630 | |
| (–) Productivity Loss: | – | $0 | |
| | | -------------------------- | |
| (=) Subtotal: | = | $656,630 | |
| (+) Senior Appraised Value: | + | $0 | |
| (+) Non-Senior Appraised Value: | + | $656,630 | |
| | | -------------------------- | |
| (=) Total Appraised Value: | = | $656,630 | |
| (–) Senior Exemption Loss: | – | $0 | |
| (–) Exemption Loss: | – | $0 | |
| | | -------------------------- | |
| (=) Taxable Value: | = | $656,630 | |
Taxing Jurisdiction
| Owner: | EGGERMAN, THOMAS | | |
| % Ownership: | 100.0000000000% | | |
| Total Value: | $656,630 | | |
| Tax Area: | 310 - APPRAISER-Cpvl Schl Dist, outside Cpvl, improved & 1 acre or less |
| CF | Conservation Futures | 0.0316035091 | $656,630 | $656,630 | $20.75 | | |
| CEM2 | Cemetery #2 | 0.0095056933 | $656,630 | $656,630 | $6.24 | | |
| FIRE5 | Fire & Rescue Dist #5 C Whidbey GEN | 1.2008080668 | $656,630 | $656,630 | $788.49 | | |
| FIRE5BOND | Fire & Rescue Dist #5 C Whidbey BOND | 0.1400090713 | $656,630 | $656,630 | $91.93 | | |
| HOBOND | Hospital BOND | 0.1910887512 | $656,630 | $656,630 | $125.47 | | |
| HOGEN | Hospital GEN | 0.3902502903 | $656,630 | $656,630 | $256.25 | | |
| CE | County Current Expense | 0.3708482477 | $656,630 | $656,630 | $243.51 | | |
| CR | County Roads | 0.4584763726 | $656,630 | $656,630 | $301.05 | | |
| ISLANDEMS | Hospital GEN (EMS) | 0.5000000000 | $656,630 | $656,630 | $328.32 | | |
| LIB | Library Sno-Isle GEN | 0.3153421757 | $656,630 | $656,630 | $207.06 | | |
| LIBCAP | Library Sno-Isle BOND (Cap Fac Imp Area) | 0.0543427938 | $656,630 | $656,630 | $35.68 | | |
| POCOUP | Port of Coupeville GEN | 0.1093371703 | $656,630 | $656,630 | $71.79 | | |
| POCOUPIDD | Port of Coupeville IDD | 0.3409740022 | $656,630 | $656,630 | $223.89 | | |
| COUPSDTECH | School 204 CP (TECH) | 0.7545480007 | $656,630 | $656,630 | $495.46 | | |
| SCH204MO | School 204 Enrichment | 0.6716186034 | $656,630 | $656,630 | $441.00 | | |
| ST | State School | 1.3035497053 | $656,630 | $656,630 | $855.95 | | |
| ST2 | State School Part 2 | 0.8169543533 | $656,630 | $656,630 | $536.44 | | |
| | Total Tax Rate: | 7.6592568070 | | | | | |
| | | | | Taxes w/Current Exemptions: | $5,029.28 | | |
| | | | | Taxes w/o Exemptions: | $5,029.28 | | |
Improvement / Building
| Improvement #1: | RESIDENTIAL | State Code: | Y | 2805.0 sqft | Value: | $316,630 |
| Bathrooms: | 2 | Bedrooms: | 4 | | Ceiling: | DRYWALL PAINTED | Exterior Wall/Cover: | VINYL | | Floor Covering: | CARPET/VINYL 80-20 | Floor Structure: | WOOD W/SUBFLOOR | | Foundation: | CONCRETE | Heating: | FHA OIL | | Interior Finish: | DRYWALL PAINT | Plumbing Fixture Cnt: | 9 | | Roof Slope: | 8" IN 12" | Roof Structure/Cover: | CJ ASPHALT |
|
| | Type | Description | Class CD | Sub Class CD | Year Built | Area |
| | BAS | BASE/MAIN FLOOR | 3 | 0 | 1953 | 2259.0 |
| | DGR | DETACHED GARAGE | 3 | 0 | 1953 | 610.0 |
| | OP2 | OPEN PORCH W/STEPS | 3 | 0 | 1953 | 30.0 |
| | OP4 | OPEN PORCH W/CEILING-ROOF | 3 | 0 | 1953 | 30.0 |
| | OP2 | OPEN PORCH W/STEPS | 3 | 0 | 1953 | 48.0 |
| | OP3 | OPEN PORCH W/ROOF | 3 | 0 | 1953 | 15.0 |
| | OP4 | OPEN PORCH W/CEILING-ROOF | 3 | 0 | 1953 | 35.0 |
| | UPS | UPPER STORY | 3 | 0 | 1953 | 546.0 |
| | ENP | ENCLOSED PORCH | 3 | 0 | 1953 | 112.0 |
| | UTY | STORAGE/UTILITY | 3 | 0 | 1953 | 216.0 |
Sketch
Property Image
Land
| 1 | HS | HOMESITE | 0.5900 | 25700.40 | 0.00 | 0.00 | 1.00 | $340,000 | $0 |
Roll Value History
| 2026 | N/A | N/A | N/A | N/A | N/A |
| 2025 | $316,630 | $340,000 | $0 | $656,630 | $656,630 |
| 2024 | $301,613 | $330,000 | $0 | $631,613 | $631,613 |
| 2023 | $306,617 | $320,000 | $0 | $626,617 | $626,617 |
| 2022 | $282,172 | $280,000 | $0 | $562,172 | $562,172 |
| 2021 | $249,321 | $200,000 | $0 | $449,321 | $449,321 |
| 2020 | $244,769 | $180,000 | $0 | $424,769 | $424,769 |
| 2019 | $196,445 | $210,000 | $0 | $406,445 | $406,445 |
| 2018 | $124,739 | $180,000 | $0 | $304,739 | $304,739 |
| 2017 | $126,129 | $150,000 | $0 | $276,129 | $276,129 |
| 2016 | $128,910 | $150,000 | $0 | $278,910 | $278,910 |
| 2015 | $131,689 | $140,250 | $0 | $271,939 | $271,939 |
| 2014 | $134,469 | $140,250 | $0 | $274,719 | $274,719 |
| 2013 | $137,248 | $140,250 | $0 | $277,498 | $277,498 |
| 2012 | $143,596 | $140,250 | $0 | $283,846 | $283,846 |
| 2011 | $146,375 | $165,000 | $0 | $311,375 | $311,375 |
| 2010 | $169,931 | $165,000 | $0 | $334,931 | $334,931 |
| 2009 | $177,355 | $175,000 | $0 | $352,355 | $352,355 |
| 2008 | $180,188 | $175,000 | $0 | $355,188 | $355,188 |
| 2007 | $183,047 | $107,250 | $0 | $290,297 | $290,297 |
Deed and Sales History
| 1 | 06/13/2018 | PRD | Personal Representatives Deed | EGGERMAN, MARGARET E | EGGERMAN, THOMAS | | | $0.00 | 34499 | 4446077 |
| 2 | 03/27/2008 | PRD | Personal Representatives Deed | EGGERMAN, ROBERT L | EGGERMAN, MARGARET E | | | $0.00 | 80823 | 4225462 |
| 3 | 01/01/1900 | OTHER | Other - Misc. Documents | EGGERMAN, ROBERT L | EGGERMAN, ROBERT L | | | $0.00 | 0 | 0 |
| 4 | 01/01/1900 | OTHER | Other - Misc. Documents | Unknown | EGGERMAN, ROBERT L | | | $0.00 | 0 | 0 |
Payout Agreement
| No payout information available.. |