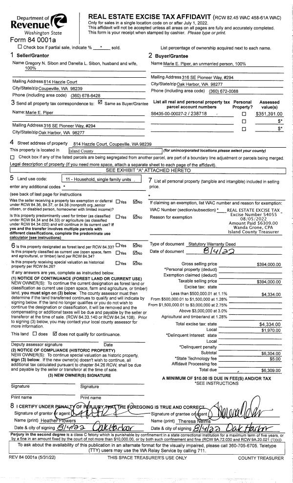
Property
Account |
| Property ID: | 76722 | Abbreviated Legal Description: | 7-4 - LOT 7 BLK 4 SURVEY V3 SUR P89 TGW EZ CAMANO SUNRISE #2 |
| Geographic ID: | R23112-127-3660 | Agent Code: | |
| Type: | Real | | |
| Tax Area: | 512 - APPRAISER-Stan/Cam Schl Dist, improved, greater than 1 acre | Land Use Code | 11 |
| Open Space: | N | DFL | N |
| Historic Property: | N | Remodel Property: | N |
| Multi-Family Redevelopment: | N | | |
| Township: | 31 | Section: | 12 |
| Range: | R2 |
Location |
| Address: | 712 MICHAEL WAY CAMANO ISLAND, WA 98282 | Mapsco: | |
| Neighborhood: | Cycle 5 | Map ID: | 474 |
| Neighborhood CD: | 5 |
Owner |
| Name: | KOCH, WILLIAM L | Owner ID: | 282036 |
| Mailing Address: | 712 MICHAEL WAY CAMANO ISLAND, WA 98282 | % Ownership: | 100.0000000000% |
| | | Exemptions: | |
Taxes and Assessment Details
Values
| (+) Improvement Homesite Value: | + | $0 | |
| (+) Improvement Non-Homesite Value: | + | $1,088,488 | |
| (+) Land Homesite Value: | + | $0 | |
| (+) Land Non-Homesite Value: | + | $330,000 | |
| (+) Curr Use (HS): | + | $0 | $0 |
| (+) Curr Use (NHS): | + | $0 | $0 |
| | | -------------------------- | |
| (=) Market Value: | = | $1,418,488 | |
| (–) Productivity Loss: | – | $0 | |
| | | -------------------------- | |
| (=) Subtotal: | = | $1,418,488 | |
| (+) Senior Appraised Value: | + | $0 | |
| (+) Non-Senior Appraised Value: | + | $1,418,488 | |
| | | -------------------------- | |
| (=) Total Appraised Value: | = | $1,418,488 | |
| (–) Senior Exemption Loss: | – | $0 | |
| (–) Exemption Loss: | – | $0 | |
| | | -------------------------- | |
| (=) Taxable Value: | = | $1,418,488 | |
Taxing Jurisdiction
| Owner: | KOCH, WILLIAM L | | |
| % Ownership: | 100.0000000000% | | |
| Total Value: | $1,418,488 | | |
| Tax Area: | 512 - APPRAISER-Stan/Cam Schl Dist, improved, greater than 1 acre |
| CF | Conservation Futures | 0.0316035091 | $1,418,488 | $1,418,488 | $44.83 | | |
| EMS1 | Fire & Rescue Dist #1 Camano GEN (EMS) | 0.3677864386 | $1,418,488 | $1,418,488 | $521.70 | | |
| FIRE1 | Fire & Rescue Dist #1 Camano GEN | 1.2502910536 | $1,418,488 | $1,418,488 | $1,773.52 | | |
| FIRE1BOND | Fire & Rescue Dist #1 Camano BOND | 0.1570001679 | $1,418,488 | $1,418,488 | $222.70 | | |
| CE | County Current Expense | 0.3708482477 | $1,418,488 | $1,418,488 | $526.04 | | |
| CR | County Roads | 0.4584763726 | $1,418,488 | $1,418,488 | $650.34 | | |
| LCIB | Library Sno-Isle BOND (Camano Island) | 0.0396325772 | $1,418,488 | $1,418,488 | $56.22 | | |
| LIB | Library Sno-Isle GEN | 0.3153421757 | $1,418,488 | $1,418,488 | $447.31 | | |
| SCH205_401 | School 205-401 Enrichment | 1.2698420524 | $1,418,488 | $1,418,488 | $1,801.26 | | |
| SCH205BOND | School 205-401 BOND | 0.9396497583 | $1,418,488 | $1,418,488 | $1,332.88 | | |
| ST | State School | 1.3035497053 | $1,418,488 | $1,418,488 | $1,849.07 | | |
| ST2 | State School Part 2 | 0.8169543533 | $1,418,488 | $1,418,488 | $1,158.84 | | |
| | Total Tax Rate: | 7.3209764117 | | | | | |
| | | | | Taxes w/Current Exemptions: | $10,384.71 | | |
| | | | | Taxes w/o Exemptions: | $10,384.71 | | |
Improvement / Building
| Improvement #1: | RESIDENTIAL | State Code: | Y | 3709.0 sqft | Value: | $1,088,488 |
| Bathrooms: | 2.5 | Bedrooms: | 3 | | Ceiling: | TONGUE & GROOVE | Cooling: | HEAT PUMP/CONV/V | | Exterior Wall/Cover: | LOG TO 10" | Floor Covering: | HARDWOOD 100% | | Floor Structure: | WOOD W/SUBFLOOR | Foundation: | CONCRETE | | Interior Finish: | DRYWALL PAINT | Plumbing Fixture Cnt: | 21 | | Roof Slope: | 10" IN 12" | Roof Structure/Cover: | BEAM WOOD SHAKES |
|
| | Type | Description | Class CD | Sub Class CD | Year Built | Area |
| | BAS | BASE/MAIN FLOOR | 6 | 0 | 2004 | 2100.0 |
| | OP4 | OPEN PORCH W/CEILING-ROOF | 6 | 0 | 2004 | 99.2 |
| | AGR | ATTACHED GARAGE | 6 | 0 | 2004 | 722.0 |
| | UPS | UPPER STORY | 6 | 0 | 2004 | 1033.0 |
| | OWC | OPEN WOOD PORCH W/STEPS/ROOF/C | 6 | 0 | 2004 | 152.0 |
| | OWC | OPEN WOOD PORCH W/STEPS/ROOF/C | 6 | 0 | 2004 | 210.0 |
| | OWC | OPEN WOOD PORCH W/STEPS/ROOF/C | 6 | 0 | 2004 | 280.0 |
| | DGR | DETACHED GARAGE | 6 | 0 | 2004 | 1920.0 |
| | CPD | OPEN CARPORT DIRT FLOOR | 6 | 0 | 2004 | 360.0 |
| | UPS | UPPER STORY | 6 | 0 | 2004 | 192.0 |
| | DWN | DOWNSTAIRS LIVING AREA | 6 | 0 | 2004 | 384.0 |
Sketch
Property Image
Land
| 1 | 32 | AC (03.01-09.99) | 5.6100 | 0.00 | 0.00 | 0.00 | 1.00 | $330,000 | $0 |
Roll Value History
| 2026 | N/A | N/A | N/A | N/A | N/A |
| 2025 | $1,088,488 | $330,000 | $0 | $1,418,488 | $1,418,488 |
| 2024 | $1,078,921 | $300,000 | $0 | $1,378,921 | $1,378,921 |
| 2023 | $1,090,604 | $290,000 | $0 | $1,380,604 | $1,380,604 |
| 2022 | $1,000,008 | $290,000 | $0 | $1,290,008 | $1,290,008 |
| 2021 | $827,633 | $190,000 | $0 | $1,017,633 | $1,017,633 |
| 2020 | $806,980 | $160,000 | $0 | $966,980 | $966,980 |
| 2019 | $628,119 | $230,000 | $0 | $858,119 | $858,119 |
| 2018 | $629,745 | $175,000 | $0 | $804,745 | $804,745 |
| 2017 | $632,953 | $170,000 | $0 | $802,953 | $802,953 |
| 2016 | $639,491 | $150,000 | $0 | $789,491 | $789,491 |
| 2015 | $549,880 | $140,250 | $0 | $690,130 | $690,130 |
| 2014 | $554,942 | $140,250 | $0 | $695,192 | $695,192 |
| 2013 | $560,004 | $125,664 | $0 | $685,668 | $685,668 |
| 2012 | $610,017 | $125,664 | $0 | $735,681 | $735,681 |
| 2011 | $615,571 | $157,080 | $0 | $772,651 | $772,651 |
| 2010 | $624,933 | $157,080 | $0 | $782,013 | $782,013 |
| 2009 | $654,068 | $179,520 | $0 | $833,588 | $833,588 |
| 2008 | $647,448 | $241,230 | $0 | $888,678 | $888,678 |
| 2007 | $656,122 | $164,031 | $0 | $820,153 | $820,153 |
Deed and Sales History
| 1 | 09/20/2017 | WD | Warranty Deed | CHURCH, BARNEY L | KOCH, WILLIAM L | | | $815,000.00 | 31167 | 4430593 |
| 2 | 03/23/2009 | QCD | Quit Claim Deed | CHURCH, BARNEY L | CHURCH, BARNEY L | | | $0.00 | 90831 | 4249075 |
| 3 | 10/24/2006 | DECREE | Divorce Decree/Legal Separation | CHURCH, BARNEY L | CHURCH, BARNEY L | | | $0.00 | 64721 | 4186078 |
| 4 | 12/03/2003 | WD | Warranty Deed | SHANE, ERVEN R | CHURCH, BARNEY L | | | $89,200.00 | 35514 | 4085386 |
| 5 | 10/26/2003 | QCD | Quit Claim Deed | CARDELLA, JAMES R | SHANE, ERVEN R | | | $0.00 | 34930 | 4081188 |
| 6 | 05/04/1998 | QCD | Quit Claim Deed | Unknown | CARDELLA, JAMES R | | | $0.00 | 82114 | 98011025 |
| 7 | 01/01/1900 | OTHER | Other - Misc. Documents | Unknown | SHANE, ERVEN R | | | $0.00 | 0 | 0 |
Payout Agreement
| No payout information available.. |