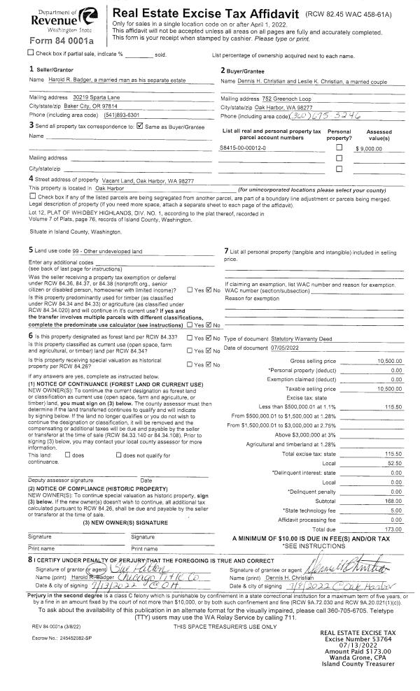
Property
Account |
| Property ID: | 77080 | Abbreviated Legal Description: | IN SW NE: BG SECR W/2 W/2 SW NE N162.21' TPB N256.40' E834.33' S6*E258.54' W865 .47' TPB (TR 2 V5 SUR P28/29 AF#363630 GREEN IS HILLS) |
| Geographic ID: | R23112-305-3400 | Agent Code: | |
| Type: | Real | | |
| Tax Area: | 512 - APPRAISER-Stan/Cam Schl Dist, improved, greater than 1 acre | Land Use Code | 11 |
| Open Space: | N | DFL | N |
| Historic Property: | N | Remodel Property: | N |
| Multi-Family Redevelopment: | N | | |
| Township: | 31 | Section: | 12 |
| Range: | R2 |
Location |
| Address: | 578 MICHAEL WAY CAMANO ISLAND, WA 98282 | Mapsco: | |
| Neighborhood: | Cycle 5 | Map ID: | 476 |
| Neighborhood CD: | 5 |
Owner |
| Name: | LEIBRECHT, MURL | Owner ID: | 271721 |
| Mailing Address: | KAREN LEIBRECHT 578 MICHAEL WAY CAMANO ISLAND, WA 98282 | % Ownership: | 100.0000000000% |
| | | Exemptions: | |
Taxes and Assessment Details
Values
| (+) Improvement Homesite Value: | + | $0 | |
| (+) Improvement Non-Homesite Value: | + | $612,371 | |
| (+) Land Homesite Value: | + | $0 | |
| (+) Land Non-Homesite Value: | + | $330,000 | |
| (+) Curr Use (HS): | + | $0 | $0 |
| (+) Curr Use (NHS): | + | $0 | $0 |
| | | -------------------------- | |
| (=) Market Value: | = | $942,371 | |
| (–) Productivity Loss: | – | $0 | |
| | | -------------------------- | |
| (=) Subtotal: | = | $942,371 | |
| (+) Senior Appraised Value: | + | $0 | |
| (+) Non-Senior Appraised Value: | + | $942,371 | |
| | | -------------------------- | |
| (=) Total Appraised Value: | = | $942,371 | |
| (–) Senior Exemption Loss: | – | $0 | |
| (–) Exemption Loss: | – | $0 | |
| | | -------------------------- | |
| (=) Taxable Value: | = | $942,371 | |
Taxing Jurisdiction
| Owner: | LEIBRECHT, MURL | | |
| % Ownership: | 100.0000000000% | | |
| Total Value: | $942,371 | | |
| Tax Area: | 512 - APPRAISER-Stan/Cam Schl Dist, improved, greater than 1 acre |
| CF | Conservation Futures | 0.0316035091 | $942,371 | $942,371 | $29.78 | | |
| EMS1 | Fire & Rescue Dist #1 Camano GEN (EMS) | 0.3677864386 | $942,371 | $942,371 | $346.59 | | |
| FIRE1 | Fire & Rescue Dist #1 Camano GEN | 1.2502910536 | $942,371 | $942,371 | $1,178.24 | | |
| FIRE1BOND | Fire & Rescue Dist #1 Camano BOND | 0.1570001679 | $942,371 | $942,371 | $147.95 | | |
| CE | County Current Expense | 0.3708482477 | $942,371 | $942,371 | $349.48 | | |
| CR | County Roads | 0.4584763726 | $942,371 | $942,371 | $432.05 | | |
| LCIB | Library Sno-Isle BOND (Camano Island) | 0.0396325772 | $942,371 | $942,371 | $37.35 | | |
| LIB | Library Sno-Isle GEN | 0.3153421757 | $942,371 | $942,371 | $297.17 | | |
| SCH205_401 | School 205-401 Enrichment | 1.2698420524 | $942,371 | $942,371 | $1,196.66 | | |
| SCH205BOND | School 205-401 BOND | 0.9396497583 | $942,371 | $942,371 | $885.50 | | |
| ST | State School | 1.3035497053 | $942,371 | $942,371 | $1,228.43 | | |
| ST2 | State School Part 2 | 0.8169543533 | $942,371 | $942,371 | $769.87 | | |
| | Total Tax Rate: | 7.3209764117 | | | | | |
| | | | | Taxes w/Current Exemptions: | $6,899.07 | | |
| | | | | Taxes w/o Exemptions: | $6,899.07 | | |
Improvement / Building
| Improvement #1: | RESIDENTIAL | State Code: | Y | 3393.2 sqft | Value: | $612,371 |
| Bathrooms: | 3.5 | Bedrooms: | 3 | | Ceiling: | DRYWALL PAINTED | Cooling: | HEAT PUMP/CONV/V | | Exterior Wall/Cover: | STUCCO | Floor Covering: | VINYL TILE/CARP 20-80 | | Floor Structure: | WOOD W/SUBFLOOR | Foundation: | CONCRETE | | Interior Finish: | DRYWALL PAINT | Plumbing Fixture Cnt: | 17 | | Roof Slope: | 8" IN 12" | Roof Structure/Cover: | CJ ASPHALT |
|
| | Type | Description | Class CD | Sub Class CD | Year Built | Area |
| | BAS | BASE/MAIN FLOOR | 4 | 0 | 1992 | 2562.8 |
| | OP2 | OPEN PORCH W/STEPS | 4 | 0 | 1992 | 85.2 |
| | OP4 | OPEN PORCH W/CEILING-ROOF | 4 | 0 | 1992 | 81.0 |
| | AGR | ATTACHED GARAGE | 4 | 0 | 1992 | 871.2 |
| | UPS | UPPER STORY | 4 | 0 | 1992 | 830.4 |
| | OWP | OPEN WOOD PORCH W/STEPS | 4 | 0 | 1992 | 372.9 |
| | OWP | OPEN WOOD PORCH W/STEPS | 4 | 0 | 1992 | 312.0 |
| | UTY | STORAGE/UTILITY | 4 | 0 | 1992 | 200.0 |
Sketch
Property Image
Land
| 1 | 32 | AC (03.01-09.99) | 5.0000 | 0.00 | 0.00 | 0.00 | 1.00 | $330,000 | $0 |
Roll Value History
| 2026 | N/A | N/A | N/A | N/A | N/A |
| 2025 | $612,371 | $330,000 | $0 | $942,371 | $942,371 |
| 2024 | $619,907 | $300,000 | $0 | $919,907 | $919,907 |
| 2023 | $627,444 | $290,000 | $0 | $917,444 | $917,444 |
| 2022 | $574,990 | $290,000 | $0 | $864,990 | $864,990 |
| 2021 | $464,242 | $190,000 | $0 | $654,242 | $654,242 |
| 2020 | $453,121 | $160,000 | $0 | $613,121 | $613,121 |
| 2019 | $361,848 | $230,000 | $0 | $591,848 | $591,848 |
| 2018 | $362,960 | $175,000 | $0 | $537,960 | $537,960 |
| 2017 | $365,081 | $150,000 | $0 | $515,081 | $515,081 |
| 2016 | $369,532 | $125,000 | $0 | $494,532 | $494,532 |
| 2015 | $393,128 | $125,000 | $0 | $518,128 | $518,128 |
| 2014 | $398,270 | $125,000 | $0 | $523,270 | $523,270 |
| 2013 | $403,411 | $150,000 | $0 | $553,411 | $553,411 |
| 2012 | $408,556 | $200,000 | $0 | $608,556 | $608,556 |
| 2011 | $413,698 | $250,000 | $0 | $663,698 | $663,698 |
| 2010 | $435,489 | $250,000 | $0 | $685,489 | $685,489 |
| 2009 | $454,457 | $300,000 | $0 | $754,457 | $754,457 |
| 2008 | $447,723 | $337,500 | $0 | $785,223 | $785,223 |
| 2007 | $529,470 | $176,490 | $0 | $705,960 | $705,960 |
Deed and Sales History
| 1 | 07/31/2015 | WD | Warranty Deed | TURNER, LOIS A | LEIBRECHT, MURL | | | $475,000.00 | 20865 | 4383869 |
| 2 | 05/22/2009 | OTHER | Other - Misc. Documents | TURNER, JOHN H | TURNER, LOIS A | | | $0.00 | 81187 | 0 |
| 3 | 01/01/1990 | WD | Warranty Deed | GILBERTSON, SHIRLEY D | TURNER, JOHN H | | | $47,500.00 | 126 | 90000339 |
| 4 | 05/01/1988 | DECREE | Divorce Decree/Legal Separation | GILBERTSON, ALLEN | GILBERTSON, SHIRLEY D | | | $0.00 | 81423 | 88005314 |
| 5 | 08/01/1978 | OTHER | Other - Misc. Documents | GILBERTSON, ALLEN | GILBERTSON, ALLEN | | | $0.00 | 58572 | 0 |
| 6 | 01/01/1900 | OTHER | Other - Misc. Documents | Unknown | GILBERTSON, ALLEN | | | $0.00 | 0 | 0 |
Payout Agreement
| No payout information available.. |