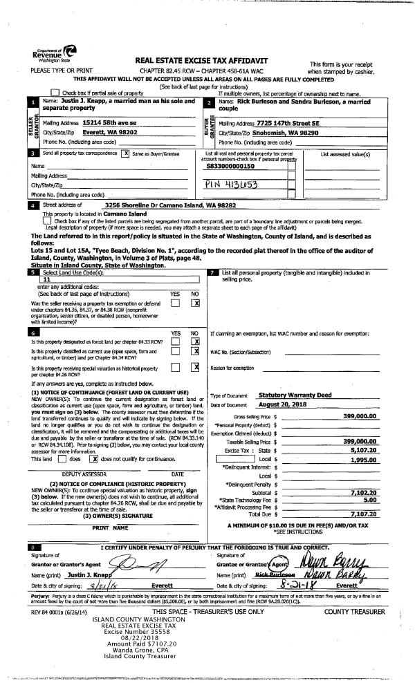
Property
Account |
| Property ID: | 77990 | Abbreviated Legal Description: | 18-2 - LOT 18 BLK 2 PER SURVEY VOL3 P90 CAM SUN #1 |
| Geographic ID: | R23113-286-1740 | Agent Code: | |
| Type: | Real | | |
| Tax Area: | 512 - APPRAISER-Stan/Cam Schl Dist, improved, greater than 1 acre | Land Use Code | 11 |
| Open Space: | N | DFL | N |
| Historic Property: | N | Remodel Property: | N |
| Multi-Family Redevelopment: | N | | |
| Township: | 31 | Section: | 13 |
| Range: | R2 |
Location |
| Address: | 292 SOLAR WAY CAMANO ISLAND, WA 98282 | Mapsco: | |
| Neighborhood: | Cycle 5 | Map ID: | 479 |
| Neighborhood CD: | 5 |
Owner |
| Name: | MUELLER, EDWARD C | Owner ID: | 286065 |
| Mailing Address: | DONNA G BUDD 292 SOLAR WAY CAMANO ISLAND, WA 98282 | % Ownership: | 100.0000000000% |
| | | Exemptions: | |
Taxes and Assessment Details
Values
| (+) Improvement Homesite Value: | + | $0 | |
| (+) Improvement Non-Homesite Value: | + | $559,165 | |
| (+) Land Homesite Value: | + | $0 | |
| (+) Land Non-Homesite Value: | + | $330,000 | |
| (+) Curr Use (HS): | + | $0 | $0 |
| (+) Curr Use (NHS): | + | $0 | $0 |
| | | -------------------------- | |
| (=) Market Value: | = | $889,165 | |
| (–) Productivity Loss: | – | $0 | |
| | | -------------------------- | |
| (=) Subtotal: | = | $889,165 | |
| (+) Senior Appraised Value: | + | $0 | |
| (+) Non-Senior Appraised Value: | + | $889,165 | |
| | | -------------------------- | |
| (=) Total Appraised Value: | = | $889,165 | |
| (–) Senior Exemption Loss: | – | $0 | |
| (–) Exemption Loss: | – | $0 | |
| | | -------------------------- | |
| (=) Taxable Value: | = | $889,165 | |
Taxing Jurisdiction
| Owner: | MUELLER, EDWARD C | | |
| % Ownership: | 100.0000000000% | | |
| Total Value: | $889,165 | | |
| Tax Area: | 512 - APPRAISER-Stan/Cam Schl Dist, improved, greater than 1 acre |
| CF | Conservation Futures | 0.0316035091 | $889,165 | $889,165 | $28.10 | | |
| EMS1 | Fire & Rescue Dist #1 Camano GEN (EMS) | 0.3677864386 | $889,165 | $889,165 | $327.02 | | |
| FIRE1 | Fire & Rescue Dist #1 Camano GEN | 1.2502910536 | $889,165 | $889,165 | $1,111.72 | | |
| FIRE1BOND | Fire & Rescue Dist #1 Camano BOND | 0.1570001679 | $889,165 | $889,165 | $139.60 | | |
| CE | County Current Expense | 0.3708482477 | $889,165 | $889,165 | $329.75 | | |
| CR | County Roads | 0.4584763726 | $889,165 | $889,165 | $407.66 | | |
| LCIB | Library Sno-Isle BOND (Camano Island) | 0.0396325772 | $889,165 | $889,165 | $35.24 | | |
| LIB | Library Sno-Isle GEN | 0.3153421757 | $889,165 | $889,165 | $280.39 | | |
| SCH205_401 | School 205-401 Enrichment | 1.2698420524 | $889,165 | $889,165 | $1,129.10 | | |
| SCH205BOND | School 205-401 BOND | 0.9396497583 | $889,165 | $889,165 | $835.50 | | |
| ST | State School | 1.3035497053 | $889,165 | $889,165 | $1,159.07 | | |
| ST2 | State School Part 2 | 0.8169543533 | $889,165 | $889,165 | $726.41 | | |
| | Total Tax Rate: | 7.3209764117 | | | | | |
| | | | | Taxes w/Current Exemptions: | $6,509.56 | | |
| | | | | Taxes w/o Exemptions: | $6,509.56 | | |
Improvement / Building
| Improvement #1: | RESIDENTIAL | State Code: | Y | 2728.0 sqft | Value: | $559,165 |
| Bathrooms: | 3 | Bedrooms: | 3 | | Ceiling: | DRYWALL PAINTED | Cooling: | HEAT PUMP/CONV/V | | Exterior Wall/Cover: | CEMENT FIBER | Floor Covering: | HARDWOOD/CARP 20-80 | | Floor Structure: | WOOD W/SUBFLOOR | Foundation: | CONCRETE | | Interior Finish: | DRYWALL PAINT | Plumbing Fixture Cnt: | 14 | | Roof Slope: | 5" IN 12" | Roof Structure/Cover: | CJ ASPHALT |
|
| | Type | Description | Class CD | Sub Class CD | Year Built | Area |
| | BAS | BASE/MAIN FLOOR | 4 | 0 | 2019 | 1864.0 |
| | UPS | UPPER STORY | 4 | 0 | 2019 | 864.0 |
| | AGR | ATTACHED GARAGE | 4 | 0 | 2019 | 1146.0 |
| | OWP | OPEN WOOD PORCH W/STEPS | 4 | 0 | 2019 | 198.5 |
| | OWC | OPEN WOOD PORCH W/STEPS/ROOF/C | 4 | 0 | 2019 | 96.0 |
| | OWP | OPEN WOOD PORCH W/STEPS | 4 | 0 | 2019 | 162.5 |
| | OWC | OPEN WOOD PORCH W/STEPS/ROOF/C | 4 | 0 | 2019 | 214.5 |
Sketch
Property Image
Land
| 1 | 32 | AC (03.01-09.99) | 5.0000 | 0.00 | 0.00 | 0.00 | 1.00 | $330,000 | $0 |
Roll Value History
| 2026 | N/A | N/A | N/A | N/A | N/A |
| 2025 | $559,165 | $330,000 | $0 | $889,165 | $889,165 |
| 2024 | $563,676 | $300,000 | $0 | $863,676 | $863,676 |
| 2023 | $568,184 | $290,000 | $0 | $858,184 | $858,184 |
| 2022 | $518,590 | $290,000 | $0 | $808,590 | $808,590 |
| 2021 | $455,647 | $190,000 | $0 | $645,647 | $645,647 |
| 2020 | $446,844 | $160,000 | $0 | $606,844 | $606,844 |
| 2019 | $78,572 | $130,000 | $0 | $208,572 | $208,572 |
| 2018 | $0 | $120,000 | $0 | $120,000 | $120,000 |
| 2017 | $0 | $90,000 | $0 | $90,000 | $90,000 |
| 2016 | $0 | $80,000 | $0 | $80,000 | $80,000 |
| 2015 | $0 | $100,000 | $0 | $100,000 | $100,000 |
| 2014 | $0 | $100,000 | $0 | $100,000 | $100,000 |
| 2013 | $0 | $120,000 | $0 | $120,000 | $120,000 |
| 2012 | $0 | $120,000 | $0 | $120,000 | $120,000 |
| 2011 | $0 | $120,000 | $0 | $120,000 | $120,000 |
| 2010 | $0 | $120,000 | $0 | $120,000 | $120,000 |
| 2009 | $0 | $150,000 | $0 | $150,000 | $150,000 |
| 2008 | $0 | $152,500 | $0 | $152,500 | $152,500 |
| 2007 | $0 | $130,000 | $0 | $130,000 | $130,000 |
Deed and Sales History
| 1 | 07/16/2018 | WD | Warranty Deed | BERGER, JOHN K | MUELLER, EDWARD C | | | $150,000.00 | 35065 | 4448282 |
| 2 | 06/10/2014 | QCD | Quit Claim Deed | BERGER, JOHN K | BERGER, JOHN K | | | $0.00 | 15696 | 4361087 |
Payout Agreement
| No payout information available.. |