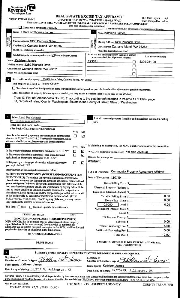
Property
Account |
| Property ID: | 78276 | Abbreviated Legal Description: | 23-1 - LOT 23 BLK 1 CAMANO SUN#1 V3P90 TGW EZ |
| Geographic ID: | R23113-381-3520 | Agent Code: | |
| Type: | Real | | |
| Tax Area: | 512 - APPRAISER-Stan/Cam Schl Dist, improved, greater than 1 acre | Land Use Code | 11 |
| Open Space: | N | DFL | N |
| Historic Property: | N | Remodel Property: | N |
| Multi-Family Redevelopment: | N | | |
| Township: | 31 | Section: | 13 |
| Range: | R2 |
Location |
| Address: | 915 LAWSON RD CAMANO ISLAND, WA 98282 | Mapsco: | |
| Neighborhood: | Cycle 5 | Map ID: | 480 |
| Neighborhood CD: | 5 |
Owner |
| Name: | BINGHAM, JOHN W | Owner ID: | 292347 |
| Mailing Address: | REBECCA A BINGHAM 915 LAWSON RD CAMANO ISLAND, WA 98282 | % Ownership: | 100.0000000000% |
| | | Exemptions: | |
Taxes and Assessment Details
Values
| (+) Improvement Homesite Value: | + | $0 | |
| (+) Improvement Non-Homesite Value: | + | $498,722 | |
| (+) Land Homesite Value: | + | $0 | |
| (+) Land Non-Homesite Value: | + | $410,000 | |
| (+) Curr Use (HS): | + | $0 | $0 |
| (+) Curr Use (NHS): | + | $0 | $0 |
| | | -------------------------- | |
| (=) Market Value: | = | $908,722 | |
| (–) Productivity Loss: | – | $0 | |
| | | -------------------------- | |
| (=) Subtotal: | = | $908,722 | |
| (+) Senior Appraised Value: | + | $0 | |
| (+) Non-Senior Appraised Value: | + | $908,722 | |
| | | -------------------------- | |
| (=) Total Appraised Value: | = | $908,722 | |
| (–) Senior Exemption Loss: | – | $0 | |
| (–) Exemption Loss: | – | $0 | |
| | | -------------------------- | |
| (=) Taxable Value: | = | $908,722 | |
Taxing Jurisdiction
| Owner: | BINGHAM, JOHN W | | |
| % Ownership: | 100.0000000000% | | |
| Total Value: | $908,722 | | |
| Tax Area: | 512 - APPRAISER-Stan/Cam Schl Dist, improved, greater than 1 acre |
| CF | Conservation Futures | 0.0316035091 | $908,722 | $908,722 | $28.72 | | |
| EMS1 | Fire & Rescue Dist #1 Camano GEN (EMS) | 0.3677864386 | $908,722 | $908,722 | $334.22 | | |
| FIRE1 | Fire & Rescue Dist #1 Camano GEN | 1.2502910536 | $908,722 | $908,722 | $1,136.17 | | |
| FIRE1BOND | Fire & Rescue Dist #1 Camano BOND | 0.1570001679 | $908,722 | $908,722 | $142.67 | | |
| CE | County Current Expense | 0.3708482477 | $908,722 | $908,722 | $337.00 | | |
| CR | County Roads | 0.4584763726 | $908,722 | $908,722 | $416.63 | | |
| LCIB | Library Sno-Isle BOND (Camano Island) | 0.0396325772 | $908,722 | $908,722 | $36.01 | | |
| LIB | Library Sno-Isle GEN | 0.3153421757 | $908,722 | $908,722 | $286.56 | | |
| SCH205_401 | School 205-401 Enrichment | 1.2698420524 | $908,722 | $908,722 | $1,153.93 | | |
| SCH205BOND | School 205-401 BOND | 0.9396497583 | $908,722 | $908,722 | $853.88 | | |
| ST | State School | 1.3035497053 | $908,722 | $908,722 | $1,184.56 | | |
| ST2 | State School Part 2 | 0.8169543533 | $908,722 | $908,722 | $742.38 | | |
| | Total Tax Rate: | 7.3209764117 | | | | | |
| | | | | Taxes w/Current Exemptions: | $6,652.73 | | |
| | | | | Taxes w/o Exemptions: | $6,652.73 | | |
Improvement / Building
| Improvement #1: | RESIDENTIAL | State Code: | Y | 5188.3 sqft | Value: | $498,722 |
| Bathrooms: | 4 | Bedrooms: | 3 | | Ceiling: | DRY WALL SPRAYED | Cooling: | HEAT PUMP/CONV/V | | Exterior Wall/Cover: | WOOD SIDING | Floor Covering: | HARDWOOD/CARP 20-80 | | Floor Structure: | WOOD W/SUBFLOOR | Foundation: | CONCRETE | | Interior Finish: | DRYWALL PAINT | Plumbing Fixture Cnt: | 18 | | Roof Slope: | 5" IN 12" | Roof Structure/Cover: | BEAM WOOD SHAKES |
|
| | Type | Description | Class CD | Sub Class CD | Year Built | Area |
| | BAS | BASE/MAIN FLOOR | 4 | 0 | 1979 | 2585.5 |
| | OP1 | OPEN PORCH SLAB | 4 | 0 | 1979 | 1130.0 |
| | OP4 | OPEN PORCH W/CEILING-ROOF | 4 | 0 | 1979 | 132.6 |
| | AGR | ATTACHED GARAGE | 4 | 0 | 1979 | 720.0 |
| | OWP | OPEN WOOD PORCH W/STEPS | 4 | 0 | 1979 | 1235.5 |
| | DWN | DOWNSTAIRS LIVING AREA | 4 | 0 | 1979 | 2602.8 |
Sketch
Property Image
Land
| 1 | 32 | AC (03.01-09.99) | 5.0000 | 0.00 | 0.00 | 0.00 | 1.00 | $410,000 | $0 |
Roll Value History
| 2026 | N/A | N/A | N/A | N/A | N/A |
| 2025 | $498,722 | $410,000 | $0 | $908,722 | $908,722 |
| 2024 | $505,350 | $390,000 | $0 | $895,350 | $895,350 |
| 2023 | $511,978 | $380,000 | $0 | $891,978 | $891,978 |
| 2022 | $469,583 | $350,000 | $0 | $819,583 | $819,583 |
| 2021 | $409,475 | $210,000 | $0 | $619,475 | $619,475 |
| 2020 | $400,623 | $200,000 | $0 | $600,623 | $600,623 |
| 2019 | $344,665 | $250,000 | $0 | $594,665 | $594,665 |
| 2018 | $379,050 | $220,000 | $0 | $599,050 | $599,050 |
| 2017 | $381,434 | $170,000 | $0 | $551,434 | $551,434 |
| 2016 | $386,588 | $150,000 | $0 | $536,588 | $536,588 |
| 2015 | $348,612 | $200,000 | $0 | $548,612 | $548,612 |
| 2014 | $353,975 | $200,000 | $0 | $553,975 | $553,975 |
| 2013 | $359,337 | $112,000 | $0 | $471,337 | $471,337 |
| 2012 | $364,701 | $112,000 | $0 | $476,701 | $476,701 |
| 2011 | $370,064 | $140,000 | $0 | $510,064 | $510,064 |
| 2010 | $425,652 | $140,000 | $0 | $565,652 | $565,652 |
| 2009 | $444,372 | $160,000 | $0 | $604,372 | $604,372 |
| 2008 | $447,018 | $215,000 | $0 | $662,018 | $662,018 |
| 2007 | $452,791 | $147,500 | $0 | $600,291 | $600,291 |
Deed and Sales History
| 1 | 02/06/2025 | WD | Warranty Deed | APPERT, JACQUELINE | BINGHAM, JOHN W | | | $950,000.00 | 62543 | 4582158 |
| 2 | 08/13/2020 | QCD | Quit Claim Deed | APPERT, JACQUELINE | APPERT, JACQUELINE | | | $0.00 | 44287 | 4494113 |
| 3 | 01/02/2019 | QCD | Quit Claim Deed | APPERT, SCOT | APPERT, JACQUELINE | | | $0.00 | 37258 | 4457695 |
| 4 | 01/02/2019 | WD | Warranty Deed | GULLION, NATHANIEL D | APPERT, JACQUELINE | | | $569,950.00 | 37257 | 4457694 |
| 5 | 06/27/2011 | WD | Warranty Deed | FORTNER, BETTY M | GULLION, NATHANIEL D | | | $422,500.00 | 4861 | 4297494 |
| 6 | 11/01/1995 | OTHER | Other - Misc. Documents | FORTNER, EDWIN E | FORTNER, BETTY M | | | $0.00 | 66706 | 0 |
| 7 | 01/01/1900 | OTHER | Other - Misc. Documents | Unknown | FORTNER, EDWIN E | | | $0.00 | 0 | 0 |
Payout Agreement
| No payout information available.. |