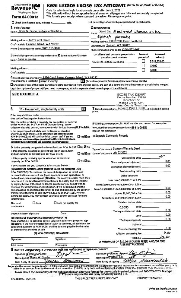
Property
Account |
| Property ID: | 78445 | Abbreviated Legal Description: | 6-1 - LOT 6 BLK 1 CAMANO SUN #2 V3 SUR P89 |
| Geographic ID: | R23113-432-4940 | Agent Code: | |
| Type: | Real | | |
| Tax Area: | 512 - APPRAISER-Stan/Cam Schl Dist, improved, greater than 1 acre | Land Use Code | 11 |
| Open Space: | N | DFL | N |
| Historic Property: | N | Remodel Property: | N |
| Multi-Family Redevelopment: | N | | |
| Township: | 31 | Section: | 13 |
| Range: | R2 |
Location |
| Address: | 875 MICHAEL WAY CAMANO ISLAND, WA 98282 | Mapsco: | |
| Neighborhood: | Cycle 5 | Map ID: | 480 |
| Neighborhood CD: | 5 |
Owner |
| Name: | NELSON, DOUGLAS | Owner ID: | 294410 |
| Mailing Address: | JANAE NELSON 875 MICHAEL WAY CAMANO ISLAND, WA 98282 | % Ownership: | 100.0000000000% |
| | | Exemptions: | |
Taxes and Assessment Details
Values
| (+) Improvement Homesite Value: | + | $0 | |
| (+) Improvement Non-Homesite Value: | + | $705,777 | |
| (+) Land Homesite Value: | + | $0 | |
| (+) Land Non-Homesite Value: | + | $440,000 | |
| (+) Curr Use (HS): | + | $0 | $0 |
| (+) Curr Use (NHS): | + | $0 | $0 |
| | | -------------------------- | |
| (=) Market Value: | = | $1,145,777 | |
| (–) Productivity Loss: | – | $0 | |
| | | -------------------------- | |
| (=) Subtotal: | = | $1,145,777 | |
| (+) Senior Appraised Value: | + | $0 | |
| (+) Non-Senior Appraised Value: | + | $1,145,777 | |
| | | -------------------------- | |
| (=) Total Appraised Value: | = | $1,145,777 | |
| (–) Senior Exemption Loss: | – | $0 | |
| (–) Exemption Loss: | – | $0 | |
| | | -------------------------- | |
| (=) Taxable Value: | = | $1,145,777 | |
Taxing Jurisdiction
| Owner: | NELSON, DOUGLAS | | |
| % Ownership: | 100.0000000000% | | |
| Total Value: | $1,145,777 | | |
| Tax Area: | 512 - APPRAISER-Stan/Cam Schl Dist, improved, greater than 1 acre |
| CF | Conservation Futures | 0.0316035091 | $1,145,777 | $1,145,777 | $36.21 | | |
| EMS1 | Fire & Rescue Dist #1 Camano GEN (EMS) | 0.3677864386 | $1,145,777 | $1,145,777 | $421.40 | | |
| FIRE1 | Fire & Rescue Dist #1 Camano GEN | 1.2502910536 | $1,145,777 | $1,145,777 | $1,432.55 | | |
| FIRE1BOND | Fire & Rescue Dist #1 Camano BOND | 0.1570001679 | $1,145,777 | $1,145,777 | $179.89 | | |
| CE | County Current Expense | 0.3708482477 | $1,145,777 | $1,145,777 | $424.91 | | |
| CR | County Roads | 0.4584763726 | $1,145,777 | $1,145,777 | $525.31 | | |
| LCIB | Library Sno-Isle BOND (Camano Island) | 0.0396325772 | $1,145,777 | $1,145,777 | $45.41 | | |
| LIB | Library Sno-Isle GEN | 0.3153421757 | $1,145,777 | $1,145,777 | $361.31 | | |
| SCH205_401 | School 205-401 Enrichment | 1.2698420524 | $1,145,777 | $1,145,777 | $1,454.96 | | |
| SCH205BOND | School 205-401 BOND | 0.9396497583 | $1,145,777 | $1,145,777 | $1,076.63 | | |
| ST | State School | 1.3035497053 | $1,145,777 | $1,145,777 | $1,493.58 | | |
| ST2 | State School Part 2 | 0.8169543533 | $1,145,777 | $1,145,777 | $936.05 | | |
| | Total Tax Rate: | 7.3209764117 | | | | | |
| | | | | Taxes w/Current Exemptions: | $8,388.21 | | |
| | | | | Taxes w/o Exemptions: | $8,388.21 | | |
Improvement / Building
| Improvement #1: | RESIDENTIAL | State Code: | Y | 3699.8 sqft | Value: | $705,777 |
| Bathrooms: | 2.5 | Bedrooms: | 3 | | Ceiling: | DRYWALL PAINTED | Cooling: | HEAT PUMP/CONV/V | | Exterior Wall/Cover: | WOOD SIDING | Floor Covering: | CARPET/VINYL 80-20 | | Floor Structure: | WOOD W/SUBFLOOR | Foundation: | CONCRETE | | Heating: | FHA GAS | Interior Finish: | DRYWALL PAINT | | Plumbing Fixture Cnt: | 16 | Roof Slope: | 5" IN 12" | | Roof Structure/Cover: | CJ ALUMINIUM HEAVY |   |   |
|
| | Type | Description | Class CD | Sub Class CD | Year Built | Area |
| | BAS | BASE/MAIN FLOOR | 4 | 0 | 1990 | 1870.3 |
| | DGR | DETACHED GARAGE | 4 | 0 | 1990 | 1260.0 |
| | UTY | STORAGE/UTILITY | 4 | 0 | 1990 | 240.0 |
| | OWP | OPEN WOOD PORCH W/STEPS | 4 | 0 | 1990 | 656.9 |
| | OWC | OPEN WOOD PORCH W/STEPS/ROOF/C | 4 | 0 | 1990 | 21.7 |
| | DWN | DOWNSTAIRS LIVING AREA | 4 | 0 | 1990 | 1829.5 |
| | OP4 | OPEN PORCH W/CEILING-ROOF | 4 | 0 | 1990 | 632.4 |
Sketch
Property Image
Land
| 1 | 32 | AC (03.01-09.99) | 5.0800 | 0.00 | 0.00 | 0.00 | 1.00 | $440,000 | $0 |
Roll Value History
| 2026 | N/A | N/A | N/A | N/A | N/A |
| 2025 | $705,777 | $440,000 | $0 | $1,145,777 | $1,145,777 |
| 2024 | $713,866 | $420,000 | $0 | $1,133,866 | $1,133,866 |
| 2023 | $721,956 | $400,000 | $0 | $1,121,956 | $1,121,956 |
| 2022 | $659,234 | $380,000 | $0 | $1,039,234 | $1,039,234 |
| 2021 | $578,336 | $280,000 | $0 | $858,336 | $858,336 |
| 2020 | $424,314 | $220,000 | $0 | $644,314 | $644,314 |
| 2019 | $342,112 | $260,000 | $0 | $602,112 | $602,112 |
| 2018 | $343,165 | $230,000 | $0 | $573,165 | $573,165 |
| 2017 | $345,219 | $200,000 | $0 | $545,219 | $545,219 |
| 2016 | $349,429 | $170,000 | $0 | $519,429 | $519,429 |
| 2015 | $353,639 | $200,000 | $0 | $553,639 | $553,639 |
| 2014 | $308,860 | $203,200 | $0 | $512,060 | $512,060 |
| 2013 | $312,815 | $150,000 | $0 | $462,815 | $462,815 |
| 2012 | $316,769 | $203,200 | $0 | $519,969 | $519,969 |
| 2011 | $320,724 | $254,000 | $0 | $574,724 | $574,724 |
| 2010 | $332,922 | $254,000 | $0 | $586,922 | $586,922 |
| 2009 | $356,108 | $304,800 | $0 | $660,908 | $660,908 |
| 2008 | $358,132 | $398,780 | $0 | $756,912 | $756,912 |
| 2007 | $402,530 | $216,747 | $0 | $619,277 | $619,277 |
Deed and Sales History
| 1 | 05/20/2020 | WD | Warranty Deed | BAILEY, DELBERT B | NELSON, DOUGLAS | | | $895,000.00 | 43214 | 4487984 |
| 2 | 06/03/2008 | WD | Warranty Deed | JOHNSON, JESSE N | BAILEY, DELBERT B | | | $575,000.00 | 81464 | 4230219 |
| 3 | 06/01/1984 | WD | Warranty Deed | HUGHES, JAMES H | JOHNSON, JESSE N | | | $55,000.00 | 41736 | 426033 |
| 4 | 01/01/1900 | OTHER | Other - Misc. Documents | Unknown | HUGHES, JAMES H | | | $0.00 | 0 | 0 |
Payout Agreement
| No payout information available.. |