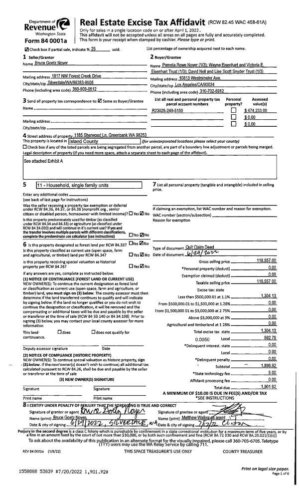
Property
Account |
| Property ID: | 78659 | Abbreviated Legal Description: | 12-1 - LOT 12 BLK 1 CAMANO SUN #2 V3 SUR P89 AF#300276 TGW EZ |
| Geographic ID: | R23113-495-4230 | Agent Code: | |
| Type: | Real | | |
| Tax Area: | 512 - APPRAISER-Stan/Cam Schl Dist, improved, greater than 1 acre | Land Use Code | 11 |
| Open Space: | N | DFL | N |
| Historic Property: | N | Remodel Property: | N |
| Multi-Family Redevelopment: | N | | |
| Township: | 31 | Section: | 13 |
| Range: | R2 |
Location |
| Address: | 830 MICHAEL WAY CAMANO ISLAND, WA 98282 | Mapsco: | |
| Neighborhood: | Cycle 5 | Map ID: | 480 |
| Neighborhood CD: | 5 |
Owner |
| Name: | DAVIS, CHAD J | Owner ID: | 284968 |
| Mailing Address: | JENNIFER J DAVIS PO BOX 1676 STANWOOD, WA 98292 | % Ownership: | 100.0000000000% |
| | | Exemptions: | |
Taxes and Assessment Details
Values
| (+) Improvement Homesite Value: | + | $0 | |
| (+) Improvement Non-Homesite Value: | + | $968,415 | |
| (+) Land Homesite Value: | + | $0 | |
| (+) Land Non-Homesite Value: | + | $410,000 | |
| (+) Curr Use (HS): | + | $0 | $0 |
| (+) Curr Use (NHS): | + | $0 | $0 |
| | | -------------------------- | |
| (=) Market Value: | = | $1,378,415 | |
| (–) Productivity Loss: | – | $0 | |
| | | -------------------------- | |
| (=) Subtotal: | = | $1,378,415 | |
| (+) Senior Appraised Value: | + | $0 | |
| (+) Non-Senior Appraised Value: | + | $1,378,415 | |
| | | -------------------------- | |
| (=) Total Appraised Value: | = | $1,378,415 | |
| (–) Senior Exemption Loss: | – | $0 | |
| (–) Exemption Loss: | – | $0 | |
| | | -------------------------- | |
| (=) Taxable Value: | = | $1,378,415 | |
Taxing Jurisdiction
| Owner: | DAVIS, CHAD J | | |
| % Ownership: | 100.0000000000% | | |
| Total Value: | $1,378,415 | | |
| Tax Area: | 512 - APPRAISER-Stan/Cam Schl Dist, improved, greater than 1 acre |
| CF | Conservation Futures | 0.0316035091 | $1,378,415 | $1,378,415 | $43.56 | | |
| EMS1 | Fire & Rescue Dist #1 Camano GEN (EMS) | 0.3677864386 | $1,378,415 | $1,378,415 | $506.96 | | |
| FIRE1 | Fire & Rescue Dist #1 Camano GEN | 1.2502910536 | $1,378,415 | $1,378,415 | $1,723.42 | | |
| FIRE1BOND | Fire & Rescue Dist #1 Camano BOND | 0.1570001679 | $1,378,415 | $1,378,415 | $216.41 | | |
| CE | County Current Expense | 0.3708482477 | $1,378,415 | $1,378,415 | $511.18 | | |
| CR | County Roads | 0.4584763726 | $1,378,415 | $1,378,415 | $631.97 | | |
| LCIB | Library Sno-Isle BOND (Camano Island) | 0.0396325772 | $1,378,415 | $1,378,415 | $54.63 | | |
| LIB | Library Sno-Isle GEN | 0.3153421757 | $1,378,415 | $1,378,415 | $434.67 | | |
| SCH205_401 | School 205-401 Enrichment | 1.2698420524 | $1,378,415 | $1,378,415 | $1,750.37 | | |
| SCH205BOND | School 205-401 BOND | 0.9396497583 | $1,378,415 | $1,378,415 | $1,295.23 | | |
| ST | State School | 1.3035497053 | $1,378,415 | $1,378,415 | $1,796.83 | | |
| ST2 | State School Part 2 | 0.8169543533 | $1,378,415 | $1,378,415 | $1,126.10 | | |
| | Total Tax Rate: | 7.3209764117 | | | | | |
| | | | | Taxes w/Current Exemptions: | $10,091.33 | | |
| | | | | Taxes w/o Exemptions: | $10,091.33 | | |
Improvement / Building
| Improvement #1: | RESIDENTIAL | State Code: | Y | 3032.0 sqft | Value: | $705,327 |
| Bathrooms: | 3 | Bedrooms: | 3 | | Ceiling: | DRYWALL PAINTED | Cooling: | HEAT PUMP/CONV/V | | Exterior Wall/Cover: | CEMENT FIBER | Floor Covering: | HARDWOOD/CARP 60-40 | | Floor Structure: | WOOD ON WOOD JOIST | Foundation: | CONCRETE | | Interior Finish: | DRYWALL PAINT | Plumbing Fixture Cnt: | 18 | | Roof Slope: | 6" IN 12" | Roof Structure/Cover: | CJ ASPHALT |
|
| | Type | Description | Class CD | Sub Class CD | Year Built | Area |
| | BAS | BASE/MAIN FLOOR | 4 | 0 | 2018 | 2071.0 |
| | UPS | UPPER STORY | 4 | 0 | 2018 | 961.0 |
| | AGR | ATTACHED GARAGE | 4 | 0 | 2018 | 961.0 |
| | OWC | OPEN WOOD PORCH W/STEPS/ROOF/C | 4 | 0 | 2018 | 497.0 |
| | OWC | OPEN WOOD PORCH W/STEPS/ROOF/C | 4 | 0 | 2018 | 192.0 |
| | OWP | OPEN WOOD PORCH W/STEPS | 4 | 0 | 2018 | 72.0 |
| | UTY | STORAGE/UTILITY | 4 | 0 | 2018 | 800.0 |
| | OWC | OPEN WOOD PORCH W/STEPS/ROOF/C | 4 | 0 | 2018 | 56.0 |
| Improvement #2: | RESIDENTIAL | State Code: | Y | 1104.0 sqft | Value: | $263,088 |
| Bathrooms: | 1 | Bedrooms: | 1 | | Ceiling: | DRYWALL PAINTED | Cooling: | HEAT PUMP/CONV/V | | Exterior Wall/Cover: | CEMENT FIBER | Floor Covering: | HARDWOOD/CARP 20-80 | | Floor Structure: | WOOD W/SUBFLOOR | Foundation: | CONCRETE | | Interior Finish: | DRYWALL PAINT | Plumbing Fixture Cnt: | 6 | | Roof Slope: | 4" IN 12" | Roof Structure/Cover: | CJ ASPHALT |
|
| | Type | Description | Class CD | Sub Class CD | Year Built | Area |
| | BAS | BASE/MAIN FLOOR | 3 | 0 | 2018 | 1104.0 |
| | AGR | ATTACHED GARAGE | 3 | 0 | 2018 | 625.0 |
| | OWP | OPEN WOOD PORCH W/STEPS | 3 | 0 | 2018 | 144.0 |
| | OWC | OPEN WOOD PORCH W/STEPS/ROOF/C | 3 | 0 | 2018 | 144.0 |
Sketch
Property Image
Land
| 1 | 32 | AC (03.01-09.99) | 5.6300 | 0.00 | 0.00 | 0.00 | 1.00 | $410,000 | $0 |
Roll Value History
| 2026 | N/A | N/A | N/A | N/A | N/A |
| 2025 | $968,415 | $410,000 | $0 | $1,378,415 | $1,378,415 |
| 2024 | $976,164 | $390,000 | $0 | $1,366,164 | $1,366,164 |
| 2023 | $983,908 | $380,000 | $0 | $1,363,908 | $1,363,908 |
| 2022 | $900,301 | $350,000 | $0 | $1,250,301 | $1,250,301 |
| 2021 | $774,745 | $210,000 | $0 | $984,745 | $984,745 |
| 2020 | $753,347 | $200,000 | $0 | $953,347 | $953,347 |
| 2019 | $567,120 | $250,000 | $0 | $817,120 | $817,120 |
| 2018 | $635,909 | $220,000 | $0 | $855,909 | $855,909 |
| 2017 | $405,562 | $130,000 | $0 | $535,562 | $535,562 |
| 2016 | $0 | $130,000 | $0 | $130,000 | $130,000 |
| 2015 | $0 | $135,000 | $0 | $135,000 | $135,000 |
| 2014 | $0 | $135,000 | $0 | $135,000 | $135,000 |
| 2013 | $0 | $135,120 | $0 | $135,120 | $135,120 |
| 2012 | $0 | $135,120 | $0 | $135,120 | $135,120 |
| 2011 | $0 | $135,120 | $0 | $135,120 | $135,120 |
| 2010 | $0 | $135,120 | $0 | $135,120 | $135,120 |
| 2009 | $0 | $168,900 | $0 | $168,900 | $168,900 |
| 2008 | $0 | $188,324 | $0 | $188,324 | $188,324 |
| 2007 | $0 | $163,759 | $0 | $163,759 | $163,759 |
Deed and Sales History
| 1 | 05/03/2018 | WD | Warranty Deed | HARMONY PROPERTY MANAGEMENT, LLC | DAVIS, CHAD J | | | $980,000.00 | 34040 | 4444131 |
| 2 | 09/21/2016 | WD | Warranty Deed | ENGELHARDT, MARK | HARMONY PROPERTY MANAGEMENT, LLC | | | $125,000.00 | 26340 | 4408202 |
| 3 | 03/07/2011 | WD | Warranty Deed | KIM, HAE SOOK | ENGELHARDT, MARK | | | $135,000.00 | 3842 | 4292108 |
| 4 | 05/01/1997 | ESTSEPPROP | Establish Separate Property | KIM, YOUNG K | KIM, HAE S | | | $0.00 | 71889 | 97008635 |
| 5 | 08/01/1989 | WD | Warranty Deed | BARSNESS, MARVIN L | KIM, YOUNG K | | | $45,000.00 | 93574 | 89012000 |
Payout Agreement
| No payout information available.. |