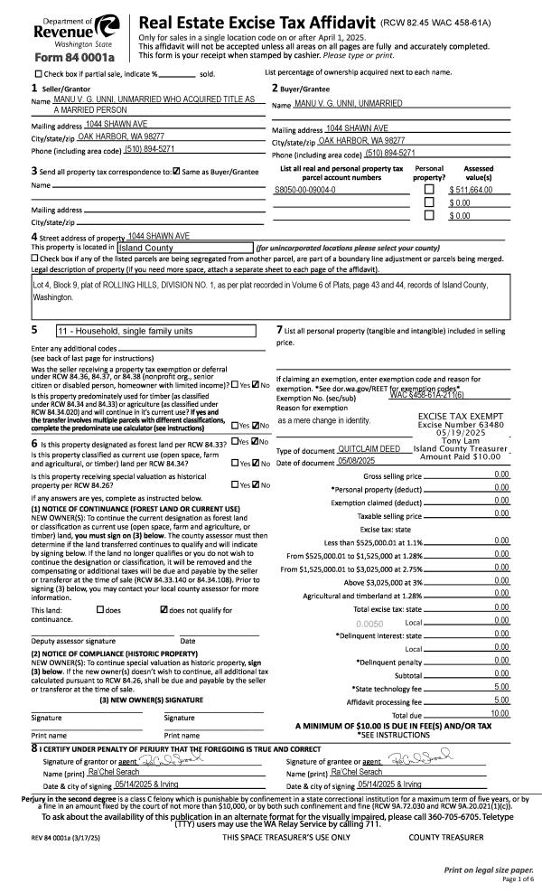
Property
Account |
| Property ID: | 787 | Abbreviated Legal Description: | 32 - IN GL2:BG NE CR GL1 N88*W20' S376.12' N88*W487. 9' S20*W953.62' N88*W63.46' S5*W301.36' TPB N88*W765. 29' S17*W287.36' S88*E826. .24' N5*E277' TPB TGW EZ |
| Geographic ID: | R03224-355-2520 | Agent Code: | |
| Type: | Real | | |
| Tax Area: | 332 - APPRAISER-Cpvl Schl Dist, Special Dist, improved, greater than 1 acre | Land Use Code | 11 |
| Open Space: | N | DFL | N |
| Historic Property: | N | Remodel Property: | N |
| Multi-Family Redevelopment: | N | | |
| Township: | 32 | Section: | 24 |
| Range: | R0 |
Location |
| Address: | 1065 AMERICAN LN COUPEVILLE, WA 98239 | Mapsco: | |
| Neighborhood: | Area 2 Waterfront Westside Residential | Map ID: | 5 |
| Neighborhood CD: | 2WFW01R |
Owner |
| Name: | NEILON, JAMES A | Owner ID: | 110957 |
| Mailing Address: | THERESA P NEILON 1065 AMERICAN LN COUPEVILLE, WA 98239-9793 | % Ownership: | 100.0000000000% |
| | | Exemptions: | |
Taxes and Assessment Details
Values
| (+) Improvement Homesite Value: | + | $0 | |
| (+) Improvement Non-Homesite Value: | + | $412,442 | |
| (+) Land Homesite Value: | + | $0 | |
| (+) Land Non-Homesite Value: | + | $750,000 | |
| (+) Curr Use (HS): | + | $0 | $0 |
| (+) Curr Use (NHS): | + | $0 | $0 |
| | | -------------------------- | |
| (=) Market Value: | = | $1,162,442 | |
| (–) Productivity Loss: | – | $0 | |
| | | -------------------------- | |
| (=) Subtotal: | = | $1,162,442 | |
| (+) Senior Appraised Value: | + | $0 | |
| (+) Non-Senior Appraised Value: | + | $1,162,442 | |
| | | -------------------------- | |
| (=) Total Appraised Value: | = | $1,162,442 | |
| (–) Senior Exemption Loss: | – | $0 | |
| (–) Exemption Loss: | – | $0 | |
| | | -------------------------- | |
| (=) Taxable Value: | = | $1,162,442 | |
Taxing Jurisdiction
| Owner: | NEILON, JAMES A | | |
| % Ownership: | 100.0000000000% | | |
| Total Value: | $1,162,442 | | |
| Tax Area: | 332 - APPRAISER-Cpvl Schl Dist, Special Dist, improved, greater than 1 acre |
| CF | Conservation Futures | 0.0316035091 | $1,162,442 | $1,162,442 | $36.74 | | |
| CEM2 | Cemetery #2 | 0.0095056933 | $1,162,442 | $1,162,442 | $11.05 | | |
| FIRE2 | Fire & Rescue Dist #2 N Whidbey GEN | 0.5475949600 | $1,162,442 | $1,162,442 | $636.55 | | |
| HOBOND | Hospital BOND | 0.1910887512 | $1,162,442 | $1,162,442 | $222.13 | | |
| HOGEN | Hospital GEN | 0.3902502903 | $1,162,442 | $1,162,442 | $453.64 | | |
| CE | County Current Expense | 0.3708482477 | $1,162,442 | $1,162,442 | $431.09 | | |
| CR | County Roads | 0.4584763726 | $1,162,442 | $1,162,442 | $532.95 | | |
| ISLANDEMS | Hospital GEN (EMS) | 0.5000000000 | $1,162,442 | $1,162,442 | $581.22 | | |
| LIB | Library Sno-Isle GEN | 0.3153421757 | $1,162,442 | $1,162,442 | $366.57 | | |
| LIBCAP | Library Sno-Isle BOND (Cap Fac Imp Area) | 0.0543427938 | $1,162,442 | $1,162,442 | $63.17 | | |
| POCOUP | Port of Coupeville GEN | 0.1093371703 | $1,162,442 | $1,162,442 | $127.10 | | |
| POCOUPIDD | Port of Coupeville IDD | 0.3409740022 | $1,162,442 | $1,162,442 | $396.36 | | |
| COUPSDTECH | School 204 CP (TECH) | 0.7545480007 | $1,162,442 | $1,162,442 | $877.12 | | |
| SCH204MO | School 204 Enrichment | 0.6716186034 | $1,162,442 | $1,162,442 | $780.72 | | |
| ST | State School | 1.3035497053 | $1,162,442 | $1,162,442 | $1,515.30 | | |
| ST2 | State School Part 2 | 0.8169543533 | $1,162,442 | $1,162,442 | $949.66 | | |
| | Total Tax Rate: | 6.8660346289 | | | | | |
| | | | | Taxes w/Current Exemptions: | $7,981.37 | | |
| | | | | Taxes w/o Exemptions: | $7,981.37 | | |
Improvement / Building
| Improvement #1: | RESIDENTIAL | State Code: | Y | 2433.9 sqft | Value: | $412,442 |
| Bathrooms: | 2 | Bedrooms: | 3 | | Ceiling: | DRYWALL PAINTED | Exterior Wall/Cover: | WOOD SIDING | | Floor Covering: | HARDWOOD/CARP 60-40 | Floor Structure: | WOOD W/SUBFLOOR | | Foundation: | CONCRETE | Heating: | FHA GAS | | Interior Finish: | DRYWALL PAINT | Plumbing Fixture Cnt: | 10 | | Roof Slope: | 6" IN 12" | Roof Structure/Cover: | CJ CONCRETE TILE |
|
| | Type | Description | Class CD | Sub Class CD | Year Built | Area |
| | BAS | BASE/MAIN FLOOR | 3 | 0 | 1984 | 1757.8 |
| | AGR | ATTACHED GARAGE | 3 | 0 | 1984 | 379.3 |
| | UPS | UPPER STORY | 3 | 0 | 1984 | 676.1 |
| | OWP | OPEN WOOD PORCH W/STEPS | 3 | 0 | 1984 | 157.8 |
| | OWP | OPEN WOOD PORCH W/STEPS | 3 | 0 | 1984 | 198.0 |
| | UTY | STORAGE/UTILITY | 3 | 0 | 1984 | 1032.0 |
| | OWR | OPEN WOOD PORCH W/STEPS/ROOF | 3 | 0 | 1984 | 67.5 |
| | DGR | DETACHED GARAGE | 3 | 0 | 1984 | 1440.0 |
Sketch
Property Image
Land
| 1 | HB | HIGH BLUFF | 5.1700 | 225205.20 | 287.00 | 0.00 | 1.00 | $750,000 | $0 |
Roll Value History
| 2026 | N/A | N/A | N/A | N/A | N/A |
| 2025 | $412,442 | $750,000 | $0 | $1,162,442 | $1,162,442 |
| 2024 | $418,230 | $675,000 | $0 | $1,093,230 | $1,093,230 |
| 2023 | $424,019 | $675,000 | $0 | $1,099,019 | $1,099,019 |
| 2022 | $389,180 | $675,000 | $0 | $1,064,180 | $1,064,180 |
| 2021 | $342,980 | $600,000 | $0 | $942,980 | $942,980 |
| 2020 | $335,566 | $585,000 | $0 | $920,566 | $920,566 |
| 2019 | $262,382 | $600,000 | $0 | $862,382 | $862,382 |
| 2018 | $219,500 | $500,000 | $0 | $719,500 | $719,500 |
| 2017 | $220,696 | $500,000 | $0 | $720,696 | $720,696 |
| 2016 | $223,262 | $500,000 | $0 | $723,262 | $723,262 |
| 2015 | $225,827 | $500,000 | $0 | $725,827 | $725,827 |
| 2014 | $228,394 | $500,000 | $0 | $728,394 | $728,394 |
| 2013 | $230,959 | $535,456 | $0 | $766,415 | $766,415 |
| 2012 | $235,799 | $535,456 | $0 | $771,255 | $771,255 |
| 2011 | $238,426 | $535,456 | $0 | $773,882 | $773,882 |
| 2010 | $247,438 | $535,456 | $0 | $782,894 | $782,894 |
| 2009 | $257,153 | $679,884 | $0 | $937,037 | $937,037 |
| 2008 | $260,820 | $679,884 | $0 | $940,704 | $940,704 |
| 2007 | $264,391 | $679,884 | $0 | $944,275 | $944,275 |
Deed and Sales History
| 1 | 10/23/2003 | WD | Warranty Deed | O'NEIL, MICHAEL P | NEILON, JAMES A | | | $545,000.00 | 34971 | 4081385 |
| 2 | 02/01/1981 | EZ | Easement | SNARE, RONALD O | O'NEIL, MICHAEL P | | | $88,000.00 | 11173 | 381993 |
| 3 | 06/01/1979 | EXECUTORD | Executor Deed | FIALKOW, PHILIP J | SNARE, RONALD O | | | $75,450.00 | 92947 | 354170 |
| 4 | 01/01/1900 | OTHER | Other - Misc. Documents | Unknown | FIALKOW, PHILIP J | | | $0.00 | 0 | 0 |
Payout Agreement
| No payout information available.. |