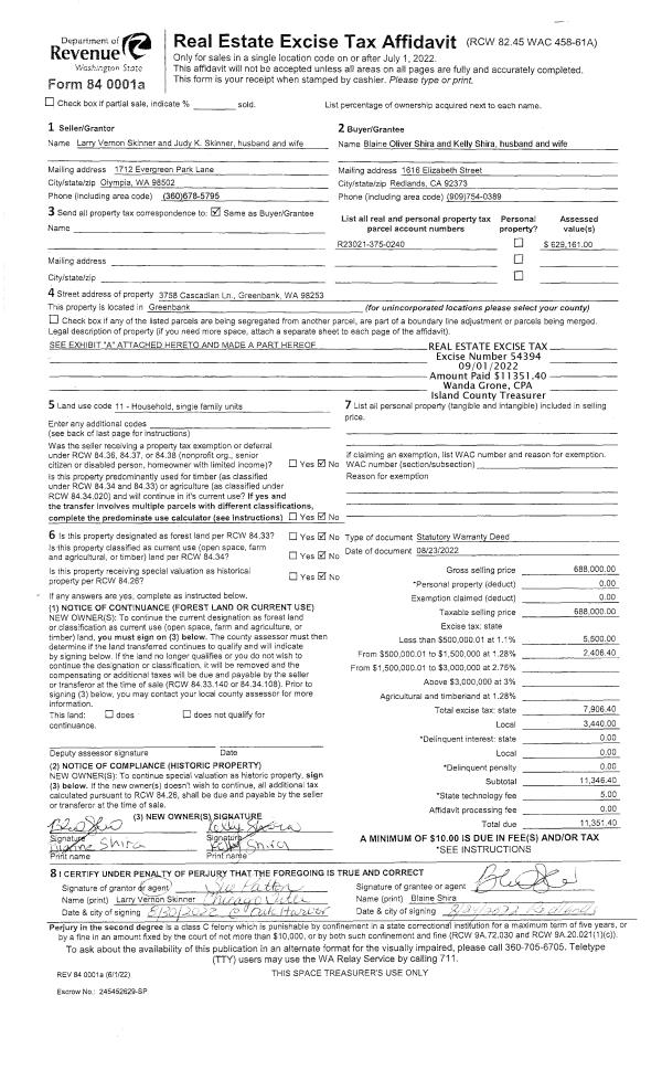
Property
Account |
| Property ID: | 78908 | Abbreviated Legal Description: | BG SECR SE W783.5' N411.49' TPB N410.47' W531.28' S410 .48' E529.97' TPB TGW SUB EZ (LOT 11 V4 SUR P430 AF#356860) |
| Geographic ID: | R23114-075-4350 | Agent Code: | |
| Type: | Real | | |
| Tax Area: | 519 - APPRAISER-Stan/Cam Schl Dist, vacant & 50 acres or less | Land Use Code | 91 |
| Open Space: | N | DFL | N |
| Historic Property: | N | Remodel Property: | N |
| Multi-Family Redevelopment: | N | | |
| Township: | 31 | Section: | 14 |
| Range: | R2 |
Location |
| Address: | | Mapsco: | |
| Neighborhood: | Cycle 5 | Map ID: | 482 |
| Neighborhood CD: | 5 |
Owner |
| Name: | CAMANO PROPERTIES II, LLC | Owner ID: | 299679 |
| Mailing Address: | 5TH FLOOR 530 HORNBY ST VANCOUVER, BC V6C 2E7 | % Ownership: | 100.0000000000% |
| | | Exemptions: | |
Taxes and Assessment Details
Values
| (+) Improvement Homesite Value: | + | $0 | |
| (+) Improvement Non-Homesite Value: | + | $0 | |
| (+) Land Homesite Value: | + | $0 | |
| (+) Land Non-Homesite Value: | + | $240,000 | |
| (+) Curr Use (HS): | + | $0 | $0 |
| (+) Curr Use (NHS): | + | $0 | $0 |
| | | -------------------------- | |
| (=) Market Value: | = | $240,000 | |
| (–) Productivity Loss: | – | $0 | |
| | | -------------------------- | |
| (=) Subtotal: | = | $240,000 | |
| (+) Senior Appraised Value: | + | $0 | |
| (+) Non-Senior Appraised Value: | + | $240,000 | |
| | | -------------------------- | |
| (=) Total Appraised Value: | = | $240,000 | |
| (–) Senior Exemption Loss: | – | $0 | |
| (–) Exemption Loss: | – | $0 | |
| | | -------------------------- | |
| (=) Taxable Value: | = | $240,000 | |
Taxing Jurisdiction
| Owner: | CAMANO PROPERTIES II, LLC | | |
| % Ownership: | 100.0000000000% | | |
| Total Value: | $240,000 | | |
| Tax Area: | 519 - APPRAISER-Stan/Cam Schl Dist, vacant & 50 acres or less |
| CF | Conservation Futures | 0.0316035091 | $240,000 | $240,000 | $7.58 | | |
| EMS1 | Fire & Rescue Dist #1 Camano GEN (EMS) | 0.3677864386 | $240,000 | $240,000 | $88.27 | | |
| CE | County Current Expense | 0.3708482477 | $240,000 | $240,000 | $89.00 | | |
| CR | County Roads | 0.4584763726 | $240,000 | $240,000 | $110.03 | | |
| LCIB | Library Sno-Isle BOND (Camano Island) | 0.0396325772 | $240,000 | $240,000 | $9.51 | | |
| LIB | Library Sno-Isle GEN | 0.3153421757 | $240,000 | $240,000 | $75.68 | | |
| SCH205_401 | School 205-401 Enrichment | 1.2698420524 | $240,000 | $240,000 | $304.76 | | |
| SCH205BOND | School 205-401 BOND | 0.9396497583 | $240,000 | $240,000 | $225.52 | | |
| ST | State School | 1.3035497053 | $240,000 | $240,000 | $312.85 | | |
| ST2 | State School Part 2 | 0.8169543533 | $240,000 | $240,000 | $196.07 | | |
| | Total Tax Rate: | 5.9136851902 | | | | | |
| | | | | Taxes w/Current Exemptions: | $1,419.27 | | |
| | | | | Taxes w/o Exemptions: | $1,419.27 | | |
Improvement / Building
Sketch
| No sketches available for this property. |
Property Image
Land
| 1 | 32 | AC (03.01-09.99) | 5.0000 | 0.00 | 0.00 | 0.00 | 1.00 | $240,000 | $0 |
Roll Value History
| 2026 | N/A | N/A | N/A | N/A | N/A |
| 2025 | $0 | $240,000 | $0 | $240,000 | $240,000 |
| 2024 | $0 | $220,000 | $0 | $220,000 | $220,000 |
| 2023 | $0 | $200,000 | $0 | $200,000 | $200,000 |
| 2022 | $0 | $180,000 | $0 | $180,000 | $180,000 |
| 2021 | $0 | $140,000 | $0 | $140,000 | $140,000 |
| 2020 | $0 | $120,000 | $0 | $120,000 | $120,000 |
| 2019 | $0 | $130,000 | $0 | $130,000 | $130,000 |
| 2018 | $0 | $125,000 | $0 | $125,000 | $125,000 |
| 2017 | $0 | $90,000 | $0 | $90,000 | $90,000 |
| 2016 | $0 | $90,000 | $0 | $90,000 | $90,000 |
| 2015 | $0 | $108,960 | $0 | $108,960 | $108,960 |
| 2014 | $0 | $108,960 | $0 | $108,960 | $108,960 |
| 2013 | $0 | $108,960 | $0 | $108,960 | $108,960 |
| 2012 | $0 | $108,960 | $0 | $108,960 | $108,960 |
| 2011 | $0 | $108,960 | $0 | $108,960 | $108,960 |
| 2010 | $0 | $108,960 | $0 | $108,960 | $108,960 |
| 2009 | $0 | $136,200 | $0 | $136,200 | $136,200 |
| 2008 | $0 | $144,917 | $0 | $144,917 | $144,917 |
| 2007 | $0 | $144,773 | $0 | $144,773 | $144,773 |
Deed and Sales History
| 1 | 05/25/2021 | WD | Warranty Deed | TIEN YUN INVESTMENTS LLC | CAMANO PROPERTIES II, LLC | | | $577,500.00 | 48555 | 4520979 |
|   | |
| 2 | 10/18/2004 | 5 | DNU - Marriage License/Name Change | LU, SHENG Y | TIEN YUN INVESTMENTS LLC, | | | $0.00 | 50361 | 4124374 |
| 3 | 10/01/1989 | WD | Warranty Deed | LU, SHENG Y | LU, SHENG Y | | | $7,847.00 | 95030 | 89016261 |
| 4 | 10/01/1989 | WD | Warranty Deed | LU, SHENG Y | LU, SHENG Y | | | $0.00 | 95334 | 89017137 |
| 5 | 10/01/1989 | WD | Warranty Deed | OSMUNDSON, HOWARD B | LU, SHENG Y | | | $0.00 | 409 | 90001263 |
| 6 | 08/01/1984 | QCD | Quit Claim Deed | HOME, SAVINGS & | OSMUNDSON, HOWARD B | | | $0.00 | 42538 | 84002546 |
| 7 | 06/01/1983 | TRUSTEED | Trustee's Deed | CAMANO, ASSC.C/O E | HOME, SAVINGS & | | | $0.00 | 31681 | 0 |
| 8 | 03/01/1979 | OTHER | Other - Misc. Documents | Unknown | CAMANO, ASSC.C/O E | | | $0.00 | 91517 | 350222 |
Payout Agreement
| No payout information available.. |