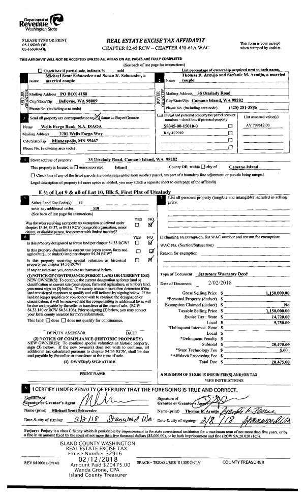
Property
Account |
| Property ID: | 79195 | Abbreviated Legal Description: | 115 - IN NE SW: BG NWCR SW NE SW E525' S552' TPB S70' E150.72' N70' W150.58' TPB TGW EZ |
| Geographic ID: | R23114-150-1950 | Agent Code: | |
| Type: | Real | | |
| Tax Area: | 510 - APPRAISER-Stan/Cam Schl Dist, improved & 1 acre or less | Land Use Code | 11 |
| Open Space: | N | DFL | N |
| Historic Property: | N | Remodel Property: | N |
| Multi-Family Redevelopment: | N | | |
| Township: | 31 | Section: | 14 |
| Range: | R2 |
Location |
| Address: | 1095 ELLIE LN CAMANO ISLAND, WA 98282 | Mapsco: | |
| Neighborhood: | Cycle 5 | Map ID: | 481 |
| Neighborhood CD: | 5 |
Owner |
| Name: | LECLAIRE, MICHELLE M | Owner ID: | 285091 |
| Mailing Address: | 1095 ELLIE LANE CAMANO ISLAND, WA 98282 | % Ownership: | 100.0000000000% |
| | | Exemptions: | |
Taxes and Assessment Details
Values
| (+) Improvement Homesite Value: | + | $0 | |
| (+) Improvement Non-Homesite Value: | + | $256,498 | |
| (+) Land Homesite Value: | + | $0 | |
| (+) Land Non-Homesite Value: | + | $270,000 | |
| (+) Curr Use (HS): | + | $0 | $0 |
| (+) Curr Use (NHS): | + | $0 | $0 |
| | | -------------------------- | |
| (=) Market Value: | = | $526,498 | |
| (–) Productivity Loss: | – | $0 | |
| | | -------------------------- | |
| (=) Subtotal: | = | $526,498 | |
| (+) Senior Appraised Value: | + | $0 | |
| (+) Non-Senior Appraised Value: | + | $526,498 | |
| | | -------------------------- | |
| (=) Total Appraised Value: | = | $526,498 | |
| (–) Senior Exemption Loss: | – | $0 | |
| (–) Exemption Loss: | – | $0 | |
| | | -------------------------- | |
| (=) Taxable Value: | = | $526,498 | |
Taxing Jurisdiction
| Owner: | LECLAIRE, MICHELLE M | | |
| % Ownership: | 100.0000000000% | | |
| Total Value: | $526,498 | | |
| Tax Area: | 510 - APPRAISER-Stan/Cam Schl Dist, improved & 1 acre or less |
| CF | Conservation Futures | 0.0316035091 | $526,498 | $526,498 | $16.64 | | |
| EMS1 | Fire & Rescue Dist #1 Camano GEN (EMS) | 0.3677864386 | $526,498 | $526,498 | $193.64 | | |
| FIRE1 | Fire & Rescue Dist #1 Camano GEN | 1.2502910536 | $526,498 | $526,498 | $658.28 | | |
| FIRE1BOND | Fire & Rescue Dist #1 Camano BOND | 0.1570001679 | $526,498 | $526,498 | $82.66 | | |
| CE | County Current Expense | 0.3708482477 | $526,498 | $526,498 | $195.25 | | |
| CR | County Roads | 0.4584763726 | $526,498 | $526,498 | $241.39 | | |
| LCIB | Library Sno-Isle BOND (Camano Island) | 0.0396325772 | $526,498 | $526,498 | $20.87 | | |
| LIB | Library Sno-Isle GEN | 0.3153421757 | $526,498 | $526,498 | $166.03 | | |
| SCH205_401 | School 205-401 Enrichment | 1.2698420524 | $526,498 | $526,498 | $668.57 | | |
| SCH205BOND | School 205-401 BOND | 0.9396497583 | $526,498 | $526,498 | $494.72 | | |
| ST | State School | 1.3035497053 | $526,498 | $526,498 | $686.32 | | |
| ST2 | State School Part 2 | 0.8169543533 | $526,498 | $526,498 | $430.12 | | |
| | Total Tax Rate: | 7.3209764117 | | | | | |
| | | | | Taxes w/Current Exemptions: | $3,854.49 | | |
| | | | | Taxes w/o Exemptions: | $3,854.49 | | |
Improvement / Building
| Improvement #1: | RESIDENTIAL | State Code: | Y | 1600.0 sqft | Value: | $256,498 |
| Bathrooms: | 2 | Bedrooms: | 3 | | Ceiling: | DRYWALL PAINTED | Exterior Wall/Cover: | FACE BRICK VENEER | | Floor Covering: | CARPET/VINYL 80-20 | Floor Structure: | WOOD W/SUBFLOOR | | Foundation: | CONCRETE BLOCKS | Heating: | WALL HEAT ELECTRIC | | Interior Finish: | DRYWALL PAINT | Plumbing Fixture Cnt: | 9 | | Roof Slope: | 4" IN 12" | Roof Structure/Cover: | CJ ASPHALT |
|
| | Type | Description | Class CD | Sub Class CD | Year Built | Area |
| | BAS | BASE/MAIN FLOOR | 3 | 0 | 1996 | 1600.0 |
| | OWP | OPEN WOOD PORCH W/STEPS | 3 | 0 | 1996 | 548.0 |
Sketch
Property Image
Land
| 1 | 14 | SQ (08001-12000) | 0.2400 | 10454.40 | 0.00 | 0.00 | 1.00 | $270,000 | $0 |
Roll Value History
| 2026 | N/A | N/A | N/A | N/A | N/A |
| 2025 | $256,498 | $270,000 | $0 | $526,498 | $526,498 |
| 2024 | $259,818 | $260,000 | $0 | $519,818 | $519,818 |
| 2023 | $263,138 | $250,000 | $0 | $513,138 | $513,138 |
| 2022 | $241,275 | $240,000 | $0 | $481,275 | $481,275 |
| 2021 | $212,419 | $160,000 | $0 | $372,419 | $372,419 |
| 2020 | $207,226 | $150,000 | $0 | $357,226 | $357,226 |
| 2019 | $152,084 | $180,000 | $0 | $332,084 | $332,084 |
| 2018 | $152,541 | $150,000 | $0 | $302,541 | $302,541 |
| 2017 | $153,454 | $130,000 | $0 | $283,454 | $283,454 |
| 2016 | $155,281 | $110,000 | $0 | $265,281 | $265,281 |
| 2015 | $158,405 | $82,400 | $0 | $240,805 | $240,805 |
| 2014 | $160,285 | $82,400 | $0 | $242,685 | $242,685 |
| 2013 | $162,163 | $82,400 | $0 | $244,563 | $244,563 |
| 2012 | $164,042 | $82,400 | $0 | $246,442 | $246,442 |
| 2011 | $165,920 | $103,000 | $0 | $268,920 | $268,920 |
| 2010 | $173,562 | $103,000 | $0 | $276,562 | $276,562 |
| 2009 | $177,308 | $125,000 | $0 | $302,308 | $302,308 |
| 2008 | $179,723 | $94,380 | $0 | $274,103 | $274,103 |
| 2007 | $182,119 | $94,380 | $0 | $276,499 | $276,499 |
Deed and Sales History
| 1 | 05/16/2018 | PRD | Personal Representatives Deed | LECLAIRE, NEIL V | LECLAIRE, MICHELLE M | | | $0.00 | 34160 | 4444708 |
| 2 | 12/09/2004 | WD | Warranty Deed | ECKHARDT, RALPH E | LECLAIRE, NEIL V | | | $207,000.00 | 45759 | 4120484 |
| 3 | 05/01/1997 | WD | Warranty Deed | AALMO, JOHN & | ECKHARDT, RALPH E | | | $130,000.00 | 71555 | 97007165 |
| 4 | 04/01/1995 | WD | Warranty Deed | AALMO, JOHN & | AALMO, JOHN & | | | $16,400.00 | 51260 | 95005937 |
| 5 | 04/01/1995 | WD | Warranty Deed | MERRILL, MARJORIE P | AALMO, JOHN & | | | $0.00 | 51663 | 95007859 |
| 6 | 07/01/1993 | OTHER | Other - Misc. Documents | MERRILL, HAROLD D | MERRILL, MARJORIE P | | | $0.00 | 65494 | 0 |
| 7 | 01/01/1900 | OTHER | Other - Misc. Documents | Unknown | MERRILL, HAROLD D | | | $0.00 | 0 | 0 |
Payout Agreement
| No payout information available.. |