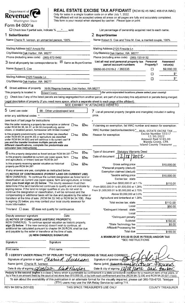
Property
Account |
| Property ID: | 79248 | Abbreviated Legal Description: | 183 - SW SW SE NE SW |
| Geographic ID: | R23114-153-2110 | Agent Code: | |
| Type: | Real | | |
| Tax Area: | 510 - APPRAISER-Stan/Cam Schl Dist, improved & 1 acre or less | Land Use Code | 11 |
| Open Space: | N | DFL | N |
| Historic Property: | N | Remodel Property: | N |
| Multi-Family Redevelopment: | N | | |
| Township: | 31 | Section: | 14 |
| Range: | R2 |
Location |
| Address: | 1097 ELLIE LN CAMANO ISLAND, WA 98282 | Mapsco: | |
| Neighborhood: | Cycle 5 | Map ID: | 481 |
| Neighborhood CD: | 5 |
Owner |
| Name: | UCHYTIL, DANIEL J | Owner ID: | 305677 |
| Mailing Address: | ANGELA E MCMINN 1097 ELLIE LN CAMANO ISLAND, WA 98282 | % Ownership: | 100.0000000000% |
| | | Exemptions: | |
Taxes and Assessment Details
Values
| (+) Improvement Homesite Value: | + | $0 | |
| (+) Improvement Non-Homesite Value: | + | $413,140 | |
| (+) Land Homesite Value: | + | $0 | |
| (+) Land Non-Homesite Value: | + | $250,000 | |
| (+) Curr Use (HS): | + | $0 | $0 |
| (+) Curr Use (NHS): | + | $0 | $0 |
| | | -------------------------- | |
| (=) Market Value: | = | $663,140 | |
| (–) Productivity Loss: | – | $0 | |
| | | -------------------------- | |
| (=) Subtotal: | = | $663,140 | |
| (+) Senior Appraised Value: | + | $0 | |
| (+) Non-Senior Appraised Value: | + | $663,140 | |
| | | -------------------------- | |
| (=) Total Appraised Value: | = | $663,140 | |
| (–) Senior Exemption Loss: | – | $0 | |
| (–) Exemption Loss: | – | $0 | |
| | | -------------------------- | |
| (=) Taxable Value: | = | $663,140 | |
Taxing Jurisdiction
| Owner: | UCHYTIL, DANIEL J | | |
| % Ownership: | 100.0000000000% | | |
| Total Value: | $663,140 | | |
| Tax Area: | 510 - APPRAISER-Stan/Cam Schl Dist, improved & 1 acre or less |
| CF | Conservation Futures | 0.0316035091 | $663,140 | $663,140 | $20.96 | | |
| EMS1 | Fire & Rescue Dist #1 Camano GEN (EMS) | 0.3677864386 | $663,140 | $663,140 | $243.89 | | |
| FIRE1 | Fire & Rescue Dist #1 Camano GEN | 1.2502910536 | $663,140 | $663,140 | $829.12 | | |
| FIRE1BOND | Fire & Rescue Dist #1 Camano BOND | 0.1570001679 | $663,140 | $663,140 | $104.11 | | |
| CE | County Current Expense | 0.3708482477 | $663,140 | $663,140 | $245.92 | | |
| CR | County Roads | 0.4584763726 | $663,140 | $663,140 | $304.03 | | |
| LCIB | Library Sno-Isle BOND (Camano Island) | 0.0396325772 | $663,140 | $663,140 | $26.28 | | |
| LIB | Library Sno-Isle GEN | 0.3153421757 | $663,140 | $663,140 | $209.12 | | |
| SCH205_401 | School 205-401 Enrichment | 1.2698420524 | $663,140 | $663,140 | $842.08 | | |
| SCH205BOND | School 205-401 BOND | 0.9396497583 | $663,140 | $663,140 | $623.12 | | |
| ST | State School | 1.3035497053 | $663,140 | $663,140 | $864.44 | | |
| ST2 | State School Part 2 | 0.8169543533 | $663,140 | $663,140 | $541.76 | | |
| | Total Tax Rate: | 7.3209764117 | | | | | |
| | | | | Taxes w/Current Exemptions: | $4,854.83 | | |
| | | | | Taxes w/o Exemptions: | $4,854.83 | | |
Improvement / Building
| Improvement #1: | RESIDENTIAL | State Code: | Y | 2675.1 sqft | Value: | $413,140 |
| Bathrooms: | 3 | Bedrooms: | 4 | | Ceiling: | DRYWALL PAINTED | Exterior Wall/Cover: | CEMENT FIBER | | Floor Covering: | HARDWOOD/CARP 60-40 | Floor Structure: | WOOD W/SUBFLOOR | | Foundation: | CONCRETE | Heating: | FHA ELECTRIC | | Interior Finish: | DRYWALL PAINT | Plumbing Fixture Cnt: | 12 | | Roof Slope: | 3" IN 12" | Roof Structure/Cover: | CJ ASPHALT |
|
| | Type | Description | Class CD | Sub Class CD | Year Built | Area |
| | BAS | BASE/MAIN FLOOR | 3 | 0 | 1980 | 1817.1 |
| | DGR | DETACHED GARAGE | 3 | 0 | 1980 | 720.0 |
| | BIG | BUILT IN GARAGE | 3 | 0 | 1980 | 396.9 |
| | UPS | UPPER STORY | 3 | 0 | 1980 | 858.0 |
| | OWP | OPEN WOOD PORCH W/STEPS | 3 | 0 | 1980 | 256.0 |
| | OWR | OPEN WOOD PORCH W/STEPS/ROOF | 3 | 0 | 1980 | 385.2 |
| | OWC | OPEN WOOD PORCH W/STEPS/ROOF/C | 3 | 0 | 1980 | 51.0 |
Sketch
Property Image
Land
| 1 | 16 | AC (00.51-01.00) | 0.6300 | 27442.80 | 0.00 | 0.00 | 1.00 | $250,000 | $0 |
Roll Value History
| 2026 | N/A | N/A | N/A | N/A | N/A |
| 2025 | $413,140 | $250,000 | $0 | $663,140 | $663,140 |
| 2024 | $418,227 | $230,000 | $0 | $648,227 | $648,227 |
| 2023 | $423,310 | $230,000 | $0 | $653,310 | $653,310 |
| 2022 | $387,907 | $210,000 | $0 | $597,907 | $597,907 |
| 2021 | $315,629 | $150,000 | $0 | $465,629 | $465,629 |
| 2020 | $308,337 | $120,000 | $0 | $428,337 | $428,337 |
| 2019 | $242,364 | $160,000 | $0 | $402,364 | $402,364 |
| 2018 | $243,110 | $120,000 | $0 | $363,110 | $363,110 |
| 2017 | $244,600 | $100,000 | $0 | $344,600 | $344,600 |
| 2016 | $247,583 | $130,000 | $0 | $377,583 | $377,583 |
| 2015 | $242,595 | $92,800 | $0 | $335,395 | $335,395 |
| 2014 | $245,353 | $92,800 | $0 | $338,153 | $338,153 |
| 2013 | $248,110 | $92,800 | $0 | $340,910 | $340,910 |
| 2012 | $250,869 | $92,800 | $0 | $343,669 | $343,669 |
| 2011 | $253,629 | $116,000 | $0 | $369,629 | $369,629 |
| 2010 | $261,580 | $116,000 | $0 | $377,580 | $377,580 |
| 2009 | $272,634 | $125,000 | $0 | $397,634 | $397,634 |
| 2008 | $242,560 | $125,235 | $0 | $367,795 | $367,795 |
| 2007 | $245,825 | $125,235 | $0 | $371,060 | $371,060 |
Deed and Sales History
| 1 | 08/10/2022 | WD | Warranty Deed | SLISH, ERIC E | UCHYTIL, DANIEL J | | | $690,000.00 | 54135 | 4549564 |
| 2 | 03/25/2016 | WD | Warranty Deed | JOHNSON, TERRY D | SLISH, ERIC E | | | $355,000.00 | 23726 | 4396748 |
| 3 | 10/02/2007 | QCD | Quit Claim Deed | JOHNSON, TERRY D | JOHNSON, TERRY D | | | $0.00 | 73405 | 4213814 |
| 4 | 10/30/2002 | WD | Warranty Deed | BELGARDE, RICCI M | JOHNSON, TERRY D | | | $120,500.00 | 24424 | 4036395 |
| 5 | 05/16/2001 | WD | Warranty Deed | AALMO, JOHN & | BELGARDE, RICCI M | | | $105,000.00 | 11803 | 20032956 |
| 6 | 04/01/1995 | WD | Warranty Deed | AALMO, JOHN / | AALMO, JOHN & | | | $0.00 | 51663 | 95007859 |
| 7 | 04/01/1995 | WD | Warranty Deed | AALMO, JOHN & | AALMO, JOHN & | | | $33,600.00 | 51260 | 95005937 |
| 8 | 04/01/1995 | OTHER | Other - Misc. Documents | MERRILL, MARJORIE P | AALMO, JOHN / | | | $30,000.00 | 51261 | 0 |
| 9 | 08/01/1993 | OTHER | Other - Misc. Documents | MERRILL, MARJORIE P | MERRILL, MARJORIE P | | | $0.00 | 33162 | 0 |
| 10 | 07/01/1993 | OTHER | Other - Misc. Documents | MERRILL, HAROLD | MERRILL, MARJORIE P | | | $0.00 | 65494 | 0 |
| 11 | 02/01/1981 | OTHER | Other - Misc. Documents | MERRILL, HAROLD D | MERRILL, HAROLD | | | $0.00 | 0 | 0 |
| 12 | 01/01/1900 | OTHER | Other - Misc. Documents | Unknown | MERRILL, HAROLD D | | | $0.00 | 0 | 0 |
Payout Agreement
| No payout information available.. |