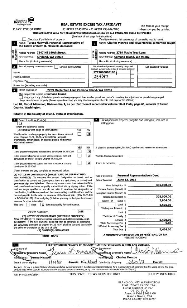
Property
Account |
| Property ID: | 79266 | Abbreviated Legal Description: | BG NWCR SW NE SW S470' TPB S169.97' N46*E 159.36' N89*E18.18' N62.02' S89*W TPB TGW PT COM SECR LOT 1, BLOCK 4 CAMANO, N85* 1285.66' TO ELN NW SW TPB, N133.56' S89W 119.27' S141.8' N85*E 119.63 TPB TGW EZ |
| Geographic ID: | R23114-157-1410 | Agent Code: | |
| Type: | Real | | |
| Tax Area: | 510 - APPRAISER-Stan/Cam Schl Dist, improved & 1 acre or less | Land Use Code | 11 |
| Open Space: | N | DFL | N |
| Historic Property: | N | Remodel Property: | N |
| Multi-Family Redevelopment: | N | | |
| Township: | 31 | Section: | 14 |
| Range: | R2 |
Location |
| Address: | 1088 PINEHURST CT CAMANO ISLAND, WA 98282 | Mapsco: | |
| Neighborhood: | Cycle 5 | Map ID: | 481 |
| Neighborhood CD: | 5 |
Owner |
| Name: | SANCHEZ, ALLIET | Owner ID: | 296178 |
| Mailing Address: | FRANK E BEAUVAIS-LINDEBERGER 1088 PINEHURST CT CAMANO ISLAND, WA 98282 | % Ownership: | 100.0000000000% |
| | | Exemptions: | |
Taxes and Assessment Details
Values
| (+) Improvement Homesite Value: | + | $0 | |
| (+) Improvement Non-Homesite Value: | + | $375,192 | |
| (+) Land Homesite Value: | + | $0 | |
| (+) Land Non-Homesite Value: | + | $250,000 | |
| (+) Curr Use (HS): | + | $0 | $0 |
| (+) Curr Use (NHS): | + | $0 | $0 |
| | | -------------------------- | |
| (=) Market Value: | = | $625,192 | |
| (–) Productivity Loss: | – | $0 | |
| | | -------------------------- | |
| (=) Subtotal: | = | $625,192 | |
| (+) Senior Appraised Value: | + | $0 | |
| (+) Non-Senior Appraised Value: | + | $625,192 | |
| | | -------------------------- | |
| (=) Total Appraised Value: | = | $625,192 | |
| (–) Senior Exemption Loss: | – | $0 | |
| (–) Exemption Loss: | – | $0 | |
| | | -------------------------- | |
| (=) Taxable Value: | = | $625,192 | |
Taxing Jurisdiction
| Owner: | SANCHEZ, ALLIET | | |
| % Ownership: | 100.0000000000% | | |
| Total Value: | $625,192 | | |
| Tax Area: | 510 - APPRAISER-Stan/Cam Schl Dist, improved & 1 acre or less |
| CF | Conservation Futures | 0.0316035091 | $625,192 | $625,192 | $19.76 | | |
| EMS1 | Fire & Rescue Dist #1 Camano GEN (EMS) | 0.3677864386 | $625,192 | $625,192 | $229.94 | | |
| FIRE1 | Fire & Rescue Dist #1 Camano GEN | 1.2502910536 | $625,192 | $625,192 | $781.67 | | |
| FIRE1BOND | Fire & Rescue Dist #1 Camano BOND | 0.1570001679 | $625,192 | $625,192 | $98.16 | | |
| CE | County Current Expense | 0.3708482477 | $625,192 | $625,192 | $231.85 | | |
| CR | County Roads | 0.4584763726 | $625,192 | $625,192 | $286.64 | | |
| LCIB | Library Sno-Isle BOND (Camano Island) | 0.0396325772 | $625,192 | $625,192 | $24.78 | | |
| LIB | Library Sno-Isle GEN | 0.3153421757 | $625,192 | $625,192 | $197.15 | | |
| SCH205_401 | School 205-401 Enrichment | 1.2698420524 | $625,192 | $625,192 | $793.90 | | |
| SCH205BOND | School 205-401 BOND | 0.9396497583 | $625,192 | $625,192 | $587.46 | | |
| ST | State School | 1.3035497053 | $625,192 | $625,192 | $814.97 | | |
| ST2 | State School Part 2 | 0.8169543533 | $625,192 | $625,192 | $510.75 | | |
| | Total Tax Rate: | 7.3209764117 | | | | | |
| | | | | Taxes w/Current Exemptions: | $4,577.03 | | |
| | | | | Taxes w/o Exemptions: | $4,577.03 | | |
Improvement / Building
| Improvement #1: | RESIDENTIAL | State Code: | Y | 2370.0 sqft | Value: | $375,192 |
| Bathrooms: | 3 | Bedrooms: | 2 | | Ceiling: | DRYWALL PAINTED | Exterior Wall/Cover: | CEMENT FIBER | | Floor Covering: | CARPET/VINYL 60-40 | Floor Structure: | WOOD W/SUBFLOOR | | Foundation: | CONCRETE | Heating: | FHA GAS | | Interior Finish: | DRYWALL PAINT | Plumbing Fixture Cnt: | 14 | | Roof Slope: | 5" IN 12" | Roof Structure/Cover: | CJ ASPHALT |
|
| | Type | Description | Class CD | Sub Class CD | Year Built | Area |
| | BAS | BASE/MAIN FLOOR | 3 | 0 | 1995 | 1510.0 |
| | DWN | DOWNSTAIRS LIVING AREA | 3 | 0 | 1995 | 216.0 |
| | AGR | ATTACHED GARAGE | 3 | 0 | 1995 | 529.0 |
| | OWP | OPEN WOOD PORCH W/STEPS | 3 | 0 | 1995 | 476.9 |
| | OWC | OPEN WOOD PORCH W/STEPS/ROOF/C | 3 | 0 | 1995 | 115.0 |
| | DWN | DOWNSTAIRS LIVING AREA | 3 | 0 | 1995 | 644.0 |
| | OWP | OPEN WOOD PORCH W/STEPS | 3 | 0 | 1995 | 580.0 |
Sketch
Property Image
Land
| 1 | 16 | AC (00.51-01.00) | 0.3600 | 15681.60 | 0.00 | 0.00 | 1.00 | $250,000 | $0 |
Roll Value History
| 2026 | N/A | N/A | N/A | N/A | N/A |
| 2025 | $375,192 | $250,000 | $0 | $625,192 | $625,192 |
| 2024 | $379,810 | $230,000 | $0 | $609,810 | $609,810 |
| 2023 | $384,429 | $230,000 | $0 | $614,429 | $614,429 |
| 2022 | $352,260 | $210,000 | $0 | $562,260 | $562,260 |
| 2021 | $309,956 | $120,000 | $0 | $429,956 | $429,956 |
| 2020 | $291,250 | $120,000 | $0 | $411,250 | $411,250 |
| 2019 | $221,814 | $160,000 | $0 | $381,814 | $381,814 |
| 2018 | $202,172 | $130,000 | $0 | $332,172 | $332,172 |
| 2017 | $203,411 | $100,000 | $0 | $303,411 | $303,411 |
| 2016 | $205,893 | $100,000 | $0 | $305,893 | $305,893 |
| 2015 | $207,233 | $65,000 | $0 | $272,233 | $272,233 |
| 2014 | $209,798 | $65,000 | $0 | $274,798 | $274,798 |
| 2013 | $212,361 | $41,600 | $0 | $253,961 | $253,961 |
| 2012 | $214,928 | $41,600 | $0 | $256,528 | $256,528 |
| 2011 | $217,490 | $52,000 | $0 | $269,490 | $269,490 |
| 2010 | $230,077 | $52,000 | $0 | $282,077 | $282,077 |
| 2009 | $240,120 | $90,000 | $0 | $330,120 | $330,120 |
| 2008 | $240,589 | $83,460 | $0 | $324,049 | $324,049 |
| 2007 | $244,038 | $83,460 | $0 | $327,498 | $327,498 |
Deed and Sales History
| 1 | 04/24/2023 | WD | Warranty Deed | SANCHEZ, ALLIET | WHALEY, CLARK L | | | $6,000.00 | 56500 | 4559210 |
| 2 | 09/18/2020 | WD | Warranty Deed | STUCKEY, JOSHUA N | SANCHEZ, ALLIET | | | $448,000.00 | 44847 | 4497177 |
| 3 | 06/15/2018 | WD | Warranty Deed | DAVIES, DALE L | STUCKEY, JOSHUA N | | | $385,000.00 | 34936 | 4447707 |
| 4 | 04/21/1999 | QCD | Quit Claim Deed | DAVIES, DALE L | DAVIES, DALE L | | | $10,292.00 | 91674 | 99010631 |
| 5 | 11/01/1995 | WD | Warranty Deed | SARATOGA, BAY I | DAVIES, DALE L | | | $158,000.00 | 54057 | 95018612 |
| 6 | 02/01/1995 | WD | Warranty Deed | OWENS, OWEN ( | SARATOGA, BAY I | | | $18,500.00 | 50442 | 95002151 |
| 7 | 02/01/1990 | WD | Warranty Deed | ISLER, EDWIN J | OWENS, OWEN ( | | | $10,000.00 | 1142 | 90003707 |
| 8 | 01/01/1900 | OTHER | Other - Misc. Documents | Unknown | ISLER, EDWIN J | | | $0.00 | 0 | 0 |
Payout Agreement
| No payout information available.. |