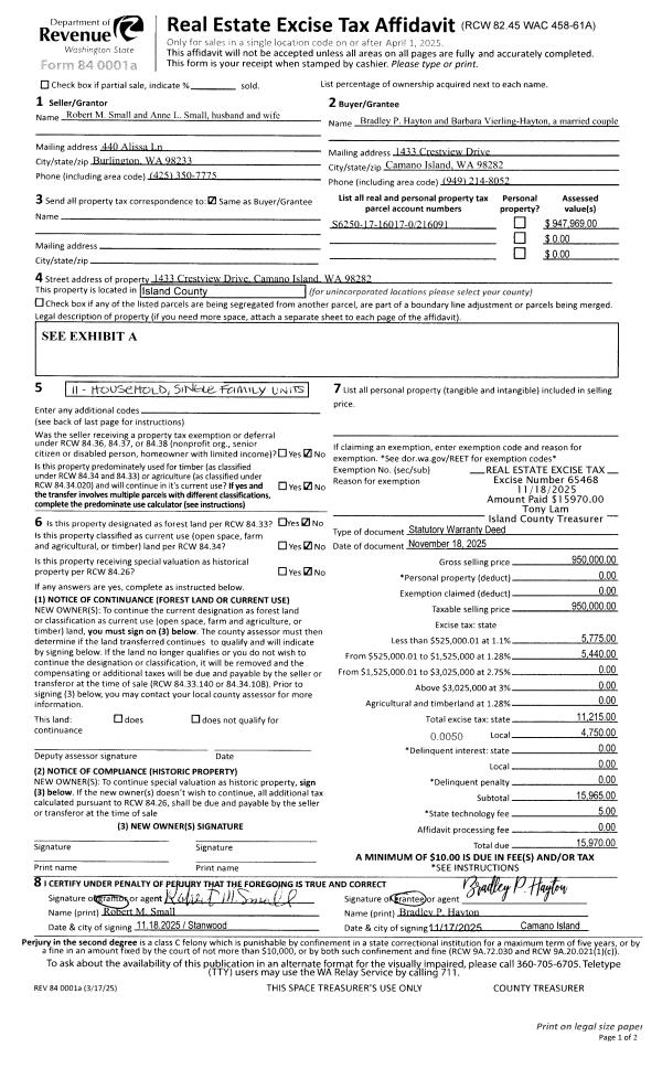
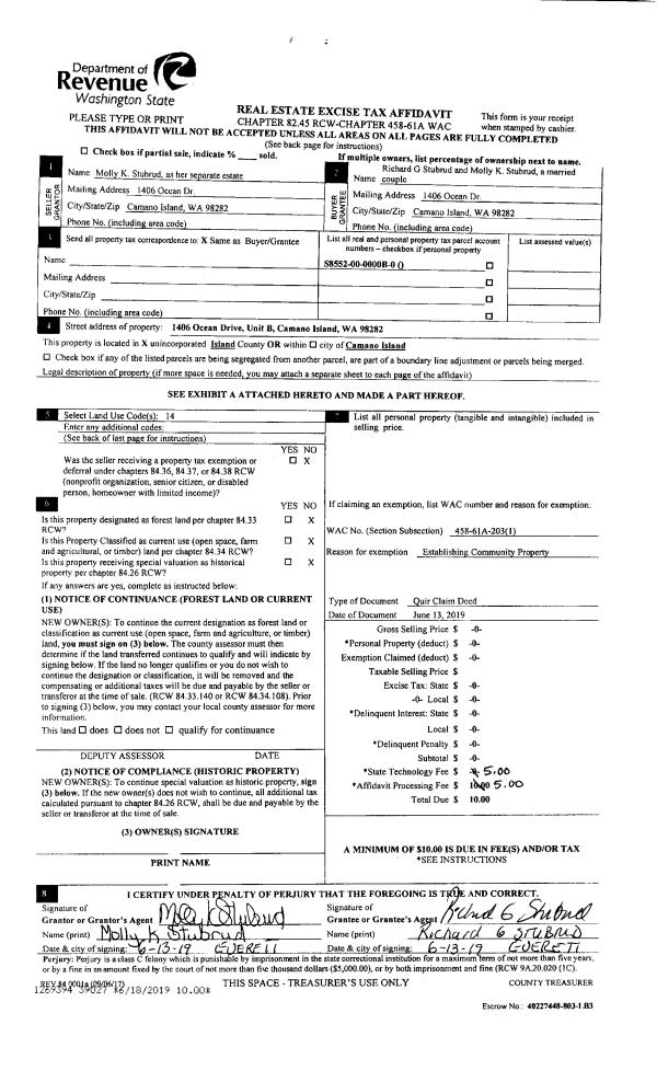
Property
Account |
| Property ID: | 79328 | Abbreviated Legal Description: | 90 - IN NE SW: BG NWCR SW NE SW E330' S440' TPB S60' E135' N60' W135' TPB TGW EZ |
| Geographic ID: | R23114-163-1750 | Agent Code: | |
| Type: | Real | | |
| Tax Area: | 510 - APPRAISER-Stan/Cam Schl Dist, improved & 1 acre or less | Land Use Code | 11 |
| Open Space: | N | DFL | N |
| Historic Property: | N | Remodel Property: | N |
| Multi-Family Redevelopment: | N | | |
| Township: | 31 | Section: | 14 |
| Range: | R2 |
Location |
| Address: | 1086 ELLIE LN CAMANO ISLAND, WA 98282 | Mapsco: | |
| Neighborhood: | Cycle 5 | Map ID: | 481 |
| Neighborhood CD: | 5 |
Owner |
| Name: | O'MALLEY TTEE, MICHAEL P | Owner ID: | 317356 |
| Mailing Address: | KATHERINE I O'MALLEY TTEE 12743 E LUPINE AVE SCOTTSDALE, AZ 85259 | % Ownership: | 100.0000000000% |
| | | Exemptions: | |
Taxes and Assessment Details
Values
| (+) Improvement Homesite Value: | + | $0 | |
| (+) Improvement Non-Homesite Value: | + | $356,383 | |
| (+) Land Homesite Value: | + | $0 | |
| (+) Land Non-Homesite Value: | + | $270,000 | |
| (+) Curr Use (HS): | + | $0 | $0 |
| (+) Curr Use (NHS): | + | $0 | $0 |
| | | -------------------------- | |
| (=) Market Value: | = | $626,383 | |
| (–) Productivity Loss: | – | $0 | |
| | | -------------------------- | |
| (=) Subtotal: | = | $626,383 | |
| (+) Senior Appraised Value: | + | $0 | |
| (+) Non-Senior Appraised Value: | + | $626,383 | |
| | | -------------------------- | |
| (=) Total Appraised Value: | = | $626,383 | |
| (–) Senior Exemption Loss: | – | $0 | |
| (–) Exemption Loss: | – | $0 | |
| | | -------------------------- | |
| (=) Taxable Value: | = | $626,383 | |
Taxing Jurisdiction
| Owner: | O'MALLEY TTEE, MICHAEL P | | |
| % Ownership: | 100.0000000000% | | |
| Total Value: | $626,383 | | |
| Tax Area: | 510 - APPRAISER-Stan/Cam Schl Dist, improved & 1 acre or less |
| CF | Conservation Futures | 0.0316035091 | $626,383 | $626,383 | $19.80 | | |
| EMS1 | Fire & Rescue Dist #1 Camano GEN (EMS) | 0.3677864386 | $626,383 | $626,383 | $230.38 | | |
| FIRE1 | Fire & Rescue Dist #1 Camano GEN | 1.2502910536 | $626,383 | $626,383 | $783.16 | | |
| FIRE1BOND | Fire & Rescue Dist #1 Camano BOND | 0.1570001679 | $626,383 | $626,383 | $98.34 | | |
| CE | County Current Expense | 0.3708482477 | $626,383 | $626,383 | $232.29 | | |
| CR | County Roads | 0.4584763726 | $626,383 | $626,383 | $287.18 | | |
| LCIB | Library Sno-Isle BOND (Camano Island) | 0.0396325772 | $626,383 | $626,383 | $24.83 | | |
| LIB | Library Sno-Isle GEN | 0.3153421757 | $626,383 | $626,383 | $197.52 | | |
| SCH205_401 | School 205-401 Enrichment | 1.2698420524 | $626,383 | $626,383 | $795.41 | | |
| SCH205BOND | School 205-401 BOND | 0.9396497583 | $626,383 | $626,383 | $588.58 | | |
| ST | State School | 1.3035497053 | $626,383 | $626,383 | $816.52 | | |
| ST2 | State School Part 2 | 0.8169543533 | $626,383 | $626,383 | $511.73 | | |
| | Total Tax Rate: | 7.3209764117 | | | | | |
| | | | | Taxes w/Current Exemptions: | $4,585.74 | | |
| | | | | Taxes w/o Exemptions: | $4,585.74 | | |
Improvement / Building
| Improvement #1: | RESIDENTIAL | State Code: | Y | 2465.2 sqft | Value: | $356,383 |
| Bathrooms: | 2.5 | Bedrooms: | 3 | | Ceiling: | DRYWALL PAINTED | Exterior Wall/Cover: | PLY/HARDBOARD T-111 | | Floor Covering: | VINYL/HARDWOOD 20-80 | Floor Structure: | WOOD W/SUBFLOOR | | Foundation: | CONCRETE | Heating: | BASEBOARD ELECTRIC | | Interior Finish: | DRYWALL PAINT | Plumbing Fixture Cnt: | 13 | | Roof Slope: | 4" IN 12" | Roof Structure/Cover: | CJ ASPHALT |
|
| | Type | Description | Class CD | Sub Class CD | Year Built | Area |
| | BAS | BASE/MAIN FLOOR | 3 | 0 | 1970 | 1251.2 |
| | OP1 | OPEN PORCH SLAB | 3 | 0 | 1970 | 152.0 |
| | OP1 | OPEN PORCH SLAB | 3 | 0 | 1970 | 400.0 |
| | OP4 | OPEN PORCH W/CEILING-ROOF | 3 | 0 | 1970 | 48.0 |
| | AGR | ATTACHED GARAGE | 3 | 0 | 1970 | 462.0 |
| | DWN | DOWNSTAIRS LIVING AREA | 3 | 0 | 1970 | 1214.0 |
| | OWP | OPEN WOOD PORCH W/STEPS | 3 | 0 | 1970 | 356.7 |
Sketch
Property Image
Land
| 1 | 14 | SQ (08001-12000) | 0.1900 | 8276.40 | 0.00 | 0.00 | 1.00 | $270,000 | $0 |
Roll Value History
| 2026 | N/A | N/A | N/A | N/A | N/A |
| 2025 | $356,383 | $270,000 | $0 | $626,383 | $626,383 |
| 2024 | $361,942 | $260,000 | $0 | $621,942 | $621,942 |
| 2023 | $366,468 | $250,000 | $0 | $616,468 | $616,468 |
| 2022 | $335,930 | $240,000 | $0 | $575,930 | $575,930 |
| 2021 | $259,886 | $160,000 | $0 | $419,886 | $419,886 |
| 2020 | $253,368 | $150,000 | $0 | $403,368 | $403,368 |
| 2019 | $191,066 | $180,000 | $0 | $371,066 | $371,066 |
| 2018 | $191,640 | $150,000 | $0 | $341,640 | $341,640 |
| 2017 | $192,789 | $130,000 | $0 | $322,789 | $322,789 |
| 2016 | $195,084 | $110,000 | $0 | $305,084 | $305,084 |
| 2015 | $157,366 | $82,400 | $0 | $239,766 | $239,766 |
| 2014 | $159,703 | $82,400 | $0 | $242,103 | $242,103 |
| 2013 | $162,040 | $82,400 | $0 | $244,440 | $244,440 |
| 2012 | $164,378 | $82,400 | $0 | $246,778 | $246,778 |
| 2011 | $166,714 | $103,000 | $0 | $269,714 | $269,714 |
| 2010 | $109,829 | $103,000 | $0 | $212,829 | $212,829 |
| 2009 | $163,892 | $125,000 | $0 | $288,892 | $288,892 |
| 2008 | $166,544 | $105,875 | $0 | $272,419 | $272,419 |
| 2007 | $166,739 | $105,875 | $0 | $272,614 | $272,614 |
Deed and Sales History
| 1 | 03/07/2025 | WD | Warranty Deed | O'MALLEY, MICHAEL P | O'MALLEY TTEE, MICHAEL P | | | $0.00 | 64146 | 4588224 |
| 2 | 04/15/2024 | WD | Warranty Deed | MACCONNELL, PATRICIA A | O'MALLEY, MICHAEL P | | | $645,000.00 | 59697 | 4571426 |
| 3 | 07/10/2020 | WD | Warranty Deed | COOPER, LARRY E | MACCONNELL, PATRICIA A | | | $419,000.00 | 43850 | 4491525 |
| 4 | 04/24/2019 | WD | Warranty Deed | MEAD, ALISHA | COOPER, LARRY E | | | $393,000.00 | 38184 | 4461935 |
| 5 | 06/14/2010 | TRUSTEED | Trustee's Deed | DEUTSCHE BANK NATIONAL TRUST C | MEAD, ALISHA | | | $195,000.00 | 1614 | 4276507 |
| 6 | 12/07/2009 | TRUSTEED | Trustee's Deed | BRADLEY, KEVIN S | DEUTSCHE BANK NATIONAL TRUST C | | | $0.00 | 93025 | 4265120 |
| 7 | 09/01/1993 | WD | Warranty Deed | SWEET, MILDRED W | BRADLEY, KEVIN S | | | $123,000.00 | 33577 | 93018589 |
| 8 | 01/01/1992 | WD | Warranty Deed | KREITER, E E | SWEET, MILDRED W | | | $121,000.00 | 20215 | 92000818 |
| 9 | 01/01/1900 | OTHER | Other - Misc. Documents | Unknown | KREITER, E E | | | $0.00 | 0 | 0 |
Payout Agreement
| No payout information available.. |