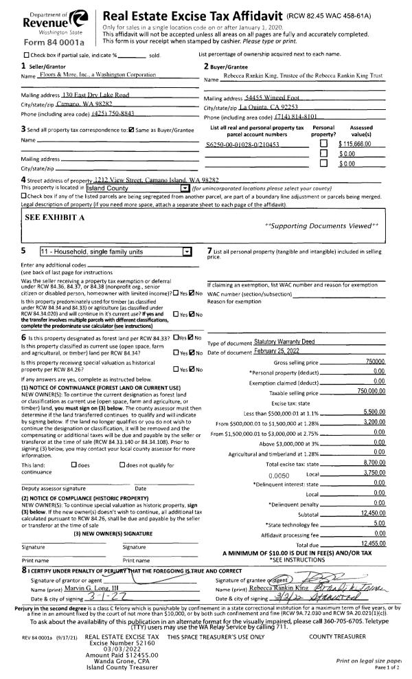
Property
Account |
| Property ID: | 79435 | Abbreviated Legal Description: | 119 - NE SW SE NE SW SUB TO EZ |
| Geographic ID: | R23114-170-2280 | Agent Code: | |
| Type: | Real | | |
| Tax Area: | 510 - APPRAISER-Stan/Cam Schl Dist, improved & 1 acre or less | Land Use Code | 11 |
| Open Space: | N | DFL | N |
| Historic Property: | N | Remodel Property: | N |
| Multi-Family Redevelopment: | N | | |
| Township: | 31 | Section: | 14 |
| Range: | R2 |
Location |
| Address: | 1108 ELLIE LN CAMANO ISLAND, WA 98282 | Mapsco: | |
| Neighborhood: | Cycle 5 | Map ID: | 481 |
| Neighborhood CD: | 5 |
Owner |
| Name: | JENSEN, SHERRY | Owner ID: | 291079 |
| Mailing Address: | TROY JENSEN 1108 ELLIE LN CAMANO ISLAND, WA 98282 | % Ownership: | 100.0000000000% |
| | | Exemptions: | |
Taxes and Assessment Details
Values
| (+) Improvement Homesite Value: | + | $0 | |
| (+) Improvement Non-Homesite Value: | + | $391,886 | |
| (+) Land Homesite Value: | + | $0 | |
| (+) Land Non-Homesite Value: | + | $250,000 | |
| (+) Curr Use (HS): | + | $0 | $0 |
| (+) Curr Use (NHS): | + | $0 | $0 |
| | | -------------------------- | |
| (=) Market Value: | = | $641,886 | |
| (–) Productivity Loss: | – | $0 | |
| | | -------------------------- | |
| (=) Subtotal: | = | $641,886 | |
| (+) Senior Appraised Value: | + | $0 | |
| (+) Non-Senior Appraised Value: | + | $641,886 | |
| | | -------------------------- | |
| (=) Total Appraised Value: | = | $641,886 | |
| (–) Senior Exemption Loss: | – | $0 | |
| (–) Exemption Loss: | – | $0 | |
| | | -------------------------- | |
| (=) Taxable Value: | = | $641,886 | |
Taxing Jurisdiction
| Owner: | JENSEN, SHERRY | | |
| % Ownership: | 100.0000000000% | | |
| Total Value: | $641,886 | | |
| Tax Area: | 510 - APPRAISER-Stan/Cam Schl Dist, improved & 1 acre or less |
| CF | Conservation Futures | 0.0316035091 | $641,886 | $641,886 | $20.29 | | |
| EMS1 | Fire & Rescue Dist #1 Camano GEN (EMS) | 0.3677864386 | $641,886 | $641,886 | $236.08 | | |
| FIRE1 | Fire & Rescue Dist #1 Camano GEN | 1.2502910536 | $641,886 | $641,886 | $802.54 | | |
| FIRE1BOND | Fire & Rescue Dist #1 Camano BOND | 0.1570001679 | $641,886 | $641,886 | $100.78 | | |
| CE | County Current Expense | 0.3708482477 | $641,886 | $641,886 | $238.04 | | |
| CR | County Roads | 0.4584763726 | $641,886 | $641,886 | $294.29 | | |
| LCIB | Library Sno-Isle BOND (Camano Island) | 0.0396325772 | $641,886 | $641,886 | $25.44 | | |
| LIB | Library Sno-Isle GEN | 0.3153421757 | $641,886 | $641,886 | $202.41 | | |
| SCH205_401 | School 205-401 Enrichment | 1.2698420524 | $641,886 | $641,886 | $815.09 | | |
| SCH205BOND | School 205-401 BOND | 0.9396497583 | $641,886 | $641,886 | $603.15 | | |
| ST | State School | 1.3035497053 | $641,886 | $641,886 | $836.73 | | |
| ST2 | State School Part 2 | 0.8169543533 | $641,886 | $641,886 | $524.39 | | |
| | Total Tax Rate: | 7.3209764117 | | | | | |
| | | | | Taxes w/Current Exemptions: | $4,699.23 | | |
| | | | | Taxes w/o Exemptions: | $4,699.23 | | |
Improvement / Building
| Improvement #1: | RESIDENTIAL | State Code: | Y | 1726.0 sqft | Value: | $391,886 |
| Bathrooms: | 1.75 | Bedrooms: | 3 | | Ceiling: | DRYWALL PAINTED | Exterior Wall/Cover: | CEMENT FIBER | | Floor Covering: | CARPET/VINYL 60-40 | Floor Structure: | WOOD W/SUBFLOOR | | Foundation: | CONCRETE | Heating: | FHA GAS | | Interior Finish: | DRYWALL PAINT | Plumbing Fixture Cnt: | 10 | | Roof Slope: | 6" IN 12" | Roof Structure/Cover: | CJ ASPHALT |
|
| | Type | Description | Class CD | Sub Class CD | Year Built | Area |
| | BAS | BASE/MAIN FLOOR | 4 | 0 | 2019 | 1726.0 |
| | AGR | ATTACHED GARAGE | 4 | 0 | 2019 | 528.0 |
| | OP1 | OPEN PORCH SLAB | 4 | 0 | 2019 | 80.0 |
| | OP4 | OPEN PORCH W/CEILING-ROOF | 4 | 0 | 2019 | 176.0 |
Sketch
Property Image
Land
| 1 | 16 | AC (00.51-01.00) | 0.6300 | 27442.80 | 0.00 | 0.00 | 1.00 | $250,000 | $0 |
Roll Value History
| 2026 | N/A | N/A | N/A | N/A | N/A |
| 2025 | $391,886 | $250,000 | $0 | $641,886 | $641,886 |
| 2024 | $395,047 | $230,000 | $0 | $625,047 | $625,047 |
| 2023 | $398,208 | $230,000 | $0 | $628,208 | $628,208 |
| 2022 | $363,448 | $210,000 | $0 | $573,448 | $573,448 |
| 2021 | $319,356 | $150,000 | $0 | $469,356 | $469,356 |
| 2020 | $312,940 | $120,000 | $0 | $432,940 | $432,940 |
| 2019 | $230,887 | $160,000 | $0 | $390,887 | $390,887 |
| 2018 | $0 | $70,000 | $0 | $70,000 | $70,000 |
| 2017 | $0 | $50,000 | $0 | $50,000 | $50,000 |
| 2016 | $0 | $45,000 | $0 | $45,000 | $45,000 |
| 2015 | $0 | $50,000 | $0 | $50,000 | $50,000 |
| 2014 | $0 | $50,000 | $0 | $50,000 | $50,000 |
| 2013 | $0 | $65,000 | $0 | $65,000 | $65,000 |
| 2012 | $0 | $65,000 | $0 | $65,000 | $65,000 |
| 2011 | $0 | $65,000 | $0 | $65,000 | $65,000 |
| 2010 | $0 | $65,000 | $0 | $65,000 | $65,000 |
| 2009 | $0 | $75,000 | $0 | $75,000 | $75,000 |
| 2008 | $0 | $83,250 | $0 | $83,250 | $83,250 |
| 2007 | $0 | $83,250 | $0 | $83,250 | $83,250 |
Deed and Sales History
| 1 | 07/25/2019 | WD | Warranty Deed | NW BUILDERS INC | JENSEN, SHERRY | | | $470,000.00 | 39585 | 4468084 |
| 2 | 08/03/2004 | WD | Warranty Deed | DICKSON JR, STEADMAN F | NW BUILDERS INC, | | | $45,000.00 | 43600 | 4109082 |
| 3 | 10/21/1971 | OTHER | Other - Misc. Documents | DICKSON, STEADMAN F | DICKSON JR, STEADMAN F | | | $3,500.00 | 42679 | 0 |
| 4 | 10/11/1971 | REC | Real Estate Contract | DICKSON JR, STEADMAN F | DICKSON JR, STEADMAN F | | | $0.00 | 0 | 4108104 |
| 5 | 01/01/1900 | OTHER | Other - Misc. Documents | Unknown | DICKSON, STEADMAN F | | | $0.00 | 0 | 0 |
Payout Agreement
| No payout information available.. |