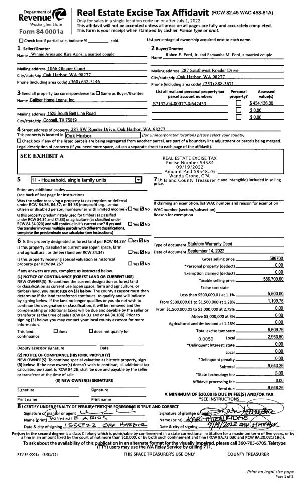
Property
Account |
| Property ID: | 79514 | Abbreviated Legal Description: | 105 - W/2 E/2 SE NW SE EX RD |
| Geographic ID: | R23114-172-3820 | Agent Code: | |
| Type: | Real | | |
| Tax Area: | 512 - APPRAISER-Stan/Cam Schl Dist, improved, greater than 1 acre | Land Use Code | 11 |
| Open Space: | N | DFL | N |
| Historic Property: | N | Remodel Property: | N |
| Multi-Family Redevelopment: | N | | |
| Township: | 31 | Section: | 14 |
| Range: | R2 |
Location |
| Address: | 515 KODIAK AVE CAMANO ISLAND, WA 98282 | Mapsco: | |
| Neighborhood: | Cycle 5 | Map ID: | 482 |
| Neighborhood CD: | 5 |
Owner |
| Name: | CORNELIUS, ROBERT J | Owner ID: | 138708 |
| Mailing Address: | CAROL A CORNELIUS 515 KODIAK AVE CAMANO ISLAND, WA 98282-7552 | % Ownership: | 100.0000000000% |
| | | Exemptions: | |
Taxes and Assessment Details
Values
| (+) Improvement Homesite Value: | + | $0 | |
| (+) Improvement Non-Homesite Value: | + | $180,024 | |
| (+) Land Homesite Value: | + | $0 | |
| (+) Land Non-Homesite Value: | + | $290,000 | |
| (+) Curr Use (HS): | + | $0 | $0 |
| (+) Curr Use (NHS): | + | $0 | $0 |
| | | -------------------------- | |
| (=) Market Value: | = | $470,024 | |
| (–) Productivity Loss: | – | $0 | |
| | | -------------------------- | |
| (=) Subtotal: | = | $470,024 | |
| (+) Senior Appraised Value: | + | $0 | |
| (+) Non-Senior Appraised Value: | + | $470,024 | |
| | | -------------------------- | |
| (=) Total Appraised Value: | = | $470,024 | |
| (–) Senior Exemption Loss: | – | $0 | |
| (–) Exemption Loss: | – | $0 | |
| | | -------------------------- | |
| (=) Taxable Value: | = | $470,024 | |
Taxing Jurisdiction
| Owner: | CORNELIUS, ROBERT J | | |
| % Ownership: | 100.0000000000% | | |
| Total Value: | $470,024 | | |
| Tax Area: | 512 - APPRAISER-Stan/Cam Schl Dist, improved, greater than 1 acre |
| CF | Conservation Futures | 0.0316035091 | $470,024 | $470,024 | $14.85 | | |
| EMS1 | Fire & Rescue Dist #1 Camano GEN (EMS) | 0.3677864386 | $470,024 | $470,024 | $172.87 | | |
| FIRE1 | Fire & Rescue Dist #1 Camano GEN | 1.2502910536 | $470,024 | $470,024 | $587.67 | | |
| FIRE1BOND | Fire & Rescue Dist #1 Camano BOND | 0.1570001679 | $470,024 | $470,024 | $73.79 | | |
| CE | County Current Expense | 0.3708482477 | $470,024 | $470,024 | $174.31 | | |
| CR | County Roads | 0.4584763726 | $470,024 | $470,024 | $215.49 | | |
| LCIB | Library Sno-Isle BOND (Camano Island) | 0.0396325772 | $470,024 | $470,024 | $18.63 | | |
| LIB | Library Sno-Isle GEN | 0.3153421757 | $470,024 | $470,024 | $148.22 | | |
| SCH205_401 | School 205-401 Enrichment | 1.2698420524 | $470,024 | $470,024 | $596.86 | | |
| SCH205BOND | School 205-401 BOND | 0.9396497583 | $470,024 | $470,024 | $441.66 | | |
| ST | State School | 1.3035497053 | $470,024 | $470,024 | $612.70 | | |
| ST2 | State School Part 2 | 0.8169543533 | $470,024 | $470,024 | $383.99 | | |
| | Total Tax Rate: | 7.3209764117 | | | | | |
| | | | | Taxes w/Current Exemptions: | $3,441.04 | | |
| | | | | Taxes w/o Exemptions: | $3,441.04 | | |
Improvement / Building
| Improvement #1: | MANUFACTURED HOME | State Code: | Y | 1688.3 sqft | Value: | $180,024 |
| Bathrooms: | 0 | Bedrooms: | 0 | | Ceiling: | PLASTER PAINTED | Exterior Wall/Cover: | VINYL | | Floor Covering: | CARPET 100% | Floor Structure: | SLAB ON GRADE | | Foundation: | SLAB | Heating: | FHA ELECTRIC | | Interior Finish: | PLASTER | Plumbing Fixture Cnt: | 1 | | Roof Slope: | FLAT | Roof Structure/Cover: | CJ ALUMINIUM HEAVY |
|
| | Type | Description | Class CD | Sub Class CD | Year Built | Area |
| | BAS | BASE/MAIN FLOOR | 4 | 0 | 1998 | 1688.3 |
| | OWC | OPEN WOOD PORCH W/STEPS/ROOF/C | 4 | 0 | 1998 | 93.8 |
| | oCBF | CON BLK FN | 4 | 0 | 1998 | 0.0 |
| | ENP | ENCLOSED PORCH | 4 | 0 | 1998 | 180.0 |
| | OWP | OPEN WOOD PORCH W/STEPS | 4 | 0 | 1998 | 1175.0 |
| | AGR | ATTACHED GARAGE | 4 | 0 | 1998 | 528.0 |
| | UTY | STORAGE/UTILITY | 4 | 0 | 1998 | 320.0 |
| | DGR | DETACHED GARAGE | 4 | 0 | 1998 | 1008.0 |
| | CPD | OPEN CARPORT DIRT FLOOR | 4 | 0 | 1998 | 483.0 |
Sketch
Property Image
Land
| 1 | 18 | AC (02.01-03.00) | 2.3600 | 102801.60 | 0.00 | 0.00 | 1.00 | $290,000 | $0 |
Roll Value History
| 2026 | N/A | N/A | N/A | N/A | N/A |
| 2025 | $180,024 | $290,000 | $0 | $470,024 | $470,024 |
| 2024 | $182,392 | $280,000 | $0 | $462,392 | $462,392 |
| 2023 | $163,973 | $270,000 | $0 | $433,973 | $433,973 |
| 2022 | $153,115 | $260,000 | $0 | $413,115 | $413,115 |
| 2021 | $115,975 | $180,000 | $0 | $295,975 | $295,975 |
| 2020 | $115,638 | $150,000 | $0 | $265,638 | $265,638 |
| 2019 | $95,287 | $200,000 | $0 | $295,287 | $295,287 |
| 2018 | $97,454 | $180,000 | $0 | $277,454 | $277,454 |
| 2017 | $99,621 | $140,000 | $0 | $239,621 | $239,621 |
| 2016 | $101,791 | $140,000 | $0 | $241,791 | $241,791 |
| 2015 | $120,827 | $63,200 | $0 | $184,027 | $184,027 |
| 2014 | $122,346 | $63,200 | $0 | $185,546 | $185,546 |
| 2013 | $123,866 | $63,200 | $0 | $187,066 | $187,066 |
| 2012 | $125,385 | $63,200 | $0 | $188,585 | $188,585 |
| 2011 | $126,905 | $79,000 | $0 | $205,905 | $205,905 |
| 2010 | $126,705 | $79,000 | $0 | $205,705 | $205,705 |
| 2009 | $131,878 | $130,000 | $0 | $261,878 | $261,878 |
| 2008 | $134,985 | $125,235 | $0 | $260,220 | $260,220 |
| 2007 | $139,053 | $125,235 | $0 | $264,288 | $264,288 |
Deed and Sales History
| 1 | 11/29/2004 | WD | Warranty Deed | EWERT, PAMELA | CORNELIUS, ROBERT J | | | $250,000.00 | 45560 | 4118282 |
| 2 | 04/01/1998 | OTHER | Other - Misc. Documents | EWERT, PAMELA J | EWERT, PAMELA | | | $73,135.00 | 11111111 | 0 |
| 3 | 01/01/1998 | WD | Warranty Deed | EWERT, PAMELA J | EWERT, PAMELA J | | | $35,000.00 | 80316 | 98001668 |
| 4 | 01/01/1998 | WD | Warranty Deed | MCNUTT, DAVID & | EWERT, PAMELA J | | | $35,000.00 | 80316 | 98001668 |
| 5 | 10/01/1989 | WD | Warranty Deed | LEISHMAN, GILBERT H | MCNUTT, DAVID & | | | $17,330.00 | 94587 | 89014949 |
| 6 | 05/01/1978 | OTHER | Other - Misc. Documents | Unknown | LEISHMAN, GILBERT H | | | $8,000.00 | 82202 | 332803 |
Payout Agreement
| No payout information available.. |