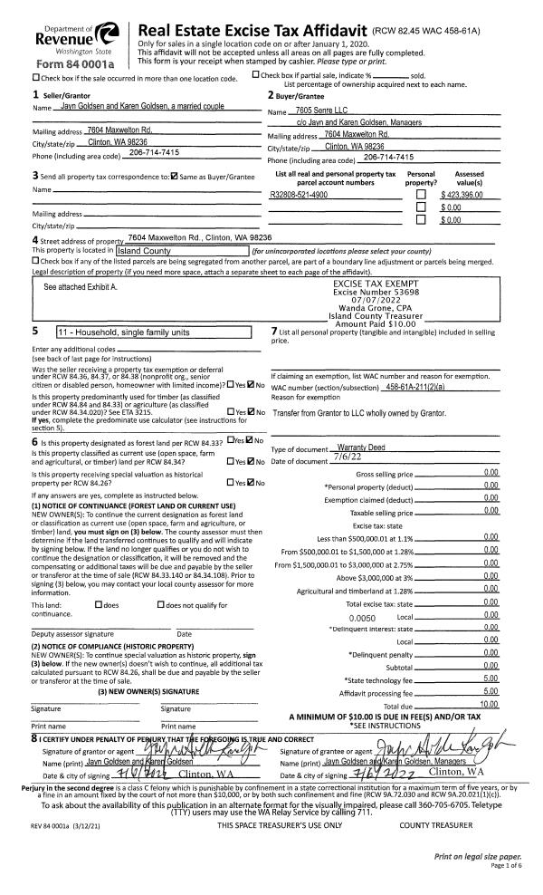
Property
Account |
| Property ID: | 79783 | Abbreviated Legal Description: | 73 - IN SW NE SW: BG NWCR SW NE SW S70' TPB E135' S70 W135' TP 70'S OF TPB N TPB TGW EZ |
| Geographic ID: | R23114-199-1430 | Agent Code: | |
| Type: | Real | | |
| Tax Area: | 510 - APPRAISER-Stan/Cam Schl Dist, improved & 1 acre or less | Land Use Code | 11 |
| Open Space: | N | DFL | N |
| Historic Property: | N | Remodel Property: | N |
| Multi-Family Redevelopment: | N | | |
| Township: | 31 | Section: | 14 |
| Range: | R2 |
Location |
| Address: | 1058 PINEHURST CT CAMANO ISLAND, WA 98282 | Mapsco: | |
| Neighborhood: | Cycle 5 | Map ID: | 481 |
| Neighborhood CD: | 5 |
Owner |
| Name: | FAYDO, DOROTHY P | Owner ID: | 58070 |
| Mailing Address: | 1058 PINEHURST CT CAMANO ISLAND, WA 98282-8495 | % Ownership: | 100.0000000000% |
| | | Exemptions: | SNR/DSBL |
Taxes and Assessment Details
Values
| (+) Improvement Homesite Value: | + | $298,075 | |
| (+) Improvement Non-Homesite Value: | + | $0 | |
| (+) Land Homesite Value: | + | $270,000 | |
| (+) Land Non-Homesite Value: | + | $0 | |
| (+) Curr Use (HS): | + | $0 | $0 |
| (+) Curr Use (NHS): | + | $0 | $0 |
| | | -------------------------- | |
| (=) Market Value: | = | $568,075 | |
| (–) Productivity Loss: | – | $0 | |
| | | -------------------------- | |
| (=) Subtotal: | = | $568,075 | |
| (+) Senior Appraised Value: | + | $403,163 | |
| (+) Non-Senior Appraised Value: | + | $0 | |
| | | -------------------------- | |
| (=) Total Appraised Value: | = | $403,163 | |
| (–) Senior Exemption Loss: | – | $241,898 | |
| (–) Exemption Loss: | – | $0 | |
| | | -------------------------- | |
| (=) Taxable Value: | = | $161,265 | |
Taxing Jurisdiction
| Owner: | FAYDO, DOROTHY P | | |
| % Ownership: | 100.0000000000% | | |
| Total Value: | $568,075 | | |
| Tax Area: | 510 - APPRAISER-Stan/Cam Schl Dist, improved & 1 acre or less |
| CF | Conservation Futures | 0.0316035091 | $568,075 | $161,265 | $5.10 | | |
| EMS1 | Fire & Rescue Dist #1 Camano GEN (EMS) | 0.3677864386 | $568,075 | $161,265 | $59.31 | | |
| FIRE1 | Fire & Rescue Dist #1 Camano GEN | 1.2502910536 | $568,075 | $161,265 | $201.63 | | |
| FIRE1BOND | Fire & Rescue Dist #1 Camano BOND | 0.0000000000 | $568,075 | $0 | $0.00 | | |
| CE | County Current Expense | 0.3708482477 | $568,075 | $161,265 | $59.80 | | |
| CR | County Roads | 0.4584763726 | $568,075 | $161,265 | $73.94 | | |
| LCIB | Library Sno-Isle BOND (Camano Island) | 0.0000000000 | $568,075 | $0 | $0.00 | | |
| LIB | Library Sno-Isle GEN | 0.3153421757 | $568,075 | $161,265 | $50.85 | | |
| SCH205_401 | School 205-401 Enrichment | 0.0000000000 | $568,075 | $0 | $0.00 | | |
| SCH205BOND | School 205-401 BOND | 0.0000000000 | $568,075 | $0 | $0.00 | | |
| ST | State School | 1.3035497053 | $568,075 | $161,265 | $210.22 | | |
| ST2 | State School Part 2 | 0.0000000000 | $568,075 | $0 | $0.00 | | |
| | Total Tax Rate: | 4.0978975026 | | | | | |
| | | | | Taxes w/Current Exemptions: | $660.85 | | |
| | | | | Taxes w/o Exemptions: | $4,158.86 | | |
Improvement / Building
| Improvement #1: | RESIDENTIAL | State Code: | Y | 1454.4 sqft | Value: | $298,075 |
| Bathrooms: | 2 | Bedrooms: | 3 | | Ceiling: | DRYWALL PAINTED | Exterior Wall/Cover: | CEMENT FIBER | | Floor Covering: | HARDWOOD/CARP 20-80 | Floor Structure: | WOOD W/SUBFLOOR | | Foundation: | CONCRETE | Heating: | FHA GAS | | Interior Finish: | DRYWALL PAINT | Plumbing Fixture Cnt: | 10 | | Roof Slope: | 5" IN 12" | Roof Structure/Cover: | CJ ASPHALT |
|
| | Type | Description | Class CD | Sub Class CD | Year Built | Area |
| | BAS | BASE/MAIN FLOOR | 3 | 0 | 2004 | 1454.4 |
| | AGR | ATTACHED GARAGE | 3 | 0 | 2004 | 457.4 |
| | OWP | OPEN WOOD PORCH W/STEPS | 3 | 0 | 2004 | 37.6 |
| | OWP | OPEN WOOD PORCH W/STEPS | 3 | 0 | 2004 | 360.0 |
| | OWR | OPEN WOOD PORCH W/STEPS/ROOF | 3 | 0 | 2004 | 60.0 |
Sketch
Property Image
Land
| 1 | 14 | SQ (08001-12000) | 0.2200 | 9583.20 | 0.00 | 0.00 | 1.00 | $270,000 | $0 |
Roll Value History
| 2026 | N/A | N/A | N/A | N/A | N/A |
| 2025 | $298,075 | $270,000 | $0 | $568,075 | $161,265 |
| 2024 | $301,657 | $260,000 | $0 | $561,657 | $161,265 |
| 2023 | $305,236 | $250,000 | $0 | $555,236 | $161,265 |
| 2022 | $279,632 | $240,000 | $0 | $519,632 | $333,163 |
| 2021 | $243,163 | $160,000 | $0 | $403,163 | $333,163 |
| 2020 | $236,587 | $150,000 | $0 | $386,587 | $386,587 |
| 2019 | $170,646 | $180,000 | $0 | $350,646 | $350,646 |
| 2018 | $171,131 | $150,000 | $0 | $321,131 | $185,224 |
| 2017 | $172,098 | $130,000 | $0 | $302,098 | $185,224 |
| 2016 | $174,031 | $110,000 | $0 | $284,031 | $185,224 |
| 2015 | $177,046 | $65,000 | $0 | $242,046 | $96,818 |
| 2014 | $178,983 | $65,000 | $0 | $243,983 | $97,593 |
| 2013 | $180,919 | $41,600 | $0 | $222,519 | $89,008 |
| 2012 | $182,856 | $41,600 | $0 | $224,456 | $89,782 |
| 2011 | $184,793 | $52,000 | $0 | $236,793 | $166,793 |
| 2010 | $192,305 | $52,000 | $0 | $244,305 | $174,305 |
| 2009 | $197,997 | $90,000 | $0 | $287,997 | $185,224 |
| 2008 | $200,150 | $63,205 | $0 | $263,355 | $185,224 |
| 2007 | $201,947 | $63,773 | $0 | $265,720 | $102,090 |
Deed and Sales History
| 1 | 12/27/2004 | WD | Warranty Deed | CAMWOOD CONSTRUCTION INC, | FAYDO, DOROTHY P | | | $209,900.00 | 50134 | 4122988 |
| 2 | 08/27/2004 | WD | Warranty Deed | HUDSON, JEFFERY L | CAMWOOD CONSTRUCTION INC, | | | $55,000.00 | 44165 | 4111930 |
| 3 | 10/01/1994 | WD | Warranty Deed | WISE, NORMAN J | HUDSON, JEFFERY L | | | $34,500.00 | 44404 | 94022719 |
| 4 | 02/01/1990 | WD | Warranty Deed | MILLIKEN, TROY E | WISE, NORMAN J | | | $15,500.00 | 679 | 90002236 |
| 5 | 01/01/1900 | OTHER | Other - Misc. Documents | Unknown | MILLIKEN, TROY E | | | $0.00 | 0 | 0 |
Payout Agreement
| No payout information available.. |