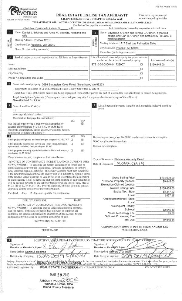
Property
Account |
| Property ID: | 79809 | Abbreviated Legal Description: | 141 - IN SW NE SW: BG NWCR SW NE SW E525' S70' TPB E149.61' S70' W149.75' TP 70'S OF TPB N TPB TGW EZ |
| Geographic ID: | R23114-200-1950 | Agent Code: | |
| Type: | Real | | |
| Tax Area: | 510 - APPRAISER-Stan/Cam Schl Dist, improved & 1 acre or less | Land Use Code | 11 |
| Open Space: | N | DFL | N |
| Historic Property: | N | Remodel Property: | N |
| Multi-Family Redevelopment: | N | | |
| Township: | 31 | Section: | 14 |
| Range: | R2 |
Location |
| Address: | 1057 ELLIE LN CAMANO ISLAND, WA 98282 | Mapsco: | |
| Neighborhood: | Cycle 5 | Map ID: | 481 |
| Neighborhood CD: | 5 |
Owner |
| Name: | LOCKE TTEE, WAYNE BRIAN | Owner ID: | 288706 |
| Mailing Address: | CYNTHIA JEAN LOCKE 1057 ELLIE LN CAMANO ISLAND, WA | % Ownership: | 100.0000000000% |
| | | Exemptions: | |
Taxes and Assessment Details
Values
| (+) Improvement Homesite Value: | + | $0 | |
| (+) Improvement Non-Homesite Value: | + | $293,866 | |
| (+) Land Homesite Value: | + | $0 | |
| (+) Land Non-Homesite Value: | + | $230,000 | |
| (+) Curr Use (HS): | + | $0 | $0 |
| (+) Curr Use (NHS): | + | $0 | $0 |
| | | -------------------------- | |
| (=) Market Value: | = | $523,866 | |
| (–) Productivity Loss: | – | $0 | |
| | | -------------------------- | |
| (=) Subtotal: | = | $523,866 | |
| (+) Senior Appraised Value: | + | $0 | |
| (+) Non-Senior Appraised Value: | + | $523,866 | |
| | | -------------------------- | |
| (=) Total Appraised Value: | = | $523,866 | |
| (–) Senior Exemption Loss: | – | $0 | |
| (–) Exemption Loss: | – | $0 | |
| | | -------------------------- | |
| (=) Taxable Value: | = | $523,866 | |
Taxing Jurisdiction
| Owner: | LOCKE TTEE, WAYNE BRIAN | | |
| % Ownership: | 100.0000000000% | | |
| Total Value: | $523,866 | | |
| Tax Area: | 510 - APPRAISER-Stan/Cam Schl Dist, improved & 1 acre or less |
| CF | Conservation Futures | 0.0316035091 | $523,866 | $523,866 | $16.56 | | |
| EMS1 | Fire & Rescue Dist #1 Camano GEN (EMS) | 0.3677864386 | $523,866 | $523,866 | $192.67 | | |
| FIRE1 | Fire & Rescue Dist #1 Camano GEN | 1.2502910536 | $523,866 | $523,866 | $654.98 | | |
| FIRE1BOND | Fire & Rescue Dist #1 Camano BOND | 0.1570001679 | $523,866 | $523,866 | $82.25 | | |
| CE | County Current Expense | 0.3708482477 | $523,866 | $523,866 | $194.27 | | |
| CR | County Roads | 0.4584763726 | $523,866 | $523,866 | $240.18 | | |
| LCIB | Library Sno-Isle BOND (Camano Island) | 0.0396325772 | $523,866 | $523,866 | $20.76 | | |
| LIB | Library Sno-Isle GEN | 0.3153421757 | $523,866 | $523,866 | $165.20 | | |
| SCH205_401 | School 205-401 Enrichment | 1.2698420524 | $523,866 | $523,866 | $665.23 | | |
| SCH205BOND | School 205-401 BOND | 0.9396497583 | $523,866 | $523,866 | $492.25 | | |
| ST | State School | 1.3035497053 | $523,866 | $523,866 | $682.89 | | |
| ST2 | State School Part 2 | 0.8169543533 | $523,866 | $523,866 | $427.97 | | |
| | Total Tax Rate: | 7.3209764117 | | | | | |
| | | | | Taxes w/Current Exemptions: | $3,835.21 | | |
| | | | | Taxes w/o Exemptions: | $3,835.21 | | |
Improvement / Building
| Improvement #1: | RESIDENTIAL | State Code: | Y | 1535.0 sqft | Value: | $293,866 |
| Bathrooms: | 2 | Bedrooms: | 3 | | Ceiling: | DRYWALL PAINTED | Exterior Wall/Cover: | PLY/HARDBOARD T-111 | | Floor Covering: | CARPET/VINYL 20-80 | Floor Structure: | WOOD W/SUBFLOOR | | Foundation: | CONCRETE | Heating: | FHA GAS | | Interior Finish: | DRYWALL PAINT | Plumbing Fixture Cnt: | 10 | | Roof Slope: | 5" IN 12" | Roof Structure/Cover: | CJ ASPHALT |
|
| | Type | Description | Class CD | Sub Class CD | Year Built | Area |
| | BAS | BASE/MAIN FLOOR | 3 | 0 | 1995 | 1535.0 |
| | OP4 | OPEN PORCH W/CEILING-ROOF | 3 | 0 | 1995 | 90.0 |
| | AGR | ATTACHED GARAGE | 3 | 0 | 1995 | 528.0 |
| | OWP | OPEN WOOD PORCH W/STEPS | 3 | 0 | 1995 | 416.0 |
Sketch
Property Image
Land
| 1 | 14 | SQ (08001-12000) | 0.2400 | 10454.40 | 0.00 | 0.00 | 1.00 | $230,000 | $0 |
Roll Value History
| 2026 | N/A | N/A | N/A | N/A | N/A |
| 2025 | $293,866 | $230,000 | $0 | $523,866 | $523,866 |
| 2024 | $297,483 | $220,000 | $0 | $517,483 | $517,483 |
| 2023 | $301,100 | $200,000 | $0 | $501,100 | $501,100 |
| 2022 | $275,921 | $200,000 | $0 | $475,921 | $475,921 |
| 2021 | $235,906 | $140,000 | $0 | $375,906 | $375,906 |
| 2020 | $229,679 | $120,000 | $0 | $349,679 | $349,679 |
| 2019 | $166,613 | $160,000 | $0 | $326,613 | $326,613 |
| 2018 | $167,103 | $110,000 | $0 | $277,103 | $277,103 |
| 2017 | $168,079 | $100,000 | $0 | $268,079 | $268,079 |
| 2016 | $170,033 | $90,000 | $0 | $260,033 | $260,033 |
| 2015 | $149,999 | $65,000 | $0 | $214,999 | $214,999 |
| 2014 | $151,855 | $65,000 | $0 | $216,855 | $216,855 |
| 2013 | $153,710 | $41,600 | $0 | $195,310 | $195,310 |
| 2012 | $155,564 | $41,600 | $0 | $197,164 | $197,164 |
| 2011 | $157,417 | $52,000 | $0 | $209,417 | $209,417 |
| 2010 | $163,741 | $52,000 | $0 | $215,741 | $215,741 |
| 2009 | $172,988 | $90,000 | $0 | $262,988 | $262,988 |
| 2008 | $175,234 | $73,955 | $0 | $249,189 | $249,189 |
| 2007 | $177,457 | $73,955 | $0 | $251,412 | $251,412 |
Deed and Sales History
| 1 | 01/22/2019 | QCD | Quit Claim Deed | LOCKE, WAYNE B | LOCKE TTEE, WAYNE BRIAN | | | $0.00 | 37537 | 4459005 |
| 2 | 07/16/2015 | WD | Warranty Deed | MULLIGAN, MICHAEL | LOCKE, WAYNE B | | | $245,900.00 | 20555 | 4382565 |
| 3 | 03/03/2015 | BARGSLD | Bargain And Sale Deed | BANK OF NEW YORK MELLON TRUST COMPANY | MULLIGAN, MICHAEL | | | $130,000.00 | 18726 | 4374647 |
| 4 | 06/30/2014 | TRUSTEED | Trustee's Deed | QUATTROCCHI, ANGELA M | BANK OF NEW YORK MELLON TRUST COMPANY | | | $169,168.00 | 15887 | 4361807 |
| 5 | 01/05/2007 | OTHER | Other - Misc. Documents | QUATTROCCHI, ANGELA M | QUATTROCCHI, ANGELA M | | | $0.00 | 80101 | 0 |
| 6 | 07/05/2006 | WD | Warranty Deed | MITZEL, ALBERT | QUATTROCCHI, ANGELA M | | | $282,000.00 | 63028 | 4175703 |
| 7 | 07/27/1998 | WD | Warranty Deed | BURRILL, STEPHEN K | MITZEL, ALBERT | | | $149,950.00 | 82978 | 98015626 |
| 8 | 07/01/1996 | WD | Warranty Deed | LYMAN, RODGER R | BURRILL, STEPHEN K | | | $124,900.00 | 62363 | 96011702 |
| 9 | 03/01/1995 | WD | Warranty Deed | WILLING, THOMAS S | LYMAN, RODGER R | | | $25,000.00 | 51008 | 95004850 |
| 10 | 12/01/1993 | QCD | Quit Claim Deed | DENNISTON, MARTHA K | WILLING, THOMAS S | | | $0.00 | 40125 | 94001270 |
| 11 | 12/01/1991 | WD | Warranty Deed | DALE, WILLIAM B | DENNISTON, MARTHA K | | | $0.00 | 20007 | 92000036 |
| 12 | 06/01/1990 | WD | Warranty Deed | MATHIS, RUBY J | DALE, WILLIAM B | | | $17,000.00 | 3728 | 90012113 |
| 13 | 10/01/1967 | EXECUTORD | Executor Deed | KOCH, ARTHUR | MATHIS, RUBY J | | | $0.00 | 28164 | 0 |
Payout Agreement
| No payout information available.. |