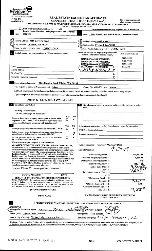
Property
Account |
| Property ID: | 79863 | Abbreviated Legal Description: | 77 - BG NWCR SW NE SW E216 .80' TPB E113.20' S70' W132 .67' N15*E72.72' TPB TGW EZ |
| Geographic ID: | R23114-206-1620 | Agent Code: | |
| Type: | Real | | |
| Tax Area: | 510 - APPRAISER-Stan/Cam Schl Dist, improved & 1 acre or less | Land Use Code | 11 |
| Open Space: | N | DFL | N |
| Historic Property: | N | Remodel Property: | N |
| Multi-Family Redevelopment: | N | | |
| Township: | 31 | Section: | 14 |
| Range: | R2 |
Location |
| Address: | 679 KODIAK AVE CAMANO ISLAND, WA 98282 | Mapsco: | |
| Neighborhood: | Cycle 5 | Map ID: | 481 |
| Neighborhood CD: | 5 |
Owner |
| Name: | MUMBULUMA, MIYANDA | Owner ID: | 292058 |
| Mailing Address: | 679 KODIAK AVE CAMANO ISLAND, WA 98282 | % Ownership: | 100.0000000000% |
| | | Exemptions: | |
Taxes and Assessment Details
Values
| (+) Improvement Homesite Value: | + | $0 | |
| (+) Improvement Non-Homesite Value: | + | $285,285 | |
| (+) Land Homesite Value: | + | $0 | |
| (+) Land Non-Homesite Value: | + | $230,000 | |
| (+) Curr Use (HS): | + | $0 | $0 |
| (+) Curr Use (NHS): | + | $0 | $0 |
| | | -------------------------- | |
| (=) Market Value: | = | $515,285 | |
| (–) Productivity Loss: | – | $0 | |
| | | -------------------------- | |
| (=) Subtotal: | = | $515,285 | |
| (+) Senior Appraised Value: | + | $0 | |
| (+) Non-Senior Appraised Value: | + | $515,285 | |
| | | -------------------------- | |
| (=) Total Appraised Value: | = | $515,285 | |
| (–) Senior Exemption Loss: | – | $0 | |
| (–) Exemption Loss: | – | $0 | |
| | | -------------------------- | |
| (=) Taxable Value: | = | $515,285 | |
Taxing Jurisdiction
| Owner: | MUMBULUMA, MIYANDA | | |
| % Ownership: | 100.0000000000% | | |
| Total Value: | $515,285 | | |
| Tax Area: | 510 - APPRAISER-Stan/Cam Schl Dist, improved & 1 acre or less |
| CF | Conservation Futures | 0.0316035091 | $515,285 | $515,285 | $16.28 | | |
| EMS1 | Fire & Rescue Dist #1 Camano GEN (EMS) | 0.3677864386 | $515,285 | $515,285 | $189.51 | | |
| FIRE1 | Fire & Rescue Dist #1 Camano GEN | 1.2502910536 | $515,285 | $515,285 | $644.26 | | |
| FIRE1BOND | Fire & Rescue Dist #1 Camano BOND | 0.1570001679 | $515,285 | $515,285 | $80.90 | | |
| CE | County Current Expense | 0.3708482477 | $515,285 | $515,285 | $191.09 | | |
| CR | County Roads | 0.4584763726 | $515,285 | $515,285 | $236.25 | | |
| LCIB | Library Sno-Isle BOND (Camano Island) | 0.0396325772 | $515,285 | $515,285 | $20.42 | | |
| LIB | Library Sno-Isle GEN | 0.3153421757 | $515,285 | $515,285 | $162.49 | | |
| SCH205_401 | School 205-401 Enrichment | 1.2698420524 | $515,285 | $515,285 | $654.33 | | |
| SCH205BOND | School 205-401 BOND | 0.9396497583 | $515,285 | $515,285 | $484.19 | | |
| ST | State School | 1.3035497053 | $515,285 | $515,285 | $671.70 | | |
| ST2 | State School Part 2 | 0.8169543533 | $515,285 | $515,285 | $420.96 | | |
| | Total Tax Rate: | 7.3209764117 | | | | | |
| | | | | Taxes w/Current Exemptions: | $3,772.38 | | |
| | | | | Taxes w/o Exemptions: | $3,772.38 | | |
Improvement / Building
| Improvement #1: | RESIDENTIAL | State Code: | Y | 2130.0 sqft | Value: | $285,285 |
| Bathrooms: | 2.5 | Bedrooms: | 4 | | Ceiling: | DRYWALL PAINTED | Exterior Wall/Cover: | WOOD SIDING | | Floor Covering: | CARPET/VINYL 20-80 | Floor Structure: | SLAB ON GRADE | | Foundation: | SLAB | Heating: | WALL HEAT ELECTRIC | | Interior Finish: | DRYWALL PAINT | Plumbing Fixture Cnt: | 12 | | Roof Slope: | 4" IN 12" | Roof Structure/Cover: | CJ ASPHALT |
|
| | Type | Description | Class CD | Sub Class CD | Year Built | Area |
| | BAS | BASE/MAIN FLOOR | 3 | 0 | 1990 | 675.0 |
| | BIG | BUILT IN GARAGE | 3 | 0 | 1990 | 668.0 |
| | UPS | UPPER STORY | 3 | 0 | 1990 | 1455.0 |
| | OWP | OPEN WOOD PORCH W/STEPS | 3 | 0 | 1990 | 176.0 |
| | OWC | OPEN WOOD PORCH W/STEPS/ROOF/C | 3 | 0 | 1990 | 60.0 |
| | OWC | OPEN WOOD PORCH W/STEPS/ROOF/C | 3 | 0 | 1990 | 105.0 |
Sketch
Property Image
Land
| 1 | 14 | SQ (08001-12000) | 0.2000 | 8712.00 | 0.00 | 0.00 | 1.00 | $230,000 | $0 |
Roll Value History
| 2026 | N/A | N/A | N/A | N/A | N/A |
| 2025 | $285,285 | $230,000 | $0 | $515,285 | $515,285 |
| 2024 | $288,979 | $220,000 | $0 | $508,979 | $508,979 |
| 2023 | $292,673 | $200,000 | $0 | $492,673 | $492,673 |
| 2022 | $268,368 | $200,000 | $0 | $468,368 | $468,368 |
| 2021 | $232,158 | $140,000 | $0 | $372,158 | $372,158 |
| 2020 | $226,225 | $120,000 | $0 | $346,225 | $346,225 |
| 2019 | $171,540 | $160,000 | $0 | $331,540 | $331,540 |
| 2018 | $172,066 | $110,000 | $0 | $282,066 | $282,066 |
| 2017 | $173,122 | $100,000 | $0 | $273,122 | $273,122 |
| 2016 | $175,233 | $110,000 | $0 | $285,233 | $285,233 |
| 2015 | $168,286 | $82,400 | $0 | $250,686 | $250,686 |
| 2014 | $170,478 | $82,400 | $0 | $252,878 | $252,878 |
| 2013 | $172,673 | $82,400 | $0 | $255,073 | $255,073 |
| 2012 | $174,866 | $82,400 | $0 | $257,266 | $257,266 |
| 2011 | $177,060 | $103,000 | $0 | $280,060 | $280,060 |
| 2010 | $187,664 | $103,000 | $0 | $290,664 | $290,664 |
| 2009 | $195,775 | $125,000 | $0 | $320,775 | $320,775 |
| 2008 | $191,947 | $114,950 | $0 | $306,897 | $306,897 |
| 2007 | $194,392 | $114,950 | $0 | $309,342 | $309,342 |
Deed and Sales History
| 1 | 06/05/2019 | QCD | Quit Claim Deed | MUMBULUMA, MIYANDA | MUMBULUMA, MIYANDA | | | $0.00 | 40522 | 4472527 |
| 2 | 09/06/2013 | WD | Warranty Deed | BYRUM, DAVID K | MUMBULUMA, MIYANDA | | | $240,000.00 | 12758 | 4347893 |
| 3 | 08/20/1998 | WD | Warranty Deed | LING, DOUGLAS S | BYRUM, DAVID K | | | $179,000.00 | 83346 | 98017508 |
| 4 | 12/01/1991 | WD | Warranty Deed | LAITENBERGER, ROLF & | LING, DOUGLAS S | | | $145,000.00 | 14363 | 91019036 |
| 5 | 12/01/1989 | WD | Warranty Deed | BRYANT, JACK R | LAITENBERGER, ROLF & | | | $22,000.00 | 95886 | 89018913 |
| 6 | 11/01/1978 | OTHER | Other - Misc. Documents | BYRUM, DAVID K | BRYANT, JACK R | | | $7,200.00 | 85586 | 343081 |
| 7 | 01/01/1900 | OTHER | Other - Misc. Documents | Unknown | BYRUM, DAVID K | | | $0.00 | 83346 | 98017508 |
Payout Agreement
| No payout information available.. |