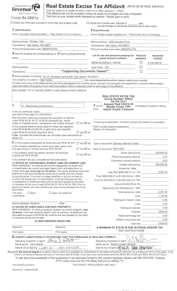
Property
Account |
| Property ID: | 800022 | Abbreviated Legal Description: | MOBILE TITLE SURRENDERED 1992 LIBERTY OAKBROOK 14X66 FROM K-698677 *WAS NOT RETITLED PRIOR TO MOVE FROM K-757292 |
| Geographic ID: | M91400000056-1 | Agent Code: | |
| Type: | Mobile Home | | |
| Tax Area: | 110 - APPRAISER-OH Schl Dist, outside OH, improved & 1 acre or less | Land Use Code | 11 |
| Open Space: | N | DFL | N |
| Historic Property: | N | Remodel Property: | N |
| Multi-Family Redevelopment: | N | | |
| Township: | | Section: | |
| Range: | |
Location |
| Address: | 34938 SR20 # 6 OAK HARBOR, WA 98277 | Mapsco: | |
| Neighborhood: | Cycle 6 | Map ID: | |
| Neighborhood CD: | 6 |
Owner |
| Name: | GARCIA-BARAJAS, YAMILEX | Owner ID: | 297704 |
| Mailing Address: | 34938 SR 20 #56 OAK HARBOR, WA 98277 | % Ownership: | 100.0000000000% |
| | | Exemptions: | |
Taxes and Assessment Details
Values
| (+) Improvement Homesite Value: | + | $0 | |
| (+) Improvement Non-Homesite Value: | + | $1,950 | |
| (+) Land Homesite Value: | + | $0 | |
| (+) Land Non-Homesite Value: | + | $0 | |
| (+) Curr Use (HS): | + | $0 | $0 |
| (+) Curr Use (NHS): | + | $0 | $0 |
| | | -------------------------- | |
| (=) Market Value: | = | $1,950 | |
| (–) Productivity Loss: | – | $0 | |
| | | -------------------------- | |
| (=) Subtotal: | = | $1,950 | |
| (+) Senior Appraised Value: | + | $0 | |
| (+) Non-Senior Appraised Value: | + | $1,950 | |
| | | -------------------------- | |
| (=) Total Appraised Value: | = | $1,950 | |
| (–) Senior Exemption Loss: | – | $0 | |
| (–) Exemption Loss: | – | $0 | |
| | | -------------------------- | |
| (=) Taxable Value: | = | $1,950 | |
Taxing Jurisdiction
| Owner: | GARCIA-BARAJAS, YAMILEX | | |
| % Ownership: | 100.0000000000% | | |
| Total Value: | $1,950 | | |
| Tax Area: | 110 - APPRAISER-OH Schl Dist, outside OH, improved & 1 acre or less |
| CF | Conservation Futures | 0.0316035091 | $1,950 | $1,950 | $0.06 | | |
| CEM1 | Cemetery #1 | 0.0040320932 | $1,950 | $1,950 | $0.01 | | |
| FIRE2 | Fire & Rescue Dist #2 N Whidbey GEN | 0.5475949600 | $1,950 | $1,950 | $1.07 | | |
| HOBOND | Hospital BOND | 0.1910887512 | $1,950 | $1,950 | $0.37 | | |
| HOGEN | Hospital GEN | 0.3902502903 | $1,950 | $1,950 | $0.76 | | |
| CE | County Current Expense | 0.3708482477 | $1,950 | $1,950 | $0.72 | | |
| CR | County Roads | 0.4584763726 | $1,950 | $1,950 | $0.89 | | |
| ISLANDEMS | Hospital GEN (EMS) | 0.5000000000 | $1,950 | $1,950 | $0.98 | | |
| LIB | Library Sno-Isle GEN | 0.3153421757 | $1,950 | $1,950 | $0.61 | | |
| NWHIDPRMT | P & R N Whidbey GEN | 0.2004466701 | $1,950 | $1,950 | $0.39 | | |
| SCH201MO | School 201 Enrichment | 1.8559231640 | $1,950 | $1,950 | $3.62 | | |
| ST | State School | 1.3035497053 | $1,950 | $1,950 | $2.54 | | |
| ST2 | State School Part 2 | 0.8169543533 | $1,950 | $1,950 | $1.59 | | |
| | Total Tax Rate: | 6.9861102925 | | | | | |
| | | | | Taxes w/Current Exemptions: | $13.61 | | |
| | | | | Taxes w/o Exemptions: | $13.61 | | |
Improvement / Building
| Improvement #1: | MANUFACTURED HOME | State Code: | Y | 924.0 sqft | Value: | $1,950 |
| Bathrooms: | 0 | Bedrooms: | 0 | | Ceiling: | PLASTER PAINTED | Cooling: | EVAP NO DUCT | | Exterior Wall/Cover: | VINYL | Floor Covering: | CARPET 100% | | Floor Structure: | SLAB ON GRADE | Foundation: | SLAB | | Heating: | FHA ELECTRIC | Interior Finish: | PLASTER | | Plumbing Fixture Cnt: | 1 | Roof Slope: | FLAT | | Roof Structure/Cover: | CJ ALUMINIUM HEAVY |   |   |
|
Sketch
Property Image
Land
No land segments exist for this property.
Roll Value History
| 2026 | N/A | N/A | N/A | N/A | N/A |
| 2025 | $1,950 | $0 | $0 | $1,950 | $1,950 |
| 2024 | $2,043 | $0 | $0 | $2,043 | $2,043 |
| 2023 | $3,560 | $0 | $0 | $3,560 | $3,560 |
| 2022 | $633 | $0 | $0 | $633 | $633 |
| 2021 | $585 | $0 | $0 | $585 | $585 |
| 2020 | $590 | $0 | $0 | $590 | $590 |
| 2019 | $231 | $0 | $0 | $231 | $0 |
| 2018 | $500 | $0 | $0 | $500 | $500 |
| 2017 | $500 | $0 | $0 | $500 | $500 |
| 2016 | $5,780 | $0 | $0 | $5,780 | $5,780 |
| 2015 | $5,857 | $0 | $0 | $5,857 | $5,857 |
| 2014 | $5,934 | $0 | $0 | $5,934 | $5,934 |
| 2013 | $6,011 | $0 | $0 | $6,011 | $6,011 |
| 2012 | $6,088 | $0 | $0 | $6,088 | $6,088 |
| 2011 | $6,165 | $0 | $0 | $6,165 | $6,165 |
| 2010 | $8,598 | $0 | $0 | $8,598 | $8,598 |
| 2009 | $9,047 | $0 | $0 | $9,047 | $9,047 |
| 2008 | $9,371 | $0 | $0 | $9,371 | $9,371 |
| 2007 | $9,637 | $0 | $0 | $9,637 | $9,637 |
Deed and Sales History
| 1 | 01/07/2021 | MANHOME | Manufactured Home | WHISPERING PINES HOMEOWNERS CO-OP, | GARCIA-BARAJAS, YAMILEX | | | $0.00 | 46535 | |
| 2 | 02/01/2018 | MANHOME | Manufactured Home | HAWMAN, LANCE / MELISSA | WHISPERING PINES HOMEOWNERS CO-OP, | | | $0.00 | 32817 | |
Payout Agreement
| No payout information available.. |