Property
Account |
| Property ID: | 800061 | Abbreviated Legal Description: | SEAWATCH CONDO UNIT301 1/12 INT |
| Geographic ID: | S8134-00-00301-0 | Agent Code: | |
| Type: | Real | | |
| Tax Area: | 100 - APPRAISER-OH Schl Dist, in OH | Land Use Code | 14 |
| Open Space: | N | DFL | N |
| Historic Property: | N | Remodel Property: | N |
| Multi-Family Redevelopment: | N | | |
| Township: | | Section: | |
| Range: | |
Location |
| Address: | 1499 SE 9TH AVE UNIT 301 OAK HARBOR, WA 98277 | Mapsco: | |
| Neighborhood: | 13*OH-seawatch | Map ID: | 89 |
| Neighborhood CD: | 13*OHseawa |
Owner |
| Name: | DICKENS TTEE, J ERNEST | Owner ID: | 298897 |
| Mailing Address: | MARILYN L DICKENS TTEE 316 SE PIONEER WAY #160 OAK HARBOR, WA 98277 | % Ownership: | 100.0000000000% |
| | | Exemptions: | |
Taxes and Assessment Details
Values
| (+) Improvement Homesite Value: | + | $0 | |
| (+) Improvement Non-Homesite Value: | + | $375,188 | |
| (+) Land Homesite Value: | + | $0 | |
| (+) Land Non-Homesite Value: | + | $100,000 | |
| (+) Curr Use (HS): | + | $0 | $0 |
| (+) Curr Use (NHS): | + | $0 | $0 |
| | | -------------------------- | |
| (=) Market Value: | = | $475,188 | |
| (–) Productivity Loss: | – | $0 | |
| | | -------------------------- | |
| (=) Subtotal: | = | $475,188 | |
| (+) Senior Appraised Value: | + | $0 | |
| (+) Non-Senior Appraised Value: | + | $475,188 | |
| | | -------------------------- | |
| (=) Total Appraised Value: | = | $475,188 | |
| (–) Senior Exemption Loss: | – | $0 | |
| (–) Exemption Loss: | – | $0 | |
| | | -------------------------- | |
| (=) Taxable Value: | = | $475,188 | |
Taxing Jurisdiction
| Owner: | DICKENS TTEE, J ERNEST | | |
| % Ownership: | 100.0000000000% | | |
| Total Value: | $475,188 | | |
| Tax Area: | 100 - APPRAISER-OH Schl Dist, in OH |
| CF | Conservation Futures | 0.0316035091 | $475,188 | $475,188 | $15.02 | | |
| CEM1 | Cemetery #1 | 0.0040320932 | $475,188 | $475,188 | $1.92 | | |
| COH | City of Oak Harbor | 2.3001546061 | $475,188 | $475,188 | $1,093.01 | | |
| OAKBOND | City of Oak Harbor BOND | 0.1926904192 | $475,188 | $475,188 | $91.56 | | |
| HOBOND | Hospital BOND | 0.1910887512 | $475,188 | $475,188 | $90.80 | | |
| HOGEN | Hospital GEN | 0.3902502903 | $475,188 | $475,188 | $185.44 | | |
| CE | County Current Expense | 0.3708482477 | $475,188 | $475,188 | $176.22 | | |
| ISLANDEMS | Hospital GEN (EMS) | 0.5000000000 | $475,188 | $475,188 | $237.59 | | |
| LIB | Library Sno-Isle GEN | 0.3153421757 | $475,188 | $475,188 | $149.85 | | |
| NWHIDPRMT | P & R N Whidbey GEN | 0.2004466701 | $475,188 | $475,188 | $95.25 | | |
| SCH201MO | School 201 Enrichment | 1.8559231640 | $475,188 | $475,188 | $881.91 | | |
| ST | State School | 1.3035497053 | $475,188 | $475,188 | $619.43 | | |
| ST2 | State School Part 2 | 0.8169543533 | $475,188 | $475,188 | $388.21 | | |
| | Total Tax Rate: | 8.4728839852 | | | | | |
| | | | | Taxes w/Current Exemptions: | $4,026.21 | | |
| | | | | Taxes w/o Exemptions: | $4,026.21 | | |
Improvement / Building
| Improvement #1: | RESIDENTIAL | State Code: | Y | 1852.0 sqft | Value: | $375,188 |
| Bathrooms: | 2 | Bedrooms: | 3 | | Ceiling: | DRYWALL PAINTED | Exterior Wall/Cover: | CEMENT FIBER | | Floor Covering: | CERAMIC TILE/HWD 40/60 | Floor Structure: | WOOD W/SUBFLOOR | | Foundation: | CONCRETE | Heating: | WALL HEAT ELECTRIC | | Interior Finish: | DRYWALL PAINT | Plumbing Fixture Cnt: | 9 | | Roof Slope: | FLAT | Roof Structure/Cover: | STEEL TERNE |
|
| | Type | Description | Class CD | Sub Class CD | Year Built | Area |
| | BAS | BASE/MAIN FLOOR | 4 | 0 | 1998 | 1594.0 |
| | DWN | DOWNSTAIRS LIVING AREA | 4 | 0 | 1998 | 258.0 |
| | OWR | OPEN WOOD PORCH W/STEPS/ROOF | 4 | 0 | 1998 | 224.0 |
| | oSPS | SPRINKLERS | 4 | 0 | 1998 | 0.0 |
| | OP4 | OPEN PORCH W/CEILING-ROOF | 4 | 0 | 1998 | 0.0 |
| | oELV | ELEVATOR | 4 | 0 | 1998 | 0.0 |
| | BGR | BASEMENT GARAGE | 4 | 0 | 1998 | 269.0 |
| | OP2 | OPEN PORCH W/STEPS | 4 | 0 | 1998 | 0.0 |
Sketch
Property Image
Land
| 1 | 61 | MULTIPLE RESIDENCES | 0.0000 | 2064.00 | 0.00 | 0.00 | 1.00 | $100,000 | $0 |
Roll Value History
| 2026 | N/A | N/A | N/A | N/A | N/A |
| 2025 | $375,188 | $100,000 | $0 | $475,188 | $475,188 |
| 2024 | $379,301 | $100,000 | $0 | $479,301 | $479,301 |
| 2023 | $375,188 | $100,000 | $0 | $475,188 | $475,188 |
| 2022 | $346,543 | $100,000 | $0 | $446,543 | $446,543 |
| 2021 | $322,435 | $95,000 | $0 | $417,435 | $417,435 |
| 2020 | $315,190 | $95,000 | $0 | $410,190 | $410,190 |
| 2019 | $243,034 | $140,000 | $0 | $383,034 | $383,034 |
| 2018 | $243,636 | $65,000 | $0 | $308,636 | $308,636 |
| 2017 | $200,501 | $31,992 | $0 | $232,493 | $232,493 |
| 2016 | $202,822 | $31,992 | $0 | $234,814 | $234,814 |
| 2015 | $205,142 | $31,992 | $0 | $237,134 | $237,134 |
| 2014 | $207,464 | $31,992 | $0 | $239,456 | $239,456 |
| 2013 | $209,784 | $31,992 | $0 | $241,776 | $241,776 |
| 2012 | $214,465 | $31,992 | $0 | $246,457 | $246,457 |
| 2011 | $214,465 | $31,992 | $0 | $246,457 | $246,457 |
| 2010 | $242,708 | $40,764 | $0 | $283,472 | $283,472 |
| 2009 | $253,097 | $51,600 | $0 | $304,697 | $304,697 |
| 2008 | $256,496 | $51,600 | $0 | $308,096 | $308,096 |
| 2007 | $260,007 | $51,600 | $0 | $311,607 | $311,607 |
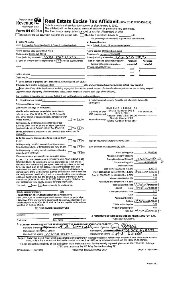
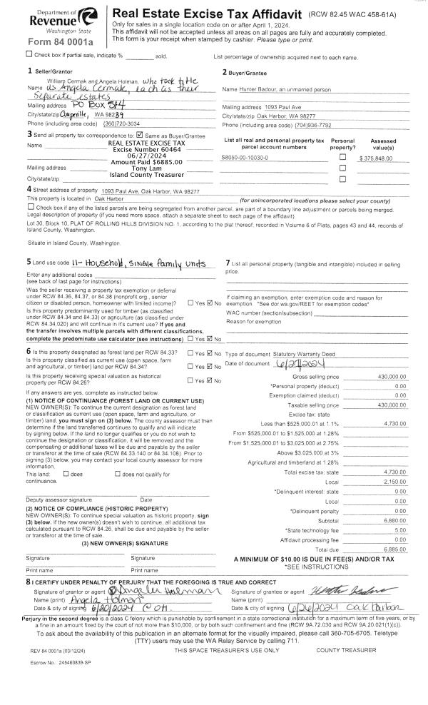
Deed and Sales History
| 1 | 04/15/2021 | QCD | Quit Claim Deed | DICKENS, JAMES ERNEST | DICKENS TTEE, J ERNEST | | | $0.00 | 47786 | 4516546 |
| 2 | 12/28/2011 | WD | Warranty Deed | SHELL, DENNIS W | DICKENS, JAMES ERNEST | | | $285,000.00 | 6574 | 4307721 |
| 3 | 05/01/2003 | WD | Warranty Deed | STEELE, ORMOND A | SHELL, DENNIS W | | | $244,000.00 | 32036 | 4059052 |
| 4 | 12/20/2000 | WD | Warranty Deed | DOUGLAS, JOEL & BARBARA | STEELE, ORMOND A | | | $218,000.00 | 10098 | 20023193 |
| 5 | 01/08/2000 | QCD | Quit Claim Deed | Unknown | DOUGLAS, JOEL & BARBARA | | | $0.00 | 0 | 0 |
Payout Agreement
| No payout information available.. |