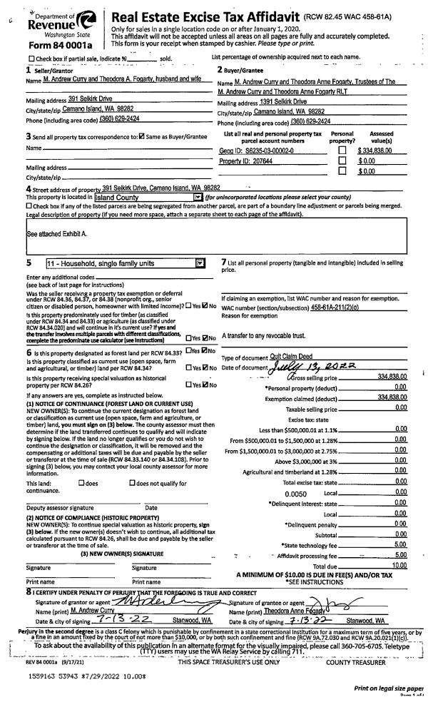
Property
Account |
| Property ID: | 800071 | Abbreviated Legal Description: | N/2 NE NW LY ELY OF CO RD EX NE NE NE NW ALSO EX BG SECR N/2 NE NW S89*W219 .57' N36*E85.86' N55*E208 .83'TO ELN NE NW S01*W186 .67'TPB ALSO EX N30'TO IS CO AF#154030 TGW BG NECR S/2 NE NW S89*W219.57'TPB S64*W345.30'TP LN 300'E OF & PARA/TO EAST CAMA |
| Geographic ID: | R33231-481-2180 | Agent Code: | |
| Type: | Real | | |
| Tax Area: | 592 - APPRAISER-Stan/Cam Schl Dist, Special Dist, improved, greater than 1 acre | Land Use Code | 53 |
| Open Space: | N | DFL | N |
| Historic Property: | N | Remodel Property: | N |
| Multi-Family Redevelopment: | N | | |
| Township: | 32 | Section: | 31 |
| Range: | R3 |
Location |
| Address: | 370 N EAST CAMANO DR CAMANO ISLAND, WA 98282 | Mapsco: | |
| Neighborhood: | 53cRR-necamano rd | Map ID: | 994 |
| Neighborhood CD: | 53cRRnecam |
Owner |
| Name: | MYERS FAMILY LTD PARTNERSHP | Owner ID: | 61522 |
| Mailing Address: | PO BOX 1170 CLINTON, WA 98236-1170 | % Ownership: | 100.0000000000% |
| | | Exemptions: | |
Taxes and Assessment Details
Values
| (+) Improvement Homesite Value: | + | $0 | |
| (+) Improvement Non-Homesite Value: | + | $5,395,623 | |
| (+) Land Homesite Value: | + | $0 | |
| (+) Land Non-Homesite Value: | + | $1,208,790 | |
| (+) Curr Use (HS): | + | $0 | $0 |
| (+) Curr Use (NHS): | + | $0 | $0 |
| | | -------------------------- | |
| (=) Market Value: | = | $6,604,413 | |
| (–) Productivity Loss: | – | $0 | |
| | | -------------------------- | |
| (=) Subtotal: | = | $6,604,413 | |
| (+) Senior Appraised Value: | + | $0 | |
| (+) Non-Senior Appraised Value: | + | $6,604,413 | |
| | | -------------------------- | |
| (=) Total Appraised Value: | = | $6,604,413 | |
| (–) Senior Exemption Loss: | – | $0 | |
| (–) Exemption Loss: | – | $0 | |
| | | -------------------------- | |
| (=) Taxable Value: | = | $6,604,413 | |
Taxing Jurisdiction
| Owner: | MYERS FAMILY LTD PARTNERSHP | | |
| % Ownership: | 100.0000000000% | | |
| Total Value: | $6,604,413 | | |
| Tax Area: | 592 - APPRAISER-Stan/Cam Schl Dist, Special Dist, improved, greater than 1 acre |
| CF | Conservation Futures | 0.0316035091 | $6,604,413 | $6,604,413 | $208.72 | | |
| EMS1 | Fire & Rescue Dist #1 Camano GEN (EMS) | 0.3677864386 | $6,604,413 | $6,604,413 | $2,429.01 | | |
| FIRE1 | Fire & Rescue Dist #1 Camano GEN | 1.2502910536 | $6,604,413 | $6,604,413 | $8,257.44 | | |
| FIRE1BOND | Fire & Rescue Dist #1 Camano BOND | 0.1570001679 | $6,604,413 | $6,604,413 | $1,036.89 | | |
| CE | County Current Expense | 0.3708482477 | $6,604,413 | $6,604,413 | $2,449.23 | | |
| CR | County Roads | 0.4584763726 | $6,604,413 | $6,604,413 | $3,027.97 | | |
| LCIB | Library Sno-Isle BOND (Camano Island) | 0.0396325772 | $6,604,413 | $6,604,413 | $261.75 | | |
| LIB | Library Sno-Isle GEN | 0.3153421757 | $6,604,413 | $6,604,413 | $2,082.65 | | |
| SCH205_401 | School 205-401 Enrichment | 1.2698420524 | $6,604,413 | $6,604,413 | $8,386.56 | | |
| SCH205BOND | School 205-401 BOND | 0.9396497583 | $6,604,413 | $6,604,413 | $6,205.84 | | |
| ST | State School | 1.3035497053 | $6,604,413 | $6,604,413 | $8,609.18 | | |
| ST2 | State School Part 2 | 0.8169543533 | $6,604,413 | $6,604,413 | $5,395.50 | | |
| | Total Tax Rate: | 7.3209764117 | | | | | |
| | | | | Taxes w/Current Exemptions: | $48,350.74 | | |
| | | | | Taxes w/o Exemptions: | $48,350.74 | | |
Improvement / Building
| Improvement #1: | COMMERCIAL | State Code: | F1 | 38908.8 sqft | Value: | $3,231,040 |
| Bathrooms: | 0 | Bedrooms: | 0 | | Ceiling: | SUSPENDED | Cooling: | PACKAGE HEAT & COOL | | Exterior Wall/Cover: | 8" CONC BLK/CON FRAM | Floor Covering: | VINYL TILE | | Floor Structure: | CONCRETE ON GROUND | Foundation: | PEIRS | | Interior Finish: | MARKET | Plumbing Fixture Cnt: | 1 | | Roof Structure/Cover: | BUILT-UP/OPEN WOOD |   |   |
|
| | Type | Description | Class CD | Sub Class CD | Year Built | Area |
| | BAS | BASE/MAIN FLOOR | 3 | 0 | 1992 | 38908.8 |
| | OP2 | OPEN PORCH W/STEPS | 3 | 0 | 1992 | 325.0 |
| | OP2 | OPEN PORCH W/STEPS | 3 | 0 | 1992 | 625.0 |
| | OP4 | OPEN PORCH W/CEILING-ROOF | 3 | 0 | 1992 | 1624.0 |
| | OP4 | OPEN PORCH W/CEILING-ROOF | 3 | 0 | 1992 | 792.0 |
| | UTY | STORAGE/UTILITY | 3 | 0 | 1992 | 400.0 |
| Improvement #2: | COMMERCIAL | State Code: | F1 | 9351.5 sqft | Value: | $910,451 |
| Bathrooms: | 0 | Bedrooms: | 0 | | Ceiling: | SUSPENDED | Exterior Wall/Cover: | STUCCO/WOOD FRAME | | Floor Covering: | VINYL TILE | Floor Structure: | CONCRETE ON GROUND | | Foundation: | PEIRS | Heating: | FHA ELECTRIC | | Interior Finish: | RETAIL | Plumbing Fixture Cnt: | 1 | | Roof Structure/Cover: | BUILT-UP/OPEN WOOD |   |   |
|
| | Type | Description | Class CD | Sub Class CD | Year Built | Area |
| | BAS | BASE/MAIN FLOOR | 3 | 0 | 1992 | 9351.5 |
| | OP4 | OPEN PORCH W/CEILING-ROOF | 3 | 0 | 1992 | 1600.8 |
| | OP1 | OPEN PORCH SLAB | 3 | 0 | 1992 | 1086.4 |
| | UTY | STORAGE/UTILITY | 3 | 0 | 1992 | 192.0 |
| Improvement #3: | COMMERCIAL | State Code: | F1 | 3505.3 sqft | Value: | $652,005 |
| Bathrooms: | 0 | Bedrooms: | 0 | | Ceiling: | DRYWALL PAINTED | Exterior Wall/Cover: | STUCCO/WOOD FRAME | | Floor Covering: | CARPET 100% | Floor Structure: | SLAB ON CONC JOIST | | Foundation: | SLAB | Heating: | RADIANT FLOOR | | Interior Finish: | OFFICE | Plumbing Fixture Cnt: | 1 | | Roof Structure/Cover: | TERNE OPEN JOIST |   |   |
|
| | Type | Description | Class CD | Sub Class CD | Year Built | Area |
| | BAS | BASE/MAIN FLOOR | 3 | 0 | 2007 | 2607.4 |
| | MZO | MEZZ OFFICE | 3 | 0 | 2007 | 897.9 |
| Improvement #4: | COMMERCIAL | State Code: | F1 | 1442.0 sqft | Value: | $352,127 |
| Bathrooms: | 0 | Bedrooms: | 0 | | Ceiling: | DRYWALL PAINTED | Exterior Wall/Cover: | HARDBD/WD OR ST STUD | | Floor Covering: | VINYL TILE | Floor Structure: | CONCRETE ON GROUND | | Foundation: | SLAB | Heating: | ZONED AC/HEAT | | Interior Finish: | CONVENIENCE STORE | Plumbing Fixture Cnt: | 1 | | Roof Structure/Cover: | COMP OPEN WOOD |   |   |
|
| | Type | Description | Class CD | Sub Class CD | Year Built | Area |
| | BAS | BASE/MAIN FLOOR | 3 | 0 | 1990 | 962.0 |
| | AGR | ATTACHED GARAGE | 3 | 0 | 1990 | 988.0 |
| | STG | STORAGE | 3 | 0 | 1990 | 480.0 |
| | OCP | OPEN CARPORT | 3 | 0 | 1990 | 2012.0 |
| Improvement #5: | COMMERCIAL | State Code: | F1 | 0.0 sqft | Value: | $250,000 |
Sketch
Property Image
Land
| 1 | 68 | COMMERCIAL RETAIL | 9.2500 | 402930.00 | 0.00 | 0.00 | 1.00 | $1,208,790 | $0 |
Roll Value History
| 2026 | N/A | N/A | N/A | N/A | N/A |
| 2025 | $5,395,623 | $1,208,790 | $0 | $6,604,413 | $6,604,413 |
| 2024 | $5,543,582 | $1,007,325 | $0 | $6,550,907 | $6,550,907 |
| 2023 | $5,752,794 | $805,860 | $0 | $6,558,654 | $6,558,654 |
| 2022 | $4,517,406 | $290,000 | $0 | $4,807,406 | $4,807,406 |
| 2021 | $3,958,009 | $220,000 | $0 | $4,178,009 | $4,178,009 |
| 2020 | $3,954,650 | $220,000 | $0 | $4,174,650 | $4,174,650 |
| 2019 | $3,966,339 | $220,000 | $0 | $4,186,339 | $4,186,339 |
| 2018 | $3,966,896 | $231,250 | $0 | $4,198,146 | $4,198,146 |
| 2017 | $3,968,005 | $462,500 | $0 | $4,430,505 | $4,430,505 |
| 2016 | $3,970,243 | $462,500 | $0 | $4,432,743 | $4,432,743 |
| 2015 | $4,061,460 | $783,372 | $0 | $4,844,832 | $4,844,832 |
| 2014 | $4,061,460 | $783,372 | $0 | $4,844,832 | $4,844,832 |
| 2013 | $4,061,460 | $783,372 | $0 | $4,844,832 | $4,844,832 |
| 2012 | $4,061,460 | $783,372 | $0 | $4,844,832 | $4,844,832 |
| 2011 | $4,061,460 | $783,372 | $0 | $4,844,832 | $4,844,832 |
| 2010 | $4,090,634 | $783,372 | $0 | $4,874,006 | $4,874,006 |
| 2009 | $4,393,085 | $783,372 | $0 | $5,176,457 | $5,176,457 |
| 2008 | $4,527,446 | $798,961 | $0 | $5,326,407 | $5,326,407 |
| 2007 | $4,480,295 | $823,752 | $0 | $5,304,047 | $5,304,047 |
Deed and Sales History
| 1 | 08/07/1998 | BLA | DNU - Boundary Line Adjustment | Unknown | MYERS FAMILY LTD PARTNERSHP, | | | $0.00 | 67963 | 98007248 |
Payout Agreement
| No payout information available.. |