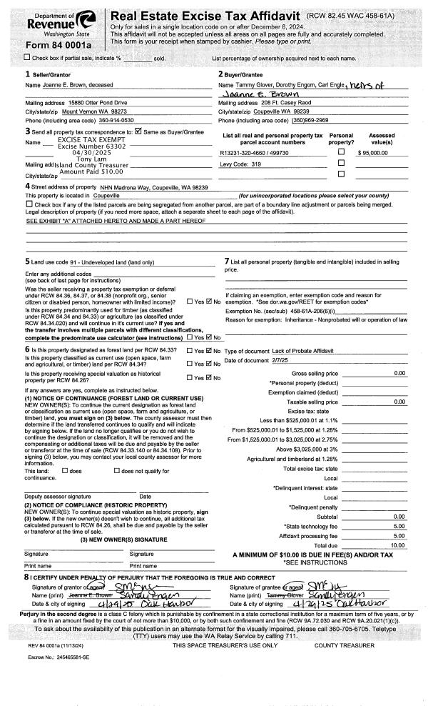
Property
Account |
| Property ID: | 800077 | Abbreviated Legal Description: | LOT 3 C-SP 97-01.13233.203-2150 V3 SP P198-9 AF#98004751 |
| Geographic ID: | R13233-207-2200 | Agent Code: | |
| Type: | Real | | |
| Tax Area: | 300 - APPRAISER-Cpvl Schl Dist, in Cpvl | Land Use Code | 11 |
| Open Space: | N | DFL | N |
| Historic Property: | N | Remodel Property: | N |
| Multi-Family Redevelopment: | N | | |
| Township: | 32 | Section: | 33 |
| Range: | R1 |
Location |
| Address: | 302 NW BROADWAY ST COUPEVILLE, WA 98239 | Mapsco: | |
| Neighborhood: | Area 2 Coupeville Non-Waterfront Residential | Map ID: | 172 |
| Neighborhood CD: | 2CPV02R |
Owner |
| Name: | SMITH, GLENN H | Owner ID: | 189691 |
| Mailing Address: | PAMELA J SMITH 302 NW BROADWAY ST COUPEVILLE, WA 98239 | % Ownership: | 100.0000000000% |
| | | Exemptions: | |
Taxes and Assessment Details
Values
| (+) Improvement Homesite Value: | + | $0 | |
| (+) Improvement Non-Homesite Value: | + | $517,500 | |
| (+) Land Homesite Value: | + | $0 | |
| (+) Land Non-Homesite Value: | + | $317,428 | |
| (+) Curr Use (HS): | + | $0 | $0 |
| (+) Curr Use (NHS): | + | $0 | $0 |
| | | -------------------------- | |
| (=) Market Value: | = | $834,928 | |
| (–) Productivity Loss: | – | $0 | |
| | | -------------------------- | |
| (=) Subtotal: | = | $834,928 | |
| (+) Senior Appraised Value: | + | $0 | |
| (+) Non-Senior Appraised Value: | + | $834,928 | |
| | | -------------------------- | |
| (=) Total Appraised Value: | = | $834,928 | |
| (–) Senior Exemption Loss: | – | $0 | |
| (–) Exemption Loss: | – | $0 | |
| | | -------------------------- | |
| (=) Taxable Value: | = | $834,928 | |
Taxing Jurisdiction
| Owner: | SMITH, GLENN H | | |
| % Ownership: | 100.0000000000% | | |
| Total Value: | $834,928 | | |
| Tax Area: | 300 - APPRAISER-Cpvl Schl Dist, in Cpvl |
| CF | Conservation Futures | 0.0316035091 | $834,928 | $834,928 | $26.39 | | |
| CEM2 | Cemetery #2 | 0.0095056933 | $834,928 | $834,928 | $7.94 | | |
| COUP | City: Town of Coupeville | 0.8426414490 | $834,928 | $834,928 | $703.54 | | |
| FIRE5 | Fire & Rescue Dist #5 C Whidbey GEN | 1.2008080668 | $834,928 | $834,928 | $1,002.59 | | |
| FIRE5BOND | Fire & Rescue Dist #5 C Whidbey BOND | 0.1400090713 | $834,928 | $834,928 | $116.90 | | |
| HOBOND | Hospital BOND | 0.1910887512 | $834,928 | $834,928 | $159.55 | | |
| HOGEN | Hospital GEN | 0.3902502903 | $834,928 | $834,928 | $325.83 | | |
| CE | County Current Expense | 0.3708482477 | $834,928 | $834,928 | $309.63 | | |
| ISLANDEMS | Hospital GEN (EMS) | 0.5000000000 | $834,928 | $834,928 | $417.46 | | |
| LIB | Library Sno-Isle GEN | 0.3153421757 | $834,928 | $834,928 | $263.29 | | |
| LIBCAP | Library Sno-Isle BOND (Cap Fac Imp Area) | 0.0543427938 | $834,928 | $834,928 | $45.37 | | |
| POCOUP | Port of Coupeville GEN | 0.1093371703 | $834,928 | $834,928 | $91.29 | | |
| POCOUPIDD | Port of Coupeville IDD | 0.3409740022 | $834,928 | $834,928 | $284.69 | | |
| COUPSDTECH | School 204 CP (TECH) | 0.7545480007 | $834,928 | $834,928 | $629.99 | | |
| SCH204MO | School 204 Enrichment | 0.6716186034 | $834,928 | $834,928 | $560.75 | | |
| ST | State School | 1.3035497053 | $834,928 | $834,928 | $1,088.37 | | |
| ST2 | State School Part 2 | 0.8169543533 | $834,928 | $834,928 | $682.10 | | |
| | Total Tax Rate: | 8.0434218834 | | | | | |
| | | | | Taxes w/Current Exemptions: | $6,715.68 | | |
| | | | | Taxes w/o Exemptions: | $6,715.68 | | |
Improvement / Building
| Improvement #1: | RESIDENTIAL | State Code: | Y | 2712.0 sqft | Value: | $517,500 |
| Bathrooms: | 2.5 | Bedrooms: | 2 | | Ceiling: | DRYWALL PAINTED | Cooling: | HEAT PUMP/CONV/V | | Exterior Wall/Cover: | WOOD SIDING | Floor Covering: | HARDWOOD/CARP 20-80 | | Floor Structure: | WOOD W/SUBFLOOR | Foundation: | CONCRETE | | Interior Finish: | DRYWALL PAINT | Plumbing Fixture Cnt: | 12 | | Roof Slope: | 3" IN 12" | Roof Structure/Cover: | CJ ASPHALT |
|
| | Type | Description | Class CD | Sub Class CD | Year Built | Area |
| | BAS | BASE/MAIN FLOOR | 4 | 0 | 1998 | 2088.0 |
| | UB8 | BASEMENT UNFINISHED 8" | 4 | 0 | 1998 | 547.0 |
| | OP2 | OPEN PORCH W/STEPS | 4 | 0 | 1998 | 33.0 |
| | DGR | DETACHED GARAGE | 4 | 0 | 1998 | 576.0 |
| | BIG | BUILT IN GARAGE | 4 | 0 | 1998 | 288.0 |
| | OWP | OPEN WOOD PORCH W/STEPS | 4 | 0 | 1998 | 720.0 |
| | OWP | OPEN WOOD PORCH W/STEPS | 4 | 0 | 1998 | 178.0 |
| | DWN | DOWNSTAIRS LIVING AREA | 4 | 0 | 1998 | 624.0 |
Sketch
| No sketches available for this property. |
Property Image
Land
| 1 | HS | HOMESITE | 0.5200 | 22651.20 | 0.00 | 0.00 | 1.00 | $317,428 | $0 |
Roll Value History
| 2026 | N/A | N/A | N/A | N/A | N/A |
| 2025 | $517,500 | $317,428 | $0 | $834,928 | $834,928 |
| 2024 | $524,828 | $300,000 | $0 | $824,828 | $824,828 |
| 2023 | $531,211 | $300,000 | $0 | $831,211 | $831,211 |
| 2022 | $486,800 | $240,000 | $0 | $726,800 | $726,800 |
| 2021 | $428,316 | $190,000 | $0 | $618,316 | $618,316 |
| 2020 | $417,315 | $170,000 | $0 | $587,315 | $587,315 |
| 2019 | $260,509 | $210,000 | $0 | $470,509 | $470,509 |
| 2018 | $254,745 | $190,000 | $0 | $444,745 | $444,745 |
| 2017 | $256,100 | $155,000 | $0 | $411,100 | $411,100 |
| 2016 | $259,291 | $135,000 | $0 | $394,291 | $394,291 |
| 2015 | $262,481 | $120,000 | $0 | $382,481 | $382,481 |
| 2014 | $265,670 | $120,000 | $0 | $385,670 | $385,670 |
| 2013 | $268,860 | $120,000 | $0 | $388,860 | $388,860 |
| 2012 | $270,447 | $140,250 | $0 | $410,697 | $410,697 |
| 2011 | $273,619 | $165,000 | $0 | $438,619 | $438,619 |
| 2010 | $285,420 | $165,000 | $0 | $450,420 | $450,420 |
| 2009 | $297,733 | $175,000 | $0 | $472,733 | $472,733 |
| 2008 | $301,430 | $201,250 | $0 | $502,680 | $502,680 |
| 2007 | $305,065 | $125,000 | $0 | $430,065 | $430,065 |
Deed and Sales History
| 1 | 02/25/2003 | WD | Warranty Deed | NADDY, LEW L | SMITH, GLENN H | | | $250,000.00 | 30816 | 4049537 |
| 2 | 01/01/1900 | OTHER | Other - Misc. Documents | Unknown | NADDY, LEW L | | | $0.00 | 0 | 0 |
Payout Agreement
| No payout information available.. |