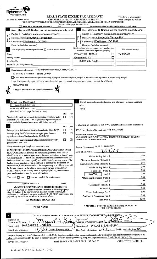
Property
Account |
| Property ID: | 800088 | Abbreviated Legal Description: | S/2 N/2 SE NE EX CO RD |
| Geographic ID: | R23026-347-4620 | Agent Code: | |
| Type: | Real | | |
| Tax Area: | 715 - S Whid Schl Dist, outside Langley, vacant, combined for Forest Protection | Land Use Code | 88 |
| Open Space: | N | DFL | Y |
| Historic Property: | N | Remodel Property: | N |
| Multi-Family Redevelopment: | N | | |
| Township: | 30 | Section: | 26 |
| Range: | R2 |
Location |
| Address: | FREELAND, WA 98249 | Mapsco: | |
| Neighborhood: | Cycle 3 | Map ID: | 418 |
| Neighborhood CD: | 3 |
Owner |
| Name: | FREI LLC | Owner ID: | 180513 |
| Mailing Address: | C/O FRED FREI JR PO BOX 1306 LANGLEY, WA 98260-1306 | % Ownership: | 100.0000000000% |
| | | Exemptions: | |
Taxes and Assessment Details
Values
| (+) Improvement Homesite Value: | + | $0 | |
| (+) Improvement Non-Homesite Value: | + | $0 | |
| (+) Land Homesite Value: | + | $0 | |
| (+) Land Non-Homesite Value: | + | $0 | |
| (+) Curr Use (HS): | + | $0 | $0 |
| (+) Curr Use (NHS): | + | $210,000 | $1,673 |
| | | -------------------------- | |
| (=) Market Value: | = | $210,000 | |
| (–) Productivity Loss: | – | $208,327 | |
| | | -------------------------- | |
| (=) Subtotal: | = | $1,673 | |
| (+) Senior Appraised Value: | + | $0 | |
| (+) Non-Senior Appraised Value: | + | $1,673 | |
| | | -------------------------- | |
| (=) Total Appraised Value: | = | $1,673 | |
| (–) Senior Exemption Loss: | – | $0 | |
| (–) Exemption Loss: | – | $0 | |
| | | -------------------------- | |
| (=) Taxable Value: | = | $1,673 | |
Taxing Jurisdiction
| Owner: | FREI LLC | | |
| % Ownership: | 100.0000000000% | | |
| Total Value: | $210,000 | | |
| Tax Area: | 715 - S Whid Schl Dist, outside Langley, vacant, combined for Forest Protection |
| CF | Conservation Futures | 0.0316035091 | $1,673 | $1,673 | $0.05 | | |
| HOBOND | Hospital BOND | 0.1910887512 | $1,673 | $1,673 | $0.32 | | |
| HOGEN | Hospital GEN | 0.3902502903 | $1,673 | $1,673 | $0.65 | | |
| CE | County Current Expense | 0.3708482477 | $1,673 | $1,673 | $0.62 | | |
| CR | County Roads | 0.4584763726 | $1,673 | $1,673 | $0.77 | | |
| ISLANDEMS | Hospital GEN (EMS) | 0.5000000000 | $1,673 | $1,673 | $0.84 | | |
| LIB | Library Sno-Isle GEN | 0.3153421757 | $1,673 | $1,673 | $0.53 | | |
| PORTWHID | Port of S Whidbey GEN | 0.1094540357 | $1,673 | $1,673 | $0.18 | | |
| SCH206BOND | School 206 BOND | 0.3161759235 | $1,673 | $1,673 | $0.53 | | |
| SCH206MO | School 206 Enrichment | 0.4547169547 | $1,673 | $1,673 | $0.76 | | |
| ST | State School | 1.3035497053 | $1,673 | $1,673 | $2.18 | | |
| ST2 | State School Part 2 | 0.8169543533 | $1,673 | $1,673 | $1.37 | | |
| SWHIDPRBD | P & R S Whidbey BOND | 0.0152817568 | $1,673 | $1,673 | $0.03 | | |
| SWHIDPRBD2 | P & R S Whidbey BOND2 | 0.0138911264 | $1,673 | $1,673 | $0.02 | | |
| SWHIDPRMT | P & R S Whidbey GEN | 0.2053334452 | $1,673 | $1,673 | $0.34 | | |
| | Total Tax Rate: | 5.4929666475 | | | | | |
| | | | | Taxes w/Current Exemptions: | $9.19 | | |
| | | | | Taxes w/o Exemptions: | $9.19 | | |
Improvement / Building
Sketch
| No sketches available for this property. |
Property Image
Land
| 1 | 88 | DESIGNATED FOREST | 5.5500 | 241758.00 | 0.00 | 0.00 | 1.00 | $118,325 | $1,032 |
| 2 | 88 | DESIGNATED FOREST | 4.3000 | 187308.00 | 0.00 | 0.00 | 1.00 | $91,675 | $641 |
Roll Value History
| 2026 | N/A | N/A | N/A | N/A | N/A |
| 2025 | $0 | $210,000 | $1,673 | $1,673 | $1,673 |
| 2024 | $0 | $200,000 | $1,683 | $1,683 | $1,683 |
| 2023 | $0 | $180,000 | $1,612 | $1,612 | $1,612 |
| 2022 | $0 | $170,000 | $1,612 | $1,612 | $1,612 |
| 2021 | $0 | $135,000 | $1,612 | $1,612 | $1,612 |
| 2020 | $0 | $130,000 | $1,612 | $1,612 | $1,612 |
| 2019 | $0 | $130,000 | $1,558 | $1,558 | $1,558 |
| 2018 | $0 | $130,000 | $1,538 | $1,538 | $1,538 |
| 2017 | $0 | $130,000 | $1,538 | $1,538 | $1,538 |
| 2016 | $0 | $130,000 | $995 | $995 | $995 |
| 2015 | $0 | $130,000 | $995 | $995 | $995 |
| 2014 | $0 | $97,963 | $995 | $995 | $995 |
| 2013 | $0 | $97,963 | $995 | $995 | $995 |
| 2012 | $0 | $97,963 | $995 | $995 | $995 |
| 2011 | $0 | $115,250 | $995 | $995 | $995 |
| 2010 | $0 | $128,050 | $995 | $995 | $995 |
| 2009 | $0 | $197,000 | $995 | $995 | $995 |
| 2008 | $0 | $167,450 | $995 | $995 | $995 |
| 2007 | $0 | $93,575 | $995 | $995 | $995 |
Deed and Sales History
| 1 | 07/08/1999 | QCD | Quit Claim Deed | FREI, FRED E | FREI LLC, | | | $0.00 | 92699 | 99016071 |
| 2 | 08/17/1998 | SEG | DNU - Segregation | Unknown | FREI, FRED E | | | $0.00 | 67977 | 98005266 |
Payout Agreement
| No payout information available.. |