Property
Account |
| Property ID: | 800117 | Abbreviated Legal Description: | LOT 2 SP 472-97.33218.183-3670 V3 SP P210 AF#98012781 |
| Geographic ID: | R33218-159-3720 | Agent Code: | |
| Type: | Real | | |
| Tax Area: | 512 - APPRAISER-Stan/Cam Schl Dist, improved, greater than 1 acre | Land Use Code | 11 |
| Open Space: | N | DFL | N |
| Historic Property: | N | Remodel Property: | N |
| Multi-Family Redevelopment: | N | | |
| Township: | 32 | Section: | 18 |
| Range: | R3 |
Location |
| Address: | 333 RAVENSWOOD LN CAMANO ISLAND, WA 98282 | Mapsco: | |
| Neighborhood: | North Camano | Map ID: | 958 |
| Neighborhood CD: | 06-C |
Owner |
| Name: | UPP TTEE, RONALD JOSEPH | Owner ID: | 298513 |
| Mailing Address: | AUDREY LEE-UPP TTEE 333 RAVENSWOOD LN CAMANO ISLAND, WA 98282 | % Ownership: | 100.0000000000% |
| | | Exemptions: | |
Taxes and Assessment Details
Values
| (+) Improvement Homesite Value: | + | $0 | |
| (+) Improvement Non-Homesite Value: | + | $961,208 | |
| (+) Land Homesite Value: | + | $0 | |
| (+) Land Non-Homesite Value: | + | $470,000 | |
| (+) Curr Use (HS): | + | $0 | $0 |
| (+) Curr Use (NHS): | + | $0 | $0 |
| | | -------------------------- | |
| (=) Market Value: | = | $1,431,208 | |
| (–) Productivity Loss: | – | $0 | |
| | | -------------------------- | |
| (=) Subtotal: | = | $1,431,208 | |
| (+) Senior Appraised Value: | + | $0 | |
| (+) Non-Senior Appraised Value: | + | $1,431,208 | |
| | | -------------------------- | |
| (=) Total Appraised Value: | = | $1,431,208 | |
| (–) Senior Exemption Loss: | – | $0 | |
| (–) Exemption Loss: | – | $0 | |
| | | -------------------------- | |
| (=) Taxable Value: | = | $1,431,208 | |
Taxing Jurisdiction
| Owner: | UPP TTEE, RONALD JOSEPH | | |
| % Ownership: | 100.0000000000% | | |
| Total Value: | $1,431,208 | | |
| Tax Area: | 512 - APPRAISER-Stan/Cam Schl Dist, improved, greater than 1 acre |
| CF | Conservation Futures | 0.0316035091 | $1,431,208 | $1,431,208 | $45.23 | | |
| EMS1 | Fire & Rescue Dist #1 Camano GEN (EMS) | 0.3677864386 | $1,431,208 | $1,431,208 | $526.38 | | |
| FIRE1 | Fire & Rescue Dist #1 Camano GEN | 1.2502910536 | $1,431,208 | $1,431,208 | $1,789.43 | | |
| FIRE1BOND | Fire & Rescue Dist #1 Camano BOND | 0.1570001679 | $1,431,208 | $1,431,208 | $224.70 | | |
| CE | County Current Expense | 0.3708482477 | $1,431,208 | $1,431,208 | $530.76 | | |
| CR | County Roads | 0.4584763726 | $1,431,208 | $1,431,208 | $656.18 | | |
| LCIB | Library Sno-Isle BOND (Camano Island) | 0.0396325772 | $1,431,208 | $1,431,208 | $56.72 | | |
| LIB | Library Sno-Isle GEN | 0.3153421757 | $1,431,208 | $1,431,208 | $451.32 | | |
| SCH205_401 | School 205-401 Enrichment | 1.2698420524 | $1,431,208 | $1,431,208 | $1,817.41 | | |
| SCH205BOND | School 205-401 BOND | 0.9396497583 | $1,431,208 | $1,431,208 | $1,344.83 | | |
| ST | State School | 1.3035497053 | $1,431,208 | $1,431,208 | $1,865.65 | | |
| ST2 | State School Part 2 | 0.8169543533 | $1,431,208 | $1,431,208 | $1,169.23 | | |
| | Total Tax Rate: | 7.3209764117 | | | | | |
| | | | | Taxes w/Current Exemptions: | $10,477.84 | | |
| | | | | Taxes w/o Exemptions: | $10,477.84 | | |
Improvement / Building
| Improvement #1: | RESIDENTIAL | State Code: | Y | 2595.0 sqft | Value: | $616,371 |
| Bathrooms: | 2.5 | Bedrooms: | 3 | | Ceiling: | DRYWALL PAINTED | Exterior Wall/Cover: | CEMENT FIBER | | Floor Covering: | HARDWOOD/CARP 60-40 | Floor Structure: | WOOD W/SUBFLOOR | | Foundation: | CONCRETE | Heating: | FHA GAS | | Interior Finish: | DRYWALL PAINT | Plumbing Fixture Cnt: | 13 | | Roof Slope: | 6" IN 12" | Roof Structure/Cover: | CJ ASPHALT |
|
| | Type | Description | Class CD | Sub Class CD | Year Built | Area |
| | BAS | BASE/MAIN FLOOR | 4 | 0 | 1999 | 1548.0 |
| | AGR | ATTACHED GARAGE | 4 | 0 | 1999 | 528.0 |
| | UPS | UPPER STORY | 4 | 0 | 1999 | 1047.0 |
| | OWP | OPEN WOOD PORCH W/STEPS | 4 | 0 | 1999 | 39.4 |
| | OWC | OPEN WOOD PORCH W/STEPS/ROOF/C | 4 | 0 | 1999 | 262.0 |
| | OWC | OPEN WOOD PORCH W/STEPS/ROOF/C | 4 | 0 | 1999 | 180.7 |
| | oPOL | POLE BARN | 4 | 0 | 1999 | 1768.0 |
| | ENP | ENCLOSED PORCH | 4 | 0 | 1999 | 200.0 |
| Improvement #2: | RESIDENTIAL | State Code: | Y | 1704.0 sqft | Value: | $344,837 |
| Bathrooms: | 2 | Bedrooms: | 2 | | Ceiling: | DRYWALL PAINTED | Exterior Wall/Cover: | CEMENT FIBER | | Floor Covering: | CARPET 100% | Floor Structure: | WOOD W/SUBFLOOR | | Foundation: | CONCRETE | Heating: | FHA GAS | | Interior Finish: | DRYWALL PAINT | Plumbing Fixture Cnt: | 9 | | Roof Slope: | 8" IN 12" | Roof Structure/Cover: | CJ ASPHALT |
|
| | Type | Description | Class CD | Sub Class CD | Year Built | Area |
| | BAS | BASE/MAIN FLOOR | 3 | 0 | 2010 | 728.0 |
| | OWP | OPEN WOOD PORCH W/STEPS | 3 | 0 | 2010 | 216.0 |
| | UPH | HALF STORY | 3 | 0 | 2010 | 976.0 |
| | AGR | ATTACHED GARAGE | 3 | 0 | 2010 | 364.0 |
| | BGR | BASEMENT GARAGE | 3 | 0 | 2010 | 1456.0 |
| | OWC | OPEN WOOD PORCH W/STEPS/ROOF/C | 3 | 0 | 2010 | 36.0 |
Sketch
Property Image
Land
| 1 | 32 | AC (03.01-09.99) | 0.0000 | 0.00 | 0.00 | 0.00 | 1.00 | $470,000 | $0 |
Roll Value History
| 2026 | N/A | N/A | N/A | N/A | N/A |
| 2025 | $961,208 | $470,000 | $0 | $1,431,208 | $1,431,208 |
| 2024 | $961,079 | $470,000 | $0 | $1,431,079 | $1,431,079 |
| 2023 | $845,923 | $460,000 | $0 | $1,305,923 | $1,305,923 |
| 2022 | $775,241 | $400,000 | $0 | $1,175,241 | $1,175,241 |
| 2021 | $682,168 | $290,000 | $0 | $972,168 | $972,168 |
| 2020 | $589,061 | $240,000 | $0 | $829,061 | $829,061 |
| 2019 | $409,377 | $300,000 | $0 | $709,377 | $709,377 |
| 2018 | $453,594 | $250,000 | $0 | $703,594 | $703,594 |
| 2017 | $456,137 | $200,000 | $0 | $656,137 | $656,137 |
| 2016 | $453,805 | $180,000 | $0 | $633,805 | $633,805 |
| 2015 | $458,907 | $258,750 | $0 | $717,657 | $717,657 |
| 2014 | $422,322 | $258,750 | $0 | $681,072 | $681,072 |
| 2013 | $416,575 | $100,000 | $0 | $516,575 | $516,575 |
| 2012 | $444,510 | $100,000 | $0 | $544,510 | $544,510 |
| 2011 | $450,613 | $125,000 | $0 | $575,613 | $575,613 |
| 2010 | $326,336 | $125,000 | $0 | $451,336 | $451,336 |
| 2009 | $327,171 | $150,000 | $0 | $477,171 | $477,171 |
| 2008 | $331,419 | $150,069 | $0 | $481,488 | $481,488 |
| 2007 | $335,583 | $150,069 | $0 | $485,652 | $485,652 |
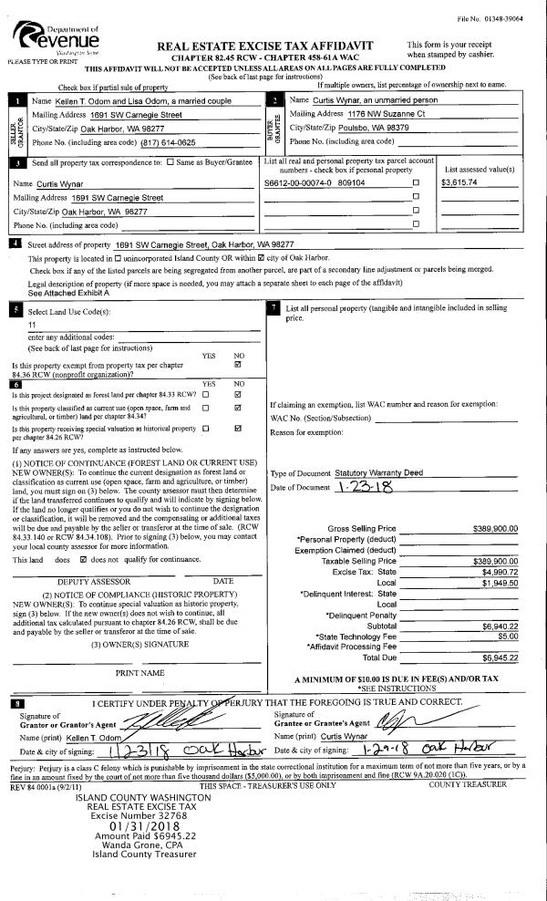
Deed and Sales History
| 1 | 03/05/2021 | QCD | Quit Claim Deed | LEE-UPP, AUDREY | UPP TTEE, RONALD JOSEPH | | | $0.00 | 47364 | 4513702 |
| 2 | 02/12/2018 | WD | Warranty Deed | WRIGHT, ROBIN LEE | LEE-UPP, AUDREY | | | $687,000.00 | 32987 | 4439400 |
| 3 | 05/05/2017 | QCD | Quit Claim Deed | WRIGHT, KRISTIAN E | WRIGHT, ROBIN LEE | | | $0.00 | 29583 | 4423657 |
| 4 | 06/23/2005 | WD | Warranty Deed | MILLER, JAMES JG | WRIGHT, KRISTIAN E | | | $436,560.00 | 52991 | 4138916 |
| 5 | 10/12/1998 | WD | Warranty Deed | Unknown | MILLER, JAMES JG | | | $111,000.00 | 84125 | 98022288 |
Payout Agreement
| No payout information available.. |