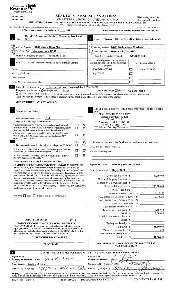
Property
Account |
| Property ID: | 800135 | Abbreviated Legal Description: | W/2 S/2 S/2 SW SW EX W30' FOR RD |
| Geographic ID: | R32911-044-0330 | Agent Code: | |
| Type: | Real | | |
| Tax Area: | 712 - APPRAISER-S Whid Schl Dist, outside Langley, improved, greater than 1 acre | Land Use Code | 11 |
| Open Space: | N | DFL | N |
| Historic Property: | N | Remodel Property: | N |
| Multi-Family Redevelopment: | N | | |
| Township: | 29 | Section: | 11 |
| Range: | R3 |
Location |
| Address: | 5577 LANGLEY RD LANGLEY, WA 98260 | Mapsco: | |
| Neighborhood: | Cycle 4 | Map ID: | 758 |
| Neighborhood CD: | 4 |
Owner |
| Name: | ROVINSKI, KATHERINE MARY | Owner ID: | 275513 |
| Mailing Address: | 3114 SW HOLDEN ST SEATTLE, WA 98125-3589 | % Ownership: | 100.0000000000% |
| | | Exemptions: | |
Taxes and Assessment Details
Values
| (+) Improvement Homesite Value: | + | $0 | |
| (+) Improvement Non-Homesite Value: | + | $267,476 | |
| (+) Land Homesite Value: | + | $0 | |
| (+) Land Non-Homesite Value: | + | $370,000 | |
| (+) Curr Use (HS): | + | $0 | $0 |
| (+) Curr Use (NHS): | + | $0 | $0 |
| | | -------------------------- | |
| (=) Market Value: | = | $637,476 | |
| (–) Productivity Loss: | – | $0 | |
| | | -------------------------- | |
| (=) Subtotal: | = | $637,476 | |
| (+) Senior Appraised Value: | + | $0 | |
| (+) Non-Senior Appraised Value: | + | $637,476 | |
| | | -------------------------- | |
| (=) Total Appraised Value: | = | $637,476 | |
| (–) Senior Exemption Loss: | – | $0 | |
| (–) Exemption Loss: | – | $0 | |
| | | -------------------------- | |
| (=) Taxable Value: | = | $637,476 | |
Taxing Jurisdiction
| Owner: | ROVINSKI, KATHERINE MARY | | |
| % Ownership: | 100.0000000000% | | |
| Total Value: | $637,476 | | |
| Tax Area: | 712 - APPRAISER-S Whid Schl Dist, outside Langley, improved, greater than 1 acre |
| CF | Conservation Futures | 0.0316035091 | $637,476 | $637,476 | $20.15 | | |
| FIRE3 | Fire & Rescue Dist #3 S Whidbey GEN | 1.2004855531 | $637,476 | $637,476 | $765.28 | | |
| HOBOND | Hospital BOND | 0.1910887512 | $637,476 | $637,476 | $121.81 | | |
| HOGEN | Hospital GEN | 0.3902502903 | $637,476 | $637,476 | $248.78 | | |
| CE | County Current Expense | 0.3708482477 | $637,476 | $637,476 | $236.41 | | |
| CR | County Roads | 0.4584763726 | $637,476 | $637,476 | $292.27 | | |
| ISLANDEMS | Hospital GEN (EMS) | 0.5000000000 | $637,476 | $637,476 | $318.74 | | |
| LIB | Library Sno-Isle GEN | 0.3153421757 | $637,476 | $637,476 | $201.02 | | |
| PORTWHID | Port of S Whidbey GEN | 0.1094540357 | $637,476 | $637,476 | $69.77 | | |
| SCH206BOND | School 206 BOND | 0.3161759235 | $637,476 | $637,476 | $201.55 | | |
| SCH206MO | School 206 Enrichment | 0.4547169547 | $637,476 | $637,476 | $289.87 | | |
| ST | State School | 1.3035497053 | $637,476 | $637,476 | $830.98 | | |
| ST2 | State School Part 2 | 0.8169543533 | $637,476 | $637,476 | $520.79 | | |
| SWHIDPRBD | P & R S Whidbey BOND | 0.0152817568 | $637,476 | $637,476 | $9.74 | | |
| SWHIDPRBD2 | P & R S Whidbey BOND2 | 0.0138911264 | $637,476 | $637,476 | $8.86 | | |
| SWHIDPRMT | P & R S Whidbey GEN | 0.2053334452 | $637,476 | $637,476 | $130.90 | | |
| | Total Tax Rate: | 6.6934522006 | | | | | |
| | | | | Taxes w/Current Exemptions: | $4,266.92 | | |
| | | | | Taxes w/o Exemptions: | $4,266.92 | | |
Improvement / Building
| Improvement #1: | RESIDENTIAL | State Code: | Y | 1398.0 sqft | Value: | $267,476 |
| Bathrooms: | 2 | Bedrooms: | 3 | | Ceiling: | DRYWALL PAINTED | Exterior Wall/Cover: | WOOD SIDING | | Floor Covering: | HARDWOOD/CARP 60-40 | Floor Structure: | WOOD W/SUBFLOOR | | Foundation: | CONCRETE | Heating: | FHA GAS | | Interior Finish: | DRYWALL PAINT | Plumbing Fixture Cnt: | 9 | | Roof Slope: | 12" IN 12" | Roof Structure/Cover: | CJ ASPHALT |
|
| | Type | Description | Class CD | Sub Class CD | Year Built | Area |
| | BAS | BASE/MAIN FLOOR | 3 | 0 | 1995 | 886.0 |
| | UPS | UPPER STORY | 3 | 0 | 1995 | 512.0 |
| | BAW | BALCONY WOOD RAIL | 3 | 0 | 1995 | 45.0 |
| | BAW | BALCONY WOOD RAIL | 3 | 0 | 1995 | 40.0 |
| | OWR | OPEN WOOD PORCH W/STEPS/ROOF | 3 | 0 | 1995 | 211.8 |
| | OWR | OPEN WOOD PORCH W/STEPS/ROOF | 3 | 0 | 1995 | 60.0 |
| | UTY | STORAGE/UTILITY | 3 | 0 | 1995 | 0.0 |
Sketch
Property Image
Land
| 1 | 32 | AC (03.01-09.99) | 4.5400 | 0.00 | 0.00 | 0.00 | 1.00 | $370,000 | $0 |
Roll Value History
| 2026 | N/A | N/A | N/A | N/A | N/A |
| 2025 | $267,476 | $370,000 | $0 | $637,476 | $637,476 |
| 2024 | $270,817 | $350,000 | $0 | $620,817 | $620,817 |
| 2023 | $274,160 | $330,000 | $0 | $604,160 | $604,160 |
| 2022 | $251,528 | $280,000 | $0 | $531,528 | $531,528 |
| 2021 | $221,683 | $230,000 | $0 | $451,683 | $451,683 |
| 2020 | $211,034 | $190,000 | $0 | $401,034 | $401,034 |
| 2019 | $153,824 | $250,000 | $0 | $403,824 | $403,824 |
| 2018 | $154,278 | $210,000 | $0 | $364,278 | $364,278 |
| 2017 | $155,186 | $190,000 | $0 | $345,186 | $345,186 |
| 2016 | $136,729 | $165,000 | $0 | $301,729 | $301,729 |
| 2015 | $138,450 | $135,000 | $0 | $273,450 | $273,450 |
| 2014 | $146,524 | $122,580 | $0 | $269,104 | $269,104 |
| 2013 | $148,308 | $122,580 | $0 | $270,888 | $270,888 |
| 2012 | $150,091 | $122,580 | $0 | $272,671 | $272,671 |
| 2011 | $151,874 | $122,580 | $0 | $274,454 | $274,454 |
| 2010 | $159,343 | $122,580 | $0 | $281,923 | $281,923 |
| 2009 | $166,205 | $199,760 | $0 | $365,965 | $365,965 |
| 2008 | $165,530 | $245,160 | $0 | $410,690 | $410,690 |
| 2007 | $167,527 | $245,160 | $0 | $412,687 | $412,687 |
Deed and Sales History
| 1 | 06/06/2016 | WD | Warranty Deed | LEWIS, CRAIG D | ROVINSKI, KATHERINE MARY | | | $360,000.00 | 24633 | 4400614 |
| 2 | 03/31/2010 | 5 | DNU - Marriage License/Name Change | ZWOLINSKI, EUGENE A | LEWIS, CRAIG D | | | $0.00 | 854 | 4272091 |
| 3 | 08/28/1998 | BLA | DNU - Boundary Line Adjustment | LEWIS, CRAIG D | ZWOLINSKI, EUGENE A | | | $0.00 | 67995 | 98011275 |
| 4 | 08/01/1998 | WD | Warranty Deed | Unknown | LEWIS, CRAIG D | | | $193,000.00 | 83121 | 98016346 |
Payout Agreement
| No payout information available.. |