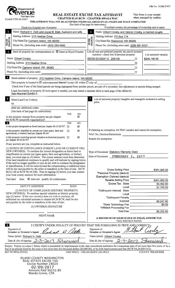
Property
Account |
| Property ID: | 800243 | Abbreviated Legal Description: | N/2 S/2 NE SE LY W OF HOLST RD & LY S OF DEER LAKE RD TGW PT OF E60' GL6 LY S OF DEER LAKE RD & LY N OF SLN OF N/2 S/2 NE SE PROJ WLY TO WLN SD E60' OF GL6 & S/2 S/2 NE SE LY W OF HOLST RD TGW PT OF E60' GL6 LY S OF SLN OF N/2 S/2 NE SE PROJ WLY TO WLN |
| Geographic ID: | R32926-161-4000 | Agent Code: | |
| Type: | Real | | |
| Tax Area: | 712 - APPRAISER-S Whid Schl Dist, outside Langley, improved, greater than 1 acre | Land Use Code | 11 |
| Open Space: | N | DFL | N |
| Historic Property: | N | Remodel Property: | N |
| Multi-Family Redevelopment: | N | | |
| Township: | 29 | Section: | 26 |
| Range: | R3 |
Location |
| Address: | 6650 HOLST RD CLINTON, WA 98236 | Mapsco: | |
| Neighborhood: | Cycle 4 | Map ID: | 817 |
| Neighborhood CD: | 4 |
Owner |
| Name: | ELLIOTT, SCOTT D | Owner ID: | 278467 |
| Mailing Address: | BARBARA L ELLIOTT 6650 HOLST RD CLINTON, WA 98236 | % Ownership: | 100.0000000000% |
| | | Exemptions: | SNR/DSBL |
Taxes and Assessment Details
Values
| (+) Improvement Homesite Value: | + | $172,673 | |
| (+) Improvement Non-Homesite Value: | + | $0 | |
| (+) Land Homesite Value: | + | $260,000 | |
| (+) Land Non-Homesite Value: | + | $0 | |
| (+) Curr Use (HS): | + | $0 | $0 |
| (+) Curr Use (NHS): | + | $0 | $0 |
| | | -------------------------- | |
| (=) Market Value: | = | $432,673 | |
| (–) Productivity Loss: | – | $0 | |
| | | -------------------------- | |
| (=) Subtotal: | = | $432,673 | |
| (+) Senior Appraised Value: | + | $220,564 | |
| (+) Non-Senior Appraised Value: | + | $0 | |
| | | -------------------------- | |
| (=) Total Appraised Value: | = | $220,564 | |
| (–) Senior Exemption Loss: | – | $0 | |
| (–) Exemption Loss: | – | $0 | |
| | | -------------------------- | |
| (=) Taxable Value: | = | $220,564 | |
Taxing Jurisdiction
| Owner: | ELLIOTT, SCOTT D | | |
| % Ownership: | 100.0000000000% | | |
| Total Value: | $432,673 | | |
| Tax Area: | 712 - APPRAISER-S Whid Schl Dist, outside Langley, improved, greater than 1 acre |
| CF | Conservation Futures | 0.0316035091 | $432,673 | $220,564 | $6.97 | | |
| FIRE3 | Fire & Rescue Dist #3 S Whidbey GEN | 1.2004855531 | $432,673 | $220,564 | $264.78 | | |
| HOBOND | Hospital BOND | 0.0000000000 | $432,673 | $0 | $0.00 | | |
| HOGEN | Hospital GEN | 0.3902502903 | $432,673 | $220,564 | $86.08 | | |
| CE | County Current Expense | 0.3708482477 | $432,673 | $220,564 | $81.80 | | |
| CR | County Roads | 0.4584763726 | $432,673 | $220,564 | $101.12 | | |
| ISLANDEMS | Hospital GEN (EMS) | 0.5000000000 | $432,673 | $220,564 | $110.28 | | |
| LIB | Library Sno-Isle GEN | 0.3153421757 | $432,673 | $220,564 | $69.55 | | |
| PORTWHID | Port of S Whidbey GEN | 0.1094540357 | $432,673 | $220,564 | $24.14 | | |
| SCH206BOND | School 206 BOND | 0.3161759235 | $432,673 | $220,564 | $69.74 | | |
| SCH206MO | School 206 Enrichment | 0.0000000000 | $432,673 | $0 | $0.00 | | |
| ST | State School | 1.3035497053 | $432,673 | $220,564 | $287.52 | | |
| ST2 | State School Part 2 | 0.0000000000 | $432,673 | $0 | $0.00 | | |
| SWHIDPRBD | P & R S Whidbey BOND | 0.0000000000 | $432,673 | $0 | $0.00 | | |
| SWHIDPRBD2 | P & R S Whidbey BOND2 | 0.0000000000 | $432,673 | $0 | $0.00 | | |
| SWHIDPRMT | P & R S Whidbey GEN | 0.2053334452 | $432,673 | $220,564 | $45.29 | | |
| | Total Tax Rate: | 5.2015192582 | | | | | |
| | | | | Taxes w/Current Exemptions: | $1,147.27 | | |
| | | | | Taxes w/o Exemptions: | $2,896.07 | | |
Improvement / Building
| Improvement #1: | MANUFACTURED HOME | State Code: | Y | 1766.4 sqft | Value: | $172,673 |
| Bathrooms: | 0 | Bedrooms: | 0 | | Ceiling: | PLASTER PAINTED | Cooling: | EVAP NO DUCT | | Exterior Wall/Cover: | VINYL | Floor Covering: | CARPET 100% | | Floor Structure: | SLAB ON GRADE | Foundation: | SLAB | | Heating: | FHA ELECTRIC | Interior Finish: | PLASTER | | Plumbing Fixture Cnt: | 1 | Roof Slope: | FLAT | | Roof Structure/Cover: | CJ ALUMINIUM HEAVY |   |   |
|
| | Type | Description | Class CD | Sub Class CD | Year Built | Area |
| | BAS | BASE/MAIN FLOOR | 4 | 0 | 1999 | 1766.4 |
| | UTY | STORAGE/UTILITY | 3 | 0 | 1999 | 864.0 |
| | OP3 | OPEN PORCH W/ROOF | 3 | 0 | 1999 | 176.0 |
Sketch
| No sketches available for this property. |
Property Image
Land
| 1 | 18 | AC (02.01-03.00) | 2.1700 | 94525.20 | 0.00 | 0.00 | 1.00 | $260,000 | $0 |
Roll Value History
| 2026 | N/A | N/A | N/A | N/A | N/A |
| 2025 | $172,673 | $260,000 | $0 | $432,673 | $220,564 |
| 2024 | $177,277 | $250,000 | $0 | $427,277 | $220,564 |
| 2023 | $158,164 | $240,000 | $0 | $398,164 | $88,226 |
| 2022 | $146,824 | $240,000 | $0 | $386,824 | $220,564 |
| 2021 | $130,833 | $160,000 | $0 | $290,833 | $220,564 |
| 2020 | $85,564 | $135,000 | $0 | $220,564 | $220,564 |
| 2019 | $69,105 | $135,000 | $0 | $204,105 | $204,105 |
| 2018 | $70,811 | $135,000 | $0 | $205,811 | $205,811 |
| 2017 | $72,518 | $125,000 | $0 | $197,518 | $197,518 |
| 2016 | $73,205 | $115,000 | $0 | $188,205 | $188,205 |
| 2015 | $74,965 | $100,000 | $0 | $174,965 | $174,965 |
| 2014 | $76,725 | $100,000 | $0 | $176,725 | $176,725 |
| 2013 | $84,387 | $85,000 | $0 | $169,387 | $169,387 |
| 2012 | $86,147 | $125,000 | $0 | $211,147 | $211,147 |
| 2011 | $87,907 | $125,000 | $0 | $212,907 | $212,907 |
| 2010 | $85,460 | $125,000 | $0 | $210,460 | $210,460 |
| 2009 | $89,046 | $140,000 | $0 | $229,046 | $229,046 |
| 2008 | $86,503 | $135,000 | $0 | $221,503 | $221,503 |
| 2007 | $78,266 | $145,351 | $0 | $223,617 | $223,617 |
Deed and Sales History
| 1 | 02/03/2017 | WD | Warranty Deed | PRATT, WADE A | ELLIOTT, SCOTT D | | | $252,000.00 | 28010 | 4416707 |
| 2 | 09/09/2005 | WD | Warranty Deed | VALENTINE, JULIE ANN | PRATT, WADE A | | | $225,000.00 | 54567 | 4147398 |
| 3 | 10/16/1998 | BLA | DNU - Boundary Line Adjustment | VALENTINE, JULIE ANN | VALENTINE, JULIE ANN | | | $0.00 | 68044 | 98015728 |
| 4 | 09/25/1998 | WD | Warranty Deed | VALENTIN, JULIE A | VALENTINE, JULIE ANN | | | $32,800.00 | 83886 | 98020942 |
Payout Agreement
| No payout information available.. |