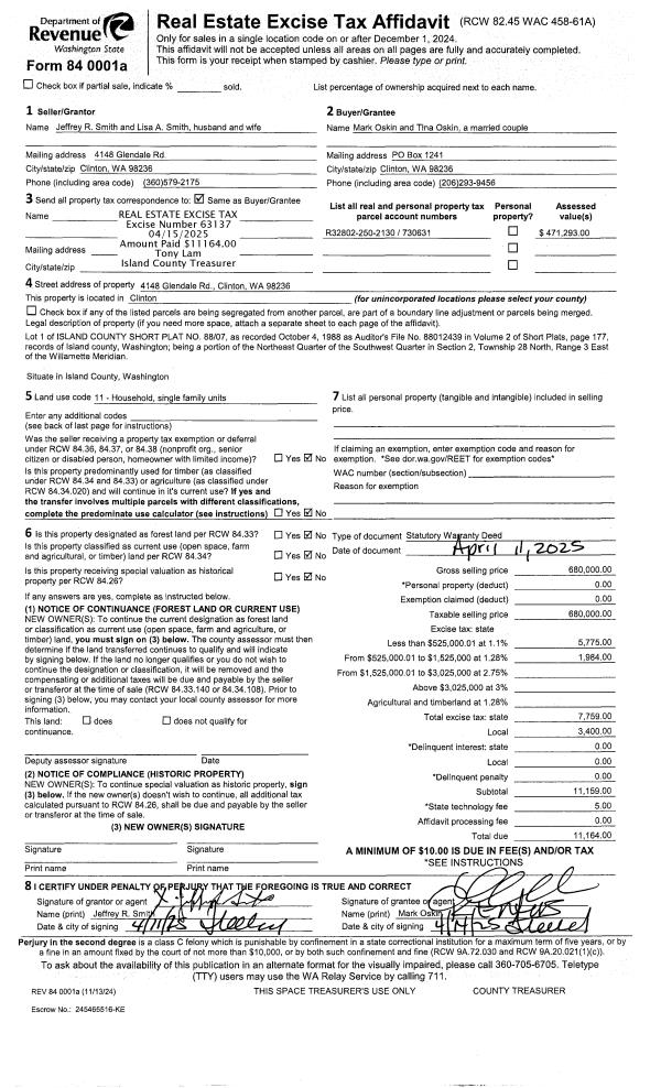
Property
Account |
| Property ID: | 800276 | Abbreviated Legal Description: | LOT 2 SP 42-94.23106.330-0390 V3 SP P222 AF#98020462 |
| Geographic ID: | R23106-334-0620 | Agent Code: | |
| Type: | Real | | |
| Tax Area: | 312 - APPRAISER-Cpvl Schl Dist, outside Cpvl, improved, greater than 1 acre | Land Use Code | 11 |
| Open Space: | N | DFL | N |
| Historic Property: | N | Remodel Property: | N |
| Multi-Family Redevelopment: | N | | |
| Township: | 31 | Section: | 06 |
| Range: | R2 |
Location |
| Address: | 139 STERLING CT COUPEVILLE, WA 98239 | Mapsco: | |
| Neighborhood: | Cycle 2 | Map ID: | 461 |
| Neighborhood CD: | 2 |
Owner |
| Name: | JORGENSEN, BOB N | Owner ID: | 187714 |
| Mailing Address: | ROXANNE G JORGENSEN 139 STERLING CT COUPEVILLE, WA 98239 | % Ownership: | 100.0000000000% |
| | | Exemptions: | |
Taxes and Assessment Details
Values
| (+) Improvement Homesite Value: | + | $0 | |
| (+) Improvement Non-Homesite Value: | + | $284,076 | |
| (+) Land Homesite Value: | + | $0 | |
| (+) Land Non-Homesite Value: | + | $273,872 | |
| (+) Curr Use (HS): | + | $0 | $0 |
| (+) Curr Use (NHS): | + | $0 | $0 |
| | | -------------------------- | |
| (=) Market Value: | = | $557,948 | |
| (–) Productivity Loss: | – | $0 | |
| | | -------------------------- | |
| (=) Subtotal: | = | $557,948 | |
| (+) Senior Appraised Value: | + | $0 | |
| (+) Non-Senior Appraised Value: | + | $557,948 | |
| | | -------------------------- | |
| (=) Total Appraised Value: | = | $557,948 | |
| (–) Senior Exemption Loss: | – | $0 | |
| (–) Exemption Loss: | – | $0 | |
| | | -------------------------- | |
| (=) Taxable Value: | = | $557,948 | |
Taxing Jurisdiction
| Owner: | JORGENSEN, BOB N | | |
| % Ownership: | 100.0000000000% | | |
| Total Value: | $557,948 | | |
| Tax Area: | 312 - APPRAISER-Cpvl Schl Dist, outside Cpvl, improved, greater than 1 acre |
| CF | Conservation Futures | 0.0316035091 | $557,948 | $557,948 | $17.63 | | |
| CEM2 | Cemetery #2 | 0.0095056933 | $557,948 | $557,948 | $5.30 | | |
| FIRE5 | Fire & Rescue Dist #5 C Whidbey GEN | 1.2008080668 | $557,948 | $557,948 | $669.99 | | |
| FIRE5BOND | Fire & Rescue Dist #5 C Whidbey BOND | 0.1400090713 | $557,948 | $557,948 | $78.12 | | |
| HOBOND | Hospital BOND | 0.1910887512 | $557,948 | $557,948 | $106.62 | | |
| HOGEN | Hospital GEN | 0.3902502903 | $557,948 | $557,948 | $217.74 | | |
| CE | County Current Expense | 0.3708482477 | $557,948 | $557,948 | $206.91 | | |
| CR | County Roads | 0.4584763726 | $557,948 | $557,948 | $255.81 | | |
| ISLANDEMS | Hospital GEN (EMS) | 0.5000000000 | $557,948 | $557,948 | $278.97 | | |
| LIB | Library Sno-Isle GEN | 0.3153421757 | $557,948 | $557,948 | $175.94 | | |
| LIBCAP | Library Sno-Isle BOND (Cap Fac Imp Area) | 0.0543427938 | $557,948 | $557,948 | $30.32 | | |
| POCOUP | Port of Coupeville GEN | 0.1093371703 | $557,948 | $557,948 | $61.00 | | |
| POCOUPIDD | Port of Coupeville IDD | 0.3409740022 | $557,948 | $557,948 | $190.25 | | |
| COUPSDTECH | School 204 CP (TECH) | 0.7545480007 | $557,948 | $557,948 | $421.00 | | |
| SCH204MO | School 204 Enrichment | 0.6716186034 | $557,948 | $557,948 | $374.73 | | |
| ST | State School | 1.3035497053 | $557,948 | $557,948 | $727.31 | | |
| ST2 | State School Part 2 | 0.8169543533 | $557,948 | $557,948 | $455.82 | | |
| | Total Tax Rate: | 7.6592568070 | | | | | |
| | | | | Taxes w/Current Exemptions: | $4,273.46 | | |
| | | | | Taxes w/o Exemptions: | $4,273.46 | | |
Improvement / Building
| Improvement #1: | RESIDENTIAL | State Code: | Y | 1848.0 sqft | Value: | $284,076 |
| Bathrooms: | 2 | Bedrooms: | 3 | | Ceiling: | DRYWALL PAINTED | Exterior Wall/Cover: | WOOD SIDING | | Floor Covering: | HARDWOOD/CARP 60-40 | Floor Structure: | WOOD W/SUBFLOOR | | Foundation: | CONCRETE | Heating: | FHA GAS | | Interior Finish: | DRYWALL PAINT | Plumbing Fixture Cnt: | 9 | | Roof Slope: | 5" IN 12" | Roof Structure/Cover: | CJ ASPHALT |
|
| | Type | Description | Class CD | Sub Class CD | Year Built | Area |
| | BAS | BASE/MAIN FLOOR | 3 | 0 | 2003 | 1232.0 |
| | OWP | OPEN WOOD PORCH W/STEPS | 3 | 0 | 2003 | 160.0 |
| | OWP | OPEN WOOD PORCH W/STEPS | 3 | 0 | 2003 | 120.0 |
| | ENP | ENCLOSED PORCH | 3 | 0 | 2003 | 120.0 |
| | UPH | HALF STORY | 3 | 0 | 2003 | 616.0 |
Sketch
| No sketches available for this property. |
Property Image
Land
| 1 | HS | HOMESITE | 1.0000 | 43560.00 | 0.00 | 0.00 | 1.00 | $220,000 | $0 |
| 2 | 91 | UNDEVELOPED LAND-METES AND BOUNDS | 0.3700 | 16117.20 | 0.00 | 0.00 | 1.00 | $53,872 | $0 |
Roll Value History
| 2026 | N/A | N/A | N/A | N/A | N/A |
| 2025 | $284,076 | $273,872 | $0 | $557,948 | $557,948 |
| 2024 | $287,213 | $270,000 | $0 | $557,213 | $557,213 |
| 2023 | $290,793 | $260,000 | $0 | $550,793 | $550,793 |
| 2022 | $266,554 | $240,000 | $0 | $506,554 | $506,554 |
| 2021 | $234,604 | $150,000 | $0 | $384,604 | $384,604 |
| 2020 | $228,981 | $150,000 | $0 | $378,981 | $378,981 |
| 2019 | $172,324 | $180,000 | $0 | $352,324 | $352,324 |
| 2018 | $168,392 | $160,000 | $0 | $328,392 | $328,392 |
| 2017 | $169,361 | $130,000 | $0 | $299,361 | $299,361 |
| 2016 | $171,300 | $90,000 | $0 | $261,300 | $261,300 |
| 2015 | $173,240 | $90,000 | $0 | $263,240 | $263,240 |
| 2014 | $175,179 | $85,000 | $0 | $260,179 | $260,179 |
| 2013 | $177,118 | $85,000 | $0 | $262,118 | $262,118 |
| 2012 | $189,050 | $85,000 | $0 | $274,050 | $274,050 |
| 2011 | $191,100 | $95,000 | $0 | $286,100 | $286,100 |
| 2010 | $197,424 | $95,000 | $0 | $292,424 | $292,424 |
| 2009 | $207,843 | $100,000 | $0 | $307,843 | $307,843 |
| 2008 | $208,270 | $100,000 | $0 | $308,270 | $308,270 |
| 2007 | $210,719 | $100,000 | $0 | $310,719 | $310,719 |
Deed and Sales History
| 1 | 04/24/2002 | WD | Warranty Deed | DUFEK, MICHAEL L & SUE N | JORGENSEN, BOB N | | | $40,000.00 | 21623 | 4018519 |
| 2 | 01/01/1900 | OTHER | Other - Misc. Documents | Unknown | DUFEK, MICHAEL L & SUE N | | | $0.00 | 0 | 0 |
Payout Agreement
| No payout information available.. |