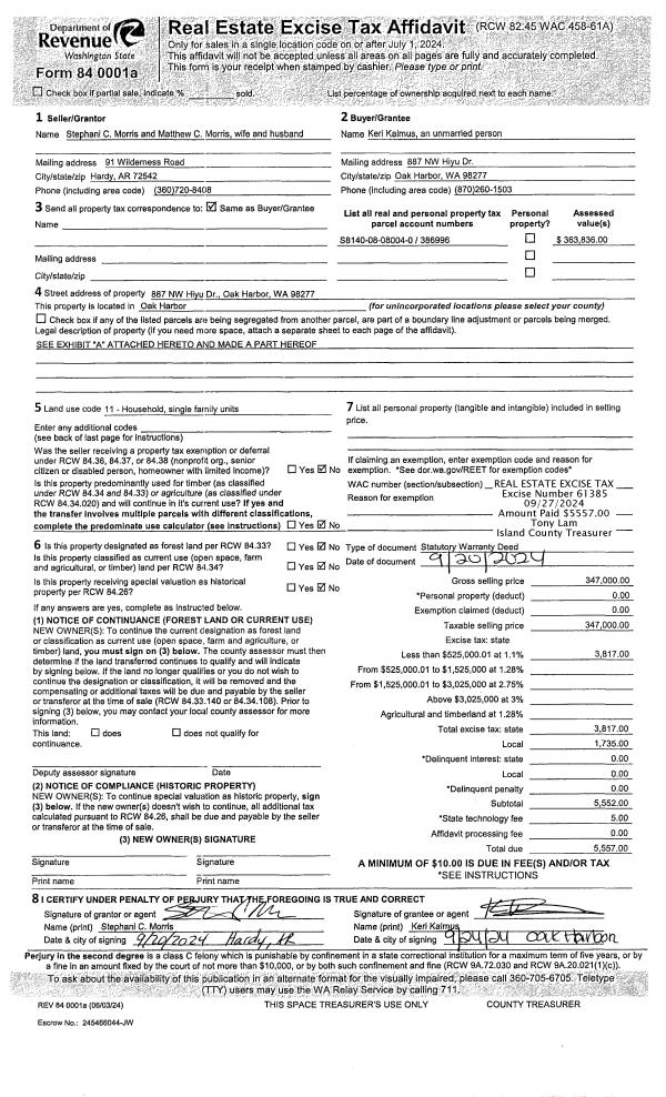
Property
Account |
| Property ID: | 800280 | Abbreviated Legal Description: | S359.69' OF N746.63' OF SE SW LY W OF THOMPSON RD & N OF ST HWY |
| Geographic ID: | R32907-084-2350 | Agent Code: | |
| Type: | Real | | |
| Tax Area: | 712 - APPRAISER-S Whid Schl Dist, outside Langley, improved, greater than 1 acre | Land Use Code | 11 |
| Open Space: | N | DFL | N |
| Historic Property: | N | Remodel Property: | N |
| Multi-Family Redevelopment: | N | | |
| Township: | 29 | Section: | 07 |
| Range: | R3 |
Location |
| Address: | | Mapsco: | |
| Neighborhood: | Cycle 4 | Map ID: | 742 |
| Neighborhood CD: | 4 |
Owner |
| Name: | MODEST FAMILY SOLUTIONS | Owner ID: | 311371 |
| Mailing Address: | 7510 OLYMPIC DR, UNIT B EVERETT, WA 98203 | % Ownership: | 100.0000000000% |
| | | Exemptions: | |
Taxes and Assessment Details
Values
| (+) Improvement Homesite Value: | + | $0 | |
| (+) Improvement Non-Homesite Value: | + | $4,000 | |
| (+) Land Homesite Value: | + | $0 | |
| (+) Land Non-Homesite Value: | + | $330,000 | |
| (+) Curr Use (HS): | + | $0 | $0 |
| (+) Curr Use (NHS): | + | $0 | $0 |
| | | -------------------------- | |
| (=) Market Value: | = | $334,000 | |
| (–) Productivity Loss: | – | $0 | |
| | | -------------------------- | |
| (=) Subtotal: | = | $334,000 | |
| (+) Senior Appraised Value: | + | $0 | |
| (+) Non-Senior Appraised Value: | + | $334,000 | |
| | | -------------------------- | |
| (=) Total Appraised Value: | = | $334,000 | |
| (–) Senior Exemption Loss: | – | $0 | |
| (–) Exemption Loss: | – | $0 | |
| | | -------------------------- | |
| (=) Taxable Value: | = | $334,000 | |
Taxing Jurisdiction
| Owner: | MODEST FAMILY SOLUTIONS | | |
| % Ownership: | 100.0000000000% | | |
| Total Value: | $334,000 | | |
| Tax Area: | 712 - APPRAISER-S Whid Schl Dist, outside Langley, improved, greater than 1 acre |
| CF | Conservation Futures | 0.0316035091 | $334,000 | $334,000 | $10.56 | | |
| FIRE3 | Fire & Rescue Dist #3 S Whidbey GEN | 1.2004855531 | $334,000 | $334,000 | $400.96 | | |
| HOBOND | Hospital BOND | 0.1910887512 | $334,000 | $334,000 | $63.82 | | |
| HOGEN | Hospital GEN | 0.3902502903 | $334,000 | $334,000 | $130.34 | | |
| CE | County Current Expense | 0.3708482477 | $334,000 | $334,000 | $123.86 | | |
| CR | County Roads | 0.4584763726 | $334,000 | $334,000 | $153.13 | | |
| ISLANDEMS | Hospital GEN (EMS) | 0.5000000000 | $334,000 | $334,000 | $167.00 | | |
| LIB | Library Sno-Isle GEN | 0.3153421757 | $334,000 | $334,000 | $105.32 | | |
| PORTWHID | Port of S Whidbey GEN | 0.1094540357 | $334,000 | $334,000 | $36.56 | | |
| SCH206BOND | School 206 BOND | 0.3161759235 | $334,000 | $334,000 | $105.60 | | |
| SCH206MO | School 206 Enrichment | 0.4547169547 | $334,000 | $334,000 | $151.88 | | |
| ST | State School | 1.3035497053 | $334,000 | $334,000 | $435.39 | | |
| ST2 | State School Part 2 | 0.8169543533 | $334,000 | $334,000 | $272.86 | | |
| SWHIDPRBD | P & R S Whidbey BOND | 0.0152817568 | $334,000 | $334,000 | $5.10 | | |
| SWHIDPRBD2 | P & R S Whidbey BOND2 | 0.0138911264 | $334,000 | $334,000 | $4.64 | | |
| SWHIDPRMT | P & R S Whidbey GEN | 0.2053334452 | $334,000 | $334,000 | $68.58 | | |
| | Total Tax Rate: | 6.6934522006 | | | | | |
| | | | | Taxes w/Current Exemptions: | $2,235.60 | | |
| | | | | Taxes w/o Exemptions: | $2,235.60 | | |
Improvement / Building
| Improvement #1: | RESIDENTIAL | State Code: | Y | 0.0 sqft | Value: | $4,000 |
Sketch
| No sketches available for this property. |
Property Image
Land
| 1 | 35 | AC (10.00-30.99) | 0.0000 | 0.00 | 0.00 | 0.00 | 1.00 | $330,000 | $0 |
Roll Value History
| 2026 | N/A | N/A | N/A | N/A | N/A |
| 2025 | $4,000 | $330,000 | $0 | $334,000 | $334,000 |
| 2024 | $0 | $320,000 | $0 | $320,000 | $320,000 |
| 2023 | $0 | $280,000 | $0 | $280,000 | $280,000 |
| 2022 | $0 | $250,000 | $0 | $250,000 | $250,000 |
| 2021 | $0 | $190,000 | $0 | $190,000 | $190,000 |
| 2020 | $0 | $160,000 | $0 | $160,000 | $160,000 |
| 2019 | $0 | $160,000 | $0 | $160,000 | $160,000 |
| 2018 | $0 | $150,000 | $0 | $150,000 | $150,000 |
| 2017 | $0 | $150,000 | $0 | $150,000 | $150,000 |
| 2016 | $0 | $140,000 | $0 | $140,000 | $140,000 |
| 2015 | $0 | $130,000 | $0 | $130,000 | $130,000 |
| 2014 | $0 | $112,420 | $0 | $112,420 | $112,420 |
| 2013 | $0 | $112,420 | $0 | $112,420 | $112,420 |
| 2012 | $0 | $178,850 | $0 | $178,850 | $178,850 |
| 2011 | $0 | $178,850 | $0 | $178,850 | $178,850 |
| 2010 | $0 | $178,850 | $0 | $178,850 | $178,850 |
| 2009 | $0 | $204,400 | $0 | $204,400 | $204,400 |
| 2008 | $0 | $235,060 | $0 | $235,060 | $235,060 |
| 2007 | $0 | $143,080 | $0 | $143,080 | $143,080 |
Deed and Sales History
| 1 | 02/05/2024 | QCD | Quit Claim Deed | AGRARIAN LAND TRUST | MODEST FAMILY SOLUTIONS | | | $0.00 | 59164 | 4569204 |
| 2 | 12/19/2019 | QCD | Quit Claim Deed | GARDNER, MARI C | AGRARIAN LAND TRUST | | | $0.00 | 41618 | 4478230 |
| 3 | 11/20/2000 | 5 | DNU - Marriage License/Name Change | THIBODAUX, CAROLINE E | GARDNER, MARI C | | | $0.00 | 68862 | 20016157 |
| 4 | 12/29/1999 | WD | Warranty Deed | SIEVERS, C H & C S | THIBODAUX, CAROLINE E | | | $129,500.00 | 90085 | 99000493 |
| 5 | 10/26/1998 | SEG | DNU - Segregation | Unknown | SIEVERS, C H & C S | | | $0.00 | 68053 | 0 |
Payout Agreement
| No payout information available.. |