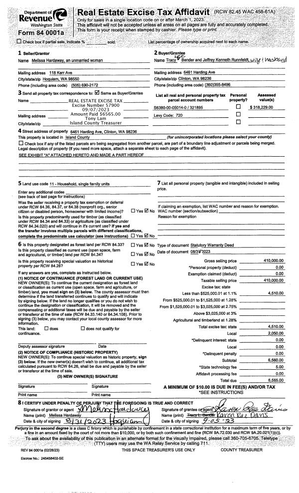
Property
Account |
| Property ID: | 800345 | Abbreviated Legal Description: | 1.4400 Acres ins Section 23s Township 32s Range R2s LOT 1 SP 389-19 AF#4536779;s |
| Geographic ID: | R23223-249-4440 | Agent Code: | |
| Type: | Real | | |
| Tax Area: | 512 - APPRAISER-Stan/Cam Schl Dist, improved, greater than 1 acre | Land Use Code | 11 |
| Open Space: | N | DFL | N |
| Historic Property: | N | Remodel Property: | N |
| Multi-Family Redevelopment: | N | | |
| Township: | 32 | Section: | 23 |
| Range: | R2 |
Location |
| Address: | 980 VALERIE DR CAMANO ISLAND, WA 98282 | Mapsco: | |
| Neighborhood: | North Camano | Map ID: | 555 |
| Neighborhood CD: | 06-C |
Owner |
| Name: | CROUCH, RICHARD A | Owner ID: | 193457 |
| Mailing Address: | LYDIA D CROUCH 980 VALERIE DR CAMANO ISLAND, WA 98282-8692 | % Ownership: | 100.0000000000% |
| | | Exemptions: | |
Taxes and Assessment Details
Values
| (+) Improvement Homesite Value: | + | $0 | |
| (+) Improvement Non-Homesite Value: | + | $466,079 | |
| (+) Land Homesite Value: | + | $0 | |
| (+) Land Non-Homesite Value: | + | $305,000 | |
| (+) Curr Use (HS): | + | $0 | $0 |
| (+) Curr Use (NHS): | + | $0 | $0 |
| | | -------------------------- | |
| (=) Market Value: | = | $771,079 | |
| (–) Productivity Loss: | – | $0 | |
| | | -------------------------- | |
| (=) Subtotal: | = | $771,079 | |
| (+) Senior Appraised Value: | + | $0 | |
| (+) Non-Senior Appraised Value: | + | $771,079 | |
| | | -------------------------- | |
| (=) Total Appraised Value: | = | $771,079 | |
| (–) Senior Exemption Loss: | – | $0 | |
| (–) Exemption Loss: | – | $0 | |
| | | -------------------------- | |
| (=) Taxable Value: | = | $771,079 | |
Taxing Jurisdiction
| Owner: | CROUCH, RICHARD A | | |
| % Ownership: | 100.0000000000% | | |
| Total Value: | $771,079 | | |
| Tax Area: | 512 - APPRAISER-Stan/Cam Schl Dist, improved, greater than 1 acre |
| CF | Conservation Futures | 0.0316035091 | $771,079 | $771,079 | $24.37 | | |
| EMS1 | Fire & Rescue Dist #1 Camano GEN (EMS) | 0.3677864386 | $771,079 | $771,079 | $283.59 | | |
| FIRE1 | Fire & Rescue Dist #1 Camano GEN | 1.2502910536 | $771,079 | $771,079 | $964.07 | | |
| FIRE1BOND | Fire & Rescue Dist #1 Camano BOND | 0.1570001679 | $771,079 | $771,079 | $121.06 | | |
| CE | County Current Expense | 0.3708482477 | $771,079 | $771,079 | $285.95 | | |
| CR | County Roads | 0.4584763726 | $771,079 | $771,079 | $353.52 | | |
| LCIB | Library Sno-Isle BOND (Camano Island) | 0.0396325772 | $771,079 | $771,079 | $30.56 | | |
| LIB | Library Sno-Isle GEN | 0.3153421757 | $771,079 | $771,079 | $243.15 | | |
| SCH205_401 | School 205-401 Enrichment | 1.2698420524 | $771,079 | $771,079 | $979.15 | | |
| SCH205BOND | School 205-401 BOND | 0.9396497583 | $771,079 | $771,079 | $724.54 | | |
| ST | State School | 1.3035497053 | $771,079 | $771,079 | $1,005.14 | | |
| ST2 | State School Part 2 | 0.8169543533 | $771,079 | $771,079 | $629.94 | | |
| | Total Tax Rate: | 7.3209764117 | | | | | |
| | | | | Taxes w/Current Exemptions: | $5,645.04 | | |
| | | | | Taxes w/o Exemptions: | $5,645.04 | | |
Improvement / Building
| Improvement #1: | RESIDENTIAL | State Code: | Y | 3114.9 sqft | Value: | $466,079 |
| Bathrooms: | 3 | Bedrooms: | 3 | | Ceiling: | DRYWALL PAINTED | Exterior Wall/Cover: | CEMENT FIBER | | Floor Covering: | CARPET/VINYL 20-80 | Floor Structure: | WOOD W/SUBFLOOR | | Foundation: | CONCRETE | Heating: | FHA GAS | | Interior Finish: | DRYWALL PAINT | Plumbing Fixture Cnt: | 14 | | Roof Slope: | 6" IN 12" | Roof Structure/Cover: | CJ ASPHALT |
|
| | Type | Description | Class CD | Sub Class CD | Year Built | Area |
| | BAS | BASE/MAIN FLOOR | 3 | 0 | 2005 | 2135.8 |
| | AGR | ATTACHED GARAGE | 3 | 0 | 2005 | 847.4 |
| | UPS | UPPER STORY | 3 | 0 | 2005 | 979.1 |
| | OWP | OPEN WOOD PORCH W/STEPS | 3 | 0 | 2005 | 162.0 |
| | OWC | OPEN WOOD PORCH W/STEPS/ROOF/C | 3 | 0 | 2005 | 128.0 |
Sketch
Property Image
Land
| 1 | 17 | AC (01.01-02.00) | 1.4400 | 62726.40 | 0.00 | 0.00 | 1.00 | $305,000 | $0 |
Roll Value History
| 2026 | N/A | N/A | N/A | N/A | N/A |
| 2025 | $466,079 | $305,000 | $0 | $771,079 | $771,079 |
| 2024 | $471,481 | $290,000 | $0 | $761,481 | $761,481 |
| 2023 | $476,885 | $290,000 | $0 | $766,885 | $766,885 |
| 2022 | $417,312 | $260,000 | $0 | $677,312 | $677,312 |
| 2021 | $367,125 | $115,000 | $0 | $482,125 | $482,125 |
| 2020 | $358,240 | $150,000 | $0 | $508,240 | $508,240 |
| 2019 | $287,624 | $190,000 | $0 | $477,624 | $477,624 |
| 2018 | $288,439 | $180,000 | $0 | $468,439 | $468,439 |
| 2017 | $290,061 | $120,000 | $0 | $410,061 | $410,061 |
| 2016 | $296,427 | $120,000 | $0 | $416,427 | $416,427 |
| 2015 | $299,722 | $80,000 | $0 | $379,722 | $379,722 |
| 2014 | $303,015 | $80,000 | $0 | $383,015 | $383,015 |
| 2013 | $306,308 | $80,000 | $0 | $386,308 | $386,308 |
| 2012 | $309,604 | $80,000 | $0 | $389,604 | $389,604 |
| 2011 | $312,897 | $100,000 | $0 | $412,897 | $412,897 |
| 2010 | $300,337 | $100,000 | $0 | $400,337 | $400,337 |
| 2009 | $283,745 | $160,000 | $0 | $443,745 | $443,745 |
| 2008 | $286,698 | $189,200 | $0 | $475,898 | $475,898 |
| 2007 | $289,637 | $189,200 | $0 | $478,837 | $478,837 |
Deed and Sales History
| 1 | 10/05/2004 | WD | Warranty Deed | NELSON, J ROGER & APRIL R | CROUCH, RICHARD A | | | $75,000.00 | 44723 | 4114923 |
| 2 | 01/01/1900 | OTHER | Other - Misc. Documents | Unknown | NELSON, J ROGER & APRIL R | | | $0.00 | 0 | 0 |
Payout Agreement
| No payout information available.. |